Property
Account |
| Property ID: | 809741 | Abbreviated Legal Description: | LOT 3 OH-SP BND 8-00001.13210.516-3230, .514-3390 & .491-3150 AF#4239430 |
| Geographic ID: | R13210-492-3090 | Agent Code: | |
| Type: | Real | | |
| Tax Area: | 100 - APPRAISER-OH Schl Dist, in OH | Land Use Code | 91 |
| Open Space: | N | DFL | N |
| Historic Property: | N | Remodel Property: | N |
| Multi-Family Redevelopment: | N | | |
| Township: | 32 | Section: | 10 |
| Range: | R1 |
Location |
| Address: | | Mapsco: | |
| Neighborhood: | Oak Harbor SouthWest City Limit Residential | Map ID: | 119 |
| Neighborhood CD: | 1OHSWR |
Owner |
| Name: | KRIEG, JAMES | Owner ID: | 319097 |
| Mailing Address: | DANETTE KRIEG PO BOX 616 OAK HARBOR, WA 98277 | % Ownership: | 100.0000000000% |
| | | Exemptions: | |
Taxes and Assessment Details
Values
| (+) Improvement Homesite Value: | + | N/A | |
| (+) Improvement Non-Homesite Value: | + | N/A | |
| (+) Land Homesite Value: | + | N/A | |
| (+) Land Non-Homesite Value: | + | N/A | Ag / Timber Use Value |
| (+) Curr Use (HS): | + | N/A | N/A |
| (+) Curr Use (NHS): | + | N/A | N/A |
| | | -------------------------- | |
| (=) Market Value: | = | N/A | |
| (–) Productivity Loss: | – | N/A | |
| | | -------------------------- | |
| (=) Subtotal: | = | N/A | |
| (+) Senior Appraised Value: | + | N/A | |
| (+) Non-Senior Appraised Value: | + | N/A | |
| | | -------------------------- | |
| (=) Total Appraised Value: | = | N/A | |
| (–) Senior Exemption Loss: | – | N/A | |
| (–) Exemption Loss: | – | N/A | |
| | | -------------------------- | |
| (=) Taxable Value: | = | N/A | |
Taxing Jurisdiction
| Owner: | KRIEG, JAMES | | |
| % Ownership: | 100.0000000000% | | |
| Total Value: | N/A | | |
| Tax Area: | 100 - APPRAISER-OH Schl Dist, in OH |
| CF | Conservation Futures | N/A | N/A | N/A | N/A | | |
| WCD | Whidbey Conservation District | N/A | N/A | N/A | N/A | | |
| CEM1 | Cemetery #1 | N/A | N/A | N/A | N/A | | |
| COH | City of Oak Harbor | N/A | N/A | N/A | N/A | | |
| HOBOND | Hospital BOND | N/A | N/A | N/A | N/A | | |
| HOGEN | Hospital GEN | N/A | N/A | N/A | N/A | | |
| CE | County Current Expense | N/A | N/A | N/A | N/A | | |
| ISLANDEMS | Hospital GEN (EMS) | N/A | N/A | N/A | N/A | | |
| LIB | Library Sno-Isle GEN | N/A | N/A | N/A | N/A | | |
| NWHIDPRMT | P & R N Whidbey GEN | N/A | N/A | N/A | N/A | | |
| SCH201MO | School 201 Enrichment | N/A | N/A | N/A | N/A | | |
| ST | State School | N/A | N/A | N/A | N/A | | |
| ST2 | State School Part 2 | N/A | N/A | N/A | N/A | | |
| | Total Tax Rate: | N/A | | | | | |
| | | | | Taxes w/Current Exemptions: | N/A | | |
| | | | | Taxes w/o Exemptions: | N/A | | |
Improvement / Building
Sketch
| No sketches available for this property. |
Property Image
Land
| 1 | 91 | UNDEVELOPED LAND-METES AND BOUNDS | 3.0200 | 131551.20 | 1.51 | 0.00 | 1.00 | N/A | N/A |
Roll Value History
| 2026 | N/A | N/A | N/A | N/A | N/A |
| 2025 | $0 | $250,000 | $0 | $250,000 | $250,000 |
| 2024 | $0 | $250,000 | $0 | $250,000 | $250,000 |
| 2023 | $0 | $250,000 | $0 | $250,000 | $250,000 |
| 2022 | $0 | $210,000 | $0 | $210,000 | $210,000 |
| 2021 | $0 | $170,000 | $0 | $170,000 | $170,000 |
| 2020 | $0 | $660,000 | $0 | $660,000 | $660,000 |
| 2019 | $0 | $660,000 | $0 | $660,000 | $660,000 |
| 2018 | $0 | $396,000 | $0 | $396,000 | $396,000 |
| 2017 | $0 | $396,000 | $0 | $396,000 | $396,000 |
| 2016 | $0 | $396,000 | $0 | $396,000 | $396,000 |
| 2015 | $0 | $396,000 | $0 | $396,000 | $396,000 |
| 2014 | $0 | $396,000 | $0 | $396,000 | $396,000 |
| 2013 | $0 | $508,300 | $0 | $508,300 | $508,300 |
| 2012 | $0 | $508,300 | $0 | $508,300 | $508,300 |
| 2011 | $0 | $508,300 | $0 | $508,300 | $508,300 |
| 2010 | $0 | $508,300 | $0 | $508,300 | $508,300 |
| 2009 | $0 | $90,000 | $0 | $90,000 | $90,000 |
| 2008 | $0 | $0 | $0 | $303,888 | $303,888 |
Deed and Sales History
| 1 | 12/12/2025 | QCD | Quit Claim Deed | KRIEG, JAMES ALLEN | KRIEG, JAMES | | | $200,000.00 | 65701 | 4594589 |
|   | |
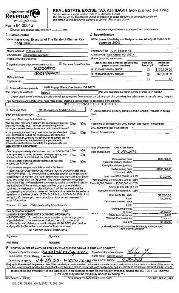
| 2 | 04/25/2022 | QCD | Quit Claim Deed | KRIEG, CHARLES RAY | KRIEG, JAMES ALLEN | | | $200,000.00 | 52928 | 4544419 |
|   | |
| 3 | 12/30/2020 | QCD | Quit Claim Deed | KRIEG, KARL | KRIEG, JAMES ALLEN | | | $0.00 | 46687 | 4509093 |
| 4 | 06/01/2009 | ESTSEPPROP | Establish Separate Property | KRIEG, KARL | KRIEG, KARL | | | $0.00 | 91217 | 4252889 |
| 5 | 02/05/2009 | ESTSEPPROP | Establish Separate Property | KRIEG, KARL | KRIEG, KARL | | | $0.00 | 90306 | 4244582 |
| 6 | 01/01/1900 | OTHER | Other - Misc. Documents | Unknown | KRIEG, KARL | | | $0.00 | 0 | 0 |
Payout Agreement
| No payout information available.. |