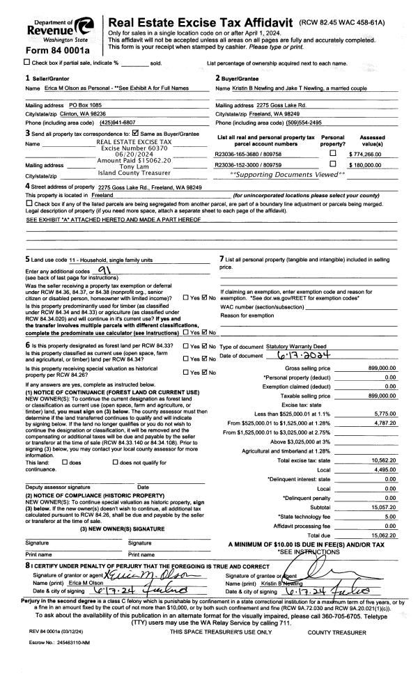
Property
Account |
| Property ID: | 809758 | Abbreviated Legal Description: | LOT 1 SP 225-08.23036.150-3500 AF# 4250788 |
| Geographic ID: | R23036-165-3680 | Agent Code: | |
| Type: | Real | | |
| Tax Area: | 712 - APPRAISER-S Whid Schl Dist, outside Langley, improved, greater than 1 acre | Land Use Code | 11 |
| Open Space: | N | DFL | N |
| Historic Property: | N | Remodel Property: | N |
| Multi-Family Redevelopment: | N | | |
| Township: | 30 | Section: | 36 |
| Range: | R2 |
Location |
| Address: | 2275 GOSS LAKE RD FREELAND, WA 98249 | Mapsco: | |
| Neighborhood: | Cycle 3 | Map ID: | 446 |
| Neighborhood CD: | 3 |
Owner |
| Name: | NEWLING, KRISTIN B | Owner ID: | 312835 |
| Mailing Address: | JAKE T NEWLING 2275 GOSS LAKE RD FREELAND, WA 98249 | % Ownership: | 100.0000000000% |
| | | Exemptions: | |
Taxes and Assessment Details
Values
| (+) Improvement Homesite Value: | + | N/A | |
| (+) Improvement Non-Homesite Value: | + | N/A | |
| (+) Land Homesite Value: | + | N/A | |
| (+) Land Non-Homesite Value: | + | N/A | Ag / Timber Use Value |
| (+) Curr Use (HS): | + | N/A | N/A |
| (+) Curr Use (NHS): | + | N/A | N/A |
| | | -------------------------- | |
| (=) Market Value: | = | N/A | |
| (–) Productivity Loss: | – | N/A | |
| | | -------------------------- | |
| (=) Subtotal: | = | N/A | |
| (+) Senior Appraised Value: | + | N/A | |
| (+) Non-Senior Appraised Value: | + | N/A | |
| | | -------------------------- | |
| (=) Total Appraised Value: | = | N/A | |
| (–) Senior Exemption Loss: | – | N/A | |
| (–) Exemption Loss: | – | N/A | |
| | | -------------------------- | |
| (=) Taxable Value: | = | N/A | |
Taxing Jurisdiction
| Owner: | NEWLING, KRISTIN B | | |
| % Ownership: | 100.0000000000% | | |
| Total Value: | N/A | | |
| Tax Area: | 712 - APPRAISER-S Whid Schl Dist, outside Langley, improved, greater than 1 acre |
| CF | Conservation Futures | N/A | N/A | N/A | N/A | | |
| WCD | Whidbey Conservation District | N/A | N/A | N/A | N/A | | |
| FIRE3 | Fire & Rescue Dist #3 S Whidbey GEN | N/A | N/A | N/A | N/A | | |
| HOBOND | Hospital BOND | N/A | N/A | N/A | N/A | | |
| HOGEN | Hospital GEN | N/A | N/A | N/A | N/A | | |
| CE | County Current Expense | N/A | N/A | N/A | N/A | | |
| CR | County Roads | N/A | N/A | N/A | N/A | | |
| ISLANDEMS | Hospital GEN (EMS) | N/A | N/A | N/A | N/A | | |
| LIB | Library Sno-Isle GEN | N/A | N/A | N/A | N/A | | |
| PORTWHID | Port of S Whidbey GEN | N/A | N/A | N/A | N/A | | |
| SCH206CAP | School 206 CP | N/A | N/A | N/A | N/A | | |
| SCH206MO | School 206 Enrichment | N/A | N/A | N/A | N/A | | |
| ST | State School | N/A | N/A | N/A | N/A | | |
| ST2 | State School Part 2 | N/A | N/A | N/A | N/A | | |
| SWHIDPRBD | P & R S Whidbey BOND | N/A | N/A | N/A | N/A | | |
| SWHIDPRBD2 | P & R S Whidbey BOND2 | N/A | N/A | N/A | N/A | | |
| SWHIDPRMT | P & R S Whidbey GEN | N/A | N/A | N/A | N/A | | |
| | Total Tax Rate: | N/A | | | | | |
| | | | | Taxes w/Current Exemptions: | N/A | | |
| | | | | Taxes w/o Exemptions: | N/A | | |
Improvement / Building
| Improvement #1: | RESIDENTIAL | State Code: | Y | 1900.0 sqft | Value: | N/A |
| Bathrooms: | 3.5 | Bedrooms: | 2 | | Ceiling: | DRYWALL PAINTED | Exterior Wall/Cover: | FACE BRICK VENEER | | Floor Covering: | VINYL 100% | Floor Structure: | WOOD W/SUBFLOOR | | Foundation: | CONCRETE | Heating: | RADIANT FLOOR | | Interior Finish: | DRYWALL PAINT | Plumbing Fixture Cnt: | 14 | | Roof Slope: | 6" IN 12" | Roof Structure/Cover: | CJ ASPHALT |
|
| | Type | Description | Class CD | Sub Class CD | Year Built | Area |
| | BAS | BASE/MAIN FLOOR | 3 | 0 | 1996 | 1900.0 |
| | OWP | OPEN WOOD PORCH W/STEPS | 3 | 0 | 1996 | 64.0 |
| | OWC | OPEN WOOD PORCH W/STEPS/ROOF/C | 3 | 0 | 1996 | 88.0 |
| | OWC | OPEN WOOD PORCH W/STEPS/ROOF/C | 3 | 0 | 1996 | 304.0 |
| | DGR | DETACHED GARAGE | 3 | 0 | 1996 | 1008.0 |
| | oPOL | POLE BARN | 3 | 0 | 1996 | 1536.0 |
| | CPD | OPEN CARPORT DIRT FLOOR | 3 | 0 | 1996 | 420.0 |
Sketch
Property Image
Land
| 1 | HS | HOMESITE | 1.0000 | 43560.00 | 0.00 | 0.00 | 1.00 | N/A | N/A |
| 2 | 91 | UNDEVELOPED LAND-METES AND BOUNDS | 7.3000 | 317988.00 | 0.00 | 0.00 | 1.00 | N/A | N/A |
Roll Value History
| 2026 | N/A | N/A | N/A | N/A | N/A |
| 2025 | $462,003 | $370,000 | $0 | $832,003 | $832,003 |
| 2024 | $439,003 | $350,000 | $0 | $789,003 | $789,003 |
| 2023 | $444,266 | $330,000 | $0 | $774,266 | $774,266 |
| 2022 | $410,607 | $280,000 | $0 | $690,607 | $690,607 |
| 2021 | $366,107 | $230,000 | $0 | $596,107 | $596,107 |
| 2020 | $357,762 | $190,000 | $0 | $547,762 | $547,762 |
| 2019 | $257,243 | $230,000 | $0 | $487,243 | $487,243 |
| 2018 | $257,977 | $210,000 | $0 | $467,977 | $467,977 |
| 2017 | $259,449 | $180,000 | $0 | $439,449 | $439,449 |
| 2016 | $262,390 | $165,000 | $0 | $427,390 | $427,390 |
| 2015 | $265,332 | $165,000 | $0 | $430,332 | $430,332 |
| 2014 | $268,273 | $124,500 | $0 | $392,773 | $392,773 |
| 2013 | $286,430 | $124,500 | $0 | $410,930 | $410,930 |
| 2012 | $288,998 | $124,500 | $0 | $413,498 | $413,498 |
| 2011 | $291,566 | $124,500 | $0 | $416,066 | $416,066 |
| 2010 | $303,232 | $124,500 | $0 | $427,732 | $427,732 |
| 2009 | $315,562 | $272,800 | $0 | $588,362 | $588,362 |
Deed and Sales History
| 1 | 06/17/2024 | WD | Warranty Deed | STEINHOFF, RICHARD L | NEWLING, KRISTIN B | | | $899,000.00 | 60370 | 4573640 |
|   | |
| 2 | 03/29/2023 | CCOMPROP | Create Community Property | STEINHOFF, RICHARD L | STEINHOFF, RICHARD L | | | $0.00 | 56402 | 4558797 |
| 3 | 01/01/1900 | OTHER | Other - Misc. Documents | Unknown | STEINHOFF, RICHARD L | | | $0.00 | 0 | 0 |
Payout Agreement
| No payout information available.. |