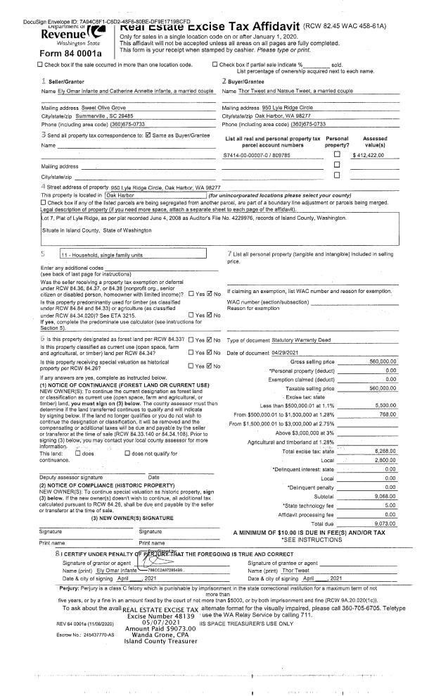
Property
Account |
| Property ID: | 809785 | Abbreviated Legal Description: | LYLE RIDGE LOT 7 |
| Geographic ID: | S7414-00-00007-0 | Agent Code: | |
| Type: | Real | | |
| Tax Area: | 120 - APPRAISER-OH Schl Dist, Special Dist, improved & 1 acre or less | Land Use Code | 11 |
| Open Space: | N | DFL | N |
| Historic Property: | N | Remodel Property: | N |
| Multi-Family Redevelopment: | N | | |
| Township: | | Section: | |
| Range: | |
Location |
| Address: | 950 LYLE RIDGE CIR OAK HARBOR, WA 98277 | Mapsco: | |
| Neighborhood: | Cycle 2 | Map ID: | 154 |
| Neighborhood CD: | 2 |
Owner |
| Name: | TWEET, THOR | Owner ID: | 299242 |
| Mailing Address: | NATSUE TWEET 950 LYLE RIDGE CIRCLW OAK HARBOR, WA 98277 | % Ownership: | 100.0000000000% |
| | | Exemptions: | |
Taxes and Assessment Details
Values
| (+) Improvement Homesite Value: | + | $0 | |
| (+) Improvement Non-Homesite Value: | + | $404,122 | |
| (+) Land Homesite Value: | + | $0 | |
| (+) Land Non-Homesite Value: | + | $225,000 | |
| (+) Curr Use (HS): | + | $0 | $0 |
| (+) Curr Use (NHS): | + | $0 | $0 |
| | | -------------------------- | |
| (=) Market Value: | = | $629,122 | |
| (–) Productivity Loss: | – | $0 | |
| | | -------------------------- | |
| (=) Subtotal: | = | $629,122 | |
| (+) Senior Appraised Value: | + | $0 | |
| (+) Non-Senior Appraised Value: | + | $629,122 | |
| | | -------------------------- | |
| (=) Total Appraised Value: | = | $629,122 | |
| (–) Senior Exemption Loss: | – | $0 | |
| (–) Exemption Loss: | – | $0 | |
| | | -------------------------- | |
| (=) Taxable Value: | = | $629,122 | |
Taxing Jurisdiction
| Owner: | TWEET, THOR | | |
| % Ownership: | 100.0000000000% | | |
| Total Value: | $629,122 | | |
| Tax Area: | 120 - APPRAISER-OH Schl Dist, Special Dist, improved & 1 acre or less |
| CF | Conservation Futures | 0.0313996660 | $629,122 | $629,122 | $19.75 | | |
| CEM1 | Cemetery #1 | 0.0040018856 | $629,122 | $629,122 | $2.52 | | |
| FIRE2 | Fire & Rescue Dist #2 N Whidbey GEN | 0.5381486274 | $629,122 | $629,122 | $338.56 | | |
| HOBOND | Hospital BOND | 0.1893405597 | $629,122 | $629,122 | $119.12 | | |
| HOGEN | Hospital GEN | 0.3848777722 | $629,122 | $629,122 | $242.14 | | |
| CE | County Current Expense | 0.3674210519 | $629,122 | $629,122 | $231.15 | | |
| CR | County Roads | 0.4614296361 | $629,122 | $629,122 | $290.30 | | |
| ISLANDEMS | Hospital GEN (EMS) | 0.4952018576 | $629,122 | $629,122 | $311.54 | | |
| LIB | Library Sno-Isle GEN | 0.3039084203 | $629,122 | $629,122 | $191.20 | | |
| NWHIDPRMT | P & R N Whidbey GEN | 0.1990272349 | $629,122 | $629,122 | $125.21 | | |
| SCH201MO | School 201 Enrichment | 2.3851112745 | $629,122 | $629,122 | $1,500.53 | | |
| ST | State School | 1.4761226122 | $629,122 | $629,122 | $928.66 | | |
| ST2 | State School Part 2 | 0.7953803475 | $629,122 | $629,122 | $500.39 | | |
| | Total Tax Rate: | 7.6313709459 | | | | | |
| | | | | Taxes w/Current Exemptions: | $4,801.07 | | |
| | | | | Taxes w/o Exemptions: | $4,801.07 | | |
Improvement / Building
| Improvement #1: | RESIDENTIAL | State Code: | Y | 2198.5 sqft | Value: | $404,122 |
| Bathrooms: | 2.5 | Bedrooms: | 3 | | Ceiling: | DRYWALL PAINTED | Cooling: | HEAT PUMP/CONV/V | | Exterior Wall/Cover: | CEMENT FIBER | Floor Covering: | HARDWOOD/CARP 60-40 | | Floor Structure: | WOOD W/SUBFLOOR | Foundation: | CONCRETE | | Interior Finish: | DRYWALL PAINT | Plumbing Fixture Cnt: | 14 | | Roof Slope: | 5" IN 12" | Roof Structure/Cover: | CJ ASPHALT |
|
| | Type | Description | Class CD | Sub Class CD | Year Built | Area |
| | BAS | BASE/MAIN FLOOR | 3 | 0 | 2016 | 864.5 |
| | UPS | UPPER STORY | 3 | 0 | 2016 | 1334.0 |
| | BIG | BUILT IN GARAGE | 3 | 0 | 2016 | 706.5 |
| | OP3 | OPEN PORCH W/ROOF | 3 | 0 | 2016 | 50.0 |
| | OP1 | OPEN PORCH SLAB | 3 | 0 | 2016 | 336.6 |
| | OWP | OPEN WOOD PORCH W/STEPS | 3 | 0 | 2016 | 160.0 |
Sketch
Property Image
Land
| 1 | 15 | SQ (12001-21780) | 0.3500 | 15246.00 | 0.00 | 0.00 | 1.00 | $225,000 | $0 |
Roll Value History
| 2026 | N/A | N/A | N/A | N/A | N/A |
| 2025 | $404,122 | $225,000 | $0 | $629,122 | $629,122 |
| 2024 | $413,914 | $225,000 | $0 | $638,914 | $638,914 |
| 2023 | $417,252 | $200,000 | $0 | $617,252 | $617,252 |
| 2022 | $380,852 | $210,000 | $0 | $590,852 | $590,852 |
| 2021 | $321,664 | $130,000 | $0 | $451,664 | $451,664 |
| 2020 | $312,422 | $100,000 | $0 | $412,422 | $412,422 |
| 2019 | $243,766 | $170,000 | $0 | $413,766 | $413,766 |
| 2018 | $244,772 | $170,000 | $0 | $414,772 | $414,772 |
| 2017 | $246,026 | $115,000 | $0 | $361,026 | $361,026 |
| 2016 | $251,047 | $80,000 | $0 | $331,047 | $331,047 |
| 2015 | $0 | $60,000 | $0 | $60,000 | $60,000 |
| 2014 | $0 | $55,000 | $0 | $55,000 | $55,000 |
| 2013 | $0 | $60,000 | $0 | $60,000 | $60,000 |
| 2012 | $0 | $63,750 | $0 | $63,750 | $63,750 |
| 2011 | $0 | $75,000 | $0 | $75,000 | $75,000 |
| 2010 | $0 | $75,000 | $0 | $75,000 | $75,000 |
| 2009 | $0 | $18,000 | $0 | $18,000 | $18,000 |
Deed and Sales History
| 1 | 04/29/2021 | WD | Warranty Deed | INFANTE, ELY OMAR | TWEET, THOR | | | $560,000.00 | 48139 | 4518504 |
| 2 | 04/07/2016 | WD | Warranty Deed | WALDRON CONSTRUCTION INC | INFANTE, ELY OMAR | | | $364,000.00 | 23781 | 4397051 |
| 3 | 09/28/2015 | WD | Warranty Deed | RSM DEVELOPMENT INC | WALDRON CONSTRUCTION INC | | | $65,000.00 | 21595 | 4387032 |
| 4 | 01/01/1900 | OTHER | Other - Misc. Documents | Unknown | RSM DEVELOPMENT INC, | | | $0.00 | 0 | 0 |
Payout Agreement
| No payout information available.. |