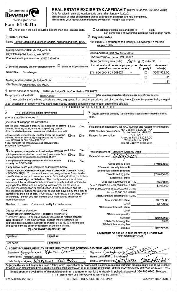
Property
Account |
| Property ID: | 809821 | Abbreviated Legal Description: | LYLE RIDGE LOT 41 |
| Geographic ID: | S7414-00-00041-0 | Agent Code: | |
| Type: | Real | | |
| Tax Area: | 120 - APPRAISER-OH Schl Dist, Special Dist, improved & 1 acre or less | Land Use Code | 11 |
| Open Space: | N | DFL | N |
| Historic Property: | N | Remodel Property: | N |
| Multi-Family Redevelopment: | N | | |
| Township: | | Section: | |
| Range: | |
Location |
| Address: | 1079 LYLE RIDGE CIR OAK HARBOR, WA 98277 | Mapsco: | |
| Neighborhood: | Cycle 2 | Map ID: | 154 |
| Neighborhood CD: | 2 |
Owner |
| Name: | SNOWBERGER, BLAIR J | Owner ID: | 300043 |
| Mailing Address: | MANDY E SNOWBERGER 1079 LYLE RIDGE CIR OAK HARBOR, WA 98277 | % Ownership: | 100.0000000000% |
| | | Exemptions: | |
Taxes and Assessment Details
Values
| (+) Improvement Homesite Value: | + | N/A | |
| (+) Improvement Non-Homesite Value: | + | N/A | |
| (+) Land Homesite Value: | + | N/A | |
| (+) Land Non-Homesite Value: | + | N/A | Ag / Timber Use Value |
| (+) Curr Use (HS): | + | N/A | N/A |
| (+) Curr Use (NHS): | + | N/A | N/A |
| | | -------------------------- | |
| (=) Market Value: | = | N/A | |
| (–) Productivity Loss: | – | N/A | |
| | | -------------------------- | |
| (=) Subtotal: | = | N/A | |
| (+) Senior Appraised Value: | + | N/A | |
| (+) Non-Senior Appraised Value: | + | N/A | |
| | | -------------------------- | |
| (=) Total Appraised Value: | = | N/A | |
| (–) Senior Exemption Loss: | – | N/A | |
| (–) Exemption Loss: | – | N/A | |
| | | -------------------------- | |
| (=) Taxable Value: | = | N/A | |
Taxing Jurisdiction
| Owner: | SNOWBERGER, BLAIR J | | |
| % Ownership: | 100.0000000000% | | |
| Total Value: | N/A | | |
| Tax Area: | 120 - APPRAISER-OH Schl Dist, Special Dist, improved & 1 acre or less |
| CF | Conservation Futures | N/A | N/A | N/A | N/A | | |
| WCD | Whidbey Conservation District | N/A | N/A | N/A | N/A | | |
| CEM1 | Cemetery #1 | N/A | N/A | N/A | N/A | | |
| FIRE2 | Fire & Rescue Dist #2 N Whidbey GEN | N/A | N/A | N/A | N/A | | |
| HOBOND | Hospital BOND | N/A | N/A | N/A | N/A | | |
| HOGEN | Hospital GEN | N/A | N/A | N/A | N/A | | |
| CE | County Current Expense | N/A | N/A | N/A | N/A | | |
| CR | County Roads | N/A | N/A | N/A | N/A | | |
| ISLANDEMS | Hospital GEN (EMS) | N/A | N/A | N/A | N/A | | |
| LIB | Library Sno-Isle GEN | N/A | N/A | N/A | N/A | | |
| NWHIDPRMT | P & R N Whidbey GEN | N/A | N/A | N/A | N/A | | |
| SCH201MO | School 201 Enrichment | N/A | N/A | N/A | N/A | | |
| ST | State School | N/A | N/A | N/A | N/A | | |
| ST2 | State School Part 2 | N/A | N/A | N/A | N/A | | |
| | Total Tax Rate: | N/A | | | | | |
| | | | | Taxes w/Current Exemptions: | N/A | | |
| | | | | Taxes w/o Exemptions: | N/A | | |
Improvement / Building
| Improvement #1: | RESIDENTIAL | State Code: | Y | 3687.0 sqft | Value: | N/A |
| Bathrooms: | 2.75 | Bedrooms: | 4 | | Ceiling: | DRYWALL PAINTED | Cooling: | HEAT PUMP/CONV/V | | Exterior Wall/Cover: | CEMENT FIBER | Floor Covering: | HARDWOOD/CARP 20-80 | | Floor Structure: | WOOD W/SUBFLOOR | Foundation: | CONCRETE | | Interior Finish: | DRYWALL PAINT | Plumbing Fixture Cnt: | 15 | | Roof Slope: | 6" IN 12" | Roof Structure/Cover: | CJ ASPHALT |
|
| | Type | Description | Class CD | Sub Class CD | Year Built | Area |
| | BAS | BASE/MAIN FLOOR | 3 | 0 | 2014 | 1590.5 |
| | UPS | UPPER STORY | 3 | 0 | 2014 | 2096.5 |
| | BIG | BUILT IN GARAGE | 3 | 0 | 2014 | 778.0 |
| | OWC | OPEN WOOD PORCH W/STEPS/ROOF/C | 3 | 0 | 2014 | 56.2 |
| | OWP | OPEN WOOD PORCH W/STEPS | 3 | 0 | 2014 | 224.1 |
| | UTY | STORAGE/UTILITY | 3 | 0 | 2014 | 200.0 |
| | OWC | OPEN WOOD PORCH W/STEPS/ROOF/C | 3 | 0 | 2014 | 210.0 |
Sketch
Property Image
Land
| 1 | 16 | AC (00.51-01.00) | 0.5200 | 22651.20 | 0.00 | 0.00 | 1.00 | N/A | N/A |
Roll Value History
| 2026 | N/A | N/A | N/A | N/A | N/A |
| 2025 | $541,526 | $225,000 | $0 | $766,526 | $766,526 |
| 2024 | $545,699 | $225,000 | $0 | $770,699 | $770,699 |
| 2023 | $550,172 | $200,000 | $0 | $750,172 | $750,172 |
| 2022 | $502,209 | $210,000 | $0 | $712,209 | $712,209 |
| 2021 | $419,227 | $130,000 | $0 | $549,227 | $549,227 |
| 2020 | $407,929 | $100,000 | $0 | $507,929 | $507,929 |
| 2019 | $342,177 | $170,000 | $0 | $512,177 | $512,177 |
| 2018 | $325,184 | $170,000 | $0 | $495,184 | $495,184 |
| 2017 | $326,885 | $115,000 | $0 | $441,885 | $441,885 |
| 2016 | $330,291 | $80,000 | $0 | $410,291 | $410,291 |
| 2015 | $333,696 | $70,000 | $0 | $403,696 | $403,696 |
| 2014 | $35,757 | $55,000 | $0 | $90,757 | $90,757 |
| 2013 | $0 | $60,000 | $0 | $60,000 | $60,000 |
| 2012 | $0 | $63,750 | $0 | $63,750 | $63,750 |
| 2011 | $0 | $75,000 | $0 | $75,000 | $75,000 |
| 2010 | $0 | $75,000 | $0 | $75,000 | $75,000 |
| 2009 | $0 | $18,000 | $0 | $18,000 | $18,000 |
Deed and Sales History
| 1 | 06/28/2021 | WD | Warranty Deed | GADDIE, PATRICK | SNOWBERGER, BLAIR J | | | $740,000.00 | 48973 | 4523295 |
| 2 | 02/09/2015 | WD | Warranty Deed | SEATTLE PACIFIC HOMES, INC | GADDIE, PATRICK | | | $389,900.00 | 18466 | 4373167 |
| 3 | 04/10/2014 | WD | Warranty Deed | RSM DEVELOPMENT INC | SEATTLE PACIFIC HOMES, INC | | | $120,000.00 | 15042 | 4358344 |
|   | |
| 4 | 01/01/1900 | OTHER | Other - Misc. Documents | Unknown | RSM DEVELOPMENT INC, | | | $0.00 | 0 | 0 |
Payout Agreement
| No payout information available.. |