Property
Account |
| Property ID: | 809995 | Abbreviated Legal Description: | IN GL2: BG E4/CR SEC 2 N1257' TP ON ML N81*W713.9' N652.4' TO CTR CO RD FOLL SD RD N75*W685' N85*W203' N87*W155.4' S72*W104' M/L TO JUNCTION OF LANGLEY RD, SANDY PT RD & CLINTON RD S4*W ALG CTR OF CO RD 282.5' S8*W ALG CTR OF CO RD 290' M/L TP ON NLN SAND |
| Geographic ID: | R32902-437-3070 | Agent Code: | |
| Type: | Real | | |
| Tax Area: | 712 - APPRAISER-S Whid Schl Dist, outside Langley, improved, greater than 1 acre | Land Use Code | 11 |
| Open Space: | N | DFL | N |
| Historic Property: | N | Remodel Property: | N |
| Multi-Family Redevelopment: | N | | |
| Township: | 29 | Section: | 02 |
| Range: | R3 |
Location |
| Address: | | Mapsco: | |
| Neighborhood: | Cycle 4 | Map ID: | 722 |
| Neighborhood CD: | 4 |
Owner |
| Name: | DOCTER TTEE, DAVID L | Owner ID: | 301557 |
| Mailing Address: | ALICIA D DOCTER TTEE PO BOX 909 LANGLEY, WA 98260 | % Ownership: | 100.0000000000% |
| | | Exemptions: | |
Taxes and Assessment Details
Values
| (+) Improvement Homesite Value: | + | $0 | |
| (+) Improvement Non-Homesite Value: | + | $453,984 | |
| (+) Land Homesite Value: | + | $0 | |
| (+) Land Non-Homesite Value: | + | $700,000 | |
| (+) Curr Use (HS): | + | $0 | $0 |
| (+) Curr Use (NHS): | + | $0 | $0 |
| | | -------------------------- | |
| (=) Market Value: | = | $1,153,984 | |
| (–) Productivity Loss: | – | $0 | |
| | | -------------------------- | |
| (=) Subtotal: | = | $1,153,984 | |
| (+) Senior Appraised Value: | + | $0 | |
| (+) Non-Senior Appraised Value: | + | $1,153,984 | |
| | | -------------------------- | |
| (=) Total Appraised Value: | = | $1,153,984 | |
| (–) Senior Exemption Loss: | – | $0 | |
| (–) Exemption Loss: | – | $0 | |
| | | -------------------------- | |
| (=) Taxable Value: | = | $1,153,984 | |
Taxing Jurisdiction
| Owner: | DOCTER TTEE, DAVID L | | |
| % Ownership: | 100.0000000000% | | |
| Total Value: | $1,153,984 | | |
| Tax Area: | 712 - APPRAISER-S Whid Schl Dist, outside Langley, improved, greater than 1 acre |
| CF | Conservation Futures | 0.0313996660 | $1,153,984 | $1,153,984 | $36.23 | | |
| FIRE3 | Fire & Rescue Dist #3 S Whidbey GEN | 1.2130821753 | $1,153,984 | $1,153,984 | $1,399.88 | | |
| HOBOND | Hospital BOND | 0.1893405597 | $1,153,984 | $1,153,984 | $218.50 | | |
| HOGEN | Hospital GEN | 0.3848777722 | $1,153,984 | $1,153,984 | $444.14 | | |
| CE | County Current Expense | 0.3674210519 | $1,153,984 | $1,153,984 | $424.00 | | |
| CR | County Roads | 0.4614296361 | $1,153,984 | $1,153,984 | $532.48 | | |
| ISLANDEMS | Hospital GEN (EMS) | 0.4952018576 | $1,153,984 | $1,153,984 | $571.46 | | |
| LIB | Library Sno-Isle GEN | 0.3039084203 | $1,153,984 | $1,153,984 | $350.71 | | |
| PORTWHID | Port of S Whidbey GEN | 0.1086004714 | $1,153,984 | $1,153,984 | $125.32 | | |
| SCH206BOND | School 206 BOND | 0.5960237832 | $1,153,984 | $1,153,984 | $687.80 | | |
| SCH206CAP | School 206 CP | 0.3066144020 | $1,153,984 | $1,153,984 | $353.83 | | |
| SCH206MO | School 206 Enrichment | 0.4808755445 | $1,153,984 | $1,153,984 | $554.92 | | |
| ST | State School | 1.4761226122 | $1,153,984 | $1,153,984 | $1,703.42 | | |
| ST2 | State School Part 2 | 0.7953803475 | $1,153,984 | $1,153,984 | $917.86 | | |
| SWHIDPRBD | P & R S Whidbey BOND | 0.0144185398 | $1,153,984 | $1,153,984 | $16.64 | | |
| SWHIDPRBD3 | P & R S Whidbey BOND3 | 0.1483535547 | $1,153,984 | $1,153,984 | $171.20 | | |
| SWHIDPRMT | P & R S Whidbey GEN | 0.4600000000 | $1,153,984 | $1,153,984 | $530.83 | | |
| | Total Tax Rate: | 7.8330503944 | | | | | |
| | | | | Taxes w/Current Exemptions: | $9,039.22 | | |
| | | | | Taxes w/o Exemptions: | $9,039.22 | | |
Improvement / Building
| Improvement #1: | RESIDENTIAL | State Code: | Y | 2425.0 sqft | Value: | $352,305 |
| Bathrooms: | 2 | Bedrooms: | 2 | | Ceiling: | DRYWALL PAINTED | Cooling: | HEAT PUMP/CONV/V | | Exterior Wall/Cover: | CEMENT FIBER | Floor Covering: | CARPET/VINYL 20-80 | | Floor Structure: | WOOD W/SUBFLOOR | Foundation: | CONCRETE | | Interior Finish: | DRYWALL PAINT | Plumbing Fixture Cnt: | 9 | | Roof Slope: | 12" IN 12" | Roof Structure/Cover: | CJ ASPHALT |
|
| | Type | Description | Class CD | Sub Class CD | Year Built | Area |
| | BAS | BASE/MAIN FLOOR | 4 | 0 | 1989 | 1344.0 |
| | UPS | UPPER STORY | 4 | 0 | 1989 | 821.0 |
| | OWP | OPEN WOOD PORCH W/STEPS | 4 | 0 | 1989 | 877.0 |
| | UPH | HALF STORY | 4 | 0 | 1989 | 260.0 |
| | oUTI | UTILITY | 4 | 0 | 1989 | 120.0 |
| Improvement #2: | RESIDENTIAL | State Code: | Y | 416.0 sqft | Value: | $101,679 |
| Bathrooms: | 1 | Bedrooms: | 1 | | Ceiling: | DRYWALL PAINTED | Exterior Wall/Cover: | PLY/HARDBOARD T-111 | | Floor Covering: | CARPET/VINYL 80-20 | Floor Structure: | WOOD W/SUBFLOOR | | Foundation: | CONCRETE | Heating: | WALL HEAT ELECTRIC | | Interior Finish: | DRYWALL PAINT | Plumbing Fixture Cnt: | 6 | | Roof Slope: | 12" IN 12" | Roof Structure/Cover: | CJ ALUMINIUM HEAVY |
|
| | Type | Description | Class CD | Sub Class CD | Year Built | Area |
| | BAS | BASE/MAIN FLOOR | 3 | 0 | 1989 | 416.0 |
| | BIG | BUILT IN GARAGE | 4 | 0 | 1989 | 624.0 |
| | OWP | OPEN WOOD PORCH W/STEPS | 4 | 0 | 1989 | 96.0 |
Sketch
Property Image
Land
| 1 | HB | HIGH BLUFF | 2.9100 | 126759.60 | 165.00 | 0.00 | 1.00 | $700,000 | $0 |
Roll Value History
| 2026 | N/A | N/A | N/A | N/A | N/A |
| 2025 | $453,984 | $700,000 | $0 | $1,153,984 | $1,153,984 |
| 2024 | $460,544 | $700,000 | $0 | $1,160,544 | $1,160,544 |
| 2023 | $467,104 | $700,000 | $0 | $1,167,104 | $1,167,104 |
| 2022 | $416,481 | $900,000 | $0 | $1,316,481 | $1,316,481 |
| 2021 | $367,299 | $800,000 | $0 | $1,167,299 | $1,167,299 |
| 2020 | $356,068 | $800,000 | $0 | $1,156,068 | $1,156,068 |
| 2019 | $263,849 | $800,000 | $0 | $1,063,849 | $1,063,849 |
| 2018 | $264,723 | $800,000 | $0 | $1,064,723 | $1,064,723 |
| 2017 | $266,475 | $800,000 | $0 | $1,066,475 | $1,066,475 |
| 2016 | $269,976 | $800,000 | $0 | $1,069,976 | $1,069,976 |
| 2015 | $273,474 | $850,000 | $0 | $1,123,474 | $1,123,474 |
| 2014 | $261,406 | $892,640 | $0 | $1,154,046 | $1,154,046 |
| 2013 | $264,232 | $892,640 | $0 | $1,156,872 | $1,156,872 |
| 2012 | $267,055 | $892,640 | $0 | $1,159,695 | $1,159,695 |
| 2011 | $269,880 | $991,822 | $0 | $1,261,702 | $1,261,702 |
| 2010 | $281,637 | $991,822 | $0 | $1,273,459 | $1,273,459 |
| 2009 | $311,396 | $934,189 | $0 | $1,245,585 | $1,245,585 |
| 2008 | $0 | $0 | $0 | $1,229,090 | $1,229,090 |
Deed and Sales History
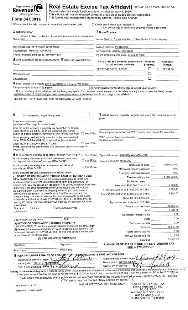
| 1 | 09/30/2021 | WD | Warranty Deed | ABERCROMBIE, STEVEN J | DOCTER TTEE, DAVID L | | | $1,800,000.00 | 50382 | 4530951 |
| 2 | 11/06/2017 | QCD | Quit Claim Deed | ABERCROMBIE, STEVEN J | | | | | 31839 | 4433704 |
| 3 | 09/30/2009 | BLA | DNU - Boundary Line Adjustment | ABERCROMBIE, STEVEN J | ABERCROMBIE, STEVEN J | | | $0.00 | 81381 | 4237841 |
| 4 | 09/04/2009 | BLA | DNU - Boundary Line Adjustment | Unknown | ABERCROMBIE, STEVEN J | | | $0.00 | 81364 | 4221638 |
| 5 | 05/22/2008 | ESTSEPPROP | Establish Separate Property | ABERCROMBIE, STEVEN J | ABERCROMBIE, STEVEN J | | | $0.00 | 81295 | 4229202 |
| 6 | 03/25/2008 | ESTSEPPROP | Establish Separate Property | ABERCROMBIE, STEVEN J | ABERCROMBIE, STEVEN J | | | $0.00 | 81296 | 4229203 |
Payout Agreement
| No payout information available.. |