Property
Account |
| Property ID: | 810101 | Abbreviated Legal Description: | TRACT C SP 355-07.13204-260-0350 AF#4264013 |
| Geographic ID: | R13204-250-0470 | Agent Code: | |
| Type: | Real | | |
| Tax Area: | 169 - APPRAISER-OH Schl Dist, Special Dist, vacant & 50 acres or less | Land Use Code | 91 |
| Open Space: | N | DFL | N |
| Historic Property: | N | Remodel Property: | N |
| Multi-Family Redevelopment: | N | | |
| Township: | 32 | Section: | 04 |
| Range: | R1 |
Location |
| Address: | | Mapsco: | |
| Neighborhood: | Cycle 1 | Map ID: | 94 |
| Neighborhood CD: | 1 |
Owner |
| Name: | LINN, CLAUD O | Owner ID: | 294816 |
| Mailing Address: | BONITA J LINN 1560 WEDGEWOOD LN OAK HARBOR, WA 98277 | % Ownership: | 100.0000000000% |
| | | Exemptions: | |
Taxes and Assessment Details
Values
| (+) Improvement Homesite Value: | + | $0 | |
| (+) Improvement Non-Homesite Value: | + | $0 | |
| (+) Land Homesite Value: | + | $0 | |
| (+) Land Non-Homesite Value: | + | $12,000 | |
| (+) Curr Use (HS): | + | $0 | $0 |
| (+) Curr Use (NHS): | + | $0 | $0 |
| | | -------------------------- | |
| (=) Market Value: | = | $12,000 | |
| (–) Productivity Loss: | – | $0 | |
| | | -------------------------- | |
| (=) Subtotal: | = | $12,000 | |
| (+) Senior Appraised Value: | + | $0 | |
| (+) Non-Senior Appraised Value: | + | $12,000 | |
| | | -------------------------- | |
| (=) Total Appraised Value: | = | $12,000 | |
| (–) Senior Exemption Loss: | – | $0 | |
| (–) Exemption Loss: | – | $0 | |
| | | -------------------------- | |
| (=) Taxable Value: | = | $12,000 | |
Taxing Jurisdiction
| Owner: | LINN, CLAUD O | | |
| % Ownership: | 100.0000000000% | | |
| Total Value: | $12,000 | | |
| Tax Area: | 169 - APPRAISER-OH Schl Dist, Special Dist, vacant & 50 acres or less |
| CF | Conservation Futures | 0.0313996660 | $12,000 | $12,000 | $0.38 | | |
| CEM1 | Cemetery #1 | 0.0040018856 | $12,000 | $12,000 | $0.05 | | |
| HOBOND | Hospital BOND | 0.1893405597 | $12,000 | $12,000 | $2.27 | | |
| HOGEN | Hospital GEN | 0.3848777722 | $12,000 | $12,000 | $4.62 | | |
| CE | County Current Expense | 0.3674210519 | $12,000 | $12,000 | $4.41 | | |
| CR | County Roads | 0.4614296361 | $12,000 | $12,000 | $5.54 | | |
| ISLANDEMS | Hospital GEN (EMS) | 0.4952018576 | $12,000 | $12,000 | $5.94 | | |
| LIB | Library Sno-Isle GEN | 0.3039084203 | $12,000 | $12,000 | $3.65 | | |
| NWHIDPRMT | P & R N Whidbey GEN | 0.1990272349 | $12,000 | $12,000 | $2.39 | | |
| SCH201MO | School 201 Enrichment | 2.3851112745 | $12,000 | $12,000 | $28.62 | | |
| ST | State School | 1.4761226122 | $12,000 | $12,000 | $17.71 | | |
| ST2 | State School Part 2 | 0.7953803475 | $12,000 | $12,000 | $9.54 | | |
| | Total Tax Rate: | 7.0932223185 | | | | | |
| | | | | Taxes w/Current Exemptions: | $85.12 | | |
| | | | | Taxes w/o Exemptions: | $85.12 | | |
Improvement / Building
Sketch
| No sketches available for this property. |
Property Image
Land
| 1 | 17 | AC (01.01-02.00) | 0.0000 | 0.00 | 0.00 | 0.00 | 1.00 | $12,000 | $0 |
Roll Value History
| 2026 | N/A | N/A | N/A | N/A | N/A |
| 2025 | $0 | $12,000 | $0 | $12,000 | $12,000 |
| 2024 | $0 | $12,000 | $0 | $12,000 | $12,000 |
| 2023 | $0 | $9,000 | $0 | $9,000 | $9,000 |
| 2022 | $0 | $9,000 | $0 | $9,000 | $9,000 |
| 2021 | $0 | $7,000 | $0 | $7,000 | $7,000 |
| 2020 | $0 | $5,000 | $0 | $5,000 | $5,000 |
| 2019 | $0 | $5,000 | $0 | $5,000 | $5,000 |
| 2018 | $0 | $5,000 | $0 | $5,000 | $5,000 |
| 2017 | $0 | $5,000 | $0 | $5,000 | $5,000 |
| 2016 | $0 | $5,000 | $0 | $5,000 | $5,000 |
| 2015 | $0 | $5,000 | $0 | $5,000 | $5,000 |
| 2014 | $0 | $12,750 | $0 | $12,750 | $12,750 |
| 2013 | $0 | $12,750 | $0 | $12,750 | $12,750 |
| 2012 | $0 | $12,750 | $0 | $12,750 | $12,750 |
| 2011 | $0 | $15,000 | $0 | $15,000 | $15,000 |
| 2010 | $0 | $15,000 | $0 | $15,000 | $15,000 |
| 2009 | $0 | $0 | $0 | $17,566 | $17,566 |
Deed and Sales History
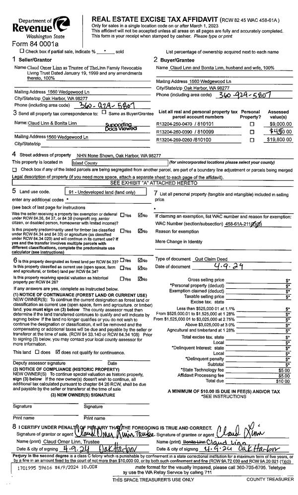
| 1 | 04/09/2024 | QCD | Quit Claim Deed | THE LINN FAMILY REVOCABLE LIVING TRUST | LINN, CLAUD O | | | $0.00 | 59616 | 4571082 |
| 2 | 11/18/2011 | QCD | Quit Claim Deed | LINN, CLAUD O | THE LINN FAMILY REVOCABLE LIVING TRUST | | | $0.00 | 6592 | 4307797 |
| 3 | 01/01/1900 | OTHER | Other - Misc. Documents | Unknown | LINN, CLAUD O | | | $0.00 | 0 | 0 |
Payout Agreement
| No payout information available.. |