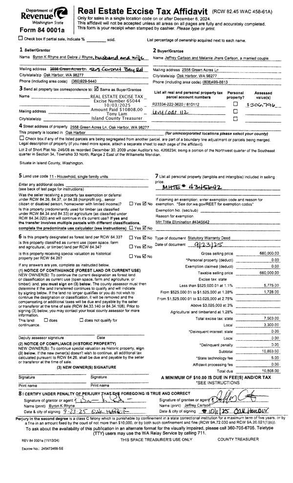
Property
Account |
| Property ID: | 810112 | Abbreviated Legal Description: | LOT 2 |
| Geographic ID: | R23334-222-3620 | Agent Code: | |
| Type: | Real | | |
| Tax Area: | 112 - APPRAISER-OH Schl Dist, outside OH, improved, greater than 1 acre | Land Use Code | 11 |
| Open Space: | N | DFL | N |
| Historic Property: | N | Remodel Property: | N |
| Multi-Family Redevelopment: | N | | |
| Township: | 33 | Section: | 34 |
| Range: | R2 |
Location |
| Address: | 2558 GREEN ACRES LN OAK HARBOR, WA 98277 | Mapsco: | |
| Neighborhood: | Cycle 6 | Map ID: | 656 |
| Neighborhood CD: | 6 |
Owner |
| Name: | RHYNE, BYRON K | Owner ID: | 261357 |
| Mailing Address: | DEBRA J RHYNE 2558 GREEN ACRES LN OAK HARBOR, WA 98277 | % Ownership: | 100.0000000000% |
| | | Exemptions: | |
Taxes and Assessment Details
Values
| (+) Improvement Homesite Value: | + | $0 | |
| (+) Improvement Non-Homesite Value: | + | $206,796 | |
| (+) Land Homesite Value: | + | $0 | |
| (+) Land Non-Homesite Value: | + | $300,000 | |
| (+) Curr Use (HS): | + | $0 | $0 |
| (+) Curr Use (NHS): | + | $0 | $0 |
| | | -------------------------- | |
| (=) Market Value: | = | $506,796 | |
| (–) Productivity Loss: | – | $0 | |
| | | -------------------------- | |
| (=) Subtotal: | = | $506,796 | |
| (+) Senior Appraised Value: | + | $0 | |
| (+) Non-Senior Appraised Value: | + | $506,796 | |
| | | -------------------------- | |
| (=) Total Appraised Value: | = | $506,796 | |
| (–) Senior Exemption Loss: | – | $0 | |
| (–) Exemption Loss: | – | $0 | |
| | | -------------------------- | |
| (=) Taxable Value: | = | $506,796 | |
Taxing Jurisdiction
| Owner: | RHYNE, BYRON K | | |
| % Ownership: | 100.0000000000% | | |
| Total Value: | $506,796 | | |
| Tax Area: | 112 - APPRAISER-OH Schl Dist, outside OH, improved, greater than 1 acre |
| CF | Conservation Futures | 0.0313996660 | $506,796 | $506,796 | $15.91 | | |
| CEM1 | Cemetery #1 | 0.0040018856 | $506,796 | $506,796 | $2.03 | | |
| FIRE2 | Fire & Rescue Dist #2 N Whidbey GEN | 0.5381486274 | $506,796 | $506,796 | $272.73 | | |
| HOBOND | Hospital BOND | 0.1893405597 | $506,796 | $506,796 | $95.96 | | |
| HOGEN | Hospital GEN | 0.3848777722 | $506,796 | $506,796 | $195.05 | | |
| CE | County Current Expense | 0.3674210519 | $506,796 | $506,796 | $186.21 | | |
| CR | County Roads | 0.4614296361 | $506,796 | $506,796 | $233.85 | | |
| ISLANDEMS | Hospital GEN (EMS) | 0.4952018576 | $506,796 | $506,796 | $250.97 | | |
| LIB | Library Sno-Isle GEN | 0.3039084203 | $506,796 | $506,796 | $154.02 | | |
| NWHIDPRMT | P & R N Whidbey GEN | 0.1990272349 | $506,796 | $506,796 | $100.87 | | |
| SCH201MO | School 201 Enrichment | 2.3851112745 | $506,796 | $506,796 | $1,208.76 | | |
| ST | State School | 1.4761226122 | $506,796 | $506,796 | $748.09 | | |
| ST2 | State School Part 2 | 0.7953803475 | $506,796 | $506,796 | $403.10 | | |
| | Total Tax Rate: | 7.6313709459 | | | | | |
| | | | | Taxes w/Current Exemptions: | $3,867.55 | | |
| | | | | Taxes w/o Exemptions: | $3,867.55 | | |
Improvement / Building
| Improvement #1: | MANUFACTURED HOME | State Code: | Y | 1778.0 sqft | Value: | $206,796 |
| Bathrooms: | 2 | Bedrooms: | 3 | | Ceiling: | PLASTER PAINTED | Exterior Wall/Cover: | CEMENT FIBER | | Floor Covering: | LAMINATE/LVP | Floor Structure: | WOOD W/SUBFLOOR | | Foundation: | CONCRETE | Heating: | HEAT PUMP | | Interior Finish: | PLASTER | Plumbing Fixture Cnt: | 1 | | Roof Slope: | 4" IN 12" | Roof Structure/Cover: | CJ ASPHALT |
|
| | Type | Description | Class CD | Sub Class CD | Year Built | Area |
| | BAS | BASE/MAIN FLOOR | 4 | 0 | 2012 | 1778.0 |
| | oPOL | POLE BARN | 4 | 0 | 2012 | 1200.0 |
| | OWR | OPEN WOOD PORCH W/STEPS/ROOF | 4 | 0 | 2012 | 500.0 |
| | OWP | OPEN WOOD PORCH W/STEPS | 4 | 0 | 2012 | 24.0 |
Sketch
| No sketches available for this property. |
Property Image
Land
| 1 | 32 | AC (03.01-09.99) | 5.0100 | 0.00 | 0.00 | 0.00 | 1.00 | $300,000 | $0 |
Roll Value History
| 2026 | N/A | N/A | N/A | N/A | N/A |
| 2025 | $206,796 | $300,000 | $0 | $506,796 | $506,796 |
| 2024 | $207,136 | $280,000 | $0 | $487,136 | $487,136 |
| 2023 | $184,124 | $270,000 | $0 | $454,124 | $454,124 |
| 2022 | $156,846 | $240,000 | $0 | $396,846 | $396,846 |
| 2021 | $139,517 | $160,000 | $0 | $299,517 | $110,769 |
| 2020 | $136,922 | $140,000 | $0 | $276,922 | $110,769 |
| 2019 | $110,327 | $200,000 | $0 | $310,327 | $310,327 |
| 2018 | $111,525 | $170,000 | $0 | $281,525 | $281,525 |
| 2017 | $112,724 | $150,000 | $0 | $262,724 | $262,724 |
| 2016 | $123,033 | $140,000 | $0 | $263,033 | $263,033 |
| 2015 | $124,054 | $120,000 | $0 | $244,054 | $244,054 |
| 2014 | $125,076 | $100,200 | $0 | $225,276 | $225,276 |
| 2013 | $82,880 | $65,130 | $0 | $148,010 | $148,010 |
| 2012 | $0 | $100,200 | $0 | $100,200 | $100,200 |
| 2011 | $0 | $100,200 | $0 | $100,200 | $100,200 |
| 2010 | $0 | $100,200 | $0 | $100,200 | $100,200 |
Deed and Sales History
| 1 | 09/23/2025 | WD | Warranty Deed | RHYNE, BYRON K | CARLSON, JEFFREY | | | $660,000.00 | 65044 | 4591778 |
| 2 | 03/19/2013 | WD | Warranty Deed | WESTGATE MOBILE HOMES INC | RHYNE, BYRON K | | | $263,290.00 | 10879 | 4336756 |
| 3 | 01/01/1900 | OTHER | Other - Misc. Documents | Unknown | WESTGATE MOBILE HOMES INC, | | | $0.00 | 0 | 0 |
Payout Agreement
| No payout information available.. |