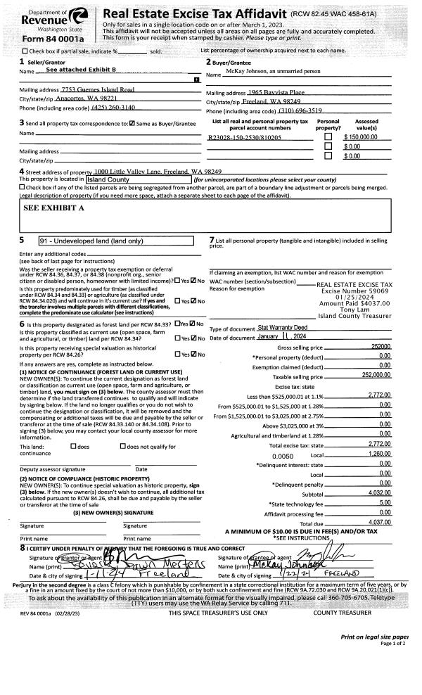
Property
Account |
| Property ID: | 810205 | Abbreviated Legal Description: | LOT 4 SP 357-07.23028.168-2040 AF # 4275279 |
| Geographic ID: | R23028-150-2530 | Agent Code: | |
| Type: | Real | | |
| Tax Area: | 312 - APPRAISER-Cpvl Schl Dist, outside Cpvl, improved, greater than 1 acre | Land Use Code | 11 |
| Open Space: | N | DFL | N |
| Historic Property: | N | Remodel Property: | N |
| Multi-Family Redevelopment: | N | | |
| Township: | 30 | Section: | 28 |
| Range: | R2 |
Location |
| Address: | 1000 LITTLE VALLEY LN FREELAND, WA 98249 | Mapsco: | |
| Neighborhood: | Cycle 3 | Map ID: | 421 |
| Neighborhood CD: | 3 |
Owner |
| Name: | JOHNSON, MCKAY | Owner ID: | 311262 |
| Mailing Address: | 1965 BAYVISTA PL FREELAND, WA 98249 | % Ownership: | 100.0000000000% |
| | | Exemptions: | |
Taxes and Assessment Details
Values
| (+) Improvement Homesite Value: | + | $0 | |
| (+) Improvement Non-Homesite Value: | + | $121,117 | |
| (+) Land Homesite Value: | + | $0 | |
| (+) Land Non-Homesite Value: | + | $197,500 | |
| (+) Curr Use (HS): | + | $0 | $0 |
| (+) Curr Use (NHS): | + | $0 | $0 |
| | | -------------------------- | |
| (=) Market Value: | = | $318,617 | |
| (–) Productivity Loss: | – | $0 | |
| | | -------------------------- | |
| (=) Subtotal: | = | $318,617 | |
| (+) Senior Appraised Value: | + | $0 | |
| (+) Non-Senior Appraised Value: | + | $318,617 | |
| | | -------------------------- | |
| (=) Total Appraised Value: | = | $318,617 | |
| (–) Senior Exemption Loss: | – | $0 | |
| (–) Exemption Loss: | – | $0 | |
| | | -------------------------- | |
| (=) Taxable Value: | = | $318,617 | |
Taxing Jurisdiction
| Owner: | JOHNSON, MCKAY | | |
| % Ownership: | 100.0000000000% | | |
| Total Value: | $318,617 | | |
| Tax Area: | 312 - APPRAISER-Cpvl Schl Dist, outside Cpvl, improved, greater than 1 acre |
| CF | Conservation Futures | 0.0313996660 | $318,617 | $318,617 | $10.00 | | |
| CEM2 | Cemetery #2 | 0.0092609791 | $318,617 | $318,617 | $2.95 | | |
| FIRE5 | Fire & Rescue Dist #5 C Whidbey GEN | 1.1892169230 | $318,617 | $318,617 | $378.90 | | |
| FIRE5BOND | Fire & Rescue Dist #5 C Whidbey BOND | 0.1394359503 | $318,617 | $318,617 | $44.43 | | |
| HOBOND | Hospital BOND | 0.1893405597 | $318,617 | $318,617 | $60.33 | | |
| HOGEN | Hospital GEN | 0.3848777722 | $318,617 | $318,617 | $122.63 | | |
| CE | County Current Expense | 0.3674210519 | $318,617 | $318,617 | $117.07 | | |
| CR | County Roads | 0.4614296361 | $318,617 | $318,617 | $147.02 | | |
| ISLANDEMS | Hospital GEN (EMS) | 0.4952018576 | $318,617 | $318,617 | $157.78 | | |
| LIB | Library Sno-Isle GEN | 0.3039084203 | $318,617 | $318,617 | $96.83 | | |
| LIBCAP | Library Sno-Isle BOND (Cap Fac Imp Area) | 0.0528562629 | $318,617 | $318,617 | $16.84 | | |
| POCOUP | Port of Coupeville GEN | 0.1065226063 | $318,617 | $318,617 | $33.94 | | |
| POCOUPIDD | Port of Coupeville IDD | 0.3353038577 | $318,617 | $318,617 | $106.83 | | |
| COUPSDTECH | School 204 CP (TECH) | 0.1215123397 | $318,617 | $318,617 | $38.72 | | |
| SCH204MO | School 204 Enrichment | 0.6416662518 | $318,617 | $318,617 | $204.45 | | |
| ST | State School | 1.4761226122 | $318,617 | $318,617 | $470.32 | | |
| ST2 | State School Part 2 | 0.7953803475 | $318,617 | $318,617 | $253.42 | | |
| | Total Tax Rate: | 7.1008570943 | | | | | |
| | | | | Taxes w/Current Exemptions: | $2,262.46 | | |
| | | | | Taxes w/o Exemptions: | $2,262.46 | | |
Improvement / Building
| Improvement #1: | RESIDENTIAL | State Code: | Y | 1911.0 sqft | Value: | $121,117 |
| Bathrooms: | 2 | Bedrooms: | 3 | | Ceiling: | DRYWALL PAINTED | Exterior Wall/Cover: | CEMENT FIBER | | Floor Covering: | (NONE) | Floor Structure: | SLAB ON GRADE | | Foundation: | SLAB | Heating: | HEAT PUMP | | Interior Finish: | DRYWALL PAINT | Plumbing Fixture Cnt: | 10 | | Roof Slope: | 6" IN 12" | Roof Structure/Cover: | STEEL TERNE |
|
| | Type | Description | Class CD | Sub Class CD | Year Built | Area |
| | BAS | BASE/MAIN FLOOR | 4 | 0 | 2025 | 1155.0 |
| | UPS | UPPER STORY | 4 | 0 | 2025 | 528.0 |
| | AGR | ATTACHED GARAGE | 4 | 0 | 2025 | 624.0 |
| | LOF | LOFT | 4 | 0 | 2025 | 228.0 |
| | OWP | OPEN WOOD PORCH W/STEPS | 4 | 0 | 2025 | 656.5 |
| | OP2 | OPEN PORCH W/STEPS | 4 | 0 | 2025 | 54.0 |
Sketch
| No sketches available for this property. |
Property Image
Land
| 1 | 18 | AC (02.01-03.00) | 2.5400 | 110642.40 | 0.00 | 0.00 | 1.00 | $197,500 | $0 |
Roll Value History
| 2026 | N/A | N/A | N/A | N/A | N/A |
| 2025 | $121,117 | $197,500 | $0 | $318,617 | $318,617 |
| 2024 | $0 | $160,000 | $0 | $160,000 | $160,000 |
| 2023 | $0 | $150,000 | $0 | $150,000 | $150,000 |
| 2022 | $0 | $150,000 | $0 | $150,000 | $150,000 |
| 2021 | $0 | $115,000 | $0 | $115,000 | $115,000 |
| 2020 | $0 | $90,000 | $0 | $90,000 | $90,000 |
| 2019 | $0 | $110,000 | $0 | $110,000 | $110,000 |
| 2018 | $0 | $85,000 | $0 | $85,000 | $85,000 |
| 2017 | $0 | $75,000 | $0 | $75,000 | $75,000 |
| 2016 | $0 | $100,000 | $0 | $100,000 | $100,000 |
| 2015 | $0 | $100,000 | $0 | $100,000 | $100,000 |
| 2014 | $0 | $55,000 | $0 | $55,000 | $55,000 |
| 2013 | $0 | $28,067 | $0 | $28,067 | $28,067 |
| 2012 | $0 | $28,067 | $0 | $28,067 | $28,067 |
| 2011 | $0 | $33,020 | $0 | $33,020 | $33,020 |
| 2010 | $0 | $33,020 | $0 | $33,020 | $33,020 |
Deed and Sales History
| 1 | 01/11/2024 | WD | Warranty Deed | MERTENS, BEVERLY DAWN | JOHNSON, MCKAY | | | $252,000.00 | 59069 | 4568826 |
| 2 | 06/18/2020 | WD | Warranty Deed | WELCOME, JESSE JAMES | MERTENS, BEVERLY DAWN | | | $115,000.00 | 43498 | 4489590 |
| 3 | 01/01/1900 | OTHER | Other - Misc. Documents | Unknown | WELCOME, JESSE JAMES | | | $0.00 | 0 | 0 |
Payout Agreement
| No payout information available.. |