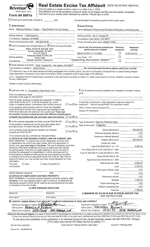
Property
Account |
| Property ID: | 810269 | Abbreviated Legal Description: | FROSTAD ROAD - ASSESSORS PLAT LOT 11 26 - IN GL 3 132/145 EZ PSPL A#95592 |
| Geographic ID: | S8542-00-00011-0 | Agent Code: | |
| Type: | Real | | |
| Tax Area: | 110 - APPRAISER-OH Schl Dist, outside OH, improved & 1 acre or less | Land Use Code | 11 |
| Open Space: | N | DFL | N |
| Historic Property: | N | Remodel Property: | N |
| Multi-Family Redevelopment: | N | | |
| Township: | | Section: | |
| Range: | |
Location |
| Address: | | Mapsco: | |
| Neighborhood: | Cycle 6 | Map ID: | 606 |
| Neighborhood CD: | 6 |
Owner |
| Name: | ROMANS, MATTHEW D | Owner ID: | 314318 |
| Mailing Address: | CHRISTINE M ROMANS 194 E FROSTAD RD OAK HARBOR, WA 98277 | % Ownership: | 100.0000000000% |
| | | Exemptions: | |
Taxes and Assessment Details
Values
| (+) Improvement Homesite Value: | + | $0 | |
| (+) Improvement Non-Homesite Value: | + | $196,430 | |
| (+) Land Homesite Value: | + | $0 | |
| (+) Land Non-Homesite Value: | + | $250,000 | |
| (+) Curr Use (HS): | + | $0 | $0 |
| (+) Curr Use (NHS): | + | $0 | $0 |
| | | -------------------------- | |
| (=) Market Value: | = | $446,430 | |
| (–) Productivity Loss: | – | $0 | |
| | | -------------------------- | |
| (=) Subtotal: | = | $446,430 | |
| (+) Senior Appraised Value: | + | $0 | |
| (+) Non-Senior Appraised Value: | + | $446,430 | |
| | | -------------------------- | |
| (=) Total Appraised Value: | = | $446,430 | |
| (–) Senior Exemption Loss: | – | $0 | |
| (–) Exemption Loss: | – | $0 | |
| | | -------------------------- | |
| (=) Taxable Value: | = | $446,430 | |
Taxing Jurisdiction
| Owner: | ROMANS, MATTHEW D | | |
| % Ownership: | 100.0000000000% | | |
| Total Value: | $446,430 | | |
| Tax Area: | 110 - APPRAISER-OH Schl Dist, outside OH, improved & 1 acre or less |
| CF | Conservation Futures | 0.0313996660 | $446,430 | $446,430 | $14.02 | | |
| CEM1 | Cemetery #1 | 0.0040018856 | $446,430 | $446,430 | $1.79 | | |
| FIRE2 | Fire & Rescue Dist #2 N Whidbey GEN | 0.5381486274 | $446,430 | $446,430 | $240.25 | | |
| HOBOND | Hospital BOND | 0.1893405597 | $446,430 | $446,430 | $84.53 | | |
| HOGEN | Hospital GEN | 0.3848777722 | $446,430 | $446,430 | $171.82 | | |
| CE | County Current Expense | 0.3674210519 | $446,430 | $446,430 | $164.03 | | |
| CR | County Roads | 0.4614296361 | $446,430 | $446,430 | $206.00 | | |
| ISLANDEMS | Hospital GEN (EMS) | 0.4952018576 | $446,430 | $446,430 | $221.07 | | |
| LIB | Library Sno-Isle GEN | 0.3039084203 | $446,430 | $446,430 | $135.67 | | |
| NWHIDPRMT | P & R N Whidbey GEN | 0.1990272349 | $446,430 | $446,430 | $88.85 | | |
| SCH201MO | School 201 Enrichment | 2.3851112745 | $446,430 | $446,430 | $1,064.79 | | |
| ST | State School | 1.4761226122 | $446,430 | $446,430 | $658.99 | | |
| ST2 | State School Part 2 | 0.7953803475 | $446,430 | $446,430 | $355.08 | | |
| | Total Tax Rate: | 7.6313709459 | | | | | |
| | | | | Taxes w/Current Exemptions: | $3,406.89 | | |
| | | | | Taxes w/o Exemptions: | $3,406.89 | | |
Improvement / Building
| Improvement #1: | RESIDENTIAL | State Code: | Y | 1210.0 sqft | Value: | $196,430 |
| Bathrooms: | 1 | Bedrooms: | 3 | | Ceiling: | ACOUSTIC FURRED | Exterior Wall/Cover: | VINYL | | Floor Covering: | CARPET/VINYL 80-20 | Floor Structure: | WOOD W/SUBFLOOR | | Foundation: | CONCRETE | Heating: | FHA GAS | | Interior Finish: | DRYWALL PAINT | Plumbing Fixture Cnt: | 6 | | Roof Slope: | 6" IN 12" | Roof Structure/Cover: | CJ ASPHALT |
|
| | Type | Description | Class CD | Sub Class CD | Year Built | Area |
| | BAS | BASE/MAIN FLOOR | 3 | 0 | 1953 | 1210.0 |
| | UB6 | BASEMENT UNFINISHED 6" | 3 | 0 | 1953 | 308.0 |
| | OWP | OPEN WOOD PORCH W/STEPS | 3 | 0 | 1953 | 250.5 |
| | OWC | OPEN WOOD PORCH W/STEPS/ROOF/C | 3 | 0 | 1953 | 72.0 |
Sketch
| No sketches available for this property. |
Property Image
Land
| 1 | 16 | AC (00.51-01.00) | 0.9400 | 40946.40 | 0.00 | 0.00 | 1.00 | $250,000 | $0 |
Roll Value History
| 2026 | N/A | N/A | N/A | N/A | N/A |
| 2025 | $196,430 | $250,000 | $0 | $446,430 | $446,430 |
| 2024 | $177,032 | $220,000 | $0 | $397,032 | $397,032 |
| 2023 | $179,552 | $220,000 | $0 | $399,552 | $399,552 |
| 2022 | $144,329 | $220,000 | $0 | $364,329 | $364,329 |
| 2021 | $127,488 | $160,000 | $0 | $287,488 | $287,488 |
| 2020 | $124,820 | $160,000 | $0 | $284,820 | $284,820 |
| 2019 | $89,809 | $180,000 | $0 | $269,809 | $269,809 |
| 2018 | $95,562 | $150,000 | $0 | $245,562 | $245,562 |
| 2017 | $96,281 | $125,000 | $0 | $221,281 | $221,281 |
| 2016 | $50,311 | $120,000 | $0 | $170,311 | $170,311 |
| 2015 | $51,480 | $80,000 | $0 | $131,480 | $131,480 |
| 2014 | $52,651 | $80,000 | $0 | $132,651 | $132,651 |
| 2013 | $53,821 | $79,943 | $0 | $133,764 | $133,764 |
| 2012 | $54,990 | $79,943 | $0 | $134,933 | $134,933 |
| 2011 | $56,161 | $94,050 | $0 | $150,211 | $150,211 |
| 2010 | $65,152 | $94,050 | $0 | $159,202 | $159,202 |
Deed and Sales History
| 1 | 10/21/2024 | WD | Warranty Deed | ROBBINS TTEE, REBECCA | ROMANS, MATTHEW D | | | $460,000.00 | 61645 | 4578539 |
| 2 | 06/08/2024 | QCD | Quit Claim Deed | ROBBINS, REBECCA ALICE | ROBBINS TTEE, REBECCA | | | $0.00 | 60431 | 4573848 |
| 3 | 06/08/2024 | QCD | Quit Claim Deed | ROBBINS, ROBIN K | ROBBINS, REBECCA ALICE | | | $0.00 | 60430 | 4573847 |
| 4 | 01/25/2020 | QCD | Quit Claim Deed | AUSTIN, MICHAEL DAVID | ROBBINS, ROBIN K | | | $0.00 | 41939 | 4480313 |
| 5 | 01/27/2020 | WD | Warranty Deed | CAREY, JOHN | ROBBINS, ROBIN K | | | $305,000.00 | 41938 | 4480312 |
| 6 | 08/30/2018 | WD | Warranty Deed | LAM, STEVEN A | CAREY, JOHN | | | $180,000.00 | 35745 | 4451040 |
| 7 | 11/24/2010 | QCD | Quit Claim Deed | LAM, STEVEN A | LAM, STEVEN A | | | $0.00 | 3930 | 4292654 |
| 8 | 11/24/2010 | QCD | Quit Claim Deed | LAM, STEVEN A | LAM, STEVEN A | | | $0.00 | 3929 | 4292655 |
| 9 | 11/24/2010 | QCD | Quit Claim Deed | LAM, STEVEN A | LAM, STEVEN A | | | $0.00 | 3928 | 4292656 |
| 10 | 11/24/2010 | QCD | Quit Claim Deed | LAM, STEVEN A | LAM, STEVEN A | | | $0.00 | 3927 | 4292657 |
| 11 | 01/01/1900 | OTHER | Other - Misc. Documents | Unknown | LAM, STEVEN A | | | $0.00 | 0 | 0 |
Payout Agreement
| No payout information available.. |