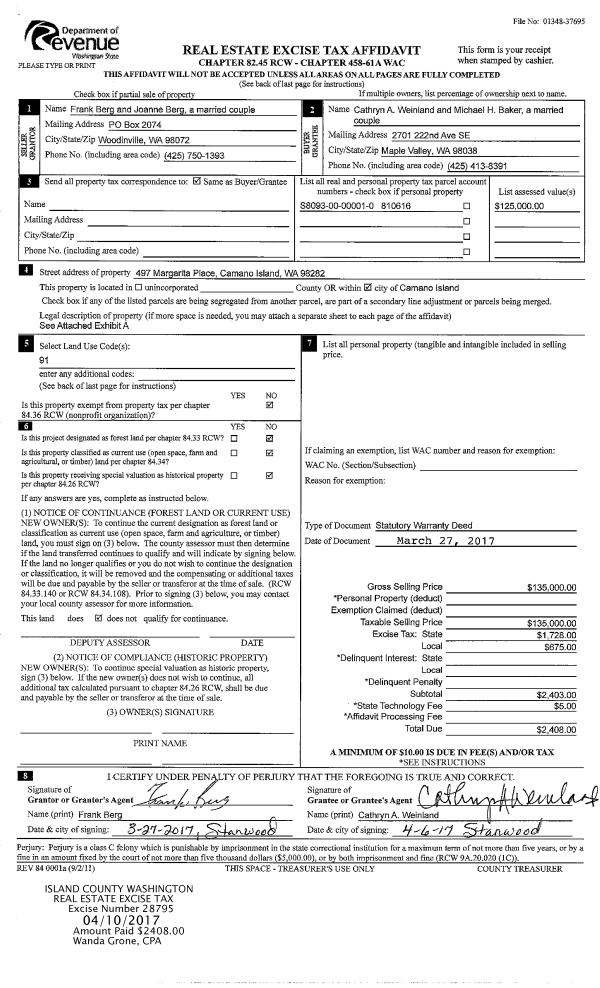
Property
Account |
| Property ID: | 810616 | Abbreviated Legal Description: | SARATOGA HILLS PRD LOT 1 |
| Geographic ID: | S8093-00-00001-0 | Agent Code: | |
| Type: | Real | | |
| Tax Area: | 510 - APPRAISER-Stan/Cam Schl Dist, improved & 1 acre or less | Land Use Code | 11 |
| Open Space: | N | DFL | N |
| Historic Property: | N | Remodel Property: | N |
| Multi-Family Redevelopment: | N | | |
| Township: | 31 | Section: | 12 |
| Range: | R2 |
Location |
| Address: | 497 MARGARITA PLACE CAMANO ISLAND, WA 98282 | Mapsco: | |
| Neighborhood: | Cycle 5 | Map ID: | 475 |
| Neighborhood CD: | 5 |
Owner |
| Name: | WEINLAND, CATHRYN A | Owner ID: | 279350 |
| Mailing Address: | MICHAEL H BAKER 497 MARGARITA PLACE CAMANO ISLAND, WA 98282 | % Ownership: | 100.0000000000% |
| | | Exemptions: | |
Taxes and Assessment Details
Values
| (+) Improvement Homesite Value: | + | $0 | |
| (+) Improvement Non-Homesite Value: | + | $544,502 | |
| (+) Land Homesite Value: | + | $0 | |
| (+) Land Non-Homesite Value: | + | $240,000 | |
| (+) Curr Use (HS): | + | $0 | $0 |
| (+) Curr Use (NHS): | + | $0 | $0 |
| | | -------------------------- | |
| (=) Market Value: | = | $784,502 | |
| (–) Productivity Loss: | – | $0 | |
| | | -------------------------- | |
| (=) Subtotal: | = | $784,502 | |
| (+) Senior Appraised Value: | + | $0 | |
| (+) Non-Senior Appraised Value: | + | $784,502 | |
| | | -------------------------- | |
| (=) Total Appraised Value: | = | $784,502 | |
| (–) Senior Exemption Loss: | – | $0 | |
| (–) Exemption Loss: | – | $0 | |
| | | -------------------------- | |
| (=) Taxable Value: | = | $784,502 | |
Taxing Jurisdiction
| Owner: | WEINLAND, CATHRYN A | | |
| % Ownership: | 100.0000000000% | | |
| Total Value: | $784,502 | | |
| Tax Area: | 510 - APPRAISER-Stan/Cam Schl Dist, improved & 1 acre or less |
| CF | Conservation Futures | 0.0313996660 | $784,502 | $784,502 | $24.63 | | |
| EMS1 | Fire & Rescue Dist #1 Camano GEN (EMS) | 0.4998471806 | $784,502 | $784,502 | $392.13 | | |
| FIRE1 | Fire & Rescue Dist #1 Camano GEN | 1.2496603404 | $784,502 | $784,502 | $980.36 | | |
| FIRE1BOND | Fire & Rescue Dist #1 Camano BOND | 0.1630371212 | $784,502 | $784,502 | $127.90 | | |
| CE | County Current Expense | 0.3674210519 | $784,502 | $784,502 | $288.24 | | |
| CR | County Roads | 0.4614296361 | $784,502 | $784,502 | $361.99 | | |
| LIB | Library Sno-Isle GEN | 0.3039084203 | $784,502 | $784,502 | $238.42 | | |
| SCH205_401 | School 205-401 Enrichment | 1.3697998934 | $784,502 | $784,502 | $1,074.61 | | |
| SCH205BOND | School 205-401 BOND | 0.9354199323 | $784,502 | $784,502 | $733.84 | | |
| ST | State School | 1.4761226122 | $784,502 | $784,502 | $1,158.02 | | |
| ST2 | State School Part 2 | 0.7953803475 | $784,502 | $784,502 | $623.98 | | |
| | Total Tax Rate: | 7.6534262019 | | | | | |
| | | | | Taxes w/Current Exemptions: | $6,004.12 | | |
| | | | | Taxes w/o Exemptions: | $6,004.12 | | |
Improvement / Building
| Improvement #1: | RESIDENTIAL | State Code: | Y | 2772.0 sqft | Value: | $544,502 |
| Bathrooms: | 2.5 | Bedrooms: | 3 | | Ceiling: | DRYWALL PAINTED | Cooling: | HEAT PUMP/CONV/V | | Exterior Wall/Cover: | CEMENT FIBER | Floor Covering: | HARDWOOD/CARP 20-80 | | Floor Structure: | WOOD W/SUBFLOOR | Foundation: | CONCRETE | | Interior Finish: | DRYWALL PAINT | Plumbing Fixture Cnt: | 14 | | Roof Slope: | 8" IN 12" | Roof Structure/Cover: | CJ ASPHALT |
|
| | Type | Description | Class CD | Sub Class CD | Year Built | Area |
| | BAS | BASE/MAIN FLOOR | 4 | 0 | 2018 | 2368.0 |
| | UPS | UPPER STORY | 4 | 0 | 2018 | 404.0 |
| | AGR | ATTACHED GARAGE | 4 | 0 | 2018 | 704.0 |
| | OP4 | OPEN PORCH W/CEILING-ROOF | 4 | 0 | 2018 | 20.0 |
Sketch
Property Image
Land
| 1 | 16 | AC (00.51-01.00) | 0.0000 | 0.00 | 0.00 | 0.00 | 1.00 | $240,000 | $0 |
Roll Value History
| 2026 | N/A | N/A | N/A | N/A | N/A |
| 2025 | $544,502 | $240,000 | $0 | $784,502 | $784,502 |
| 2024 | $548,929 | $240,000 | $0 | $788,929 | $788,929 |
| 2023 | $553,355 | $240,000 | $0 | $793,355 | $793,355 |
| 2022 | $505,072 | $230,000 | $0 | $735,072 | $735,072 |
| 2021 | $442,701 | $150,000 | $0 | $592,701 | $592,701 |
| 2020 | $431,077 | $120,000 | $0 | $551,077 | $551,077 |
| 2019 | $334,394 | $170,000 | $0 | $504,394 | $504,394 |
| 2018 | $336,921 | $160,000 | $0 | $496,921 | $496,921 |
| 2017 | $0 | $130,000 | $0 | $130,000 | $130,000 |
| 2016 | $0 | $125,000 | $0 | $125,000 | $125,000 |
| 2015 | $0 | $27,312 | $0 | $27,312 | $27,312 |
| 2014 | $0 | $27,312 | $0 | $27,312 | $27,312 |
| 2013 | $0 | $27,312 | $0 | $27,312 | $27,312 |
| 2012 | $0 | $27,312 | $0 | $27,312 | $27,312 |
| 2011 | $0 | $27,312 | $0 | $27,312 | $27,312 |
| 2010 | $0 | $27,312 | $0 | $27,312 | $27,312 |
Deed and Sales History
| 1 | 03/27/2017 | WD | Warranty Deed | BERG, FRANK | WEINLAND, CATHRYN A | | | $135,000.00 | 28795 | 4420330 |
| 2 | 10/19/2015 | WD | Warranty Deed | SARATOGA HILLS, LLC | BERG, FRANK | | | $127,500.00 | 21856 | 4388173 |
| 3 | 02/25/2015 | SPWARDEED | Special Warranty Deed | SKAGIT STATE BANK | SARATOGA HILLS, LLC | | | $465,000.00 | 18591 | 4373912 |
|   | |
Payout Agreement
| No payout information available.. |