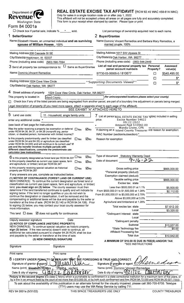
Property
Account |
| Property ID: | 810677 | Abbreviated Legal Description: | PENN COVE PARK #3 LOT 5 |
| Geographic ID: | S7730-03-00005-0 | Agent Code: | |
| Type: | Real | | |
| Tax Area: | 120 - APPRAISER-OH Schl Dist, Special Dist, improved & 1 acre or less | Land Use Code | 11 |
| Open Space: | N | DFL | N |
| Historic Property: | N | Remodel Property: | N |
| Multi-Family Redevelopment: | N | | |
| Township: | 32 | Section: | 22 |
| Range: | R1 |
Location |
| Address: | 1024 COVE VIEW CIR OAK HARBOR, WA 98277 | Mapsco: | |
| Neighborhood: | Cycle 2 | Map ID: | 153 |
| Neighborhood CD: | 2 |
Owner |
| Name: | REMEDIOS, DOMINIC V | Owner ID: | 306244 |
| Mailing Address: | BARBARA M REMEDIOS 1024 COVE VIEW CIRCLE OAK HARBOR, WA 98277 | % Ownership: | 100.0000000000% |
| | | Exemptions: | |
Taxes and Assessment Details
Values
| (+) Improvement Homesite Value: | + | $0 | |
| (+) Improvement Non-Homesite Value: | + | $409,626 | |
| (+) Land Homesite Value: | + | $0 | |
| (+) Land Non-Homesite Value: | + | $210,000 | |
| (+) Curr Use (HS): | + | $0 | $0 |
| (+) Curr Use (NHS): | + | $0 | $0 |
| | | -------------------------- | |
| (=) Market Value: | = | $619,626 | |
| (–) Productivity Loss: | – | $0 | |
| | | -------------------------- | |
| (=) Subtotal: | = | $619,626 | |
| (+) Senior Appraised Value: | + | $0 | |
| (+) Non-Senior Appraised Value: | + | $619,626 | |
| | | -------------------------- | |
| (=) Total Appraised Value: | = | $619,626 | |
| (–) Senior Exemption Loss: | – | $0 | |
| (–) Exemption Loss: | – | $0 | |
| | | -------------------------- | |
| (=) Taxable Value: | = | $619,626 | |
Taxing Jurisdiction
| Owner: | REMEDIOS, DOMINIC V | | |
| % Ownership: | 100.0000000000% | | |
| Total Value: | $619,626 | | |
| Tax Area: | 120 - APPRAISER-OH Schl Dist, Special Dist, improved & 1 acre or less |
| CF | Conservation Futures | 0.0313996660 | $619,626 | $619,626 | $19.46 | | |
| CEM1 | Cemetery #1 | 0.0040018856 | $619,626 | $619,626 | $2.48 | | |
| FIRE2 | Fire & Rescue Dist #2 N Whidbey GEN | 0.5381486274 | $619,626 | $619,626 | $333.45 | | |
| HOBOND | Hospital BOND | 0.1893405597 | $619,626 | $619,626 | $117.32 | | |
| HOGEN | Hospital GEN | 0.3848777722 | $619,626 | $619,626 | $238.48 | | |
| CE | County Current Expense | 0.3674210519 | $619,626 | $619,626 | $227.66 | | |
| CR | County Roads | 0.4614296361 | $619,626 | $619,626 | $285.91 | | |
| ISLANDEMS | Hospital GEN (EMS) | 0.4952018576 | $619,626 | $619,626 | $306.84 | | |
| LIB | Library Sno-Isle GEN | 0.3039084203 | $619,626 | $619,626 | $188.31 | | |
| NWHIDPRMT | P & R N Whidbey GEN | 0.1990272349 | $619,626 | $619,626 | $123.32 | | |
| SCH201MO | School 201 Enrichment | 2.3851112745 | $619,626 | $619,626 | $1,477.88 | | |
| ST | State School | 1.4761226122 | $619,626 | $619,626 | $914.64 | | |
| ST2 | State School Part 2 | 0.7953803475 | $619,626 | $619,626 | $492.84 | | |
| | Total Tax Rate: | 7.6313709459 | | | | | |
| | | | | Taxes w/Current Exemptions: | $4,728.59 | | |
| | | | | Taxes w/o Exemptions: | $4,728.59 | | |
Improvement / Building
| Improvement #1: | RESIDENTIAL | State Code: | Y | 2220.0 sqft | Value: | $409,626 |
| Bathrooms: | 2.5 | Bedrooms: | 4 | | Ceiling: | DRYWALL PAINTED | Exterior Wall/Cover: | PLY/HARDBOARD T-111 | | Floor Covering: | HARDWOOD/CARP 60-40 | Floor Structure: | WOOD W/SUBFLOOR | | Foundation: | CONCRETE | Heating: | FHA GAS | | Interior Finish: | DRYWALL PAINT | Plumbing Fixture Cnt: | 14 | | Roof Slope: | 8" IN 12" | Roof Structure/Cover: | CJ ASPHALT |
|
| | Type | Description | Class CD | Sub Class CD | Year Built | Area |
| | BAS | BASE/MAIN FLOOR | 3 | 0 | 2012 | 896.0 |
| | OP4 | OPEN PORCH W/CEILING-ROOF | 3 | 0 | 2012 | 70.0 |
| | BIG | BUILT IN GARAGE | 3 | 0 | 2012 | 795.9 |
| | UPS | UPPER STORY | 3 | 0 | 2012 | 1324.0 |
| | OWP | OPEN WOOD PORCH W/STEPS | 3 | 0 | 2012 | 100.0 |
| | UTY | STORAGE/UTILITY | 3 | 0 | 2012 | 120.0 |
Sketch
| No sketches available for this property. |
Property Image
Land
| 1 | 16 | AC (00.51-01.00) | 0.5500 | 23958.00 | 0.00 | 0.00 | 1.00 | $210,000 | $0 |
Roll Value History
| 2026 | N/A | N/A | N/A | N/A | N/A |
| 2025 | $409,626 | $210,000 | $0 | $619,626 | $619,626 |
| 2024 | $482,412 | $210,000 | $0 | $692,412 | $692,412 |
| 2023 | $486,364 | $220,000 | $0 | $706,364 | $706,364 |
| 2022 | $365,495 | $180,000 | $0 | $545,495 | $545,495 |
| 2021 | $320,642 | $140,000 | $0 | $460,642 | $460,642 |
| 2020 | $311,239 | $100,000 | $0 | $411,239 | $411,239 |
| 2019 | $239,819 | $170,000 | $0 | $409,819 | $409,819 |
| 2018 | $230,282 | $130,000 | $0 | $360,282 | $360,282 |
| 2017 | $231,512 | $115,000 | $0 | $346,512 | $346,512 |
| 2016 | $233,976 | $80,000 | $0 | $313,976 | $313,976 |
| 2015 | $236,438 | $70,000 | $0 | $306,438 | $306,438 |
| 2014 | $238,900 | $60,000 | $0 | $298,900 | $298,900 |
| 2013 | $241,365 | $60,000 | $0 | $301,365 | $301,365 |
| 2012 | $133,489 | $63,750 | $0 | $197,239 | $197,239 |
| 2011 | $0 | $6,563 | $0 | $6,563 | $6,563 |
Deed and Sales History
| 1 | 09/16/2022 | WD | Warranty Deed | HOWES, WILLIAM | REMEDIOS, DOMINIC V | | | $665,000.00 | 54622 | 4551556 |
| 2 | 09/11/2012 | WD | Warranty Deed | SEATTLE PACIFIC HOMES INC | HOWES, WILLIAM | | | $309,950.00 | 9017 | 4324105 |
| 3 | 05/01/2012 | WD | Warranty Deed | BOYDEN ROBINETT & ASSOC LP | SEATTLE PACIFIC HOMES INC | | | $250,000.00 | 7562 | 4314752 |
Payout Agreement
| No payout information available.. |