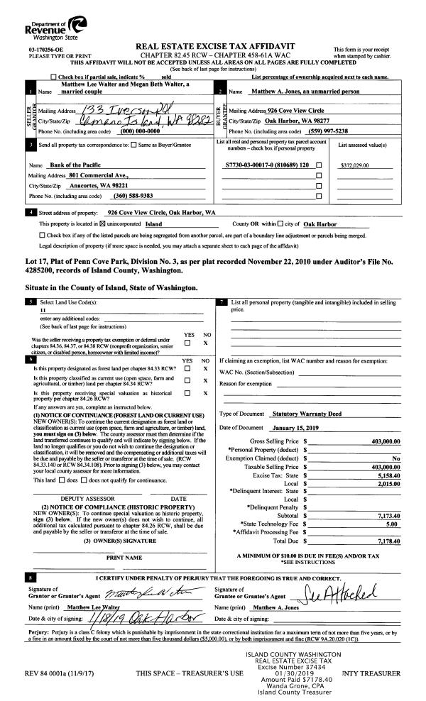
Property
Account |
| Property ID: | 810689 | Abbreviated Legal Description: | PENN COVE PARK #3 LOT 17 |
| Geographic ID: | S7730-03-00017-0 | Agent Code: | |
| Type: | Real | | |
| Tax Area: | 120 - APPRAISER-OH Schl Dist, Special Dist, improved & 1 acre or less | Land Use Code | 11 |
| Open Space: | N | DFL | N |
| Historic Property: | N | Remodel Property: | N |
| Multi-Family Redevelopment: | N | | |
| Township: | 32 | Section: | 22 |
| Range: | R1 |
Location |
| Address: | 926 COVE VIEW CIR OAK HARBOR, WA 98277 | Mapsco: | |
| Neighborhood: | Cycle 2 | Map ID: | 153 |
| Neighborhood CD: | 2 |
Owner |
| Name: | JONES, MATTHEW A | Owner ID: | 288615 |
| Mailing Address: | 1325 UPPER BRANDON PL NORFOLK, VA 23508-1134 | % Ownership: | 100.0000000000% |
| | | Exemptions: | |
Taxes and Assessment Details
Values
| (+) Improvement Homesite Value: | + | $0 | |
| (+) Improvement Non-Homesite Value: | + | $401,195 | |
| (+) Land Homesite Value: | + | $0 | |
| (+) Land Non-Homesite Value: | + | $210,000 | |
| (+) Curr Use (HS): | + | $0 | $0 |
| (+) Curr Use (NHS): | + | $0 | $0 |
| | | -------------------------- | |
| (=) Market Value: | = | $611,195 | |
| (–) Productivity Loss: | – | $0 | |
| | | -------------------------- | |
| (=) Subtotal: | = | $611,195 | |
| (+) Senior Appraised Value: | + | $0 | |
| (+) Non-Senior Appraised Value: | + | $611,195 | |
| | | -------------------------- | |
| (=) Total Appraised Value: | = | $611,195 | |
| (–) Senior Exemption Loss: | – | $0 | |
| (–) Exemption Loss: | – | $0 | |
| | | -------------------------- | |
| (=) Taxable Value: | = | $611,195 | |
Taxing Jurisdiction
| Owner: | JONES, MATTHEW A | | |
| % Ownership: | 100.0000000000% | | |
| Total Value: | $611,195 | | |
| Tax Area: | 120 - APPRAISER-OH Schl Dist, Special Dist, improved & 1 acre or less |
| CF | Conservation Futures | 0.0313996660 | $611,195 | $611,195 | $19.19 | | |
| CEM1 | Cemetery #1 | 0.0040018856 | $611,195 | $611,195 | $2.45 | | |
| FIRE2 | Fire & Rescue Dist #2 N Whidbey GEN | 0.5381486274 | $611,195 | $611,195 | $328.91 | | |
| HOBOND | Hospital BOND | 0.1893405597 | $611,195 | $611,195 | $115.72 | | |
| HOGEN | Hospital GEN | 0.3848777722 | $611,195 | $611,195 | $235.24 | | |
| CE | County Current Expense | 0.3674210519 | $611,195 | $611,195 | $224.57 | | |
| CR | County Roads | 0.4614296361 | $611,195 | $611,195 | $282.02 | | |
| ISLANDEMS | Hospital GEN (EMS) | 0.4952018576 | $611,195 | $611,195 | $302.66 | | |
| LIB | Library Sno-Isle GEN | 0.3039084203 | $611,195 | $611,195 | $185.75 | | |
| NWHIDPRMT | P & R N Whidbey GEN | 0.1990272349 | $611,195 | $611,195 | $121.64 | | |
| SCH201MO | School 201 Enrichment | 2.3851112745 | $611,195 | $611,195 | $1,457.77 | | |
| ST | State School | 1.4761226122 | $611,195 | $611,195 | $902.20 | | |
| ST2 | State School Part 2 | 0.7953803475 | $611,195 | $611,195 | $486.13 | | |
| | Total Tax Rate: | 7.6313709459 | | | | | |
| | | | | Taxes w/Current Exemptions: | $4,664.25 | | |
| | | | | Taxes w/o Exemptions: | $4,664.25 | | |
Improvement / Building
| Improvement #1: | RESIDENTIAL | State Code: | Y | 2213.5 sqft | Value: | $401,195 |
| Bathrooms: | 2.5 | Bedrooms: | 4 | | Ceiling: | DRYWALL PAINTED | Exterior Wall/Cover: | CEMENT FIBER | | Floor Covering: | HARDWOOD/CARP 60-40 | Floor Structure: | WOOD W/SUBFLOOR | | Foundation: | CONCRETE | Heating: | FHA GAS | | Interior Finish: | DRYWALL PAINT | Plumbing Fixture Cnt: | 14 | | Roof Slope: | 6" IN 12" | Roof Structure/Cover: | CJ ASPHALT |
|
| | Type | Description | Class CD | Sub Class CD | Year Built | Area |
| | BAS | BASE/MAIN FLOOR | 3 | 0 | 2014 | 917.0 |
| | OWP | OPEN WOOD PORCH W/STEPS | 3 | 0 | 2014 | 168.0 |
| | BIG | BUILT IN GARAGE | 3 | 0 | 2014 | 660.0 |
| | UPS | UPPER STORY | 3 | 0 | 2014 | 1296.5 |
| | OWC | OPEN WOOD PORCH W/STEPS/ROOF/C | 3 | 0 | 2014 | 95.0 |
Sketch
| No sketches available for this property. |
Property Image
Land
| 1 | 16 | AC (00.51-01.00) | 0.5100 | 22215.60 | 0.00 | 0.00 | 1.00 | $210,000 | $0 |
Roll Value History
| 2026 | N/A | N/A | N/A | N/A | N/A |
| 2025 | $401,195 | $210,000 | $0 | $611,195 | $611,195 |
| 2024 | $403,364 | $210,000 | $0 | $613,364 | $613,364 |
| 2023 | $406,948 | $220,000 | $0 | $626,948 | $626,948 |
| 2022 | $371,344 | $180,000 | $0 | $551,344 | $551,344 |
| 2021 | $325,566 | $140,000 | $0 | $465,566 | $465,566 |
| 2020 | $315,951 | $100,000 | $0 | $415,951 | $415,951 |
| 2019 | $243,693 | $170,000 | $0 | $413,693 | $413,693 |
| 2018 | $242,029 | $130,000 | $0 | $372,029 | $372,029 |
| 2017 | $243,296 | $115,000 | $0 | $358,296 | $358,296 |
| 2016 | $245,831 | $80,000 | $0 | $325,831 | $325,831 |
| 2015 | $248,367 | $70,000 | $0 | $318,367 | $318,367 |
| 2014 | $253,434 | $55,000 | $0 | $308,434 | $308,434 |
| 2013 | $0 | $60,000 | $0 | $60,000 | $60,000 |
| 2012 | $0 | $63,750 | $0 | $63,750 | $63,750 |
| 2011 | $0 | $6,563 | $0 | $6,563 | $6,563 |
Deed and Sales History
| 1 | 01/15/2019 | WD | Warranty Deed | WALTER, MATTHEW LEE | JONES, MATTHEW A | | | $403,000.00 | 37434 | 4458523 |
| 2 | 12/15/2014 | WD | Warranty Deed | SEATTLE PACIFIC HOMES INC | WALTER, MATTHEW LEE | | | $294,950.00 | 17960 | 4370390 |
| 3 | 12/07/2010 | WD | Warranty Deed | | SEATTLE PACIFIC HOMES INC | | | $650,000.00 | 3075 | 4286549 |
|   | |
Payout Agreement
| No payout information available.. |