Property
Account |
| Property ID: | 810690 | Abbreviated Legal Description: | PENN COVE PARK #3 LOT 18 |
| Geographic ID: | S7730-03-00018-0 | Agent Code: | |
| Type: | Real | | |
| Tax Area: | 120 - APPRAISER-OH Schl Dist, Special Dist, improved & 1 acre or less | Land Use Code | 11 |
| Open Space: | N | DFL | N |
| Historic Property: | N | Remodel Property: | N |
| Multi-Family Redevelopment: | N | | |
| Township: | 32 | Section: | 22 |
| Range: | R1 |
Location |
| Address: | 922 COVE VIEW CIR OAK HARBOR, WA 98277 | Mapsco: | |
| Neighborhood: | Cycle 2 | Map ID: | 153 |
| Neighborhood CD: | 2 |
Owner |
| Name: | OXFORD, VERONICA Z | Owner ID: | 298690 |
| Mailing Address: | 922 COVE VIEW CR OAK HARBOR, WA 98277 | % Ownership: | 100.0000000000% |
| | | Exemptions: | |
Taxes and Assessment Details
Values
| (+) Improvement Homesite Value: | + | N/A | |
| (+) Improvement Non-Homesite Value: | + | N/A | |
| (+) Land Homesite Value: | + | N/A | |
| (+) Land Non-Homesite Value: | + | N/A | Ag / Timber Use Value |
| (+) Curr Use (HS): | + | N/A | N/A |
| (+) Curr Use (NHS): | + | N/A | N/A |
| | | -------------------------- | |
| (=) Market Value: | = | N/A | |
| (–) Productivity Loss: | – | N/A | |
| | | -------------------------- | |
| (=) Subtotal: | = | N/A | |
| (+) Senior Appraised Value: | + | N/A | |
| (+) Non-Senior Appraised Value: | + | N/A | |
| | | -------------------------- | |
| (=) Total Appraised Value: | = | N/A | |
| (–) Senior Exemption Loss: | – | N/A | |
| (–) Exemption Loss: | – | N/A | |
| | | -------------------------- | |
| (=) Taxable Value: | = | N/A | |
Taxing Jurisdiction
| Owner: | OXFORD, VERONICA Z | | |
| % Ownership: | 100.0000000000% | | |
| Total Value: | N/A | | |
| Tax Area: | 120 - APPRAISER-OH Schl Dist, Special Dist, improved & 1 acre or less |
| CF | Conservation Futures | N/A | N/A | N/A | N/A | | |
| WCD | Whidbey Conservation District | N/A | N/A | N/A | N/A | | |
| CEM1 | Cemetery #1 | N/A | N/A | N/A | N/A | | |
| FIRE2 | Fire & Rescue Dist #2 N Whidbey GEN | N/A | N/A | N/A | N/A | | |
| HOBOND | Hospital BOND | N/A | N/A | N/A | N/A | | |
| HOGEN | Hospital GEN | N/A | N/A | N/A | N/A | | |
| CE | County Current Expense | N/A | N/A | N/A | N/A | | |
| CR | County Roads | N/A | N/A | N/A | N/A | | |
| ISLANDEMS | Hospital GEN (EMS) | N/A | N/A | N/A | N/A | | |
| LIB | Library Sno-Isle GEN | N/A | N/A | N/A | N/A | | |
| NWHIDPRMT | P & R N Whidbey GEN | N/A | N/A | N/A | N/A | | |
| SCH201MO | School 201 Enrichment | N/A | N/A | N/A | N/A | | |
| ST | State School | N/A | N/A | N/A | N/A | | |
| ST2 | State School Part 2 | N/A | N/A | N/A | N/A | | |
| | Total Tax Rate: | N/A | | | | | |
| | | | | Taxes w/Current Exemptions: | N/A | | |
| | | | | Taxes w/o Exemptions: | N/A | | |
Improvement / Building
| Improvement #1: | RESIDENTIAL | State Code: | Y | 1731.9 sqft | Value: | N/A |
| Bathrooms: | 2.5 | Bedrooms: | 4 | | Ceiling: | DRYWALL PAINTED | Exterior Wall/Cover: | PLY/HARDBOARD T-111 | | Floor Covering: | HARDWOOD/CARP 20-80 | Floor Structure: | WOOD W/SUBFLOOR | | Foundation: | CONCRETE | Heating: | FHA GAS | | Interior Finish: | DRYWALL PAINT | Plumbing Fixture Cnt: | 12 | | Roof Slope: | 8" IN 12" | Roof Structure/Cover: | CJ ASPHALT |
|
| | Type | Description | Class CD | Sub Class CD | Year Built | Area |
| | BAS | BASE/MAIN FLOOR | 3 | 0 | 2012 | 747.2 |
| | OP1 | OPEN PORCH SLAB | 3 | 0 | 2012 | 144.0 |
| | BIG | BUILT IN GARAGE | 3 | 0 | 2012 | 618.0 |
| | UPS | UPPER STORY | 3 | 0 | 2012 | 984.7 |
| | OP4 | OPEN PORCH W/CEILING-ROOF | 3 | 0 | 2012 | 67.5 |
Sketch
Property Image
Land
| 1 | 16 | AC (00.51-01.00) | 0.5700 | 24829.20 | 0.00 | 0.00 | 1.00 | N/A | N/A |
Roll Value History
| 2026 | N/A | N/A | N/A | N/A | N/A |
| 2025 | $339,881 | $210,000 | $0 | $549,881 | $549,881 |
| 2024 | $381,475 | $210,000 | $0 | $591,475 | $591,475 |
| 2023 | $385,797 | $220,000 | $0 | $605,797 | $605,797 |
| 2022 | $352,276 | $180,000 | $0 | $532,276 | $532,276 |
| 2021 | $309,055 | $140,000 | $0 | $449,055 | $449,055 |
| 2020 | $299,372 | $100,000 | $0 | $399,372 | $399,372 |
| 2019 | $218,730 | $170,000 | $0 | $388,730 | $388,730 |
| 2018 | $212,471 | $130,000 | $0 | $342,471 | $342,471 |
| 2017 | $212,025 | $115,000 | $0 | $327,025 | $327,025 |
| 2016 | $188,832 | $80,000 | $0 | $268,832 | $268,832 |
| 2015 | $190,820 | $70,000 | $0 | $260,820 | $260,820 |
| 2014 | $192,808 | $60,000 | $0 | $252,808 | $252,808 |
| 2013 | $194,796 | $60,000 | $0 | $254,796 | $254,796 |
| 2012 | $199,836 | $63,750 | $0 | $263,586 | $263,586 |
| 2011 | $0 | $6,563 | $0 | $6,563 | $6,563 |
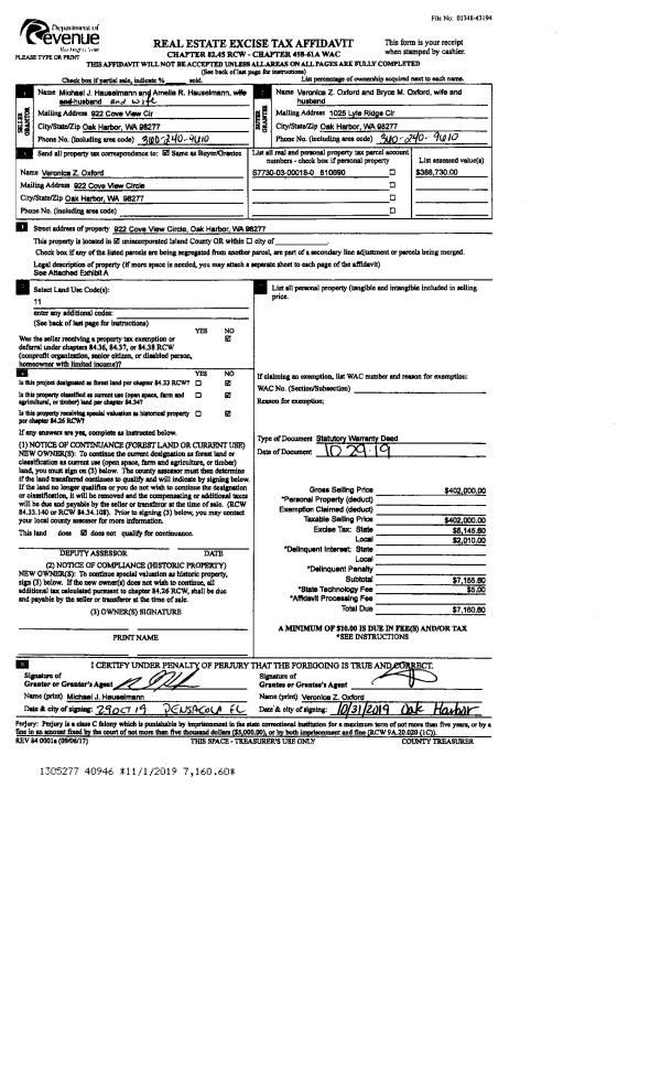
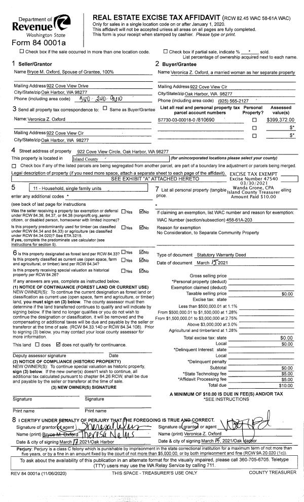
Deed and Sales History
| 1 | 03/15/2021 | QCD | Quit Claim Deed | OXFORD, VERONICA Z | OXFORD, VERONICA Z | | | $0.00 | 47540 | 4514948 |
| 2 | 10/29/2019 | WD | Warranty Deed | HAUSELMANN, MICHAEL J | OXFORD, VERONICA Z | | | $402,000.00 | 40946 | 4474702 |
| 3 | 07/27/2016 | WD | Warranty Deed | LINDSEY, GABRIEL K | HAUSELMANN, MICHAEL J | | | $345,000.00 | 25422 | 4403977 |
| 4 | 06/01/2012 | WD | Warranty Deed | SEATTLE PACIFIC HOMES INC | LINDSEY, GABRIEL K | | | $259,950.00 | 7911 | 4317111 |
| 5 | 12/07/2010 | WD | Warranty Deed | | SEATTLE PACIFIC HOMES INC | | | $650,000.00 | 3075 | 4286549 |
|   | |
Payout Agreement
| No payout information available.. |