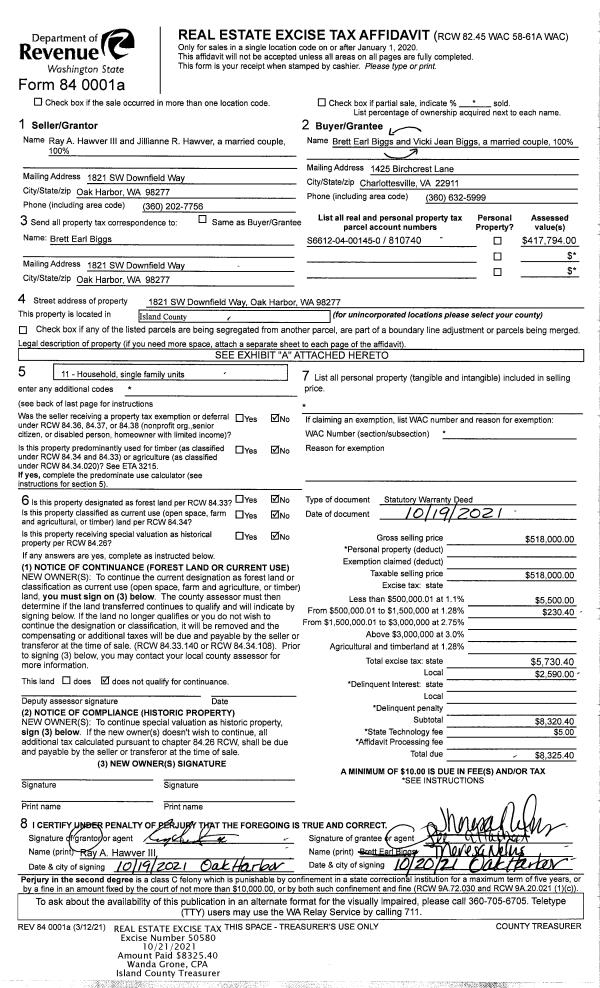
Property
Account |
| Property ID: | 810740 | Abbreviated Legal Description: | FAIRWAY POINT DIVISION 4 PRD LOT 145 |
| Geographic ID: | S6612-04-00145-0 | Agent Code: | |
| Type: | Real | | |
| Tax Area: | 100 - APPRAISER-OH Schl Dist, in OH | Land Use Code | 11 |
| Open Space: | N | DFL | N |
| Historic Property: | N | Remodel Property: | N |
| Multi-Family Redevelopment: | N | | |
| Township: | 32 | Section: | 4 |
| Range: | R1 |
Location |
| Address: | 1821 SW DOWNFIELD WAY OAK HARBOR, WA 98277 | Mapsco: | |
| Neighborhood: | Cycle 1 | Map ID: | 94 |
| Neighborhood CD: | 1 |
Owner |
| Name: | 1821 DOWNFIELD, LLC | Owner ID: | 310820 |
| Mailing Address: | 790 SW CASTILLIAN DR OAK HARBOR, WA 98277 | % Ownership: | 100.0000000000% |
| | | Exemptions: | |
Taxes and Assessment Details
Values
| (+) Improvement Homesite Value: | + | $0 | |
| (+) Improvement Non-Homesite Value: | + | $414,572 | |
| (+) Land Homesite Value: | + | $0 | |
| (+) Land Non-Homesite Value: | + | $175,000 | |
| (+) Curr Use (HS): | + | $0 | $0 |
| (+) Curr Use (NHS): | + | $0 | $0 |
| | | -------------------------- | |
| (=) Market Value: | = | $589,572 | |
| (–) Productivity Loss: | – | $0 | |
| | | -------------------------- | |
| (=) Subtotal: | = | $589,572 | |
| (+) Senior Appraised Value: | + | $0 | |
| (+) Non-Senior Appraised Value: | + | $589,572 | |
| | | -------------------------- | |
| (=) Total Appraised Value: | = | $589,572 | |
| (–) Senior Exemption Loss: | – | $0 | |
| (–) Exemption Loss: | – | $0 | |
| | | -------------------------- | |
| (=) Taxable Value: | = | $589,572 | |
Taxing Jurisdiction
| Owner: | 1821 DOWNFIELD, LLC | | |
| % Ownership: | 100.0000000000% | | |
| Total Value: | $589,572 | | |
| Tax Area: | 100 - APPRAISER-OH Schl Dist, in OH |
| CF | Conservation Futures | 0.0313996660 | $589,572 | $589,572 | $18.51 | | |
| CEM1 | Cemetery #1 | 0.0040018856 | $589,572 | $589,572 | $2.36 | | |
| COH | City of Oak Harbor | 2.3090730572 | $589,572 | $589,572 | $1,361.36 | | |
| OAKBOND | City of Oak Harbor BOND | 0.1902260131 | $589,572 | $589,572 | $112.15 | | |
| HOBOND | Hospital BOND | 0.1893405597 | $589,572 | $589,572 | $111.63 | | |
| HOGEN | Hospital GEN | 0.3848777722 | $589,572 | $589,572 | $226.91 | | |
| CE | County Current Expense | 0.3674210519 | $589,572 | $589,572 | $216.62 | | |
| ISLANDEMS | Hospital GEN (EMS) | 0.4952018576 | $589,572 | $589,572 | $291.96 | | |
| LIB | Library Sno-Isle GEN | 0.3039084203 | $589,572 | $589,572 | $179.18 | | |
| NWHIDPRMT | P & R N Whidbey GEN | 0.1990272349 | $589,572 | $589,572 | $117.34 | | |
| SCH201MO | School 201 Enrichment | 2.3851112745 | $589,572 | $589,572 | $1,406.19 | | |
| ST | State School | 1.4761226122 | $589,572 | $589,572 | $870.28 | | |
| ST2 | State School Part 2 | 0.7953803475 | $589,572 | $589,572 | $468.93 | | |
| | Total Tax Rate: | 9.1310917527 | | | | | |
| | | | | Taxes w/Current Exemptions: | $5,383.42 | | |
| | | | | Taxes w/o Exemptions: | $5,383.42 | | |
Improvement / Building
| Improvement #1: | RESIDENTIAL | State Code: | Y | 1983.0 sqft | Value: | $414,572 |
| Bathrooms: | 2.5 | Bedrooms: | 3 | | Ceiling: | DRYWALL PAINTED | Exterior Wall/Cover: | CEMENT FIBER | | Floor Covering: | HARDWOOD/CARP 20-80 | Floor Structure: | WOOD W/SUBFLOOR | | Foundation: | CONCRETE | Heating: | FHA GAS | | Interior Finish: | DRYWALL PAINT | Plumbing Fixture Cnt: | 14 | | Roof Slope: | 5" IN 12" | Roof Structure/Cover: | CJ ASPHALT |
|
| | Type | Description | Class CD | Sub Class CD | Year Built | Area |
| | BAS | BASE/MAIN FLOOR | 4 | 0 | 2013 | 840.0 |
| | UPS | UPPER STORY | 4 | 0 | 2013 | 1143.0 |
| | BIG | BUILT IN GARAGE | 4 | 0 | 2013 | 480.0 |
| | OP4 | OPEN PORCH W/CEILING-ROOF | 4 | 0 | 2013 | 96.0 |
| | OWC | OPEN WOOD PORCH W/STEPS/ROOF/C | 4 | 0 | 2013 | 120.0 |
Sketch
Property Image
Land
| 1 | 13 | SQ (06001-08000) | 0.0000 | 0.00 | 0.00 | 0.00 | 1.00 | $175,000 | $0 |
Roll Value History
| 2026 | N/A | N/A | N/A | N/A | N/A |
| 2025 | $414,572 | $175,000 | $0 | $589,572 | $589,572 |
| 2024 | $417,767 | $150,000 | $0 | $567,767 | $567,767 |
| 2023 | $415,727 | $150,000 | $0 | $565,727 | $565,727 |
| 2022 | $379,788 | $120,000 | $0 | $499,788 | $499,788 |
| 2021 | $332,794 | $85,000 | $0 | $417,794 | $417,794 |
| 2020 | $322,433 | $70,000 | $0 | $392,433 | $392,433 |
| 2019 | $238,144 | $140,000 | $0 | $378,144 | $378,144 |
| 2018 | $238,776 | $120,000 | $0 | $358,776 | $358,776 |
| 2017 | $231,065 | $120,000 | $0 | $351,065 | $351,065 |
| 2016 | $233,498 | $100,000 | $0 | $333,498 | $333,498 |
| 2015 | $235,931 | $60,000 | $0 | $295,931 | $295,931 |
| 2014 | $238,363 | $60,000 | $0 | $298,363 | $298,363 |
| 2013 | $243,227 | $60,000 | $0 | $303,227 | $303,227 |
| 2012 | $0 | $75,000 | $0 | $75,000 | $75,000 |
| 2011 | $0 | $12,285 | $0 | $12,285 | $12,285 |
Deed and Sales History
| 1 | 11/28/2023 | QCD | Quit Claim Deed | BIGGS, VICKI JEAN | 1821 DOWNFIELD, LLC | | | $0.00 | 58656 | 4567226 |
| 2 | 10/19/2021 | WD | Warranty Deed | HAWVER III, RAY A | BIGGS, VICKI JEAN | | | $518,000.00 | 50580 | 4531945 |
| 3 | 04/12/2016 | WD | Warranty Deed | CHERRY, BRADLEY E | HAWVER III, RAY A | | | $347,000.00 | 24005 | 4398174 |
| 4 | 01/16/2013 | WD | Warranty Deed | FAIRWAY POINT IV INC | CHERRY, BRADLEY E | | | $289,900.00 | 10210 | 4331998 |
| 5 | 09/26/2012 | WD | Warranty Deed | FP4 LLC | FAIRWAY POINT IV INC | | | $80,000.00 | 9250 | 4325791 |
|   | |
Payout Agreement
| No payout information available.. |