Property
Account |
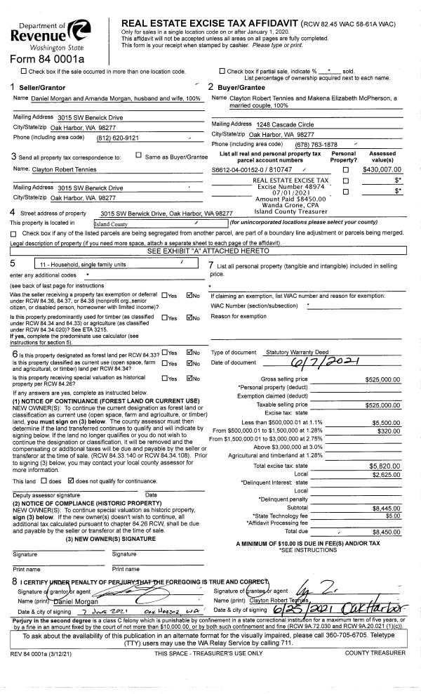
| Property ID: | 810747 | Abbreviated Legal Description: | FAIRWAY POINT DIVISION 4 PRD LOT 152 |
| Geographic ID: | S6612-04-00152-0 | Agent Code: | |
| Type: | Real | | |
| Tax Area: | 100 - APPRAISER-OH Schl Dist, in OH | Land Use Code | 11 |
| Open Space: | N | DFL | N |
| Historic Property: | N | Remodel Property: | N |
| Multi-Family Redevelopment: | N | | |
| Township: | 32 | Section: | 4 |
| Range: | R1 |
Location |
| Address: | 3015 SW BERWICK DR OAK HARBOR, WA 98277 | Mapsco: | |
| Neighborhood: | Cycle 1 | Map ID: | 94 |
| Neighborhood CD: | 1 |
Owner |
| Name: | TENNIES, CLAYTON ROBERT | Owner ID: | 300044 |
| Mailing Address: | MAKENA ELIZABETH MCPHERSON 3015 SW BERWICK DR OAK HARBOR, WA 98277 | % Ownership: | 100.0000000000% |
| | | Exemptions: | |
Taxes and Assessment Details
Values
| (+) Improvement Homesite Value: | + | N/A | |
| (+) Improvement Non-Homesite Value: | + | N/A | |
| (+) Land Homesite Value: | + | N/A | |
| (+) Land Non-Homesite Value: | + | N/A | Ag / Timber Use Value |
| (+) Curr Use (HS): | + | N/A | N/A |
| (+) Curr Use (NHS): | + | N/A | N/A |
| | | -------------------------- | |
| (=) Market Value: | = | N/A | |
| (–) Productivity Loss: | – | N/A | |
| | | -------------------------- | |
| (=) Subtotal: | = | N/A | |
| (+) Senior Appraised Value: | + | N/A | |
| (+) Non-Senior Appraised Value: | + | N/A | |
| | | -------------------------- | |
| (=) Total Appraised Value: | = | N/A | |
| (–) Senior Exemption Loss: | – | N/A | |
| (–) Exemption Loss: | – | N/A | |
| | | -------------------------- | |
| (=) Taxable Value: | = | N/A | |
Taxing Jurisdiction
| Owner: | TENNIES, CLAYTON ROBERT | | |
| % Ownership: | 100.0000000000% | | |
| Total Value: | N/A | | |
| Tax Area: | 100 - APPRAISER-OH Schl Dist, in OH |
| CF | Conservation Futures | N/A | N/A | N/A | N/A | | |
| WCD | Whidbey Conservation District | N/A | N/A | N/A | N/A | | |
| CEM1 | Cemetery #1 | N/A | N/A | N/A | N/A | | |
| COH | City of Oak Harbor | N/A | N/A | N/A | N/A | | |
| HOBOND | Hospital BOND | N/A | N/A | N/A | N/A | | |
| HOGEN | Hospital GEN | N/A | N/A | N/A | N/A | | |
| CE | County Current Expense | N/A | N/A | N/A | N/A | | |
| ISLANDEMS | Hospital GEN (EMS) | N/A | N/A | N/A | N/A | | |
| LIB | Library Sno-Isle GEN | N/A | N/A | N/A | N/A | | |
| NWHIDPRMT | P & R N Whidbey GEN | N/A | N/A | N/A | N/A | | |
| SCH201MO | School 201 Enrichment | N/A | N/A | N/A | N/A | | |
| ST | State School | N/A | N/A | N/A | N/A | | |
| ST2 | State School Part 2 | N/A | N/A | N/A | N/A | | |
| | Total Tax Rate: | N/A | | | | | |
| | | | | Taxes w/Current Exemptions: | N/A | | |
| | | | | Taxes w/o Exemptions: | N/A | | |
Improvement / Building
| Improvement #1: | RESIDENTIAL | State Code: | Y | 2330.0 sqft | Value: | N/A |
| Bathrooms: | 2.5 | Bedrooms: | 4 | | Ceiling: | DRYWALL PAINTED | Exterior Wall/Cover: | CEMENT FIBER | | Floor Covering: | HARDWOOD/CARP 20-80 | Floor Structure: | WOOD W/SUBFLOOR | | Foundation: | CONCRETE | Heating: | FHA GAS | | Interior Finish: | DRYWALL PAINT | Plumbing Fixture Cnt: | 14 | | Roof Slope: | 6" IN 12" | Roof Structure/Cover: | CJ ASPHALT |
|
| | Type | Description | Class CD | Sub Class CD | Year Built | Area |
| | BAS | BASE/MAIN FLOOR | 4 | 0 | 2014 | 863.0 |
| | UPS | UPPER STORY | 4 | 0 | 2014 | 1467.0 |
| | BIG | BUILT IN GARAGE | 4 | 0 | 2014 | 649.0 |
| | OP4 | OPEN PORCH W/CEILING-ROOF | 4 | 0 | 2014 | 60.0 |
| | OWC | OPEN WOOD PORCH W/STEPS/ROOF/C | 4 | 0 | 2014 | 49.8 |
Sketch
Property Image
Land
| 1 | 13 | SQ (06001-08000) | 0.0000 | 0.00 | 0.00 | 0.00 | 1.00 | N/A | N/A |
Roll Value History
| 2026 | N/A | N/A | N/A | N/A | N/A |
| 2025 | $467,498 | $175,000 | $0 | $642,498 | $642,498 |
| 2024 | $471,330 | $150,000 | $0 | $621,330 | $621,330 |
| 2023 | $463,922 | $150,000 | $0 | $613,922 | $613,922 |
| 2022 | $423,336 | $120,000 | $0 | $543,336 | $543,336 |
| 2021 | $371,120 | $85,000 | $0 | $456,120 | $456,120 |
| 2020 | $360,007 | $70,000 | $0 | $430,007 | $430,007 |
| 2019 | $269,101 | $140,000 | $0 | $409,101 | $409,101 |
| 2018 | $269,807 | $120,000 | $0 | $389,807 | $389,807 |
| 2017 | $256,481 | $120,000 | $0 | $376,481 | $376,481 |
| 2016 | $259,153 | $100,000 | $0 | $359,153 | $359,153 |
| 2015 | $261,825 | $60,000 | $0 | $321,825 | $321,825 |
| 2014 | $267,168 | $60,000 | $0 | $327,168 | $327,168 |
| 2013 | $0 | $60,000 | $0 | $60,000 | $60,000 |
| 2012 | $0 | $75,000 | $0 | $75,000 | $75,000 |
| 2011 | $0 | $12,285 | $0 | $12,285 | $12,285 |
Deed and Sales History
| 1 | 06/07/2021 | WD | Warranty Deed | MORGAN, DANIEL | TENNIES, CLAYTON ROBERT | | | $525,000.00 | 48974 | 4523299 |
| 2 | 03/11/2014 | WD | Warranty Deed | FAIRWAY POINT IV INC | MORGAN, DANIEL | | | $319,900.00 | 14578 | 4356573 |
| 3 | 09/19/2013 | WD | Warranty Deed | FP4 LLC | FAIRWAY POINT IV INC | | | $120,000.00 | 13015 | 4349073 |
|   | |
Payout Agreement
| No payout information available.. |