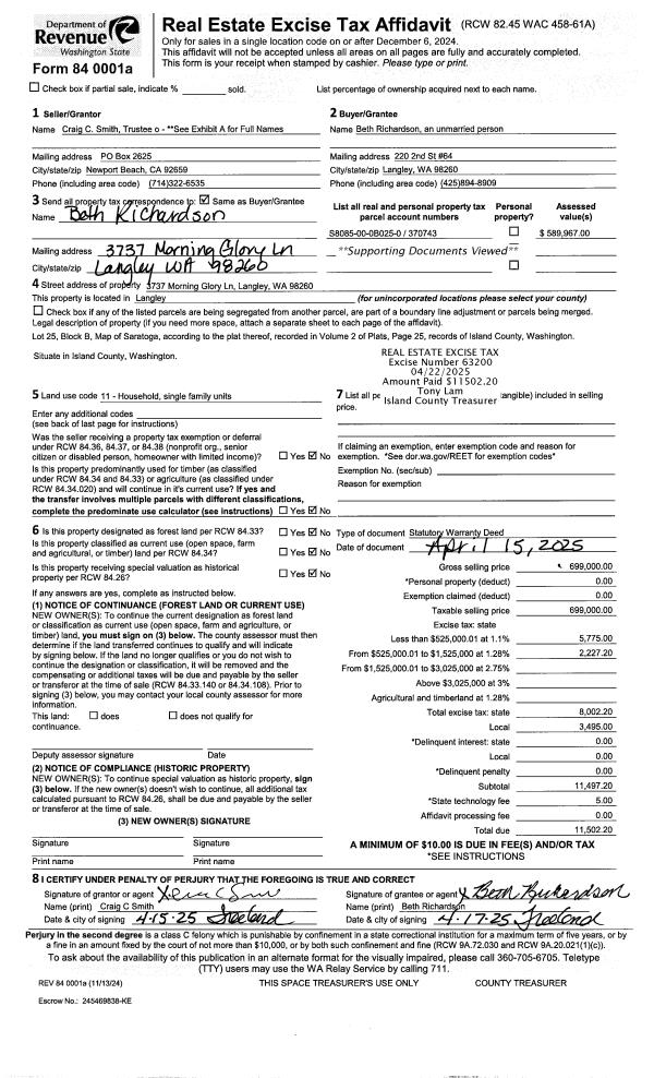
Property
Account |
| Property ID: | 810867 | Abbreviated Legal Description: | LOT 1 SP 342-99.13219-466-1790 AF#4294839 |
| Geographic ID: | R13219-499-1840 | Agent Code: | |
| Type: | Real | | |
| Tax Area: | 112 - APPRAISER-OH Schl Dist, outside OH, improved, greater than 1 acre | Land Use Code | 11 |
| Open Space: | N | DFL | N |
| Historic Property: | N | Remodel Property: | N |
| Multi-Family Redevelopment: | N | | |
| Township: | 32 | Section: | 19 |
| Range: | R1 |
Location |
| Address: | 2273 VAN DAM RD COUPEVILLE, WA 98239 | Mapsco: | |
| Neighborhood: | Cycle 2 | Map ID: | 143 |
| Neighborhood CD: | 2 |
Owner |
| Name: | BROTEMARKLE, PHILIP | Owner ID: | 278751 |
| Mailing Address: | KIMBERLY BROTEMARKLE 2273 VAN DAM RD COUPEVILLE, WA 98239 | % Ownership: | 100.0000000000% |
| | | Exemptions: | |
Taxes and Assessment Details
Values
| (+) Improvement Homesite Value: | + | N/A | |
| (+) Improvement Non-Homesite Value: | + | N/A | |
| (+) Land Homesite Value: | + | N/A | |
| (+) Land Non-Homesite Value: | + | N/A | Ag / Timber Use Value |
| (+) Curr Use (HS): | + | N/A | N/A |
| (+) Curr Use (NHS): | + | N/A | N/A |
| | | -------------------------- | |
| (=) Market Value: | = | N/A | |
| (–) Productivity Loss: | – | N/A | |
| | | -------------------------- | |
| (=) Subtotal: | = | N/A | |
| (+) Senior Appraised Value: | + | N/A | |
| (+) Non-Senior Appraised Value: | + | N/A | |
| | | -------------------------- | |
| (=) Total Appraised Value: | = | N/A | |
| (–) Senior Exemption Loss: | – | N/A | |
| (–) Exemption Loss: | – | N/A | |
| | | -------------------------- | |
| (=) Taxable Value: | = | N/A | |
Taxing Jurisdiction
| Owner: | BROTEMARKLE, PHILIP | | |
| % Ownership: | 100.0000000000% | | |
| Total Value: | N/A | | |
| Tax Area: | 112 - APPRAISER-OH Schl Dist, outside OH, improved, greater than 1 acre |
| CF | Conservation Futures | N/A | N/A | N/A | N/A | | |
| WCD | Whidbey Conservation District | N/A | N/A | N/A | N/A | | |
| CEM1 | Cemetery #1 | N/A | N/A | N/A | N/A | | |
| FIRE2 | Fire & Rescue Dist #2 N Whidbey GEN | N/A | N/A | N/A | N/A | | |
| HOBOND | Hospital BOND | N/A | N/A | N/A | N/A | | |
| HOGEN | Hospital GEN | N/A | N/A | N/A | N/A | | |
| CE | County Current Expense | N/A | N/A | N/A | N/A | | |
| CR | County Roads | N/A | N/A | N/A | N/A | | |
| ISLANDEMS | Hospital GEN (EMS) | N/A | N/A | N/A | N/A | | |
| LIB | Library Sno-Isle GEN | N/A | N/A | N/A | N/A | | |
| NWHIDPRMT | P & R N Whidbey GEN | N/A | N/A | N/A | N/A | | |
| SCH201MO | School 201 Enrichment | N/A | N/A | N/A | N/A | | |
| ST | State School | N/A | N/A | N/A | N/A | | |
| ST2 | State School Part 2 | N/A | N/A | N/A | N/A | | |
| | Total Tax Rate: | N/A | | | | | |
| | | | | Taxes w/Current Exemptions: | N/A | | |
| | | | | Taxes w/o Exemptions: | N/A | | |
Improvement / Building
| Improvement #1: | RESIDENTIAL | State Code: | Y | 2135.5 sqft | Value: | N/A |
| Bathrooms: | 3 | Bedrooms: | 3 | | Ceiling: | DRYWALL PAINTED | Exterior Wall/Cover: | CEMENT FIBER | | Floor Covering: | HARDWOOD/CARP 60-40 | Floor Structure: | WOOD W/SUBFLOOR | | Foundation: | CONCRETE | Heating: | FHA OIL | | Interior Finish: | DRYWALL PAINT | Plumbing Fixture Cnt: | 14 | | Roof Slope: | 8" IN 12" | Roof Structure/Cover: | CJ ASPHALT |
|
| | Type | Description | Class CD | Sub Class CD | Year Built | Area |
| | BAS | BASE/MAIN FLOOR | 4 | 0 | 2018 | 1287.5 |
| | UPS | UPPER STORY | 4 | 0 | 2018 | 848.0 |
| | AGR | ATTACHED GARAGE | 4 | 0 | 2018 | 900.0 |
| | OWC | OPEN WOOD PORCH W/STEPS/ROOF/C | 4 | 0 | 2018 | 247.5 |
Sketch
Property Image
Land
| 1 | 32 | AC (03.01-09.99) | 4.0100 | 174675.60 | 0.00 | 0.00 | 1.00 | N/A | N/A |
| 2 | HS | HOMESITE | 1.0000 | 43560.00 | 0.00 | 0.00 | 1.00 | N/A | N/A |
Roll Value History
| 2026 | N/A | N/A | N/A | N/A | N/A |
| 2025 | $519,015 | $340,050 | $0 | $859,065 | $859,065 |
| 2024 | $523,234 | $300,000 | $0 | $823,234 | $823,234 |
| 2023 | $527,453 | $280,000 | $0 | $807,453 | $807,453 |
| 2022 | $481,425 | $260,000 | $0 | $741,425 | $741,425 |
| 2021 | $421,968 | $170,000 | $0 | $591,968 | $591,968 |
| 2020 | $410,186 | $170,000 | $0 | $580,186 | $580,186 |
| 2019 | $308,275 | $230,000 | $0 | $538,275 | $538,275 |
| 2018 | $310,604 | $150,000 | $0 | $460,604 | $460,604 |
| 2017 | $0 | $170,000 | $0 | $170,000 | $170,000 |
| 2016 | $0 | $130,000 | $0 | $130,000 | $130,000 |
| 2015 | $0 | $100,000 | $0 | $100,000 | $100,000 |
| 2014 | $0 | $100,000 | $0 | $100,000 | $100,000 |
| 2013 | $0 | $100,200 | $0 | $100,200 | $100,200 |
| 2012 | $0 | $100,200 | $0 | $100,200 | $100,200 |
| 2011 | $0 | $63,000 | $0 | $63,000 | $63,000 |
Deed and Sales History
| 1 | 03/02/2017 | WD | Warranty Deed | FARRIS, FRED L | BROTEMARKLE, PHILIP | | | $107,383.00 | 28291 | 4418156 |
| 2 | 06/01/2016 | WD | Warranty Deed | DARST, VIVIAN D | FARRIS, FRED L | | | $195,000.00 | 24565 | 4400351 |
|   | |
Payout Agreement
| No payout information available.. |