Property
Account |
| Property ID: | 810952 | Abbreviated Legal Description: | LOT 2 SP 453-06.32936-068-0320 AF#4309564 |
| Geographic ID: | R32936-099-0160 | Agent Code: | |
| Type: | Real | | |
| Tax Area: | 712 - APPRAISER-S Whid Schl Dist, outside Langley, improved, greater than 1 acre | Land Use Code | 11 |
| Open Space: | N | DFL | N |
| Historic Property: | N | Remodel Property: | N |
| Multi-Family Redevelopment: | N | | |
| Township: | 29 | Section: | 36 |
| Range: | R3 |
Location |
| Address: | | Mapsco: | |
| Neighborhood: | Cycle 4 | Map ID: | 846 |
| Neighborhood CD: | 4 |
Owner |
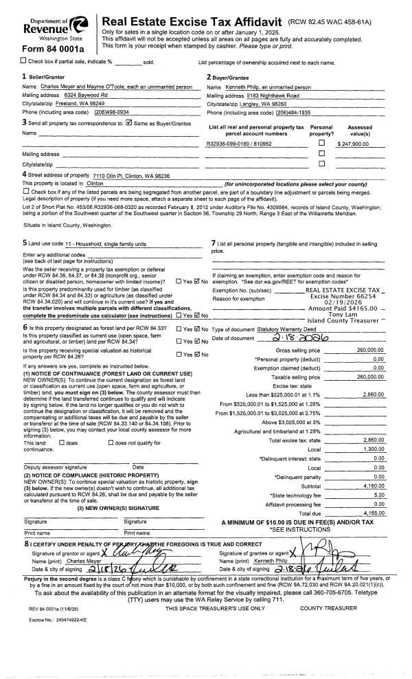
| Name: | MEYER, CHARLES | Owner ID: | 309338 |
| Mailing Address: | MAYME O'TOOLE 6324 BAYWOOD RD FREELAND, WA 98249 | % Ownership: | 100.0000000000% |
| | | Exemptions: | |
Taxes and Assessment Details
Values
| (+) Improvement Homesite Value: | + | $0 | |
| (+) Improvement Non-Homesite Value: | + | $7,900 | |
| (+) Land Homesite Value: | + | $0 | |
| (+) Land Non-Homesite Value: | + | $240,000 | |
| (+) Curr Use (HS): | + | $0 | $0 |
| (+) Curr Use (NHS): | + | $0 | $0 |
| | | -------------------------- | |
| (=) Market Value: | = | $247,900 | |
| (–) Productivity Loss: | – | $0 | |
| | | -------------------------- | |
| (=) Subtotal: | = | $247,900 | |
| (+) Senior Appraised Value: | + | $0 | |
| (+) Non-Senior Appraised Value: | + | $247,900 | |
| | | -------------------------- | |
| (=) Total Appraised Value: | = | $247,900 | |
| (–) Senior Exemption Loss: | – | $0 | |
| (–) Exemption Loss: | – | $0 | |
| | | -------------------------- | |
| (=) Taxable Value: | = | $247,900 | |
Taxing Jurisdiction
| Owner: | MEYER, CHARLES | | |
| % Ownership: | 100.0000000000% | | |
| Total Value: | $247,900 | | |
| Tax Area: | 712 - APPRAISER-S Whid Schl Dist, outside Langley, improved, greater than 1 acre |
| CF | Conservation Futures | 0.0313996660 | $247,900 | $247,900 | $7.78 | | |
| FIRE3 | Fire & Rescue Dist #3 S Whidbey GEN | 1.2130821753 | $247,900 | $247,900 | $300.72 | | |
| HOBOND | Hospital BOND | 0.1893405597 | $247,900 | $247,900 | $46.94 | | |
| HOGEN | Hospital GEN | 0.3848777722 | $247,900 | $247,900 | $95.41 | | |
| CE | County Current Expense | 0.3674210519 | $247,900 | $247,900 | $91.08 | | |
| CR | County Roads | 0.4614296361 | $247,900 | $247,900 | $114.39 | | |
| ISLANDEMS | Hospital GEN (EMS) | 0.4952018576 | $247,900 | $247,900 | $122.76 | | |
| LIB | Library Sno-Isle GEN | 0.3039084203 | $247,900 | $247,900 | $75.34 | | |
| PORTWHID | Port of S Whidbey GEN | 0.1086004714 | $247,900 | $247,900 | $26.92 | | |
| SCH206BOND | School 206 BOND | 0.5960237832 | $247,900 | $247,900 | $147.75 | | |
| SCH206CAP | School 206 CP | 0.3066144020 | $247,900 | $247,900 | $76.01 | | |
| SCH206MO | School 206 Enrichment | 0.4808755445 | $247,900 | $247,900 | $119.21 | | |
| ST | State School | 1.4761226122 | $247,900 | $247,900 | $365.93 | | |
| ST2 | State School Part 2 | 0.7953803475 | $247,900 | $247,900 | $197.17 | | |
| SWHIDPRBD | P & R S Whidbey BOND | 0.0144185398 | $247,900 | $247,900 | $3.57 | | |
| SWHIDPRBD3 | P & R S Whidbey BOND3 | 0.1483535547 | $247,900 | $247,900 | $36.78 | | |
| SWHIDPRMT | P & R S Whidbey GEN | 0.4600000000 | $247,900 | $247,900 | $114.03 | | |
| | Total Tax Rate: | 7.8330503944 | | | | | |
| | | | | Taxes w/Current Exemptions: | $1,941.79 | | |
| | | | | Taxes w/o Exemptions: | $1,941.79 | | |
Improvement / Building
| Improvement #1: | RESIDENTIAL | State Code: | Y | 0.0 sqft | Value: | $7,900 |
| | Type | Description | Class CD | Sub Class CD | Year Built | Area |
| | oSEP | SEPTIC | 1 | 0 | 1900 | 0.0 |
| | CPD | OPEN CARPORT DIRT FLOOR | 1 | 0 | 1900 | 390.0 |
Sketch
Property Image
Land
| 1 | 32 | AC (03.01-09.99) | 4.8400 | 210830.40 | 0.00 | 0.00 | 1.00 | $240,000 | $0 |
Roll Value History
| 2026 | N/A | N/A | N/A | N/A | N/A |
| 2025 | $7,900 | $240,000 | $0 | $247,900 | $247,900 |
| 2024 | $7,900 | $220,000 | $0 | $227,900 | $227,900 |
| 2023 | $7,900 | $200,000 | $0 | $207,900 | $207,900 |
| 2022 | $7,900 | $170,000 | $0 | $177,900 | $177,900 |
| 2021 | $7,900 | $150,000 | $0 | $157,900 | $157,900 |
| 2020 | $4,000 | $150,000 | $0 | $154,000 | $154,000 |
| 2019 | $4,000 | $120,000 | $0 | $124,000 | $124,000 |
| 2018 | $4,000 | $120,000 | $0 | $124,000 | $124,000 |
| 2017 | $4,000 | $120,000 | $0 | $124,000 | $124,000 |
| 2016 | $4,000 | $130,000 | $0 | $134,000 | $134,000 |
| 2015 | $4,000 | $100,000 | $0 | $104,000 | $104,000 |
| 2014 | $3,000 | $164,000 | $0 | $167,000 | $167,000 |
| 2013 | $3,000 | $164,000 | $0 | $167,000 | $167,000 |
| 2012 | $3,000 | $164,000 | $0 | $167,000 | $167,000 |
Deed and Sales History
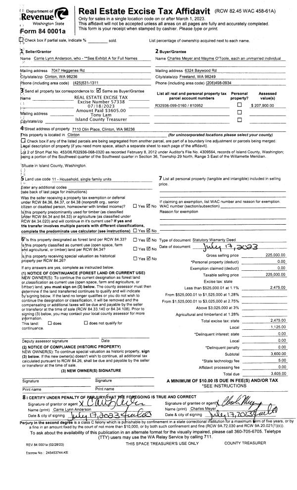
| 1 | 07/17/2023 | WD | Warranty Deed | ALLEN, CARRIE L | MEYER, CHARLES | | | $225,000.00 | 57338 | 4562394 |
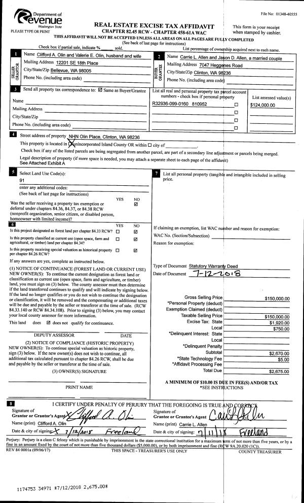
| 2 | 07/12/2018 | WD | Warranty Deed | OLIN, CLIFFORD A | ALLEN, CARRIE L | | | $150,000.00 | 34971 | 4447881 |
Payout Agreement
| No payout information available.. |