Property
Account |
| Property ID: | 811316 | Abbreviated Legal Description: | FISH FOREST PRD LOT 8 |
| Geographic ID: | S8548-00-00008-0 | Agent Code: | |
| Type: | Real | | |
| Tax Area: | 760 - APPRAISER-S Whid Schl Dist, Special District, improved & less than 1 acre | Land Use Code | 11 |
| Open Space: | N | DFL | N |
| Historic Property: | N | Remodel Property: | N |
| Multi-Family Redevelopment: | N | | |
| Township: | 29 | Section: | 15 |
| Range: | R2 |
Location |
| Address: | 1508 SOCKEYE LN FREELAND, WA 98249 | Mapsco: | |
| Neighborhood: | Cycle 3 | Map ID: | 330 |
| Neighborhood CD: | 3 |
Owner |
| Name: | CHAN, PUI CHEE | Owner ID: | 316389 |
| Mailing Address: | 16760 NE 33RD PL BELLEVUE, WA 98008 | % Ownership: | 100.0000000000% |
| | | Exemptions: | |
Taxes and Assessment Details
Values
| (+) Improvement Homesite Value: | + | $0 | |
| (+) Improvement Non-Homesite Value: | + | $328,378 | |
| (+) Land Homesite Value: | + | $0 | |
| (+) Land Non-Homesite Value: | + | $250,000 | |
| (+) Curr Use (HS): | + | $0 | $0 |
| (+) Curr Use (NHS): | + | $0 | $0 |
| | | -------------------------- | |
| (=) Market Value: | = | $578,378 | |
| (–) Productivity Loss: | – | $0 | |
| | | -------------------------- | |
| (=) Subtotal: | = | $578,378 | |
| (+) Senior Appraised Value: | + | $0 | |
| (+) Non-Senior Appraised Value: | + | $578,378 | |
| | | -------------------------- | |
| (=) Total Appraised Value: | = | $578,378 | |
| (–) Senior Exemption Loss: | – | $0 | |
| (–) Exemption Loss: | – | $0 | |
| | | -------------------------- | |
| (=) Taxable Value: | = | $578,378 | |
Taxing Jurisdiction
| Owner: | CHAN, PUI CHEE | | |
| % Ownership: | 100.0000000000% | | |
| Total Value: | $578,378 | | |
| Tax Area: | 760 - APPRAISER-S Whid Schl Dist, Special District, improved & less than 1 acre |
| CF | Conservation Futures | 0.0313996660 | $578,378 | $578,378 | $18.16 | | |
| FIRE3 | Fire & Rescue Dist #3 S Whidbey GEN | 1.2130821753 | $578,378 | $578,378 | $701.62 | | |
| HOBOND | Hospital BOND | 0.1893405597 | $578,378 | $578,378 | $109.51 | | |
| HOGEN | Hospital GEN | 0.3848777722 | $578,378 | $578,378 | $222.60 | | |
| CE | County Current Expense | 0.3674210519 | $578,378 | $578,378 | $212.51 | | |
| CR | County Roads | 0.4614296361 | $578,378 | $578,378 | $266.88 | | |
| ISLANDEMS | Hospital GEN (EMS) | 0.4952018576 | $578,378 | $578,378 | $286.41 | | |
| LIB | Library Sno-Isle GEN | 0.3039084203 | $578,378 | $578,378 | $175.77 | | |
| PORTWHID | Port of S Whidbey GEN | 0.1086004714 | $578,378 | $578,378 | $62.81 | | |
| SCH206BOND | School 206 BOND | 0.5960237832 | $578,378 | $578,378 | $344.73 | | |
| SCH206CAP | School 206 CP | 0.3066144020 | $578,378 | $578,378 | $177.34 | | |
| SCH206MO | School 206 Enrichment | 0.4808755445 | $578,378 | $578,378 | $278.13 | | |
| ST | State School | 1.4761226122 | $578,378 | $578,378 | $853.76 | | |
| ST2 | State School Part 2 | 0.7953803475 | $578,378 | $578,378 | $460.03 | | |
| SWHIDPRBD | P & R S Whidbey BOND | 0.0144185398 | $578,378 | $578,378 | $8.34 | | |
| SWHIDPRBD3 | P & R S Whidbey BOND3 | 0.1483535547 | $578,378 | $578,378 | $85.80 | | |
| SWHIDPRMT | P & R S Whidbey GEN | 0.4600000000 | $578,378 | $578,378 | $266.05 | | |
| | Total Tax Rate: | 7.8330503944 | | | | | |
| | | | | Taxes w/Current Exemptions: | $4,530.45 | | |
| | | | | Taxes w/o Exemptions: | $4,530.45 | | |
Improvement / Building
| Improvement #1: | RESIDENTIAL | State Code: | Y | 1210.5 sqft | Value: | $328,378 |
| Bathrooms: | 1 | Bedrooms: | 2 | | Ceiling: | DRYWALL PAINTED | Cooling: | HEAT PUMP/CONV/V | | Exterior Wall/Cover: | CEMENT FIBER | Floor Covering: | HARDWOOD/CARP 80-20 | | Floor Structure: | WOOD W/SUBFLOOR | Foundation: | CONCRETE | | Interior Finish: | DRYWALL PAINT | Plumbing Fixture Cnt: | 6 | | Roof Slope: | FLAT | Roof Structure/Cover: | BEAM ALUMINUM HEAVY |
|
| | Type | Description | Class CD | Sub Class CD | Year Built | Area |
| | BAS | BASE/MAIN FLOOR | 4 | 0 | 2019 | 1210.5 |
| | OCP | OPEN CARPORT | 4 | 0 | 2019 | 299.0 |
| | OWC | OPEN WOOD PORCH W/STEPS/ROOF/C | 4 | 0 | 2019 | 90.8 |
| | OWC | OPEN WOOD PORCH W/STEPS/ROOF/C | 4 | 0 | 2019 | 41.4 |
Sketch
Property Image
Land
| 1 | 15 | SQ (12001-21780) | 0.4900 | 21344.40 | 0.00 | 0.00 | 1.00 | $250,000 | $0 |
Roll Value History
| 2026 | N/A | N/A | N/A | N/A | N/A |
| 2025 | $328,378 | $250,000 | $0 | $578,378 | $578,378 |
| 2024 | $331,026 | $230,000 | $0 | $561,026 | $561,026 |
| 2023 | $333,674 | $230,000 | $0 | $563,674 | $563,674 |
| 2022 | $304,543 | $220,000 | $0 | $524,543 | $524,543 |
| 2021 | $267,593 | $160,000 | $0 | $427,593 | $427,593 |
| 2020 | $262,711 | $130,000 | $0 | $392,711 | $392,711 |
| 2019 | $111,673 | $75,000 | $0 | $186,673 | $186,673 |
| 2018 | $0 | $75,000 | $0 | $75,000 | $75,000 |
| 2017 | $0 | $60,000 | $0 | $60,000 | $60,000 |
| 2016 | $0 | $60,000 | $0 | $60,000 | $60,000 |
| 2015 | $0 | $60,000 | $0 | $60,000 | $60,000 |
| 2014 | $0 | $75,000 | $0 | $75,000 | $75,000 |
| 2013 | $0 | $75,000 | $0 | $75,000 | $75,000 |
| 2012 | $0 | $34,950 | $0 | $34,950 | $34,950 |
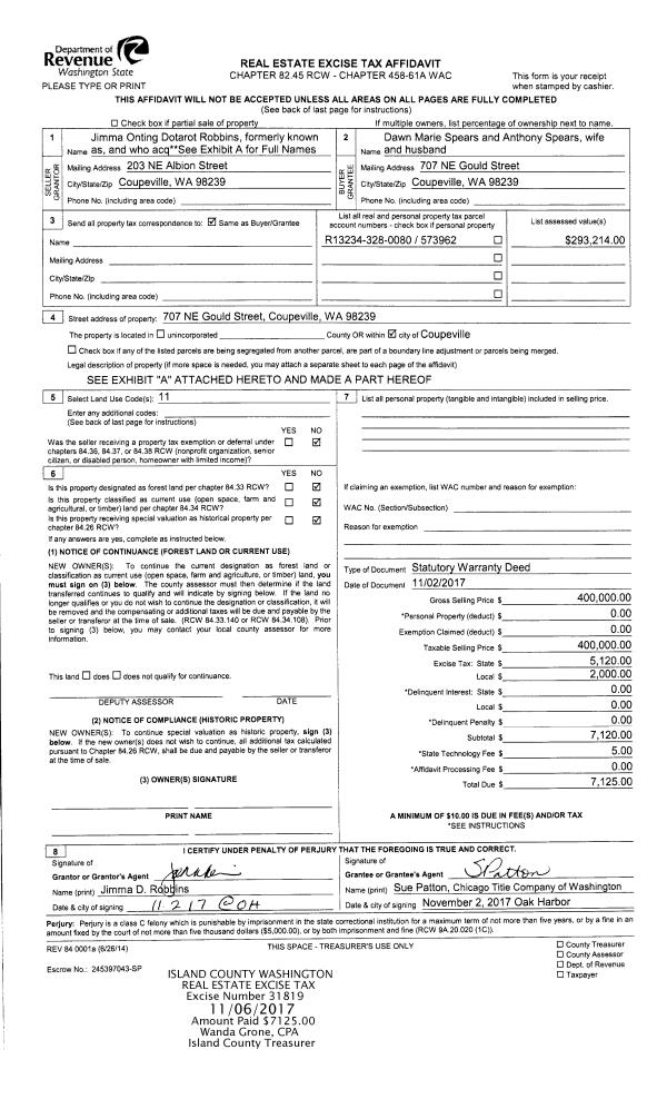
Deed and Sales History
| 1 | 05/02/2025 | WD | Warranty Deed | ECKARDT, LAURIE J | CHAN, PUI CHEE | | | $675,000.00 | 63385 | 45852424 |
| 2 | 03/14/2023 | WD | Warranty Deed | MACCREARY, ANDREW A | ECKARDT, LAURIE J | | | $590,000.00 | 56132 | 4557808 |
| 3 | 11/08/2017 | WD | Warranty Deed | CLEMENTS, QUIN | MACCREARY, ANDREW A | | | $75,000.00 | 31877 | 4433884 |
| 4 | 11/25/2014 | QCD | Quit Claim Deed | SILVER FIN INVESTMENTS LLC | CLEMENTS, QUIN | | | $0.00 | 17684 | 4369033 |
Payout Agreement
| No payout information available.. |