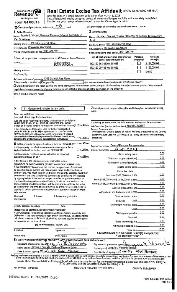
Property
Account |
| Property ID: | 811669 | Abbreviated Legal Description: | S/2 W/2 SW NW TGW & SUBJ TO 60' EZ AF#98013014 & EX PT TO IS CO AF#4387891 |
| Geographic ID: | R23120-297-0310 | Agent Code: | |
| Type: | Real | | |
| Tax Area: | 312 - APPRAISER-Cpvl Schl Dist, outside Cpvl, improved, greater than 1 acre | Land Use Code | 11 |
| Open Space: | N | DFL | N |
| Historic Property: | N | Remodel Property: | N |
| Multi-Family Redevelopment: | N | | |
| Township: | 31 | Section: | 20 |
| Range: | R2 |
Location |
| Address: | 1368 GRATEFUL ACRE PLACE COUPEVILLE, WA 98239 | Mapsco: | |
| Neighborhood: | Cycle 2 | Map ID: | 499 |
| Neighborhood CD: | 2 |
Owner |
| Name: | VINCENT TTEE, JACQUIE L | Owner ID: | 310361 |
| Mailing Address: | 309 LAKE HANCOCK DR COUPEVILLE, WA 98239 | % Ownership: | 100.0000000000% |
| | | Exemptions: | |
Taxes and Assessment Details
Values
| (+) Improvement Homesite Value: | + | $0 | |
| (+) Improvement Non-Homesite Value: | + | $65,224 | |
| (+) Land Homesite Value: | + | $0 | |
| (+) Land Non-Homesite Value: | + | $170,787 | |
| (+) Curr Use (HS): | + | $0 | $0 |
| (+) Curr Use (NHS): | + | $0 | $0 |
| | | -------------------------- | |
| (=) Market Value: | = | $236,011 | |
| (–) Productivity Loss: | – | $0 | |
| | | -------------------------- | |
| (=) Subtotal: | = | $236,011 | |
| (+) Senior Appraised Value: | + | $0 | |
| (+) Non-Senior Appraised Value: | + | $236,011 | |
| | | -------------------------- | |
| (=) Total Appraised Value: | = | $236,011 | |
| (–) Senior Exemption Loss: | – | $0 | |
| (–) Exemption Loss: | – | $0 | |
| | | -------------------------- | |
| (=) Taxable Value: | = | $236,011 | |
Taxing Jurisdiction
| Owner: | VINCENT TTEE, JACQUIE L | | |
| % Ownership: | 100.0000000000% | | |
| Total Value: | $236,011 | | |
| Tax Area: | 312 - APPRAISER-Cpvl Schl Dist, outside Cpvl, improved, greater than 1 acre |
| CF | Conservation Futures | 0.0313996660 | $236,011 | $236,011 | $7.41 | | |
| CEM2 | Cemetery #2 | 0.0092609791 | $236,011 | $236,011 | $2.19 | | |
| FIRE5 | Fire & Rescue Dist #5 C Whidbey GEN | 1.1892169230 | $236,011 | $236,011 | $280.67 | | |
| FIRE5BOND | Fire & Rescue Dist #5 C Whidbey BOND | 0.1394359503 | $236,011 | $236,011 | $32.91 | | |
| HOBOND | Hospital BOND | 0.1893405597 | $236,011 | $236,011 | $44.69 | | |
| HOGEN | Hospital GEN | 0.3848777722 | $236,011 | $236,011 | $90.84 | | |
| CE | County Current Expense | 0.3674210519 | $236,011 | $236,011 | $86.72 | | |
| CR | County Roads | 0.4614296361 | $236,011 | $236,011 | $108.90 | | |
| ISLANDEMS | Hospital GEN (EMS) | 0.4952018576 | $236,011 | $236,011 | $116.87 | | |
| LIB | Library Sno-Isle GEN | 0.3039084203 | $236,011 | $236,011 | $71.73 | | |
| LIBCAP | Library Sno-Isle BOND (Cap Fac Imp Area) | 0.0528562629 | $236,011 | $236,011 | $12.47 | | |
| POCOUP | Port of Coupeville GEN | 0.1065226063 | $236,011 | $236,011 | $25.14 | | |
| POCOUPIDD | Port of Coupeville IDD | 0.3353038577 | $236,011 | $236,011 | $79.14 | | |
| COUPSDTECH | School 204 CP (TECH) | 0.1215123397 | $236,011 | $236,011 | $28.68 | | |
| SCH204MO | School 204 Enrichment | 0.6416662518 | $236,011 | $236,011 | $151.44 | | |
| ST | State School | 1.4761226122 | $236,011 | $236,011 | $348.38 | | |
| ST2 | State School Part 2 | 0.7953803475 | $236,011 | $236,011 | $187.72 | | |
| | Total Tax Rate: | 7.1008570943 | | | | | |
| | | | | Taxes w/Current Exemptions: | $1,675.90 | | |
| | | | | Taxes w/o Exemptions: | $1,675.90 | | |
Improvement / Building
| Improvement #1: | RESIDENTIAL | State Code: | Y | 0.0 sqft | Value: | $65,224 |
Sketch
| No sketches available for this property. |
Property Image
Land
| 1 | 91 | UNDEVELOPED LAND-METES AND BOUNDS | 9.7300 | 423838.80 | 0.00 | 0.00 | 1.00 | $170,787 | $0 |
Roll Value History
| 2026 | N/A | N/A | N/A | N/A | N/A |
| 2025 | $65,224 | $170,787 | $0 | $236,011 | $236,011 |
| 2024 | $42,000 | $140,000 | $0 | $182,000 | $182,000 |
| 2023 | $42,000 | $140,000 | $0 | $182,000 | $182,000 |
| 2022 | $42,000 | $130,000 | $0 | $172,000 | $172,000 |
| 2021 | $42,000 | $130,000 | $0 | $172,000 | $172,000 |
| 2020 | $42,000 | $120,000 | $0 | $162,000 | $162,000 |
| 2019 | $42,000 | $125,000 | $0 | $167,000 | $167,000 |
| 2018 | $38,000 | $100,000 | $0 | $138,000 | $138,000 |
| 2017 | $38,000 | $100,000 | $2,424 | $40,424 | $40,424 |
| 2016 | $38,000 | $100,000 | $2,424 | $40,424 | $40,424 |
| 2015 | $38,000 | $84,829 | $2,424 | $40,424 | $40,424 |
| 2014 | $0 | $84,829 | $2,424 | $2,424 | $2,424 |
| 2013 | $0 | $84,829 | $2,424 | $2,424 | $2,424 |
Deed and Sales History
| 1 | 10/11/2023 | PRD | Personal Representatives Deed | KELLEMS, VAN G | VINCENT TTEE, JACQUIE L | | | $0.00 | 58240 | 4565708 |
| 2 | 10/14/2015 | WD | Warranty Deed | KELLEMS, VAN G | KELLEMS, VAN G | | | $0.00 | 21793 | 4387891 |
Payout Agreement
| No payout information available.. |