Property
Account |
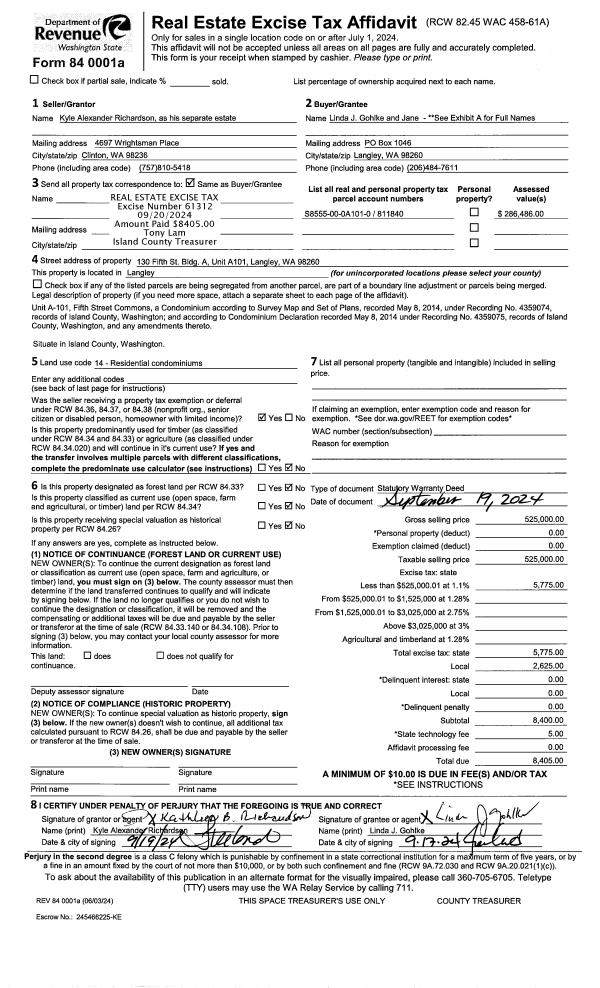
| Property ID: | 811840 | Abbreviated Legal Description: | FIFTH STREET COMMONS CONDO UNIT A-101 |
| Geographic ID: | S8555-00-0A101-0 | Agent Code: | |
| Type: | Real | | |
| Tax Area: | 700 - APPRAISER-S Whid Schl Dist, in town of Langley | Land Use Code | 14 |
| Open Space: | N | DFL | N |
| Historic Property: | N | Remodel Property: | N |
| Multi-Family Redevelopment: | N | | |
| Township: | 30 | Section: | 34 |
| Range: | R3 |
Location |
| Address: | 130 FIFTH ST BLDG A, UNIT A101 LANGLEY, WA 98260 | Mapsco: | |
| Neighborhood: | 42*LG-5th street | Map ID: | 913 |
| Neighborhood CD: | 42*LG5stre |
Owner |
| Name: | GOHLKE TTEE, LINDA J | Owner ID: | 314003 |
| Mailing Address: | JANE C HARDIN TTEE PO BOX 1046 LANGLEY, WA 98260 | % Ownership: | 100.0000000000% |
| | | Exemptions: | |
Taxes and Assessment Details
Values
| (+) Improvement Homesite Value: | + | $0 | |
| (+) Improvement Non-Homesite Value: | + | $164,697 | |
| (+) Land Homesite Value: | + | $0 | |
| (+) Land Non-Homesite Value: | + | $150,000 | |
| (+) Curr Use (HS): | + | $0 | $0 |
| (+) Curr Use (NHS): | + | $0 | $0 |
| | | -------------------------- | |
| (=) Market Value: | = | $314,697 | |
| (–) Productivity Loss: | – | $0 | |
| | | -------------------------- | |
| (=) Subtotal: | = | $314,697 | |
| (+) Senior Appraised Value: | + | $0 | |
| (+) Non-Senior Appraised Value: | + | $314,697 | |
| | | -------------------------- | |
| (=) Total Appraised Value: | = | $314,697 | |
| (–) Senior Exemption Loss: | – | $0 | |
| (–) Exemption Loss: | – | $0 | |
| | | -------------------------- | |
| (=) Taxable Value: | = | $314,697 | |
Taxing Jurisdiction
| Owner: | GOHLKE TTEE, LINDA J | | |
| % Ownership: | 100.0000000000% | | |
| Total Value: | $314,697 | | |
| Tax Area: | 700 - APPRAISER-S Whid Schl Dist, in town of Langley |
| CF | Conservation Futures | 0.0313996660 | $314,697 | $314,697 | $9.88 | | |
| LANG | City of Langley | 1.0106798199 | $314,697 | $314,697 | $318.06 | | |
| LANGBOND | City of Langley BOND | 0.0000000000 | $314,697 | $314,697 | $0.00 | | |
| FIRE3 | Fire & Rescue Dist #3 S Whidbey GEN | 1.2130821753 | $314,697 | $314,697 | $381.75 | | |
| HOBOND | Hospital BOND | 0.1893405597 | $314,697 | $314,697 | $59.58 | | |
| HOGEN | Hospital GEN | 0.3848777722 | $314,697 | $314,697 | $121.12 | | |
| CE | County Current Expense | 0.3674210519 | $314,697 | $314,697 | $115.63 | | |
| ISLANDEMS | Hospital GEN (EMS) | 0.4952018576 | $314,697 | $314,697 | $155.84 | | |
| LIB | Library Sno-Isle GEN | 0.3039084203 | $314,697 | $314,697 | $95.64 | | |
| PORTWHID | Port of S Whidbey GEN | 0.1086004714 | $314,697 | $314,697 | $34.18 | | |
| SCH206BOND | School 206 BOND | 0.5960237832 | $314,697 | $314,697 | $187.57 | | |
| SCH206CAP | School 206 CP | 0.3066144020 | $314,697 | $314,697 | $96.49 | | |
| SCH206MO | School 206 Enrichment | 0.4808755445 | $314,697 | $314,697 | $151.33 | | |
| ST | State School | 1.4761226122 | $314,697 | $314,697 | $464.53 | | |
| ST2 | State School Part 2 | 0.7953803475 | $314,697 | $314,697 | $250.30 | | |
| SWHIDPRBD | P & R S Whidbey BOND | 0.0144185398 | $314,697 | $314,697 | $4.54 | | |
| SWHIDPRBD3 | P & R S Whidbey BOND3 | 0.1483535547 | $314,697 | $314,697 | $46.69 | | |
| SWHIDPRMT | P & R S Whidbey GEN | 0.4600000000 | $314,697 | $314,697 | $144.76 | | |
| | Total Tax Rate: | 8.3823005782 | | | | | |
| | | | | Taxes w/Current Exemptions: | $2,637.89 | | |
| | | | | Taxes w/o Exemptions: | $2,637.89 | | |
Improvement / Building
| Improvement #1: | RESIDENTIAL | State Code: | A1 | 727.0 sqft | Value: | $164,697 |
| Bathrooms: | 1 | Bedrooms: | 2 | | Ceiling: | DRYWALL PAINTED | Exterior Wall/Cover: | CEMENT FIBER | | Floor Covering: | CARPET/VINYL 80-20 | Floor Structure: | WOOD W/SUBFLOOR | | Foundation: | CONCRETE | Heating: | FHA GAS | | Interior Finish: | DRYWALL PAINT | Plumbing Fixture Cnt: | 6 | | Roof Slope: | 8" IN 12" | Roof Structure/Cover: | CJ ASPHALT |
|
| | Type | Description | Class CD | Sub Class CD | Year Built | Area |
| | BAS | BASE/MAIN FLOOR | 3 | 0 | 1997 | 727.0 |
| | OP1 | OPEN PORCH SLAB | 3 | 0 | 1997 | 84.0 |
| | OCP | OPEN CARPORT | 3 | 0 | 1997 | 162.0 |
| | COMA | Common Area Improvement | 3 | 0 | 1997 | 0.0 |
Sketch
Property Image
Land
| 1 | 61 | MULTIPLE RESIDENCES | 0.0000 | 0.00 | 0.00 | 0.00 | 1.00 | $150,000 | $0 |
Roll Value History
| 2026 | N/A | N/A | N/A | N/A | N/A |
| 2025 | $164,697 | $150,000 | $0 | $314,697 | $314,697 |
| 2024 | $166,486 | $120,000 | $0 | $286,486 | $286,486 |
| 2023 | $168,274 | $100,000 | $0 | $268,274 | $49,610 |
| 2022 | $155,489 | $70,000 | $0 | $225,489 | $49,610 |
| 2021 | $138,684 | $70,000 | $0 | $208,684 | $49,610 |
| 2020 | $107,928 | $95,000 | $0 | $202,928 | $49,610 |
| 2019 | $73,341 | $120,000 | $0 | $193,341 | $49,610 |
| 2018 | $73,574 | $60,000 | $0 | $133,574 | $49,610 |
| 2017 | $74,036 | $49,065 | $0 | $123,101 | $49,240 |
| 2016 | $74,961 | $49,065 | $0 | $124,026 | $49,610 |
| 2015 | $75,887 | $49,065 | $0 | $124,952 | $124,952 |
| 2014 | $95,289 | $49,065 | $0 | $144,354 | $144,354 |
Deed and Sales History
| 1 | 09/19/2024 | WD | Warranty Deed | RICHARDSON, KYLE ALEXANDER | GOHLKE TTEE, LINDA J | | | $525,000.00 | 61312 | 4577272 |
| 2 | 05/04/2016 | WD | Warranty Deed | MAYOTTE, JEANNIE | RICHARDSON, KYLE ALEXANDER | | | $130,000.00 | 24268 | 4399124 |
| 3 | 12/01/2014 | WD | Warranty Deed | FIFTH STREET COMMONS LLC | MAYOTTE, JEANNIE | | | $120,000.00 | 17724 | 4369222 |
Payout Agreement
| No payout information available.. |