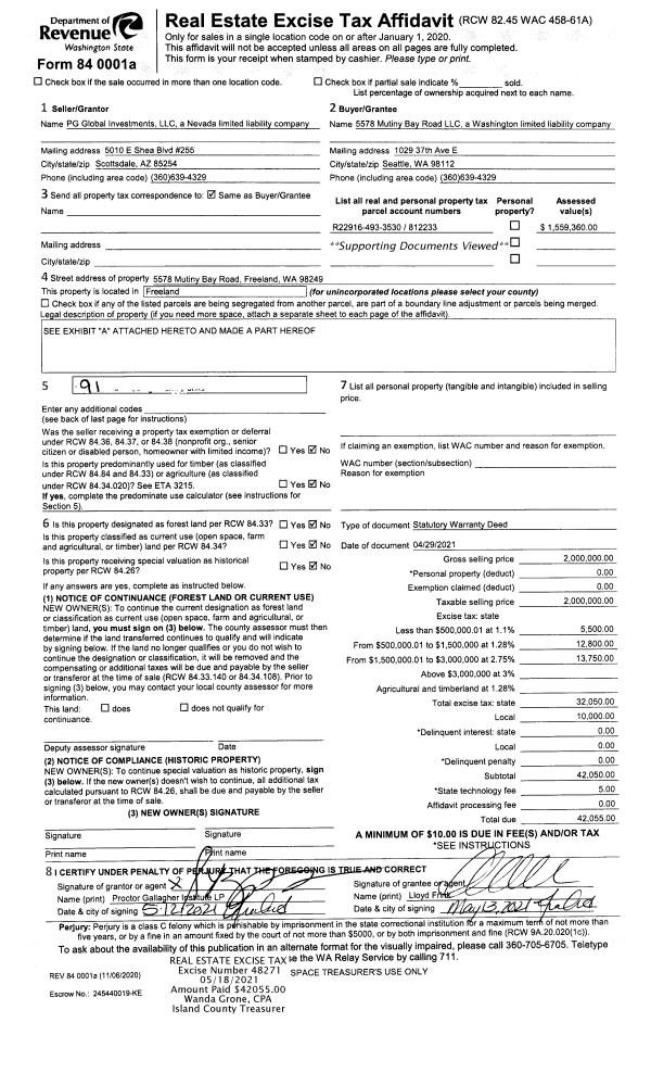
Property
Account |
| Property ID: | 812233 | Abbreviated Legal Description: | PT GL1 SEC 16 DESC: BG NECR GL1 S85*W ALG NLN GL1 237.27' TPB W 339.83' W 100' W 180' W 9.88' W 223.17' N40*W 307.14' E 474.93 TO NLN GL1 N85E ALG NLN GL1 401.35' TPB TGW ADJ TIDES |
| Geographic ID: | R22916-493-3530 | Agent Code: | |
| Type: | Real | | |
| Tax Area: | 712 - APPRAISER-S Whid Schl Dist, outside Langley, improved, greater than 1 acre | Land Use Code | 11 |
| Open Space: | N | DFL | N |
| Historic Property: | N | Remodel Property: | N |
| Multi-Family Redevelopment: | N | | |
| Township: | 29 | Section: | 16 |
| Range: | R2 |
Location |
| Address: | 5578 MUTINY BAY RD FREELAND, WA 98249 | Mapsco: | |
| Neighborhood: | Cycle 3 | Map ID: | 333 |
| Neighborhood CD: | 3 |
Owner |
| Name: | 5578 MUTINY BAY ROAD LLC | Owner ID: | 299393 |
| Mailing Address: | 5578 MUTINY BAY RD FREELAND, WA 98249 | % Ownership: | 100.0000000000% |
| | | Exemptions: | |
Taxes and Assessment Details
Values
| (+) Improvement Homesite Value: | + | $0 | |
| (+) Improvement Non-Homesite Value: | + | $7,360 | |
| (+) Land Homesite Value: | + | $0 | |
| (+) Land Non-Homesite Value: | + | $2,202,000 | |
| (+) Curr Use (HS): | + | $0 | $0 |
| (+) Curr Use (NHS): | + | $0 | $0 |
| | | -------------------------- | |
| (=) Market Value: | = | $2,209,360 | |
| (–) Productivity Loss: | – | $0 | |
| | | -------------------------- | |
| (=) Subtotal: | = | $2,209,360 | |
| (+) Senior Appraised Value: | + | $0 | |
| (+) Non-Senior Appraised Value: | + | $2,209,360 | |
| | | -------------------------- | |
| (=) Total Appraised Value: | = | $2,209,360 | |
| (–) Senior Exemption Loss: | – | $0 | |
| (–) Exemption Loss: | – | $0 | |
| | | -------------------------- | |
| (=) Taxable Value: | = | $2,209,360 | |
Taxing Jurisdiction
| Owner: | 5578 MUTINY BAY ROAD LLC | | |
| % Ownership: | 100.0000000000% | | |
| Total Value: | $2,209,360 | | |
| Tax Area: | 712 - APPRAISER-S Whid Schl Dist, outside Langley, improved, greater than 1 acre |
| CF | Conservation Futures | 0.0313996660 | $2,209,360 | $2,209,360 | $69.37 | | |
| FIRE3 | Fire & Rescue Dist #3 S Whidbey GEN | 1.2130821753 | $2,209,360 | $2,209,360 | $2,680.14 | | |
| HOBOND | Hospital BOND | 0.1893405597 | $2,209,360 | $2,209,360 | $418.32 | | |
| HOGEN | Hospital GEN | 0.3848777722 | $2,209,360 | $2,209,360 | $850.33 | | |
| CE | County Current Expense | 0.3674210519 | $2,209,360 | $2,209,360 | $811.77 | | |
| CR | County Roads | 0.4614296361 | $2,209,360 | $2,209,360 | $1,019.46 | | |
| ISLANDEMS | Hospital GEN (EMS) | 0.4952018576 | $2,209,360 | $2,209,360 | $1,094.08 | | |
| LIB | Library Sno-Isle GEN | 0.3039084203 | $2,209,360 | $2,209,360 | $671.44 | | |
| PORTWHID | Port of S Whidbey GEN | 0.1086004714 | $2,209,360 | $2,209,360 | $239.94 | | |
| SCH206BOND | School 206 BOND | 0.5960237832 | $2,209,360 | $2,209,360 | $1,316.83 | | |
| SCH206CAP | School 206 CP | 0.3066144020 | $2,209,360 | $2,209,360 | $677.42 | | |
| SCH206MO | School 206 Enrichment | 0.4808755445 | $2,209,360 | $2,209,360 | $1,062.43 | | |
| ST | State School | 1.4761226122 | $2,209,360 | $2,209,360 | $3,261.29 | | |
| ST2 | State School Part 2 | 0.7953803475 | $2,209,360 | $2,209,360 | $1,757.28 | | |
| SWHIDPRBD | P & R S Whidbey BOND | 0.0144185398 | $2,209,360 | $2,209,360 | $31.86 | | |
| SWHIDPRBD3 | P & R S Whidbey BOND3 | 0.1483535547 | $2,209,360 | $2,209,360 | $327.77 | | |
| SWHIDPRMT | P & R S Whidbey GEN | 0.4600000000 | $2,209,360 | $2,209,360 | $1,016.31 | | |
| | Total Tax Rate: | 7.8330503944 | | | | | |
| | | | | Taxes w/Current Exemptions: | $17,306.04 | | |
| | | | | Taxes w/o Exemptions: | $17,306.04 | | |
Improvement / Building
| Improvement #1: | RESIDENTIAL | State Code: | Y | 0.0 sqft | Value: | $7,360 |
| | Type | Description | Class CD | Sub Class CD | Year Built | Area |
| | DGR | DETACHED GARAGE | 3 | 0 | 2017 | 308.0 |
| | UTY | STORAGE/UTILITY | 3 | 0 | 2017 | 120.0 |
Sketch
Property Image
Land
| 1 | HB | HIGH BLUFF | 4.6800 | 203860.80 | 140.00 | 0.00 | 1.00 | $2,200,000 | $0 |
| 2 | 55 | TIDES | 0.0000 | 0.00 | 200.00 | 0.00 | 1.00 | $2,000 | $0 |
Roll Value History
| 2026 | N/A | N/A | N/A | N/A | N/A |
| 2025 | $7,360 | $2,202,000 | $0 | $2,209,360 | $2,209,360 |
| 2024 | $7,360 | $2,202,000 | $0 | $2,209,360 | $2,209,360 |
| 2023 | $7,360 | $2,302,000 | $0 | $2,309,360 | $2,309,360 |
| 2022 | $7,360 | $2,052,000 | $0 | $2,059,360 | $2,059,360 |
| 2021 | $7,360 | $1,652,000 | $0 | $1,659,360 | $1,659,360 |
| 2020 | $7,360 | $1,552,000 | $0 | $1,559,360 | $1,559,360 |
| 2019 | $7,360 | $1,552,000 | $0 | $1,559,360 | $1,559,360 |
| 2018 | $7,360 | $1,502,000 | $0 | $1,509,360 | $1,509,360 |
| 2017 | $7,360 | $1,502,000 | $0 | $1,509,360 | $1,509,360 |
| 2016 | $0 | $1,502,000 | $0 | $1,502,000 | $1,502,000 |
| 2015 | $0 | $1,502,000 | $0 | $1,502,000 | $1,502,000 |
Deed and Sales History
| 1 | 04/29/2021 | WD | Warranty Deed | PG GLOBAL INVESTMENTS, LLC | 5578 MUTINY BAY ROAD LLC | | | $2,000,000.00 | 48271 | 4519528 |
| 2 | 08/10/2016 | WD | Warranty Deed | TANGRAM CONSULTING GROUP | PG GLOBAL INVESTMENTS, LLC | | | $1,850,000.00 | 25646 | 4405032 |
Payout Agreement
| No payout information available.. |