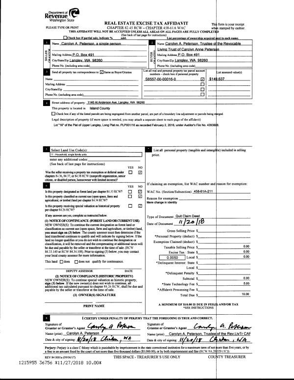
Property
Account |
| Property ID: | 812344 | Abbreviated Legal Description: | UPPER LANGLEY LOT 16 |
| Geographic ID: | S8557-00-00016-0 | Agent Code: | |
| Type: | Real | | |
| Tax Area: | 700 - APPRAISER-S Whid Schl Dist, in town of Langley | Land Use Code | 11 |
| Open Space: | N | DFL | N |
| Historic Property: | N | Remodel Property: | N |
| Multi-Family Redevelopment: | N | | |
| Township: | 29 | Section: | 3 |
| Range: | R3 |
Location |
| Address: | 1140 AL ANDERSON AVE LANGLEY, WA 98260 | Mapsco: | |
| Neighborhood: | City of Langley | Map ID: | 723 |
| Neighborhood CD: | 04-L |
Owner |
| Name: | PETERSON TTEE, CAROLYN A | Owner ID: | 288011 |
| Mailing Address: | PO BOX 491 LANGLEY, WA 98260 | % Ownership: | 100.0000000000% |
| | | Exemptions: | |
Taxes and Assessment Details
Values
| (+) Improvement Homesite Value: | + | $0 | |
| (+) Improvement Non-Homesite Value: | + | $79,104 | |
| (+) Land Homesite Value: | + | $0 | |
| (+) Land Non-Homesite Value: | + | $85,753 | |
| (+) Curr Use (HS): | + | $0 | $0 |
| (+) Curr Use (NHS): | + | $0 | $0 |
| | | -------------------------- | |
| (=) Market Value: | = | $164,857 | |
| (–) Productivity Loss: | – | $0 | |
| | | -------------------------- | |
| (=) Subtotal: | = | $164,857 | |
| (+) Senior Appraised Value: | + | $0 | |
| (+) Non-Senior Appraised Value: | + | $164,857 | |
| | | -------------------------- | |
| (=) Total Appraised Value: | = | $164,857 | |
| (–) Senior Exemption Loss: | – | $0 | |
| (–) Exemption Loss: | – | $0 | |
| | | -------------------------- | |
| (=) Taxable Value: | = | $164,857 | |
Taxing Jurisdiction
| Owner: | PETERSON TTEE, CAROLYN A | | |
| % Ownership: | 100.0000000000% | | |
| Total Value: | $164,857 | | |
| Tax Area: | 700 - APPRAISER-S Whid Schl Dist, in town of Langley |
| CF | Conservation Futures | 0.0313996660 | $164,857 | $164,857 | $5.18 | | |
| LANG | City of Langley | 1.0106798199 | $164,857 | $164,857 | $166.62 | | |
| LANGBOND | City of Langley BOND | 0.0000000000 | $164,857 | $164,857 | $0.00 | | |
| FIRE3 | Fire & Rescue Dist #3 S Whidbey GEN | 1.2130821753 | $164,857 | $164,857 | $199.99 | | |
| HOBOND | Hospital BOND | 0.1893405597 | $164,857 | $164,857 | $31.21 | | |
| HOGEN | Hospital GEN | 0.3848777722 | $164,857 | $164,857 | $63.45 | | |
| CE | County Current Expense | 0.3674210519 | $164,857 | $164,857 | $60.57 | | |
| ISLANDEMS | Hospital GEN (EMS) | 0.4952018576 | $164,857 | $164,857 | $81.64 | | |
| LIB | Library Sno-Isle GEN | 0.3039084203 | $164,857 | $164,857 | $50.10 | | |
| PORTWHID | Port of S Whidbey GEN | 0.1086004714 | $164,857 | $164,857 | $17.90 | | |
| SCH206BOND | School 206 BOND | 0.5960237832 | $164,857 | $164,857 | $98.26 | | |
| SCH206CAP | School 206 CP | 0.3066144020 | $164,857 | $164,857 | $50.55 | | |
| SCH206MO | School 206 Enrichment | 0.4808755445 | $164,857 | $164,857 | $79.28 | | |
| ST | State School | 1.4761226122 | $164,857 | $164,857 | $243.35 | | |
| ST2 | State School Part 2 | 0.7953803475 | $164,857 | $164,857 | $131.12 | | |
| SWHIDPRBD | P & R S Whidbey BOND | 0.0144185398 | $164,857 | $164,857 | $2.38 | | |
| SWHIDPRBD3 | P & R S Whidbey BOND3 | 0.1483535547 | $164,857 | $164,857 | $24.46 | | |
| SWHIDPRMT | P & R S Whidbey GEN | 0.4600000000 | $164,857 | $164,857 | $75.83 | | |
| | Total Tax Rate: | 8.3823005782 | | | | | |
| | | | | Taxes w/Current Exemptions: | $1,381.89 | | |
| | | | | Taxes w/o Exemptions: | $1,381.89 | | |
Improvement / Building
| Improvement #1: | RESIDENTIAL | State Code: | Y | 450.0 sqft | Value: | $79,104 |
| Bathrooms: | 1 | Bedrooms: | 0 | | Ceiling: | DRYWALL PAINTED | Exterior Wall/Cover: | PLY/HARDBOARD T-111 | | Floor Covering: | VINYL 100% | Floor Structure: | WOOD W/SUBFLOOR | | Foundation: | CONCRETE | Heating: | (NONE) | | Interior Finish: | DRYWALL PAINT | Plumbing Fixture Cnt: | 6 | | Roof Slope: | 3" IN 12" | Roof Structure/Cover: | CJ ALUMINIUM HEAVY |
|
| | Type | Description | Class CD | Sub Class CD | Year Built | Area |
| | BAS | BASE/MAIN FLOOR | 3 | 0 | 2016 | 450.0 |
| | OP1 | OPEN PORCH SLAB | 3 | 0 | 2016 | 75.0 |
| | OWC | OPEN WOOD PORCH W/STEPS/ROOF/C | 3 | 0 | 2016 | 50.0 |
| | UTY | STORAGE/UTILITY | 3 | 0 | 2016 | 120.0 |
| | UTY | STORAGE/UTILITY | 3 | 0 | 2016 | 120.0 |
| | CPD | OPEN CARPORT DIRT FLOOR | 3 | 0 | 2016 | 80.0 |
Sketch
Property Image
Land
| 1 | 12 | SQ (00000-06000) | 0.0500 | 2178.00 | 0.00 | 0.00 | 1.00 | $85,753 | $0 |
Roll Value History
| 2026 | N/A | N/A | N/A | N/A | N/A |
| 2025 | $79,104 | $85,753 | $0 | $164,857 | $164,857 |
| 2024 | $79,104 | $84,486 | $0 | $163,590 | $163,590 |
| 2023 | $77,935 | $83,238 | $0 | $161,173 | $161,173 |
| 2022 | $76,784 | $82,008 | $0 | $158,792 | $158,792 |
| 2021 | $75,649 | $80,796 | $0 | $156,445 | $156,445 |
| 2020 | $74,531 | $79,602 | $0 | $154,133 | $154,133 |
| 2019 | $73,430 | $78,426 | $0 | $151,856 | $151,856 |
| 2018 | $72,370 | $77,267 | $0 | $149,637 | $149,637 |
| 2017 | $59,705 | $76,125 | $0 | $135,830 | $135,830 |
| 2016 | $11,263 | $60,000 | $0 | $71,263 | $71,263 |
Deed and Sales History
| 1 | 11/20/2018 | QCD | Quit Claim Deed | PETERSON, CAROLYN A | PETERSON TTEE, CAROLYN A | | | $0.00 | 36756 | 4455508 |
| 2 | 02/18/2016 | QCD | Quit Claim Deed | UPPER LANGLEY LLC | PETERSON, CAROLYN A | | | | 23228 | 4394512 |
Payout Agreement
| No payout information available.. |