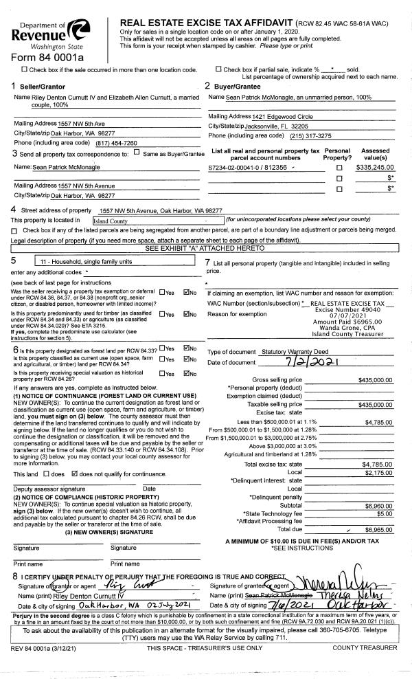
Property
Account |
| Property ID: | 812356 | Abbreviated Legal Description: | ISLAND PLACE #2 LOT 41 AMENDED AF#4399407 |
| Geographic ID: | S7234-02-00041-0 | Agent Code: | |
| Type: | Real | | |
| Tax Area: | 100 - APPRAISER-OH Schl Dist, in OH | Land Use Code | 11 |
| Open Space: | N | DFL | N |
| Historic Property: | N | Remodel Property: | N |
| Multi-Family Redevelopment: | N | | |
| Township: | 33 | Section: | 34 |
| Range: | R1 |
Location |
| Address: | 1557 NW 5TH AVE OAK HARBOR, WA 98277 | Mapsco: | |
| Neighborhood: | Cycle 1 | Map ID: | 252 |
| Neighborhood CD: | 1 |
Owner |
| Name: | MCMONAGLE, SEAN PATRICK | Owner ID: | 300103 |
| Mailing Address: | 1557 NW 5TH AVE OAK HARBOR, WA 98277 | % Ownership: | 100.0000000000% |
| | | Exemptions: | |
Taxes and Assessment Details
Values
| (+) Improvement Homesite Value: | + | $0 | |
| (+) Improvement Non-Homesite Value: | + | $323,190 | |
| (+) Land Homesite Value: | + | $0 | |
| (+) Land Non-Homesite Value: | + | $155,000 | |
| (+) Curr Use (HS): | + | $0 | $0 |
| (+) Curr Use (NHS): | + | $0 | $0 |
| | | -------------------------- | |
| (=) Market Value: | = | $478,190 | |
| (–) Productivity Loss: | – | $0 | |
| | | -------------------------- | |
| (=) Subtotal: | = | $478,190 | |
| (+) Senior Appraised Value: | + | $0 | |
| (+) Non-Senior Appraised Value: | + | $478,190 | |
| | | -------------------------- | |
| (=) Total Appraised Value: | = | $478,190 | |
| (–) Senior Exemption Loss: | – | $0 | |
| (–) Exemption Loss: | – | $0 | |
| | | -------------------------- | |
| (=) Taxable Value: | = | $478,190 | |
Taxing Jurisdiction
| Owner: | MCMONAGLE, SEAN PATRICK | | |
| % Ownership: | 100.0000000000% | | |
| Total Value: | $478,190 | | |
| Tax Area: | 100 - APPRAISER-OH Schl Dist, in OH |
| CF | Conservation Futures | 0.0313996660 | $478,190 | $478,190 | $15.02 | | |
| CEM1 | Cemetery #1 | 0.0040018856 | $478,190 | $478,190 | $1.91 | | |
| COH | City of Oak Harbor | 2.3090730572 | $478,190 | $478,190 | $1,104.18 | | |
| OAKBOND | City of Oak Harbor BOND | 0.1902260131 | $478,190 | $478,190 | $90.96 | | |
| HOBOND | Hospital BOND | 0.1893405597 | $478,190 | $478,190 | $90.54 | | |
| HOGEN | Hospital GEN | 0.3848777722 | $478,190 | $478,190 | $184.04 | | |
| CE | County Current Expense | 0.3674210519 | $478,190 | $478,190 | $175.70 | | |
| ISLANDEMS | Hospital GEN (EMS) | 0.4952018576 | $478,190 | $478,190 | $236.80 | | |
| LIB | Library Sno-Isle GEN | 0.3039084203 | $478,190 | $478,190 | $145.33 | | |
| NWHIDPRMT | P & R N Whidbey GEN | 0.1990272349 | $478,190 | $478,190 | $95.17 | | |
| SCH201MO | School 201 Enrichment | 2.3851112745 | $478,190 | $478,190 | $1,140.54 | | |
| ST | State School | 1.4761226122 | $478,190 | $478,190 | $705.87 | | |
| ST2 | State School Part 2 | 0.7953803475 | $478,190 | $478,190 | $380.34 | | |
| | Total Tax Rate: | 9.1310917527 | | | | | |
| | | | | Taxes w/Current Exemptions: | $4,366.40 | | |
| | | | | Taxes w/o Exemptions: | $4,366.40 | | |
Improvement / Building
| Improvement #1: | RESIDENTIAL | State Code: | Y | 1675.5 sqft | Value: | $323,190 |
| Bathrooms: | 2.5 | Bedrooms: | 3 | | Ceiling: | DRYWALL PAINTED | Cooling: | HEAT PUMP/CONV/V | | Exterior Wall/Cover: | CEMENT FIBER | Floor Covering: | CARPET/VINYL 60-40 | | Floor Structure: | WOOD W/SUBFLOOR | Foundation: | CONCRETE | | Interior Finish: | DRYWALL PAINT | Plumbing Fixture Cnt: | 12 | | Roof Slope: | 4" IN 12" | Roof Structure/Cover: | CJ ASPHALT |
|
| | Type | Description | Class CD | Sub Class CD | Year Built | Area |
| | BAS | BASE/MAIN FLOOR | 3 | 0 | 2018 | 692.3 |
| | UPS | UPPER STORY | 3 | 0 | 2018 | 983.2 |
| | OP1 | OPEN PORCH SLAB | 3 | 0 | 2018 | 110.0 |
| | OWC | OPEN WOOD PORCH W/STEPS/ROOF/C | 3 | 0 | 2018 | 51.0 |
| | BIG | BUILT IN GARAGE | 3 | 0 | 2018 | 283.0 |
Sketch
Property Image
Land
| 1 | 12 | SQ (00000-06000) | 0.0800 | 3484.80 | 0.00 | 0.00 | 1.00 | $155,000 | $0 |
Roll Value History
| 2026 | N/A | N/A | N/A | N/A | N/A |
| 2025 | $323,190 | $155,000 | $0 | $478,190 | $478,190 |
| 2024 | $325,819 | $145,000 | $0 | $470,819 | $470,819 |
| 2023 | $328,446 | $145,000 | $0 | $473,446 | $473,446 |
| 2022 | $299,783 | $120,000 | $0 | $419,783 | $419,783 |
| 2021 | $262,757 | $95,000 | $0 | $357,757 | $357,757 |
| 2020 | $255,245 | $80,000 | $0 | $335,245 | $335,245 |
| 2019 | $188,682 | $125,000 | $0 | $313,682 | $313,682 |
| 2018 | $190,108 | $105,000 | $0 | $295,108 | $295,108 |
| 2017 | $0 | $40,000 | $0 | $40,000 | $40,000 |
| 2016 | $0 | $40,000 | $0 | $40,000 | $40,000 |
Deed and Sales History
| 1 | 07/02/2021 | WD | Warranty Deed | CURNUTT IV, RILEY DENTON | MCMONAGLE, SEAN PATRICK | | | $435,000.00 | 49040 | 4523662 |
| 2 | 07/02/2018 | WD | Warranty Deed | GB VENTURES L L C | CURNUTT IV, RILEY DENTON | | | $329,000.00 | 34888 | 4447528 |
Payout Agreement
| No payout information available.. |