Property
Account |
| Property ID: | 812358 | Abbreviated Legal Description: | ISLAND PLACE #2 LOT 43 AMENDED AF#4399407 |
| Geographic ID: | S7234-02-00043-0 | Agent Code: | |
| Type: | Real | | |
| Tax Area: | 100 - APPRAISER-OH Schl Dist, in OH | Land Use Code | 11 |
| Open Space: | N | DFL | N |
| Historic Property: | N | Remodel Property: | N |
| Multi-Family Redevelopment: | N | | |
| Township: | 33 | Section: | 34 |
| Range: | R1 |
Location |
| Address: | 1579 NW 5TH AVE OAK HARBOR, WA 98277 | Mapsco: | |
| Neighborhood: | Cycle 1 | Map ID: | 252 |
| Neighborhood CD: | 1 |
Owner |
| Name: | GB RESIDENCES, LLC | Owner ID: | 292374 |
| Mailing Address: | PO BOX 1192 SUMAS, WA 98295 | % Ownership: | 100.0000000000% |
| | | Exemptions: | |
Taxes and Assessment Details
Values
| (+) Improvement Homesite Value: | + | $0 | |
| (+) Improvement Non-Homesite Value: | + | $346,978 | |
| (+) Land Homesite Value: | + | $0 | |
| (+) Land Non-Homesite Value: | + | $155,000 | |
| (+) Curr Use (HS): | + | $0 | $0 |
| (+) Curr Use (NHS): | + | $0 | $0 |
| | | -------------------------- | |
| (=) Market Value: | = | $501,978 | |
| (–) Productivity Loss: | – | $0 | |
| | | -------------------------- | |
| (=) Subtotal: | = | $501,978 | |
| (+) Senior Appraised Value: | + | $0 | |
| (+) Non-Senior Appraised Value: | + | $501,978 | |
| | | -------------------------- | |
| (=) Total Appraised Value: | = | $501,978 | |
| (–) Senior Exemption Loss: | – | $0 | |
| (–) Exemption Loss: | – | $0 | |
| | | -------------------------- | |
| (=) Taxable Value: | = | $501,978 | |
Taxing Jurisdiction
| Owner: | GB RESIDENCES, LLC | | |
| % Ownership: | 100.0000000000% | | |
| Total Value: | $501,978 | | |
| Tax Area: | 100 - APPRAISER-OH Schl Dist, in OH |
| CF | Conservation Futures | 0.0313996660 | $501,978 | $501,978 | $15.76 | | |
| CEM1 | Cemetery #1 | 0.0040018856 | $501,978 | $501,978 | $2.01 | | |
| COH | City of Oak Harbor | 2.3090730572 | $501,978 | $501,978 | $1,159.10 | | |
| OAKBOND | City of Oak Harbor BOND | 0.1902260131 | $501,978 | $501,978 | $95.49 | | |
| HOBOND | Hospital BOND | 0.1893405597 | $501,978 | $501,978 | $95.04 | | |
| HOGEN | Hospital GEN | 0.3848777722 | $501,978 | $501,978 | $193.20 | | |
| CE | County Current Expense | 0.3674210519 | $501,978 | $501,978 | $184.44 | | |
| ISLANDEMS | Hospital GEN (EMS) | 0.4952018576 | $501,978 | $501,978 | $248.58 | | |
| LIB | Library Sno-Isle GEN | 0.3039084203 | $501,978 | $501,978 | $152.56 | | |
| NWHIDPRMT | P & R N Whidbey GEN | 0.1990272349 | $501,978 | $501,978 | $99.91 | | |
| SCH201MO | School 201 Enrichment | 2.3851112745 | $501,978 | $501,978 | $1,197.27 | | |
| ST | State School | 1.4761226122 | $501,978 | $501,978 | $740.98 | | |
| ST2 | State School Part 2 | 0.7953803475 | $501,978 | $501,978 | $399.26 | | |
| | Total Tax Rate: | 9.1310917527 | | | | | |
| | | | | Taxes w/Current Exemptions: | $4,583.60 | | |
| | | | | Taxes w/o Exemptions: | $4,583.60 | | |
Improvement / Building
| Improvement #1: | RESIDENTIAL | State Code: | Y | 1900.0 sqft | Value: | $346,978 |
| Bathrooms: | 2.5 | Bedrooms: | 3 | | Ceiling: | DRYWALL PAINTED | Cooling: | HEAT PUMP/CONV/V | | Exterior Wall/Cover: | CEMENT FIBER | Floor Covering: | CARPET/VINYL 60-40 | | Floor Structure: | WOOD W/SUBFLOOR | Foundation: | CONCRETE | | Interior Finish: | DRYWALL PAINT | Plumbing Fixture Cnt: | 11 | | Roof Slope: | 4" IN 12" | Roof Structure/Cover: | CJ ASPHALT |
|
| | Type | Description | Class CD | Sub Class CD | Year Built | Area |
| | BAS | BASE/MAIN FLOOR | 3 | 0 | 2018 | 950.0 |
| | OP1 | OPEN PORCH SLAB | 3 | 0 | 2018 | 115.0 |
| | OWC | OPEN WOOD PORCH W/STEPS/ROOF/C | 3 | 0 | 2018 | 30.0 |
| | UPS | UPPER STORY | 3 | 0 | 2018 | 950.0 |
| | AGR | ATTACHED GARAGE | 3 | 0 | 2018 | 440.0 |
Sketch
Property Image
Land
| 1 | 12 | SQ (00000-06000) | 0.0800 | 3484.80 | 0.00 | 0.00 | 1.00 | $155,000 | $0 |
Roll Value History
| 2026 | N/A | N/A | N/A | N/A | N/A |
| 2025 | $346,978 | $155,000 | $0 | $501,978 | $501,978 |
| 2024 | $349,799 | $145,000 | $0 | $494,799 | $494,799 |
| 2023 | $352,621 | $145,000 | $0 | $497,621 | $497,621 |
| 2022 | $321,867 | $120,000 | $0 | $441,867 | $441,867 |
| 2021 | $282,109 | $95,000 | $0 | $377,109 | $377,109 |
| 2020 | $274,504 | $80,000 | $0 | $354,504 | $354,504 |
| 2019 | $209,995 | $125,000 | $0 | $334,995 | $334,995 |
| 2018 | $211,582 | $105,000 | $0 | $316,582 | $316,582 |
| 2017 | $0 | $40,000 | $0 | $40,000 | $40,000 |
| 2016 | $0 | $40,000 | $0 | $40,000 | $40,000 |
Deed and Sales History
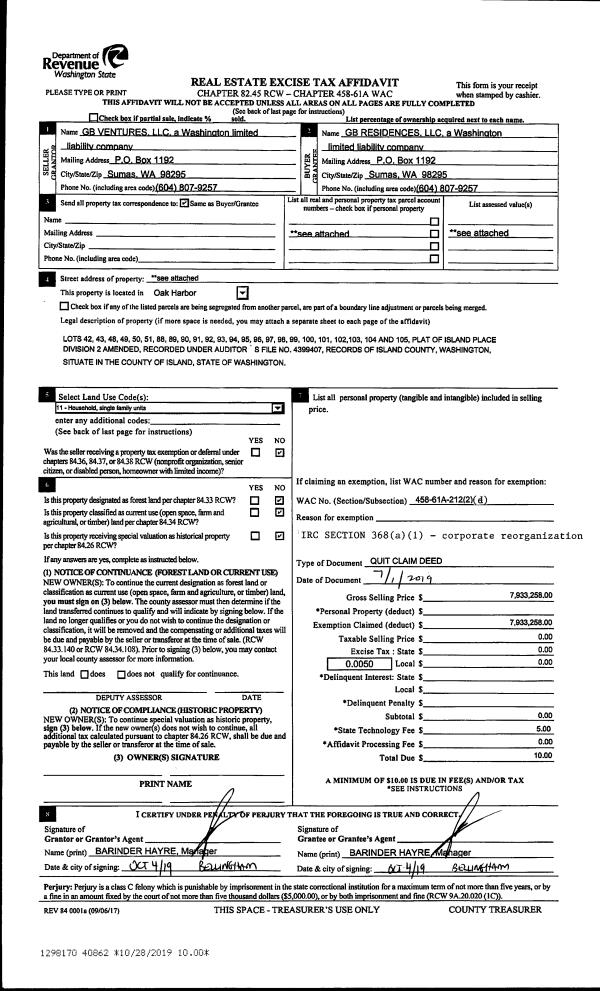
| 1 | 07/01/2019 | QCD | Quit Claim Deed | GB VENTURES L L C | GB RESIDENCES, LLC | | | $0.00 | 40862 | 4474256 |
Payout Agreement
| No payout information available.. |