Property
Account |
| Property ID: | 812378 | Abbreviated Legal Description: | ISLAND PLACE #2 LOT 63 AMENDED AF#4399407 |
| Geographic ID: | S7234-02-00063-0 | Agent Code: | |
| Type: | Real | | |
| Tax Area: | 100 - APPRAISER-OH Schl Dist, in OH | Land Use Code | 11 |
| Open Space: | N | DFL | N |
| Historic Property: | N | Remodel Property: | N |
| Multi-Family Redevelopment: | N | | |
| Township: | 33 | Section: | 34 |
| Range: | R1 |
Location |
| Address: | 624 NW PROW ST OAK HARBOR, WA 98277 | Mapsco: | |
| Neighborhood: | Cycle 1 | Map ID: | 252 |
| Neighborhood CD: | 1 |
Owner |
| Name: | JENNINGS, JASON KEITH | Owner ID: | 295156 |
| Mailing Address: | SAMANTHA JOHANNE JENNINGS 624 NW PROW ST OAK HARBOR, WA 98277 | % Ownership: | 100.0000000000% |
| | | Exemptions: | |
Taxes and Assessment Details
Values
| (+) Improvement Homesite Value: | + | $0 | |
| (+) Improvement Non-Homesite Value: | + | $376,943 | |
| (+) Land Homesite Value: | + | $0 | |
| (+) Land Non-Homesite Value: | + | $155,000 | |
| (+) Curr Use (HS): | + | $0 | $0 |
| (+) Curr Use (NHS): | + | $0 | $0 |
| | | -------------------------- | |
| (=) Market Value: | = | $531,943 | |
| (–) Productivity Loss: | – | $0 | |
| | | -------------------------- | |
| (=) Subtotal: | = | $531,943 | |
| (+) Senior Appraised Value: | + | $0 | |
| (+) Non-Senior Appraised Value: | + | $531,943 | |
| | | -------------------------- | |
| (=) Total Appraised Value: | = | $531,943 | |
| (–) Senior Exemption Loss: | – | $0 | |
| (–) Exemption Loss: | – | $0 | |
| | | -------------------------- | |
| (=) Taxable Value: | = | $531,943 | |
Taxing Jurisdiction
| Owner: | JENNINGS, JASON KEITH | | |
| % Ownership: | 100.0000000000% | | |
| Total Value: | $531,943 | | |
| Tax Area: | 100 - APPRAISER-OH Schl Dist, in OH |
| CF | Conservation Futures | 0.0313996660 | $531,943 | $531,943 | $16.70 | | |
| CEM1 | Cemetery #1 | 0.0040018856 | $531,943 | $531,943 | $2.13 | | |
| COH | City of Oak Harbor | 2.3090730572 | $531,943 | $531,943 | $1,228.30 | | |
| OAKBOND | City of Oak Harbor BOND | 0.1902260131 | $531,943 | $531,943 | $101.19 | | |
| HOBOND | Hospital BOND | 0.1893405597 | $531,943 | $531,943 | $100.72 | | |
| HOGEN | Hospital GEN | 0.3848777722 | $531,943 | $531,943 | $204.73 | | |
| CE | County Current Expense | 0.3674210519 | $531,943 | $531,943 | $195.45 | | |
| ISLANDEMS | Hospital GEN (EMS) | 0.4952018576 | $531,943 | $531,943 | $263.42 | | |
| LIB | Library Sno-Isle GEN | 0.3039084203 | $531,943 | $531,943 | $161.66 | | |
| NWHIDPRMT | P & R N Whidbey GEN | 0.1990272349 | $531,943 | $531,943 | $105.87 | | |
| SCH201MO | School 201 Enrichment | 2.3851112745 | $531,943 | $531,943 | $1,268.74 | | |
| ST | State School | 1.4761226122 | $531,943 | $531,943 | $785.21 | | |
| ST2 | State School Part 2 | 0.7953803475 | $531,943 | $531,943 | $423.10 | | |
| | Total Tax Rate: | 9.1310917527 | | | | | |
| | | | | Taxes w/Current Exemptions: | $4,857.22 | | |
| | | | | Taxes w/o Exemptions: | $4,857.22 | | |
Improvement / Building
| Improvement #1: | RESIDENTIAL | State Code: | Y | 2104.0 sqft | Value: | $376,943 |
| Bathrooms: | 2.5 | Bedrooms: | 3 | | Ceiling: | DRYWALL PAINTED | Cooling: | HEAT PUMP/CONV/V | | Exterior Wall/Cover: | CEMENT FIBER | Floor Covering: | CARPET/VINYL 60-40 | | Floor Structure: | WOOD W/SUBFLOOR | Foundation: | CONCRETE | | Interior Finish: | DRYWALL PAINT | Plumbing Fixture Cnt: | 13 | | Roof Slope: | 6" IN 12" | Roof Structure/Cover: | CJ ASPHALT |
|
| | Type | Description | Class CD | Sub Class CD | Year Built | Area |
| | BAS | BASE/MAIN FLOOR | 3 | 0 | 2017 | 800.0 |
| | UPS | UPPER STORY | 3 | 0 | 2017 | 1304.0 |
| | BIG | BUILT IN GARAGE | 3 | 0 | 2017 | 480.0 |
| | OWC | OPEN WOOD PORCH W/STEPS/ROOF/C | 3 | 0 | 2017 | 120.0 |
| | OWC | OPEN WOOD PORCH W/STEPS/ROOF/C | 3 | 0 | 2017 | 117.0 |
Sketch
Property Image
Land
| 1 | 12 | SQ (00000-06000) | 0.1200 | 5227.20 | 0.00 | 0.00 | 1.00 | $155,000 | $0 |
Roll Value History
| 2026 | N/A | N/A | N/A | N/A | N/A |
| 2025 | $376,943 | $155,000 | $0 | $531,943 | $531,943 |
| 2024 | $380,007 | $145,000 | $0 | $525,007 | $525,007 |
| 2023 | $380,007 | $140,000 | $0 | $520,007 | $520,007 |
| 2022 | $346,877 | $125,000 | $0 | $471,877 | $471,877 |
| 2021 | $304,044 | $110,000 | $0 | $414,044 | $414,044 |
| 2020 | $294,965 | $85,000 | $0 | $379,965 | $379,965 |
| 2019 | $228,399 | $130,000 | $0 | $358,399 | $358,399 |
| 2018 | $228,980 | $125,000 | $0 | $353,980 | $353,980 |
| 2017 | $159,545 | $40,000 | $0 | $199,545 | $199,545 |
| 2016 | $0 | $40,000 | $0 | $40,000 | $40,000 |
Deed and Sales History
| 1 | 08/15/2025 | WD | Warranty Deed | JENNINGS, JASON KEITH | NARCISO, JOSHUA R | | | $570,000.00 | 64542 | 4589860 |
| 2 | 07/13/2020 | WD | Warranty Deed | BRAGANZA, KARL | JENNINGS, JASON KEITH | | | $410,000.00 | 43770 | 4491171 |
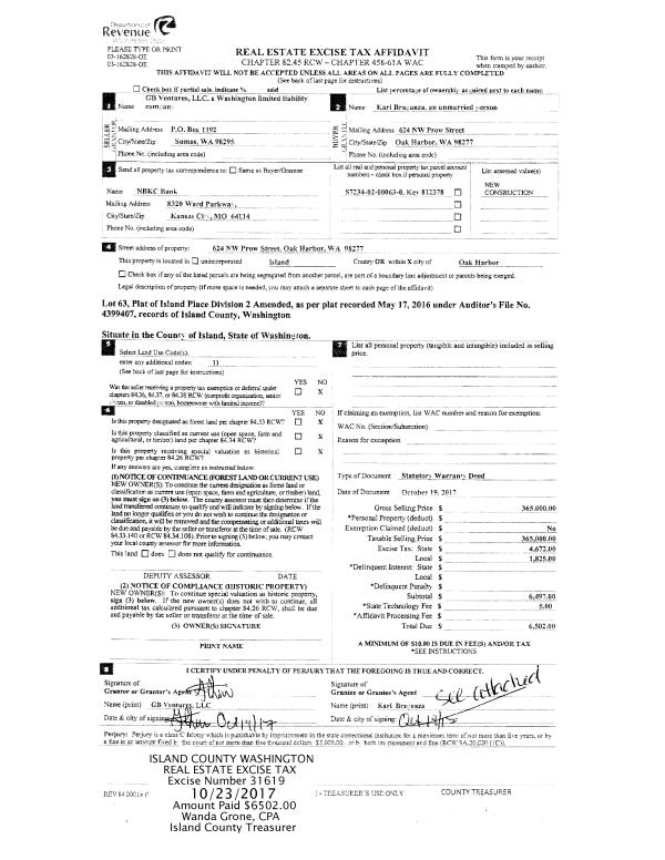
| 3 | 10/19/2017 | WD | Warranty Deed | GB VENTURES L L C | BRAGANZA, KARL | | | $365,000.00 | 31619 | 4432637 |
Payout Agreement
| No payout information available.. |