Property
Account |
| Property ID: | 812408 | Abbreviated Legal Description: | ISLAND PLACE #2 LOT 93 AMENDED AF#4399407 |
| Geographic ID: | S7234-02-00093-0 | Agent Code: | |
| Type: | Real | | |
| Tax Area: | 100 - APPRAISER-OH Schl Dist, in OH | Land Use Code | 11 |
| Open Space: | N | DFL | N |
| Historic Property: | N | Remodel Property: | N |
| Multi-Family Redevelopment: | N | | |
| Township: | 33 | Section: | 34 |
| Range: | R1 |
Location |
| Address: | 1715 NW 5TH AVE OAK HARBOR, WA 98277 | Mapsco: | |
| Neighborhood: | Cycle 1 | Map ID: | 252 |
| Neighborhood CD: | 1 |
Owner |
| Name: | GB RESIDENCES, LLC | Owner ID: | 292374 |
| Mailing Address: | PO BOX 1192 SUMAS, WA 98295 | % Ownership: | 100.0000000000% |
| | | Exemptions: | |
Taxes and Assessment Details
Values
| (+) Improvement Homesite Value: | + | $0 | |
| (+) Improvement Non-Homesite Value: | + | $310,480 | |
| (+) Land Homesite Value: | + | $0 | |
| (+) Land Non-Homesite Value: | + | $155,000 | |
| (+) Curr Use (HS): | + | $0 | $0 |
| (+) Curr Use (NHS): | + | $0 | $0 |
| | | -------------------------- | |
| (=) Market Value: | = | $465,480 | |
| (–) Productivity Loss: | – | $0 | |
| | | -------------------------- | |
| (=) Subtotal: | = | $465,480 | |
| (+) Senior Appraised Value: | + | $0 | |
| (+) Non-Senior Appraised Value: | + | $465,480 | |
| | | -------------------------- | |
| (=) Total Appraised Value: | = | $465,480 | |
| (–) Senior Exemption Loss: | – | $0 | |
| (–) Exemption Loss: | – | $0 | |
| | | -------------------------- | |
| (=) Taxable Value: | = | $465,480 | |
Taxing Jurisdiction
| Owner: | GB RESIDENCES, LLC | | |
| % Ownership: | 100.0000000000% | | |
| Total Value: | $465,480 | | |
| Tax Area: | 100 - APPRAISER-OH Schl Dist, in OH |
| CF | Conservation Futures | 0.0313996660 | $465,480 | $465,480 | $14.62 | | |
| CEM1 | Cemetery #1 | 0.0040018856 | $465,480 | $465,480 | $1.86 | | |
| COH | City of Oak Harbor | 2.3090730572 | $465,480 | $465,480 | $1,074.83 | | |
| OAKBOND | City of Oak Harbor BOND | 0.1902260131 | $465,480 | $465,480 | $88.55 | | |
| HOBOND | Hospital BOND | 0.1893405597 | $465,480 | $465,480 | $88.13 | | |
| HOGEN | Hospital GEN | 0.3848777722 | $465,480 | $465,480 | $179.15 | | |
| CE | County Current Expense | 0.3674210519 | $465,480 | $465,480 | $171.03 | | |
| ISLANDEMS | Hospital GEN (EMS) | 0.4952018576 | $465,480 | $465,480 | $230.51 | | |
| LIB | Library Sno-Isle GEN | 0.3039084203 | $465,480 | $465,480 | $141.46 | | |
| NWHIDPRMT | P & R N Whidbey GEN | 0.1990272349 | $465,480 | $465,480 | $92.64 | | |
| SCH201MO | School 201 Enrichment | 2.3851112745 | $465,480 | $465,480 | $1,110.22 | | |
| ST | State School | 1.4761226122 | $465,480 | $465,480 | $687.11 | | |
| ST2 | State School Part 2 | 0.7953803475 | $465,480 | $465,480 | $370.23 | | |
| | Total Tax Rate: | 9.1310917527 | | | | | |
| | | | | Taxes w/Current Exemptions: | $4,250.34 | | |
| | | | | Taxes w/o Exemptions: | $4,250.34 | | |
Improvement / Building
| Improvement #1: | RESIDENTIAL | State Code: | Y | 1522.0 sqft | Value: | $310,480 |
| Bathrooms: | 2.5 | Bedrooms: | 3 | | Ceiling: | DRYWALL PAINTED | Cooling: | HEAT PUMP/CONV/V | | Exterior Wall/Cover: | CEMENT FIBER | Floor Covering: | CARPET/VINYL 60-40 | | Floor Structure: | WOOD W/SUBFLOOR | Foundation: | CONCRETE | | Interior Finish: | DRYWALL PAINT | Plumbing Fixture Cnt: | 11 | | Roof Slope: | 5" IN 12" | Roof Structure/Cover: | CJ ASPHALT |
|
| | Type | Description | Class CD | Sub Class CD | Year Built | Area |
| | BAS | BASE/MAIN FLOOR | 3 | 0 | 2018 | 608.0 |
| | OP1 | OPEN PORCH SLAB | 3 | 0 | 2018 | 110.0 |
| | OP3 | OPEN PORCH W/ROOF | 3 | 0 | 2018 | 40.0 |
| | OP4 | OPEN PORCH W/CEILING-ROOF | 3 | 0 | 2018 | 24.8 |
| | UPS | UPPER STORY | 3 | 0 | 2018 | 914.0 |
| | AGR | ATTACHED GARAGE | 3 | 0 | 2018 | 387.2 |
Sketch
Property Image
Land
| 1 | 12 | SQ (00000-06000) | 0.0800 | 3484.80 | 0.00 | 0.00 | 1.00 | $155,000 | $0 |
Roll Value History
| 2026 | N/A | N/A | N/A | N/A | N/A |
| 2025 | $310,480 | $155,000 | $0 | $465,480 | $465,480 |
| 2024 | $313,004 | $145,000 | $0 | $458,004 | $458,004 |
| 2023 | $315,527 | $145,000 | $0 | $460,527 | $460,527 |
| 2022 | $288,012 | $120,000 | $0 | $408,012 | $408,012 |
| 2021 | $252,428 | $95,000 | $0 | $347,428 | $347,428 |
| 2020 | $245,227 | $80,000 | $0 | $325,227 | $325,227 |
| 2019 | $180,277 | $125,000 | $0 | $305,277 | $305,277 |
| 2018 | $5,000 | $40,000 | $0 | $45,000 | $45,000 |
| 2017 | $0 | $40,000 | $0 | $40,000 | $40,000 |
| 2016 | $0 | $40,000 | $0 | $40,000 | $40,000 |
Deed and Sales History
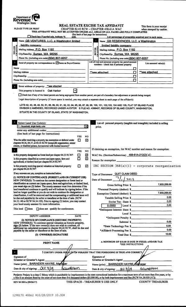
| 1 | 07/01/2019 | QCD | Quit Claim Deed | GB VENTURES L L C | GB RESIDENCES, LLC | | | $0.00 | 40862 | 4474256 |
Payout Agreement
| No payout information available.. |