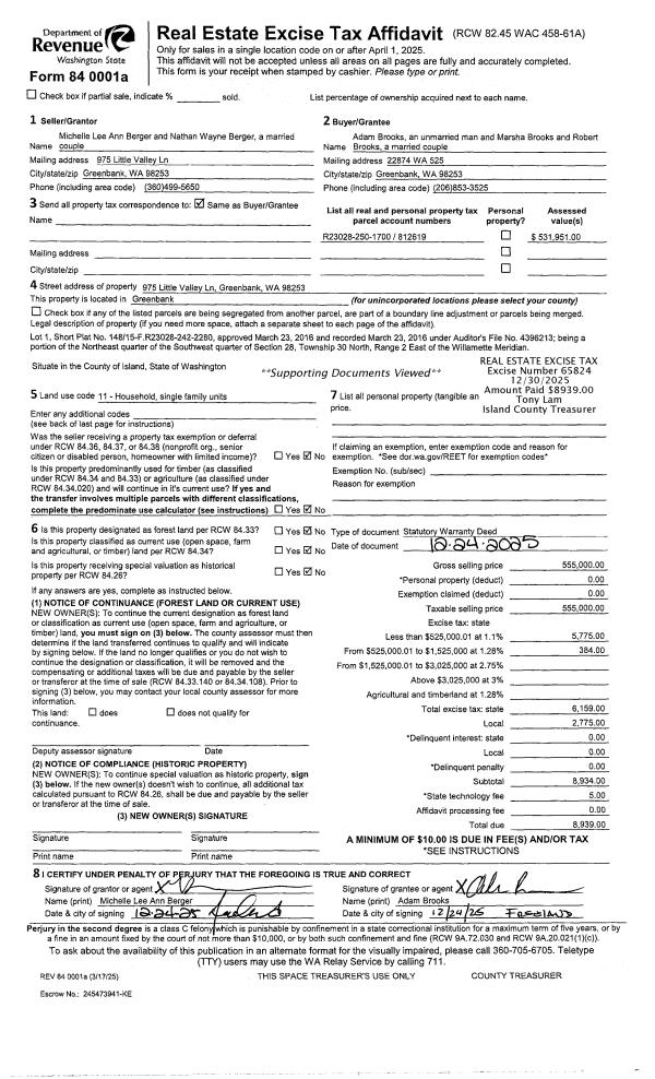
Property
Account |
| Property ID: | 812619 | Abbreviated Legal Description: | LOT 1 SP 148-15.23028-242-2280 AF#4396213 |
| Geographic ID: | R23028-250-1700 | Agent Code: | |
| Type: | Real | | |
| Tax Area: | 312 - APPRAISER-Cpvl Schl Dist, outside Cpvl, improved, greater than 1 acre | Land Use Code | 11 |
| Open Space: | N | DFL | N |
| Historic Property: | N | Remodel Property: | N |
| Multi-Family Redevelopment: | N | | |
| Township: | 30 | Section: | 28 |
| Range: | R2 |
Location |
| Address: | 975 LITTLE VALLEY LN GREENBANK, WA 98253 | Mapsco: | |
| Neighborhood: | Cycle 3 | Map ID: | 421 |
| Neighborhood CD: | 3 |
Owner |
| Name: | BERGER, NATHAN WAYNE | Owner ID: | 298116 |
| Mailing Address: | MICHELLE LEE ANN BERGER 975 LITTLE VALLEY LN GREENBANK, WA 98253 | % Ownership: | 100.0000000000% |
| | | Exemptions: | |
Taxes and Assessment Details
Values
| (+) Improvement Homesite Value: | + | $0 | |
| (+) Improvement Non-Homesite Value: | + | $181,951 | |
| (+) Land Homesite Value: | + | $0 | |
| (+) Land Non-Homesite Value: | + | $350,000 | |
| (+) Curr Use (HS): | + | $0 | $0 |
| (+) Curr Use (NHS): | + | $0 | $0 |
| | | -------------------------- | |
| (=) Market Value: | = | $531,951 | |
| (–) Productivity Loss: | – | $0 | |
| | | -------------------------- | |
| (=) Subtotal: | = | $531,951 | |
| (+) Senior Appraised Value: | + | $0 | |
| (+) Non-Senior Appraised Value: | + | $531,951 | |
| | | -------------------------- | |
| (=) Total Appraised Value: | = | $531,951 | |
| (–) Senior Exemption Loss: | – | $0 | |
| (–) Exemption Loss: | – | $0 | |
| | | -------------------------- | |
| (=) Taxable Value: | = | $531,951 | |
Taxing Jurisdiction
| Owner: | BERGER, NATHAN WAYNE | | |
| % Ownership: | 100.0000000000% | | |
| Total Value: | $531,951 | | |
| Tax Area: | 312 - APPRAISER-Cpvl Schl Dist, outside Cpvl, improved, greater than 1 acre |
| CF | Conservation Futures | 0.0313996660 | $531,951 | $531,951 | $16.70 | | |
| CEM2 | Cemetery #2 | 0.0092609791 | $531,951 | $531,951 | $4.93 | | |
| FIRE5 | Fire & Rescue Dist #5 C Whidbey GEN | 1.1892169230 | $531,951 | $531,951 | $632.61 | | |
| FIRE5BOND | Fire & Rescue Dist #5 C Whidbey BOND | 0.1394359503 | $531,951 | $531,951 | $74.17 | | |
| HOBOND | Hospital BOND | 0.1893405597 | $531,951 | $531,951 | $100.72 | | |
| HOGEN | Hospital GEN | 0.3848777722 | $531,951 | $531,951 | $204.74 | | |
| CE | County Current Expense | 0.3674210519 | $531,951 | $531,951 | $195.45 | | |
| CR | County Roads | 0.4614296361 | $531,951 | $531,951 | $245.46 | | |
| ISLANDEMS | Hospital GEN (EMS) | 0.4952018576 | $531,951 | $531,951 | $263.42 | | |
| LIB | Library Sno-Isle GEN | 0.3039084203 | $531,951 | $531,951 | $161.66 | | |
| LIBCAP | Library Sno-Isle BOND (Cap Fac Imp Area) | 0.0528562629 | $531,951 | $531,951 | $28.12 | | |
| POCOUP | Port of Coupeville GEN | 0.1065226063 | $531,951 | $531,951 | $56.66 | | |
| POCOUPIDD | Port of Coupeville IDD | 0.3353038577 | $531,951 | $531,951 | $178.37 | | |
| COUPSDTECH | School 204 CP (TECH) | 0.1215123397 | $531,951 | $531,951 | $64.64 | | |
| SCH204MO | School 204 Enrichment | 0.6416662518 | $531,951 | $531,951 | $341.34 | | |
| ST | State School | 1.4761226122 | $531,951 | $531,951 | $785.22 | | |
| ST2 | State School Part 2 | 0.7953803475 | $531,951 | $531,951 | $423.10 | | |
| | Total Tax Rate: | 7.1008570943 | | | | | |
| | | | | Taxes w/Current Exemptions: | $3,777.31 | | |
| | | | | Taxes w/o Exemptions: | $3,777.31 | | |
Improvement / Building
| Improvement #1: | MANUFACTURED HOME | State Code: | Y | 1232.0 sqft | Value: | $181,951 |
| Bathrooms: | 1 | Bedrooms: | 2 | | Ceiling: | PLASTER PAINTED | Cooling: | EVAP NO DUCT | | Exterior Wall/Cover: | VINYL | Floor Covering: | CARPET 100% | | Floor Structure: | SLAB ON GRADE | Foundation: | SLAB | | Heating: | FHA ELECTRIC | Interior Finish: | PLASTER | | Roof Slope: | FLAT | Roof Structure/Cover: | CJ ALUMINIUM HEAVY |
|
| | Type | Description | Class CD | Sub Class CD | Year Built | Area |
| | BAS | BASE/MAIN FLOOR | 4 | 0 | 2018 | 1232.0 |
| | OWP | OPEN WOOD PORCH W/STEPS | 4 | 0 | 2018 | 291.3 |
| | UTY | STORAGE/UTILITY | 4 | 0 | 2018 | 1200.0 |
| | OWP | OPEN WOOD PORCH W/STEPS | 4 | 0 | 2018 | 422.0 |
| | UTY | STORAGE/UTILITY | 4 | 0 | 2018 | 144.0 |
| | CPD | OPEN CARPORT DIRT FLOOR | 4 | 0 | 2018 | 180.0 |
Sketch
Property Image
Land
| 1 | 32 | AC (03.01-09.99) | 4.4000 | 191664.00 | 0.00 | 0.00 | 1.00 | $350,000 | $0 |
Roll Value History
| 2026 | N/A | N/A | N/A | N/A | N/A |
| 2025 | $181,951 | $350,000 | $0 | $531,951 | $531,951 |
| 2024 | $183,908 | $340,000 | $0 | $523,908 | $523,908 |
| 2023 | $163,321 | $320,000 | $0 | $483,321 | $483,321 |
| 2022 | $149,432 | $260,000 | $0 | $409,432 | $409,432 |
| 2021 | $131,268 | $230,000 | $0 | $361,268 | $361,268 |
| 2020 | $159,224 | $180,000 | $0 | $339,224 | $339,224 |
| 2019 | $125,274 | $220,000 | $0 | $345,274 | $345,274 |
| 2018 | $0 | $85,000 | $0 | $85,000 | $85,000 |
| 2017 | $0 | $75,000 | $0 | $75,000 | $75,000 |
| 2016 | $0 | $100,000 | $0 | $100,000 | $100,000 |
Deed and Sales History
| 1 | 12/24/2025 | WD | Warranty Deed | BERGER, NATHAN WAYNE | BROOKS, ADAM | | | $555,000.00 | 65824 | 4595173 |
| 2 | 01/26/2021 | WD | Warranty Deed | RICH, JONATHAN K | BERGER, NATHAN WAYNE | | | $450,000.00 | 46944 | 4510930 |
| 3 | 01/26/2021 | QCD | Quit Claim Deed | RICH, HANNAH MARIE | RICH, JONATHAN K | | | $0.00 | 46943 | 4510929 |
| 4 | 08/09/2017 | WD | Warranty Deed | FARMER, DAVID C | RICH, JONATHAN K | | | $60,000.00 | 30671 | 4428317 |
Payout Agreement
| No payout information available.. |