Property
Account |
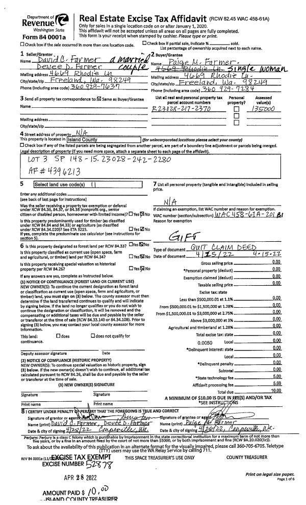
| Property ID: | 812621 | Abbreviated Legal Description: | LOT 3 SP 148-15.23028-242-2280 AF#4396213 |
| Geographic ID: | R23028-217-2370 | Agent Code: | |
| Type: | Real | | |
| Tax Area: | 312 - APPRAISER-Cpvl Schl Dist, outside Cpvl, improved, greater than 1 acre | Land Use Code | 11 |
| Open Space: | N | DFL | N |
| Historic Property: | N | Remodel Property: | N |
| Multi-Family Redevelopment: | N | | |
| Township: | 30 | Section: | 28 |
| Range: | R2 |
Location |
| Address: | 989 LITTLE VALLEY LN GREENBANK, WA 98253 | Mapsco: | |
| Neighborhood: | Cycle 3 | Map ID: | 421 |
| Neighborhood CD: | 3 |
Owner |
| Name: | FARMER, PAIGE M | Owner ID: | 303919 |
| Mailing Address: | 4669 RHODIE LANE FREELAND, WA 98249 | % Ownership: | 100.0000000000% |
| | | Exemptions: | |
Taxes and Assessment Details
Values
| (+) Improvement Homesite Value: | + | $0 | |
| (+) Improvement Non-Homesite Value: | + | $214,298 | |
| (+) Land Homesite Value: | + | $0 | |
| (+) Land Non-Homesite Value: | + | $350,000 | |
| (+) Curr Use (HS): | + | $0 | $0 |
| (+) Curr Use (NHS): | + | $0 | $0 |
| | | -------------------------- | |
| (=) Market Value: | = | $564,298 | |
| (–) Productivity Loss: | – | $0 | |
| | | -------------------------- | |
| (=) Subtotal: | = | $564,298 | |
| (+) Senior Appraised Value: | + | $0 | |
| (+) Non-Senior Appraised Value: | + | $564,298 | |
| | | -------------------------- | |
| (=) Total Appraised Value: | = | $564,298 | |
| (–) Senior Exemption Loss: | – | $0 | |
| (–) Exemption Loss: | – | $0 | |
| | | -------------------------- | |
| (=) Taxable Value: | = | $564,298 | |
Taxing Jurisdiction
| Owner: | FARMER, PAIGE M | | |
| % Ownership: | 100.0000000000% | | |
| Total Value: | $564,298 | | |
| Tax Area: | 312 - APPRAISER-Cpvl Schl Dist, outside Cpvl, improved, greater than 1 acre |
| CF | Conservation Futures | 0.0313996660 | $564,298 | $564,298 | $17.72 | | |
| CEM2 | Cemetery #2 | 0.0092609791 | $564,298 | $564,298 | $5.23 | | |
| FIRE5 | Fire & Rescue Dist #5 C Whidbey GEN | 1.1892169230 | $564,298 | $564,298 | $671.07 | | |
| FIRE5BOND | Fire & Rescue Dist #5 C Whidbey BOND | 0.1394359503 | $564,298 | $564,298 | $78.68 | | |
| HOBOND | Hospital BOND | 0.1893405597 | $564,298 | $564,298 | $106.84 | | |
| HOGEN | Hospital GEN | 0.3848777722 | $564,298 | $564,298 | $217.19 | | |
| CE | County Current Expense | 0.3674210519 | $564,298 | $564,298 | $207.33 | | |
| CR | County Roads | 0.4614296361 | $564,298 | $564,298 | $260.38 | | |
| ISLANDEMS | Hospital GEN (EMS) | 0.4952018576 | $564,298 | $564,298 | $279.44 | | |
| LIB | Library Sno-Isle GEN | 0.3039084203 | $564,298 | $564,298 | $171.49 | | |
| LIBCAP | Library Sno-Isle BOND (Cap Fac Imp Area) | 0.0528562629 | $564,298 | $564,298 | $29.83 | | |
| POCOUP | Port of Coupeville GEN | 0.1065226063 | $564,298 | $564,298 | $60.11 | | |
| POCOUPIDD | Port of Coupeville IDD | 0.3353038577 | $564,298 | $564,298 | $189.21 | | |
| COUPSDTECH | School 204 CP (TECH) | 0.1215123397 | $564,298 | $564,298 | $68.57 | | |
| SCH204MO | School 204 Enrichment | 0.6416662518 | $564,298 | $564,298 | $362.09 | | |
| ST | State School | 1.4761226122 | $564,298 | $564,298 | $832.97 | | |
| ST2 | State School Part 2 | 0.7953803475 | $564,298 | $564,298 | $448.83 | | |
| | Total Tax Rate: | 7.1008570943 | | | | | |
| | | | | Taxes w/Current Exemptions: | $4,006.98 | | |
| | | | | Taxes w/o Exemptions: | $4,006.98 | | |
Improvement / Building
| Improvement #1: | RESIDENTIAL | State Code: | Y | 994.0 sqft | Value: | $214,298 |
| Bathrooms: | 1 | Bedrooms: | 1 | | Ceiling: | DRYWALL PAINTED | Cooling: | HEAT PUMP/CONV/V | | Exterior Wall/Cover: | WOOD SIDING | Floor Covering: | VINYL TILE | | Floor Structure: | SLAB ON GRADE | Foundation: | SLAB | | Interior Finish: | DRYWALL PAINT | Plumbing Fixture Cnt: | 6 | | Roof Slope: | 6" IN 12" | Roof Structure/Cover: | CJ ASPHALT |
|
| | Type | Description | Class CD | Sub Class CD | Year Built | Area |
| | BAS | BASE/MAIN FLOOR | 3 | 0 | 2023 | 994.0 |
| | OWP | OPEN WOOD PORCH W/STEPS | 3 | 0 | 2023 | 0.0 |
| | OWR | OPEN WOOD PORCH W/STEPS/ROOF | 3 | 0 | 2023 | 0.0 |
| | oUTI | UTILITY | 3 | 0 | 2025 | 416.0 |
| | oCAR | CARPORT | 3 | 0 | 2025 | 128.0 |
| | oUTI | UTILITY | 3 | 0 | 2025 | 416.0 |
Sketch
| No sketches available for this property. |
Property Image
Land
| 1 | 32 | AC (03.01-09.99) | 5.0800 | 221284.80 | 0.00 | 0.00 | 1.00 | $350,000 | $0 |
Roll Value History
| 2026 | N/A | N/A | N/A | N/A | N/A |
| 2025 | $214,298 | $350,000 | $0 | $564,298 | $564,298 |
| 2024 | $184,158 | $340,000 | $0 | $524,158 | $524,158 |
| 2023 | $187,916 | $320,000 | $0 | $507,916 | $507,916 |
| 2022 | $0 | $170,000 | $0 | $170,000 | $170,000 |
| 2021 | $0 | $135,000 | $0 | $135,000 | $135,000 |
| 2020 | $0 | $130,000 | $0 | $130,000 | $130,000 |
| 2019 | $0 | $135,000 | $0 | $135,000 | $135,000 |
| 2018 | $0 | $85,000 | $0 | $85,000 | $85,000 |
| 2017 | $0 | $75,000 | $0 | $75,000 | $75,000 |
| 2016 | $0 | $100,000 | $0 | $100,000 | $100,000 |
Deed and Sales History
| 1 | 04/15/2022 | QCD | Quit Claim Deed | FARMER, DAVID C | FARMER, PAIGE M | | | $0.00 | 52878 | 4544196 |
Payout Agreement
| No payout information available.. |