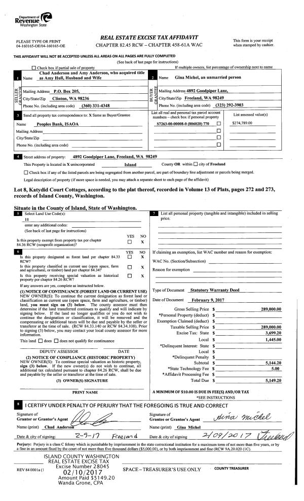
Property
Account |
| Property ID: | 812667 | Abbreviated Legal Description: | LOT 3 SP 220-15.03213-182-5040 AF#4396605 |
| Geographic ID: | R03213-181-5040 | Agent Code: | |
| Type: | Real | | |
| Tax Area: | 112 - APPRAISER-OH Schl Dist, outside OH, improved, greater than 1 acre | Land Use Code | 11 |
| Open Space: | N | DFL | N |
| Historic Property: | N | Remodel Property: | N |
| Multi-Family Redevelopment: | N | | |
| Township: | 32 | Section: | 13 |
| Range: | R0 |
Location |
| Address: | 1325 GREAT HORNED OWL LN OAK HARBOR, WA 98277 | Mapsco: | |
| Neighborhood: | Cycle 2 | Map ID: | 1 |
| Neighborhood CD: | 2 |
Owner |
| Name: | NEAL III, RICHARD EDWARD | Owner ID: | 278840 |
| Mailing Address: | MACKENZIE ELIZABETH NEAL 1325 GREAT HORNED OWL LN OAK HARBOR, WA 98277 | % Ownership: | 100.0000000000% |
| | | Exemptions: | |
Taxes and Assessment Details
Values
| (+) Improvement Homesite Value: | + | $0 | |
| (+) Improvement Non-Homesite Value: | + | $538,271 | |
| (+) Land Homesite Value: | + | $0 | |
| (+) Land Non-Homesite Value: | + | $271,800 | |
| (+) Curr Use (HS): | + | $0 | $0 |
| (+) Curr Use (NHS): | + | $0 | $0 |
| | | -------------------------- | |
| (=) Market Value: | = | $810,071 | |
| (–) Productivity Loss: | – | $0 | |
| | | -------------------------- | |
| (=) Subtotal: | = | $810,071 | |
| (+) Senior Appraised Value: | + | $0 | |
| (+) Non-Senior Appraised Value: | + | $810,071 | |
| | | -------------------------- | |
| (=) Total Appraised Value: | = | $810,071 | |
| (–) Senior Exemption Loss: | – | $0 | |
| (–) Exemption Loss: | – | $0 | |
| | | -------------------------- | |
| (=) Taxable Value: | = | $810,071 | |
Taxing Jurisdiction
| Owner: | NEAL III, RICHARD EDWARD | | |
| % Ownership: | 100.0000000000% | | |
| Total Value: | $810,071 | | |
| Tax Area: | 112 - APPRAISER-OH Schl Dist, outside OH, improved, greater than 1 acre |
| CF | Conservation Futures | 0.0313996660 | $810,071 | $810,071 | $25.44 | | |
| CEM1 | Cemetery #1 | 0.0040018856 | $810,071 | $810,071 | $3.24 | | |
| FIRE2 | Fire & Rescue Dist #2 N Whidbey GEN | 0.5381486274 | $810,071 | $810,071 | $435.94 | | |
| HOBOND | Hospital BOND | 0.1893405597 | $810,071 | $810,071 | $153.38 | | |
| HOGEN | Hospital GEN | 0.3848777722 | $810,071 | $810,071 | $311.78 | | |
| CE | County Current Expense | 0.3674210519 | $810,071 | $810,071 | $297.64 | | |
| CR | County Roads | 0.4614296361 | $810,071 | $810,071 | $373.79 | | |
| ISLANDEMS | Hospital GEN (EMS) | 0.4952018576 | $810,071 | $810,071 | $401.15 | | |
| LIB | Library Sno-Isle GEN | 0.3039084203 | $810,071 | $810,071 | $246.19 | | |
| NWHIDPRMT | P & R N Whidbey GEN | 0.1990272349 | $810,071 | $810,071 | $161.23 | | |
| SCH201MO | School 201 Enrichment | 2.3851112745 | $810,071 | $810,071 | $1,932.11 | | |
| ST | State School | 1.4761226122 | $810,071 | $810,071 | $1,195.76 | | |
| ST2 | State School Part 2 | 0.7953803475 | $810,071 | $810,071 | $644.31 | | |
| | Total Tax Rate: | 7.6313709459 | | | | | |
| | | | | Taxes w/Current Exemptions: | $6,181.96 | | |
| | | | | Taxes w/o Exemptions: | $6,181.96 | | |
Improvement / Building
| Improvement #1: | RESIDENTIAL | State Code: | Y | 3048.7 sqft | Value: | $538,271 |
| Bathrooms: | 3 | Bedrooms: | 3 | | Ceiling: | DRYWALL PAINTED | Exterior Wall/Cover: | CEMENT FIBER | | Floor Covering: | COLORED CONCRETE | Floor Structure: | WOOD W/SUBFLOOR | | Foundation: | CONCRETE | Heating: | RADIANT FLOOR | | Interior Finish: | DRYWALL PAINT | Plumbing Fixture Cnt: | 13 | | Roof Slope: | 4" IN 12" | Roof Structure/Cover: | CJ ASPHALT |
|
| | Type | Description | Class CD | Sub Class CD | Year Built | Area |
| | BAS | BASE/MAIN FLOOR | 4 | 0 | 2017 | 1556.4 |
| | AGR | ATTACHED GARAGE | 4 | 0 | 2017 | 635.2 |
| | DWN | DOWNSTAIRS LIVING AREA | 4 | 0 | 2017 | 1492.3 |
| | OWC | OPEN WOOD PORCH W/STEPS/ROOF/C | 4 | 0 | 2017 | 117.5 |
| | OWC | OPEN WOOD PORCH W/STEPS/ROOF/C | 4 | 0 | 2017 | 183.0 |
Sketch
Property Image
Land
| 1 | HS | HOMESITE | 1.0000 | 43560.00 | 0.00 | 0.00 | 1.00 | $270,000 | $0 |
| 2 | 99 | OTHER UNDEVELOPED LAND PLATS/SUBDIVISION | 0.0900 | 3920.40 | 0.00 | 0.00 | 1.00 | $1,800 | $0 |
Roll Value History
| 2026 | N/A | N/A | N/A | N/A | N/A |
| 2025 | $538,271 | $271,800 | $0 | $810,071 | $810,071 |
| 2024 | $533,930 | $280,000 | $0 | $813,930 | $813,930 |
| 2023 | $538,271 | $290,000 | $0 | $828,271 | $828,271 |
| 2022 | $491,356 | $280,000 | $0 | $771,356 | $771,356 |
| 2021 | $430,648 | $180,000 | $0 | $610,648 | $610,648 |
| 2020 | $418,558 | $170,000 | $0 | $588,558 | $588,558 |
| 2019 | $384,743 | $190,000 | $0 | $574,743 | $574,743 |
| 2018 | $385,721 | $160,000 | $0 | $545,721 | $545,721 |
| 2017 | $17,077 | $85,000 | $0 | $102,077 | $102,077 |
| 2016 | $0 | $26,280 | $0 | $26,280 | $26,280 |
Deed and Sales History
| 1 | 11/03/2016 | WD | Warranty Deed | VIEWRIDGE INVESTMENTS LLC | NEAL III, RICHARD EDWARD | | | $81,000.00 | 26804 | 4410848 |
Payout Agreement
| No payout information available.. |