Property
Account |
| Property ID: | 812672 | Abbreviated Legal Description: | LOT 4 SP 221-15.03213-147-5050 AF#4396606 |
| Geographic ID: | R03213-145-5180 | Agent Code: | |
| Type: | Real | | |
| Tax Area: | 112 - APPRAISER-OH Schl Dist, outside OH, improved, greater than 1 acre | Land Use Code | 11 |
| Open Space: | N | DFL | N |
| Historic Property: | N | Remodel Property: | N |
| Multi-Family Redevelopment: | N | | |
| Township: | 32 | Section: | 13 |
| Range: | R0 |
Location |
| Address: | 1318 GREAT HORNED OWL LN OAK HARBOR, WA 98277 | Mapsco: | |
| Neighborhood: | Cycle 2 | Map ID: | 1 |
| Neighborhood CD: | 2 |
Owner |
| Name: | FLAKE, LANCE VINCENT | Owner ID: | 301662 |
| Mailing Address: | WENDY ELIZABETH FLAKE 1318 GREAT HORNED OWL LN OAK HARBOR, WA 98277 | % Ownership: | 100.0000000000% |
| | | Exemptions: | |
Taxes and Assessment Details
Values
| (+) Improvement Homesite Value: | + | $0 | |
| (+) Improvement Non-Homesite Value: | + | $440,549 | |
| (+) Land Homesite Value: | + | $0 | |
| (+) Land Non-Homesite Value: | + | $284,889 | |
| (+) Curr Use (HS): | + | $0 | $0 |
| (+) Curr Use (NHS): | + | $0 | $0 |
| | | -------------------------- | |
| (=) Market Value: | = | $725,438 | |
| (–) Productivity Loss: | – | $0 | |
| | | -------------------------- | |
| (=) Subtotal: | = | $725,438 | |
| (+) Senior Appraised Value: | + | $0 | |
| (+) Non-Senior Appraised Value: | + | $725,438 | |
| | | -------------------------- | |
| (=) Total Appraised Value: | = | $725,438 | |
| (–) Senior Exemption Loss: | – | $0 | |
| (–) Exemption Loss: | – | $0 | |
| | | -------------------------- | |
| (=) Taxable Value: | = | $725,438 | |
Taxing Jurisdiction
| Owner: | FLAKE, LANCE VINCENT | | |
| % Ownership: | 100.0000000000% | | |
| Total Value: | $725,438 | | |
| Tax Area: | 112 - APPRAISER-OH Schl Dist, outside OH, improved, greater than 1 acre |
| CF | Conservation Futures | 0.0313996660 | $725,438 | $725,438 | $22.78 | | |
| CEM1 | Cemetery #1 | 0.0040018856 | $725,438 | $725,438 | $2.90 | | |
| FIRE2 | Fire & Rescue Dist #2 N Whidbey GEN | 0.5381486274 | $725,438 | $725,438 | $390.39 | | |
| HOBOND | Hospital BOND | 0.1893405597 | $725,438 | $725,438 | $137.35 | | |
| HOGEN | Hospital GEN | 0.3848777722 | $725,438 | $725,438 | $279.20 | | |
| CE | County Current Expense | 0.3674210519 | $725,438 | $725,438 | $266.54 | | |
| CR | County Roads | 0.4614296361 | $725,438 | $725,438 | $334.74 | | |
| ISLANDEMS | Hospital GEN (EMS) | 0.4952018576 | $725,438 | $725,438 | $359.24 | | |
| LIB | Library Sno-Isle GEN | 0.3039084203 | $725,438 | $725,438 | $220.47 | | |
| NWHIDPRMT | P & R N Whidbey GEN | 0.1990272349 | $725,438 | $725,438 | $144.38 | | |
| SCH201MO | School 201 Enrichment | 2.3851112745 | $725,438 | $725,438 | $1,730.25 | | |
| ST | State School | 1.4761226122 | $725,438 | $725,438 | $1,070.84 | | |
| ST2 | State School Part 2 | 0.7953803475 | $725,438 | $725,438 | $577.00 | | |
| | Total Tax Rate: | 7.6313709459 | | | | | |
| | | | | Taxes w/Current Exemptions: | $5,536.08 | | |
| | | | | Taxes w/o Exemptions: | $5,536.08 | | |
Improvement / Building
| Improvement #1: | RESIDENTIAL | State Code: | Y | 1735.7 sqft | Value: | $440,549 |
| Bathrooms: | 2 | Bedrooms: | 3 | | Ceiling: | DRYWALL PAINTED | Exterior Wall/Cover: | CEMENT FIBER | | Floor Covering: | COLORED CONCRETE | Floor Structure: | SLAB ON GRADE | | Foundation: | CONCRETE | Heating: | RADIANT FLOOR | | Interior Finish: | DRYWALL PAINT | Plumbing Fixture Cnt: | 11 | | Roof Slope: | 5" IN 12" | Roof Structure/Cover: | CJ ASPHALT |
|
| | Type | Description | Class CD | Sub Class CD | Year Built | Area |
| | BAS | BASE/MAIN FLOOR | 4 | 0 | 2016 | 1735.7 |
| | AGR | ATTACHED GARAGE | 4 | 0 | 2016 | 638.0 |
| | OP4 | OPEN PORCH W/CEILING-ROOF | 4 | 0 | 2016 | 131.8 |
| | OP4 | OPEN PORCH W/CEILING-ROOF | 4 | 0 | 2016 | 40.0 |
| | UTY | STORAGE/UTILITY | 4 | 0 | 2016 | 192.0 |
| | CPD | OPEN CARPORT DIRT FLOOR | 4 | 0 | 2016 | 160.0 |
Sketch
Property Image
Land
| 1 | HS | HOMESITE | 1.0000 | 43560.00 | 0.00 | 0.00 | 1.00 | $220,000 | $0 |
| 2 | 91 | UNDEVELOPED LAND-METES AND BOUNDS | 0.7300 | 31798.80 | 0.00 | 0.00 | 1.00 | $64,889 | $0 |
Roll Value History
| 2026 | N/A | N/A | N/A | N/A | N/A |
| 2025 | $440,549 | $284,889 | $0 | $725,438 | $725,438 |
| 2024 | $440,549 | $270,000 | $0 | $710,549 | $710,549 |
| 2023 | $444,046 | $260,000 | $0 | $704,046 | $704,046 |
| 2022 | $406,300 | $250,000 | $0 | $656,300 | $656,300 |
| 2021 | $318,583 | $150,000 | $0 | $468,583 | $468,583 |
| 2020 | $308,610 | $150,000 | $0 | $458,610 | $458,610 |
| 2019 | $290,399 | $160,000 | $0 | $450,399 | $450,399 |
| 2018 | $237,628 | $160,000 | $0 | $397,628 | $397,628 |
| 2017 | $238,846 | $150,000 | $0 | $388,846 | $388,846 |
| 2016 | $218,771 | $41,160 | $0 | $259,931 | $259,931 |
Deed and Sales History
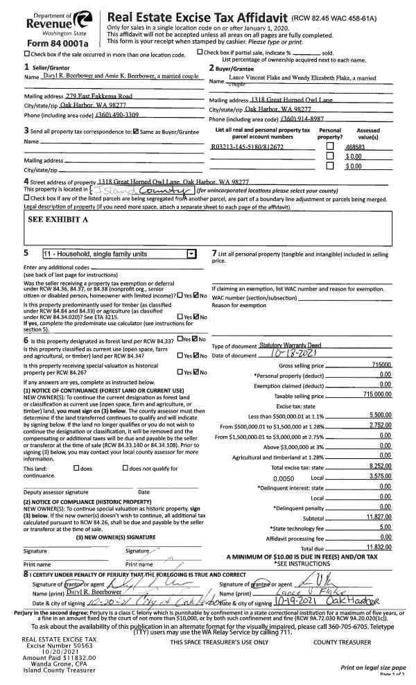
| 1 | 10/18/2021 | WD | Warranty Deed | BEERBOWER, DARYL R | FLAKE, LANCE VINCENT | | | $715,000.00 | 50563 | 4531845 |
| 2 | 08/10/2016 | WD | Warranty Deed | VIEWRIDGE INVESTMENTS LLC | BEERBOWER, DARYL R | | | $392,976.00 | 25695 | 4405215 |
Payout Agreement
| No payout information available.. |