Property
Account |
| Property ID: | 812790 | Abbreviated Legal Description: | KOONTZ RANCH PRD LOT 8 |
| Geographic ID: | S8559-00-00008-0 | Agent Code: | |
| Type: | Real | | |
| Tax Area: | 110 - APPRAISER-OH Schl Dist, outside OH, improved & 1 acre or less | Land Use Code | 11 |
| Open Space: | N | DFL | N |
| Historic Property: | N | Remodel Property: | N |
| Multi-Family Redevelopment: | N | | |
| Township: | 33 | Section: | 6 |
| Range: | R2 |
Location |
| Address: | 4753 KOONTZ RANCH LN OAK HARBOR, WA 98277 | Mapsco: | |
| Neighborhood: | Cycle 6 | Map ID: | 589 |
| Neighborhood CD: | 6 |
Owner |
| Name: | BISHOP, PHILIP | Owner ID: | 288196 |
| Mailing Address: | CANDICE BISHOP 4753 KOONTZ RANCH LN OAK HARBOR, WA 98277 | % Ownership: | 100.0000000000% |
| | | Exemptions: | |
Taxes and Assessment Details
Values
| (+) Improvement Homesite Value: | + | $0 | |
| (+) Improvement Non-Homesite Value: | + | $427,026 | |
| (+) Land Homesite Value: | + | $0 | |
| (+) Land Non-Homesite Value: | + | $190,000 | |
| (+) Curr Use (HS): | + | $0 | $0 |
| (+) Curr Use (NHS): | + | $0 | $0 |
| | | -------------------------- | |
| (=) Market Value: | = | $617,026 | |
| (–) Productivity Loss: | – | $0 | |
| | | -------------------------- | |
| (=) Subtotal: | = | $617,026 | |
| (+) Senior Appraised Value: | + | $0 | |
| (+) Non-Senior Appraised Value: | + | $617,026 | |
| | | -------------------------- | |
| (=) Total Appraised Value: | = | $617,026 | |
| (–) Senior Exemption Loss: | – | $0 | |
| (–) Exemption Loss: | – | $0 | |
| | | -------------------------- | |
| (=) Taxable Value: | = | $617,026 | |
Taxing Jurisdiction
| Owner: | BISHOP, PHILIP | | |
| % Ownership: | 100.0000000000% | | |
| Total Value: | $617,026 | | |
| Tax Area: | 110 - APPRAISER-OH Schl Dist, outside OH, improved & 1 acre or less |
| CF | Conservation Futures | 0.0313996660 | $617,026 | $617,026 | $19.37 | | |
| CEM1 | Cemetery #1 | 0.0040018856 | $617,026 | $617,026 | $2.47 | | |
| FIRE2 | Fire & Rescue Dist #2 N Whidbey GEN | 0.5381486274 | $617,026 | $617,026 | $332.05 | | |
| HOBOND | Hospital BOND | 0.1893405597 | $617,026 | $617,026 | $116.83 | | |
| HOGEN | Hospital GEN | 0.3848777722 | $617,026 | $617,026 | $237.48 | | |
| CE | County Current Expense | 0.3674210519 | $617,026 | $617,026 | $226.71 | | |
| CR | County Roads | 0.4614296361 | $617,026 | $617,026 | $284.71 | | |
| ISLANDEMS | Hospital GEN (EMS) | 0.4952018576 | $617,026 | $617,026 | $305.55 | | |
| LIB | Library Sno-Isle GEN | 0.3039084203 | $617,026 | $617,026 | $187.52 | | |
| NWHIDPRMT | P & R N Whidbey GEN | 0.1990272349 | $617,026 | $617,026 | $122.80 | | |
| SCH201MO | School 201 Enrichment | 2.3851112745 | $617,026 | $617,026 | $1,471.68 | | |
| ST | State School | 1.4761226122 | $617,026 | $617,026 | $910.81 | | |
| ST2 | State School Part 2 | 0.7953803475 | $617,026 | $617,026 | $490.77 | | |
| | Total Tax Rate: | 7.6313709459 | | | | | |
| | | | | Taxes w/Current Exemptions: | $4,708.75 | | |
| | | | | Taxes w/o Exemptions: | $4,708.75 | | |
Improvement / Building
| Improvement #1: | RESIDENTIAL | State Code: | Y | 1750.0 sqft | Value: | $427,026 |
| Bathrooms: | 2 | Bedrooms: | 3 | | Ceiling: | DRYWALL PAINTED | Cooling: | HEAT PUMP/CONV/V | | Exterior Wall/Cover: | CEMENT FIBER | Floor Covering: | VINYL 100% | | Floor Structure: | WOOD W/SUBFLOOR | Foundation: | CONCRETE | | Interior Finish: | DRYWALL PAINT | Plumbing Fixture Cnt: | 11 | | Roof Slope: | 6" IN 12" | Roof Structure/Cover: | CJ ASPHALT |
|
| | Type | Description | Class CD | Sub Class CD | Year Built | Area |
| | BAS | BASE/MAIN FLOOR | 4 | 0 | 2019 | 1750.0 |
| | AGR | ATTACHED GARAGE | 4 | 0 | 2019 | 650.0 |
| | OP4 | OPEN PORCH W/CEILING-ROOF | 4 | 0 | 2019 | 200.0 |
| | OP4 | OPEN PORCH W/CEILING-ROOF | 4 | 0 | 2019 | 96.0 |
Sketch
Property Image
Land
| 1 | 16 | AC (00.51-01.00) | 0.0000 | 0.00 | 0.00 | 0.00 | 1.00 | $190,000 | $0 |
Roll Value History
| 2026 | N/A | N/A | N/A | N/A | N/A |
| 2025 | $427,026 | $190,000 | $0 | $617,026 | $617,026 |
| 2024 | $430,443 | $140,000 | $0 | $570,443 | $570,443 |
| 2023 | $433,858 | $140,000 | $0 | $573,858 | $573,858 |
| 2022 | $392,859 | $140,000 | $0 | $532,859 | $532,859 |
| 2021 | $345,218 | $90,000 | $0 | $435,218 | $435,218 |
| 2020 | $338,149 | $70,000 | $0 | $408,149 | $319,101 |
| 2019 | $249,101 | $140,000 | $0 | $389,101 | $319,101 |
| 2018 | $0 | $70,000 | $0 | $70,000 | $70,000 |
| 2017 | $0 | $70,000 | $0 | $70,000 | $70,000 |
Deed and Sales History
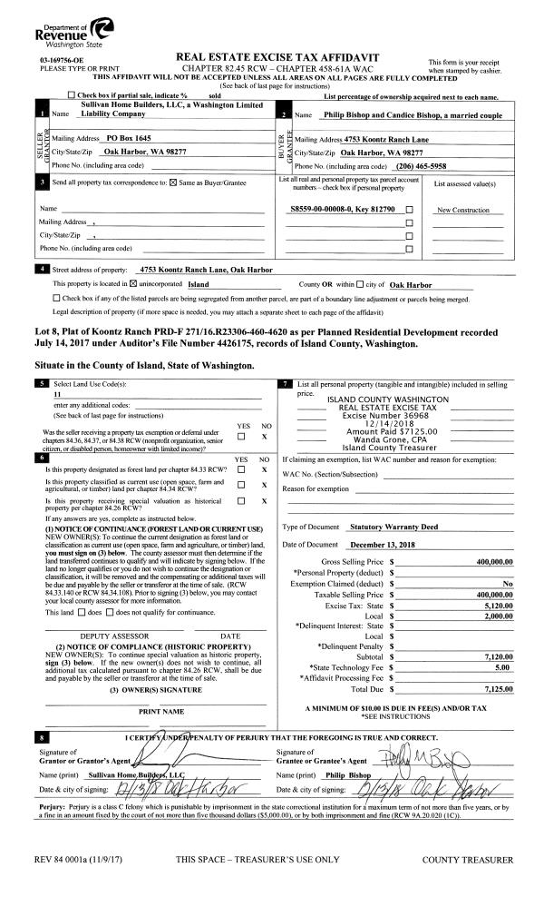
| 1 | 12/13/2018 | WD | Warranty Deed | SULLIVAN HOME BUILDERS, LLC | BISHOP, PHILIP | | | $400,000.00 | 36968 | 4456497 |
| 2 | 05/04/2018 | WD | Warranty Deed | KOONTZ RANCH LLC | SULLIVAN HOME BUILDERS, LLC | | | $82,500.00 | 34031 | 4444076 |
Payout Agreement
| No payout information available.. |