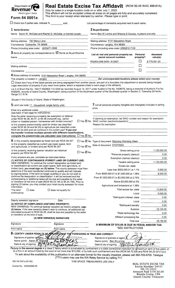
Property
Account |
| Property ID: | 812927 | Abbreviated Legal Description: | LOT 2 SP 163-17.32903-112-3330 AF#4428076 |
| Geographic ID: | R32903-099-3400 | Agent Code: | |
| Type: | Real | | |
| Tax Area: | 712 - APPRAISER-S Whid Schl Dist, outside Langley, improved, greater than 1 acre | Land Use Code | 11 |
| Open Space: | N | DFL | N |
| Historic Property: | N | Remodel Property: | N |
| Multi-Family Redevelopment: | N | | |
| Township: | 29 | Section: | 03 |
| Range: | R3 |
Location |
| Address: | 5131 MAXWELTON RD LANGLEY, WA 98260 | Mapsco: | |
| Neighborhood: | Cycle 4 | Map ID: | 724 |
| Neighborhood CD: | 4 |
Owner |
| Name: | LORMIS, BEN W | Owner ID: | 305418 |
| Mailing Address: | SHAUNA S CAUSEY 5131 MAXWELTON RD LANGLEY, WA 98260 | % Ownership: | 100.0000000000% |
| | | Exemptions: | |
Taxes and Assessment Details
Values
| (+) Improvement Homesite Value: | + | $0 | |
| (+) Improvement Non-Homesite Value: | + | $563,364 | |
| (+) Land Homesite Value: | + | $0 | |
| (+) Land Non-Homesite Value: | + | $370,000 | |
| (+) Curr Use (HS): | + | $0 | $0 |
| (+) Curr Use (NHS): | + | $0 | $0 |
| | | -------------------------- | |
| (=) Market Value: | = | $933,364 | |
| (–) Productivity Loss: | – | $0 | |
| | | -------------------------- | |
| (=) Subtotal: | = | $933,364 | |
| (+) Senior Appraised Value: | + | $0 | |
| (+) Non-Senior Appraised Value: | + | $933,364 | |
| | | -------------------------- | |
| (=) Total Appraised Value: | = | $933,364 | |
| (–) Senior Exemption Loss: | – | $0 | |
| (–) Exemption Loss: | – | $0 | |
| | | -------------------------- | |
| (=) Taxable Value: | = | $933,364 | |
Taxing Jurisdiction
| Owner: | LORMIS, BEN W | | |
| % Ownership: | 100.0000000000% | | |
| Total Value: | $933,364 | | |
| Tax Area: | 712 - APPRAISER-S Whid Schl Dist, outside Langley, improved, greater than 1 acre |
| CF | Conservation Futures | 0.0313996660 | $933,364 | $933,364 | $29.31 | | |
| FIRE3 | Fire & Rescue Dist #3 S Whidbey GEN | 1.2130821753 | $933,364 | $933,364 | $1,132.25 | | |
| HOBOND | Hospital BOND | 0.1893405597 | $933,364 | $933,364 | $176.72 | | |
| HOGEN | Hospital GEN | 0.3848777722 | $933,364 | $933,364 | $359.23 | | |
| CE | County Current Expense | 0.3674210519 | $933,364 | $933,364 | $342.94 | | |
| CR | County Roads | 0.4614296361 | $933,364 | $933,364 | $430.68 | | |
| ISLANDEMS | Hospital GEN (EMS) | 0.4952018576 | $933,364 | $933,364 | $462.20 | | |
| LIB | Library Sno-Isle GEN | 0.3039084203 | $933,364 | $933,364 | $283.66 | | |
| PORTWHID | Port of S Whidbey GEN | 0.1086004714 | $933,364 | $933,364 | $101.36 | | |
| SCH206BOND | School 206 BOND | 0.5960237832 | $933,364 | $933,364 | $556.31 | | |
| SCH206CAP | School 206 CP | 0.3066144020 | $933,364 | $933,364 | $286.18 | | |
| SCH206MO | School 206 Enrichment | 0.4808755445 | $933,364 | $933,364 | $448.83 | | |
| ST | State School | 1.4761226122 | $933,364 | $933,364 | $1,377.76 | | |
| ST2 | State School Part 2 | 0.7953803475 | $933,364 | $933,364 | $742.38 | | |
| SWHIDPRBD | P & R S Whidbey BOND | 0.0144185398 | $933,364 | $933,364 | $13.46 | | |
| SWHIDPRBD3 | P & R S Whidbey BOND3 | 0.1483535547 | $933,364 | $933,364 | $138.47 | | |
| SWHIDPRMT | P & R S Whidbey GEN | 0.4600000000 | $933,364 | $933,364 | $429.35 | | |
| | Total Tax Rate: | 7.8330503944 | | | | | |
| | | | | Taxes w/Current Exemptions: | $7,311.09 | | |
| | | | | Taxes w/o Exemptions: | $7,311.09 | | |
Improvement / Building
| Improvement #1: | RESIDENTIAL | State Code: | Y | 2392.0 sqft | Value: | $563,364 |
| Bathrooms: | 2.75 | Bedrooms: | 4 | | Ceiling: | DRYWALL PAINTED | Cooling: | HEAT PUMP/CONV/V | | Exterior Wall/Cover: | WOOD SIDING | Floor Covering: | HARDWOOD/CARP 60-40 | | Floor Structure: | WOOD W/SUBFLOOR | Foundation: | CONCRETE | | Interior Finish: | DRYWALL PAINT | Plumbing Fixture Cnt: | 13 | | Roof Slope: | 5" IN 12" | Roof Structure/Cover: | CJ ASPHALT |
|
| | Type | Description | Class CD | Sub Class CD | Year Built | Area |
| | BAS | BASE/MAIN FLOOR | 4 | 0 | 2020 | 1560.0 |
| | UPS | UPPER STORY | 4 | 0 | 2020 | 832.0 |
| | OWC | OPEN WOOD PORCH W/STEPS/ROOF/C | 4 | 0 | 2020 | 172.0 |
| | OWC | OPEN WOOD PORCH W/STEPS/ROOF/C | 4 | 0 | 2020 | 172.0 |
| | UTY | STORAGE/UTILITY | 4 | 0 | 2020 | 192.0 |
Sketch
Property Image
Land
| 1 | 32 | AC (03.01-09.99) | 5.3900 | 0.00 | 0.00 | 0.00 | 1.00 | $370,000 | $0 |
Roll Value History
| 2026 | N/A | N/A | N/A | N/A | N/A |
| 2025 | $563,364 | $370,000 | $0 | $933,364 | $933,364 |
| 2024 | $567,869 | $350,000 | $0 | $917,869 | $917,869 |
| 2023 | $572,377 | $330,000 | $0 | $902,377 | $902,377 |
| 2022 | $495,931 | $280,000 | $0 | $775,931 | $775,931 |
| 2021 | $439,085 | $230,000 | $0 | $669,085 | $669,085 |
| 2020 | $261,829 | $150,000 | $0 | $411,829 | $411,829 |
| 2019 | $0 | $135,000 | $0 | $135,000 | $135,000 |
| 2018 | $0 | $130,000 | $0 | $130,000 | $130,000 |
| 2017 | $0 | $130,000 | $0 | $130,000 | $130,000 |
Deed and Sales History
| 1 | 07/27/2022 | WD | Warranty Deed | MCCABE, AARON W | LORMIS, BEN W | | | $1,125,000.00 | 54101 | 4549429 |
| 2 | 07/15/2019 | QCD | Quit Claim Deed | MCCABE, AARON | MCCABE, AARON W | | | $0.00 | 39442 | 4467409 |
| 3 | 08/14/2017 | QCD | Quit Claim Deed | WOLF-ROTTKAY, WERNER R | MCCABE, AARON | | | | 30654 | 4428234 |
Payout Agreement
| No payout information available.. |