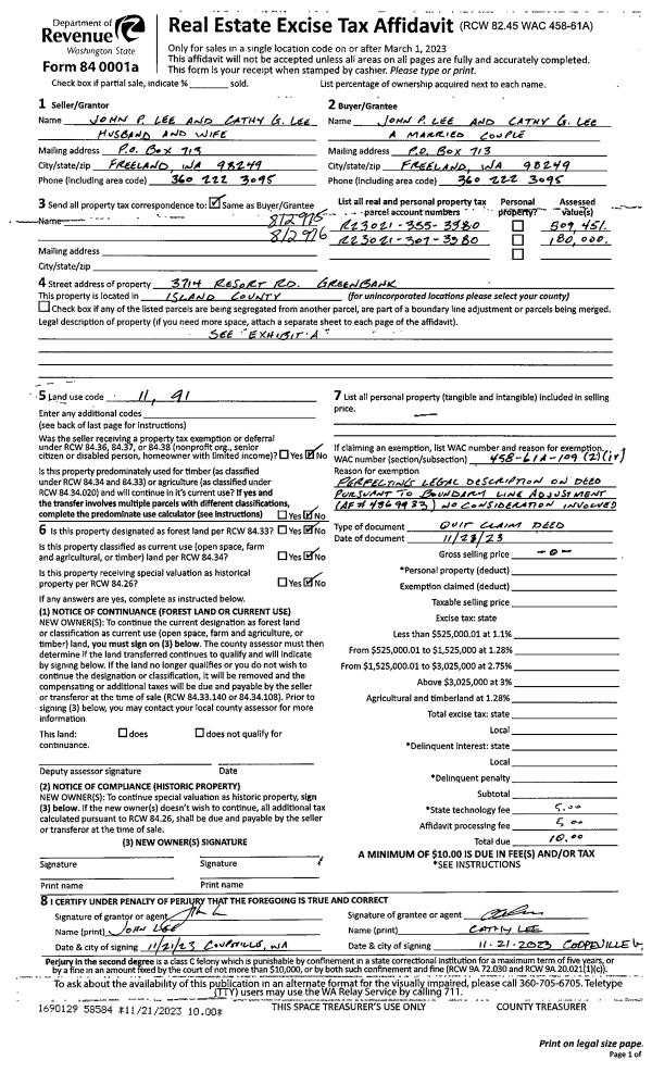
Property
Account |
| Property ID: | 812975 | Abbreviated Legal Description: | N/2 W/2 E/2 SW NE & N/2 E/2 W/2 SW NE & PT GL2 LY S OF CO RD & W OF ELN OF W/2 SW NE EXT N EX PT TO IS CO FOR RD AF#52384 |
| Geographic ID: | R23021-355-3380 | Agent Code: | |
| Type: | Real | | |
| Tax Area: | 312 - APPRAISER-Cpvl Schl Dist, outside Cpvl, improved, greater than 1 acre | Land Use Code | 11 |
| Open Space: | N | DFL | N |
| Historic Property: | N | Remodel Property: | N |
| Multi-Family Redevelopment: | N | | |
| Township: | 30 | Section: | 21 |
| Range: | R2 |
Location |
| Address: | 3714 RESORT RD GREENBANK, WA 98253 | Mapsco: | |
| Neighborhood: | Cycle 3 | Map ID: | 403 |
| Neighborhood CD: | 3 |
Owner |
| Name: | LEE, JOHN P | Owner ID: | 311125 |
| Mailing Address: | CATHY G LEE PO BOX 713 FREELAND, WA 98249 | % Ownership: | 100.0000000000% |
| | | Exemptions: | SNR/DSBL |
Taxes and Assessment Details
Values
| (+) Improvement Homesite Value: | + | $155,904 | |
| (+) Improvement Non-Homesite Value: | + | $0 | |
| (+) Land Homesite Value: | + | $185,874 | |
| (+) Land Non-Homesite Value: | + | $214,126 | |
| (+) Curr Use (HS): | + | $0 | $0 |
| (+) Curr Use (NHS): | + | $0 | $0 |
| | | -------------------------- | |
| (=) Market Value: | = | $555,904 | |
| (–) Productivity Loss: | – | $0 | |
| | | -------------------------- | |
| (=) Subtotal: | = | $555,904 | |
| (+) Senior Appraised Value: | + | $322,090 | |
| (+) Non-Senior Appraised Value: | + | $214,126 | |
| | | -------------------------- | |
| (=) Total Appraised Value: | = | $536,216 | |
| (–) Senior Exemption Loss: | – | $0 | |
| (–) Exemption Loss: | – | $0 | |
| | | -------------------------- | |
| (=) Taxable Value: | = | $536,216 | |
Taxing Jurisdiction
| Owner: | LEE, JOHN P | | |
| % Ownership: | 100.0000000000% | | |
| Total Value: | $555,904 | | |
| Tax Area: | 312 - APPRAISER-Cpvl Schl Dist, outside Cpvl, improved, greater than 1 acre |
| CF | Conservation Futures | 0.0313996660 | $555,904 | $536,216 | $16.84 | | |
| CEM2 | Cemetery #2 | 0.0092609791 | $555,904 | $536,216 | $4.97 | | |
| FIRE5 | Fire & Rescue Dist #5 C Whidbey GEN | 1.1892169230 | $555,904 | $536,216 | $637.68 | | |
| FIRE5BOND | Fire & Rescue Dist #5 C Whidbey BOND | 0.0000000000 | $555,904 | $214,126 | $29.86 | | |
| HOBOND | Hospital BOND | 0.0000000000 | $555,904 | $214,126 | $40.54 | | |
| HOGEN | Hospital GEN | 0.3848777722 | $555,904 | $536,216 | $206.38 | | |
| CE | County Current Expense | 0.3674210519 | $555,904 | $536,216 | $197.02 | | |
| CR | County Roads | 0.4614296361 | $555,904 | $536,216 | $247.43 | | |
| ISLANDEMS | Hospital GEN (EMS) | 0.4952018576 | $555,904 | $536,216 | $265.54 | | |
| LIB | Library Sno-Isle GEN | 0.3039084203 | $555,904 | $536,216 | $162.96 | | |
| LIBCAP | Library Sno-Isle BOND (Cap Fac Imp Area) | 0.0000000000 | $555,904 | $214,126 | $11.32 | | |
| POCOUP | Port of Coupeville GEN | 0.1065226063 | $555,904 | $536,216 | $57.12 | | |
| POCOUPIDD | Port of Coupeville IDD | 0.3353038577 | $555,904 | $536,216 | $179.80 | | |
| COUPSDTECH | School 204 CP (TECH) | 0.0000000000 | $555,904 | $214,126 | $26.02 | | |
| SCH204MO | School 204 Enrichment | 0.0000000000 | $555,904 | $214,126 | $137.40 | | |
| ST | State School | 1.4761226122 | $555,904 | $536,216 | $791.52 | | |
| ST2 | State School Part 2 | 0.0000000000 | $555,904 | $214,126 | $170.31 | | |
| | Total Tax Rate: | 5.1606653824 | | | | | |
| | | | | Taxes w/Current Exemptions: | $3,182.71 | | |
| | | | | Taxes w/o Exemptions: | $3,947.40 | | |
Improvement / Building
| Improvement #1: | RESIDENTIAL | State Code: | Y | 626.6 sqft | Value: | $155,904 |
| Bathrooms: | 0.75 | Bedrooms: | 1 | | Ceiling: | TONGUE & GROOVE | Exterior Wall/Cover: | SHINGLE | | Floor Covering: | VINYL 100% | Floor Structure: | WOOD W/SUBFLOOR | | Foundation: | CONCRETE | Heating: | WALL HEAT ELECTRIC | | Interior Finish: | DRYWALL PAINT | Plumbing Fixture Cnt: | 6 | | Roof Slope: | 3" IN 12" | Roof Structure/Cover: | BEAM ASPHALT |
|
| | Type | Description | Class CD | Sub Class CD | Year Built | Area |
| | BAS | BASE/MAIN FLOOR | 3 | 0 | 2007 | 626.6 |
| | OWP | OPEN WOOD PORCH W/STEPS | 3 | 0 | 2007 | 141.8 |
| | OWC | OPEN WOOD PORCH W/STEPS/ROOF/C | 3 | 0 | 2007 | 40.6 |
| | oPUM | PUMP HOUSE | 3 | 0 | 2007 | 0.0 |
| | oUTI | UTILITY | 3 | 0 | 2007 | 0.0 |
Sketch
Property Image
Land
| 1 | 35 | AC (10.00-30.99) | 10.7600 | 0.00 | 0.00 | 0.00 | 1.00 | $400,000 | $0 |
Roll Value History
| 2026 | N/A | N/A | N/A | N/A | N/A |
| 2025 | $155,904 | $400,000 | $0 | $555,904 | $536,216 |
| 2024 | $157,678 | $360,000 | $0 | $517,678 | $514,804 |
| 2023 | $159,451 | $350,000 | $0 | $509,451 | $509,451 |
| 2022 | $146,940 | $230,000 | $0 | $376,940 | $376,940 |
| 2021 | $130,473 | $230,000 | $0 | $360,473 | $360,473 |
| 2020 | $126,925 | $190,000 | $0 | $316,925 | $316,925 |
| 2019 | $92,289 | $250,000 | $0 | $342,289 | $342,289 |
| 2018 | $92,523 | $235,000 | $0 | $327,523 | $327,523 |
| 2017 | $87,712 | $160,000 | $0 | $247,712 | $247,712 |
Deed and Sales History
| 1 | 11/21/2023 | QCD | Quit Claim Deed | LEE, JOHN P | LEE, JOHN P | | | $0.00 | 58584 | 4566936 |
Payout Agreement
| No payout information available.. |