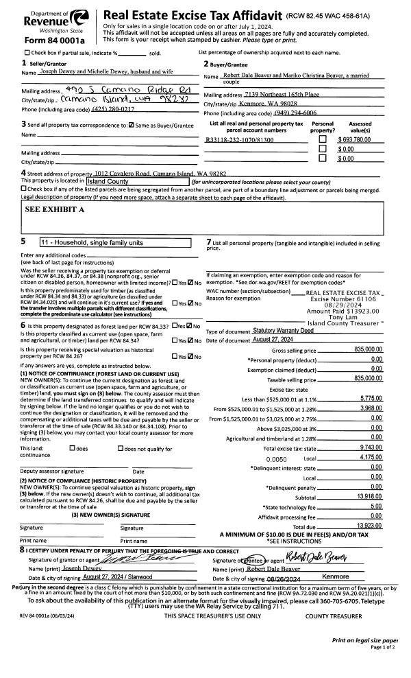
Property
Account |
| Property ID: | 813000 | Abbreviated Legal Description: | LOT 3 SP 248-17.33118-240-1160 AF#4433996 |
| Geographic ID: | R33118-232-1070 | Agent Code: | |
| Type: | Real | | |
| Tax Area: | 510 - APPRAISER-Stan/Cam Schl Dist, improved & 1 acre or less | Land Use Code | 11 |
| Open Space: | N | DFL | N |
| Historic Property: | N | Remodel Property: | N |
| Multi-Family Redevelopment: | N | | |
| Township: | 31 | Section: | 18 |
| Range: | R3 |
Location |
| Address: | 1012 CAVALERO RD CAMANO ISLAND, WA 98282 | Mapsco: | |
| Neighborhood: | Cycle 5 | Map ID: | 927 |
| Neighborhood CD: | 5 |
Owner |
| Name: | BEAVER, ROBERT DALE | Owner ID: | 313700 |
| Mailing Address: | MARIKO CHRISTINA BEAVER 1012 CAVALERO RD CAMANO ISLAND, WA 98282 | % Ownership: | 100.0000000000% |
| | | Exemptions: | |
Taxes and Assessment Details
Values
| (+) Improvement Homesite Value: | + | $0 | |
| (+) Improvement Non-Homesite Value: | + | $460,070 | |
| (+) Land Homesite Value: | + | $0 | |
| (+) Land Non-Homesite Value: | + | $250,000 | |
| (+) Curr Use (HS): | + | $0 | $0 |
| (+) Curr Use (NHS): | + | $0 | $0 |
| | | -------------------------- | |
| (=) Market Value: | = | $710,070 | |
| (–) Productivity Loss: | – | $0 | |
| | | -------------------------- | |
| (=) Subtotal: | = | $710,070 | |
| (+) Senior Appraised Value: | + | $0 | |
| (+) Non-Senior Appraised Value: | + | $710,070 | |
| | | -------------------------- | |
| (=) Total Appraised Value: | = | $710,070 | |
| (–) Senior Exemption Loss: | – | $0 | |
| (–) Exemption Loss: | – | $0 | |
| | | -------------------------- | |
| (=) Taxable Value: | = | $710,070 | |
Taxing Jurisdiction
| Owner: | BEAVER, ROBERT DALE | | |
| % Ownership: | 100.0000000000% | | |
| Total Value: | $710,070 | | |
| Tax Area: | 510 - APPRAISER-Stan/Cam Schl Dist, improved & 1 acre or less |
| CF | Conservation Futures | 0.0313996660 | $710,070 | $710,070 | $22.30 | | |
| EMS1 | Fire & Rescue Dist #1 Camano GEN (EMS) | 0.4998471806 | $710,070 | $710,070 | $354.93 | | |
| FIRE1 | Fire & Rescue Dist #1 Camano GEN | 1.2496603404 | $710,070 | $710,070 | $887.35 | | |
| FIRE1BOND | Fire & Rescue Dist #1 Camano BOND | 0.1630371212 | $710,070 | $710,070 | $115.77 | | |
| CE | County Current Expense | 0.3674210519 | $710,070 | $710,070 | $260.89 | | |
| CR | County Roads | 0.4614296361 | $710,070 | $710,070 | $327.65 | | |
| LIB | Library Sno-Isle GEN | 0.3039084203 | $710,070 | $710,070 | $215.80 | | |
| SCH205_401 | School 205-401 Enrichment | 1.3697998934 | $710,070 | $710,070 | $972.65 | | |
| SCH205BOND | School 205-401 BOND | 0.9354199323 | $710,070 | $710,070 | $664.21 | | |
| ST | State School | 1.4761226122 | $710,070 | $710,070 | $1,048.15 | | |
| ST2 | State School Part 2 | 0.7953803475 | $710,070 | $710,070 | $564.78 | | |
| | Total Tax Rate: | 7.6534262019 | | | | | |
| | | | | Taxes w/Current Exemptions: | $5,434.48 | | |
| | | | | Taxes w/o Exemptions: | $5,434.48 | | |
Improvement / Building
| Improvement #1: | RESIDENTIAL | State Code: | Y | 2184.0 sqft | Value: | $460,070 |
| Bathrooms: | 2 | Bedrooms: | 3 | | Ceiling: | DRYWALL PAINTED | Exterior Wall/Cover: | CEMENT FIBER | | Floor Covering: | HARDWOOD/CARP 80-20 | Floor Structure: | WOOD W/SUBFLOOR | | Foundation: | CONCRETE | Heating: | FHA GAS | | Plumbing Fixture Cnt: | 11 | Roof Slope: | 5" IN 12" | | Roof Structure/Cover: | CJ ASPHALT |   |   |
|
| | Type | Description | Class CD | Sub Class CD | Year Built | Area |
| | BAS | BASE/MAIN FLOOR | 4 | 0 | 2019 | 2184.0 |
| | AGR | ATTACHED GARAGE | 4 | 0 | 2019 | 888.0 |
| | OWC | OPEN WOOD PORCH W/STEPS/ROOF/C | 4 | 0 | 2019 | 682.0 |
Sketch
Property Image
Land
| 1 | 16 | AC (00.51-01.00) | 0.9900 | 43995.60 | 0.00 | 0.00 | 1.00 | $250,000 | $0 |
Roll Value History
| 2026 | N/A | N/A | N/A | N/A | N/A |
| 2025 | $460,070 | $250,000 | $0 | $710,070 | $710,070 |
| 2024 | $463,780 | $230,000 | $0 | $693,780 | $693,780 |
| 2023 | $467,490 | $230,000 | $0 | $697,490 | $697,490 |
| 2022 | $426,682 | $210,000 | $0 | $636,682 | $636,682 |
| 2021 | $374,936 | $170,000 | $0 | $544,936 | $544,936 |
| 2020 | $367,223 | $150,000 | $0 | $517,223 | $517,223 |
| 2019 | $275,817 | $200,000 | $0 | $475,817 | $475,817 |
| 2018 | $0 | $80,000 | $0 | $80,000 | $80,000 |
| 2017 | $0 | $22,500 | $0 | $22,500 | $22,500 |
Deed and Sales History
| 1 | 08/27/2024 | WD | Warranty Deed | DEWEY, JOSEPH | BEAVER, ROBERT DALE | | | $835,000.00 | 61106 | 4576411 |
| 2 | 02/12/2020 | WD | Warranty Deed | STACK DESIGN & CONSTRUCTION LLC | DEWEY, JOSEPH | | | $571,500.00 | 42091 | 4481257 |
| 3 | 01/16/2018 | WD | Warranty Deed | WALDRON 1/2 INT, JOAN | STACK DESIGN & CONSTRUCTION LLC | | | $345,000.00 | 32649 | 4437654 |
|   | |
Payout Agreement
| No payout information available.. |