Property
Account |
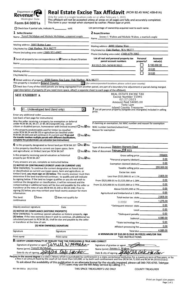
| Property ID: | 813015 | Abbreviated Legal Description: | LOT D SP 217-17.13312-296-3300 AF#4433499 |
| Geographic ID: | R13312-281-3630 | Agent Code: | |
| Type: | Real | | |
| Tax Area: | 112 - APPRAISER-OH Schl Dist, outside OH, improved, greater than 1 acre | Land Use Code | 11 |
| Open Space: | N | DFL | N |
| Historic Property: | N | Remodel Property: | N |
| Multi-Family Redevelopment: | N | | |
| Township: | 33 | Section: | 12 |
| Range: | R1 |
Location |
| Address: | 4200 SUNNY SEA LN OAK HARBOR, WA 98277 | Mapsco: | |
| Neighborhood: | Cycle 6 | Map ID: | 207 |
| Neighborhood CD: | 6 |
Owner |
| Name: | WALTON, JEREMY I | Owner ID: | 307763 |
| Mailing Address: | MICHELE WALTON 4480 ALAMO WAY OAK HARBOR, WA 98277 | % Ownership: | 100.0000000000% |
| | | Exemptions: | |
Taxes and Assessment Details
Values
| (+) Improvement Homesite Value: | + | $0 | |
| (+) Improvement Non-Homesite Value: | + | $134,352 | |
| (+) Land Homesite Value: | + | $0 | |
| (+) Land Non-Homesite Value: | + | $202,500 | |
| (+) Curr Use (HS): | + | $0 | $0 |
| (+) Curr Use (NHS): | + | $0 | $0 |
| | | -------------------------- | |
| (=) Market Value: | = | $336,852 | |
| (–) Productivity Loss: | – | $0 | |
| | | -------------------------- | |
| (=) Subtotal: | = | $336,852 | |
| (+) Senior Appraised Value: | + | $0 | |
| (+) Non-Senior Appraised Value: | + | $336,852 | |
| | | -------------------------- | |
| (=) Total Appraised Value: | = | $336,852 | |
| (–) Senior Exemption Loss: | – | $0 | |
| (–) Exemption Loss: | – | $0 | |
| | | -------------------------- | |
| (=) Taxable Value: | = | $336,852 | |
Taxing Jurisdiction
| Owner: | WALTON, JEREMY I | | |
| % Ownership: | 100.0000000000% | | |
| Total Value: | $336,852 | | |
| Tax Area: | 112 - APPRAISER-OH Schl Dist, outside OH, improved, greater than 1 acre |
| CF | Conservation Futures | 0.0313996660 | $336,852 | $336,852 | $10.58 | | |
| CEM1 | Cemetery #1 | 0.0040018856 | $336,852 | $336,852 | $1.35 | | |
| FIRE2 | Fire & Rescue Dist #2 N Whidbey GEN | 0.5381486274 | $336,852 | $336,852 | $181.28 | | |
| HOBOND | Hospital BOND | 0.1893405597 | $336,852 | $336,852 | $63.78 | | |
| HOGEN | Hospital GEN | 0.3848777722 | $336,852 | $336,852 | $129.65 | | |
| CE | County Current Expense | 0.3674210519 | $336,852 | $336,852 | $123.77 | | |
| CR | County Roads | 0.4614296361 | $336,852 | $336,852 | $155.43 | | |
| ISLANDEMS | Hospital GEN (EMS) | 0.4952018576 | $336,852 | $336,852 | $166.81 | | |
| LIB | Library Sno-Isle GEN | 0.3039084203 | $336,852 | $336,852 | $102.37 | | |
| NWHIDPRMT | P & R N Whidbey GEN | 0.1990272349 | $336,852 | $336,852 | $67.04 | | |
| SCH201MO | School 201 Enrichment | 2.3851112745 | $336,852 | $336,852 | $803.43 | | |
| ST | State School | 1.4761226122 | $336,852 | $336,852 | $497.23 | | |
| ST2 | State School Part 2 | 0.7953803475 | $336,852 | $336,852 | $267.93 | | |
| | Total Tax Rate: | 7.6313709459 | | | | | |
| | | | | Taxes w/Current Exemptions: | $2,570.65 | | |
| | | | | Taxes w/o Exemptions: | $2,570.65 | | |
Improvement / Building
| Improvement #1: | RESIDENTIAL | State Code: | Y | 2155.2 sqft | Value: | $134,352 |
| Bathrooms: | 2.5 | Bedrooms: | 3 | | Ceiling: | DRYWALL PAINTED | Cooling: | HEAT PUMP/CONV/V | | Exterior Wall/Cover: | CEMENT FIBER | Floor Covering: | VINYL 100% | | Floor Structure: | WOOD W/SUBFLOOR | Foundation: | CONCRETE | | Interior Finish: | DRYWALL PAINT | Plumbing Fixture Cnt: | 10 | | Roof Slope: | 5" IN 12" | Roof Structure/Cover: | CJ ASPHALT |
|
| | Type | Description | Class CD | Sub Class CD | Year Built | Area |
| | BAS | BASE/MAIN FLOOR | 3 | 0 | 2024 | 2155.2 |
| | AGR | ATTACHED GARAGE | 3 | 0 | 2024 | 352.8 |
| | oPOL | POLE BARN | 4 | 0 | 2024 | 1440.0 |
| | OWR | OPEN WOOD PORCH W/STEPS/ROOF | 3 | 0 | 2024 | 160.0 |
Sketch
| No sketches available for this property. |
Property Image
Land
| 1 | 32 | AC (03.01-09.99) | 4.9600 | 0.00 | 0.00 | 0.00 | 1.00 | $202,500 | $0 |
Roll Value History
| 2026 | N/A | N/A | N/A | N/A | N/A |
| 2025 | $134,352 | $202,500 | $0 | $336,852 | $336,852 |
| 2024 | $4,000 | $150,000 | $0 | $154,000 | $154,000 |
| 2023 | $4,000 | $140,000 | $0 | $144,000 | $144,000 |
| 2022 | $0 | $100,000 | $0 | $100,000 | $100,000 |
| 2021 | $0 | $90,000 | $0 | $90,000 | $90,000 |
| 2020 | $0 | $90,000 | $0 | $90,000 | $90,000 |
| 2019 | $0 | $90,000 | $0 | $90,000 | $90,000 |
| 2018 | $0 | $90,000 | $0 | $90,000 | $90,000 |
| 2017 | $0 | $50,000 | $0 | $50,000 | $50,000 |
Deed and Sales History
| 1 | 02/23/2023 | WD | Warranty Deed | MCMAHAN, TERRELL | WALTON, JEREMY I | | | $255,000.00 | 55945 | 4557108 |
| 2 | 03/26/2021 | WD | Warranty Deed | LANG, LARRY | MCMAHAN, TERRELL | | | $215,000.00 | 47531 | 4514883 |
| 3 | 09/14/2020 | WD | Warranty Deed | CERULLO, JOSEPH A | LANG, LARRY | | | $100,000.00 | 44758 | 4496634 |
Payout Agreement
| No payout information available.. |