Property
Account |
| Property ID: | 813091 | Abbreviated Legal Description: | LOT 2 SP 254-17.33129-062-0180 AF# 4433759 |
| Geographic ID: | R33129-033-0170 | Agent Code: | |
| Type: | Real | | |
| Tax Area: | 510 - APPRAISER-Stan/Cam Schl Dist, improved & 1 acre or less | Land Use Code | 11 |
| Open Space: | N | DFL | N |
| Historic Property: | N | Remodel Property: | N |
| Multi-Family Redevelopment: | N | | |
| Township: | 31 | Section: | 29 |
| Range: | R3 |
Location |
| Address: | 423 E MOUNTAIN VIEW RD CAMANO ISLAND, WA 98282 | Mapsco: | |
| Neighborhood: | Cycle 5 | Map ID: | 933 |
| Neighborhood CD: | 5 |
Owner |
| Name: | ANDREASON, CHRISTINE L | Owner ID: | 294556 |
| Mailing Address: | DENNIS R ANDREASON 423 E MOUNTAIN VIEW RD CAMANO ISLAND, WA 98282 | % Ownership: | 100.0000000000% |
| | | Exemptions: | |
Taxes and Assessment Details
Values
| (+) Improvement Homesite Value: | + | $0 | |
| (+) Improvement Non-Homesite Value: | + | $544,438 | |
| (+) Land Homesite Value: | + | $0 | |
| (+) Land Non-Homesite Value: | + | $330,000 | |
| (+) Curr Use (HS): | + | $0 | $0 |
| (+) Curr Use (NHS): | + | $0 | $0 |
| | | -------------------------- | |
| (=) Market Value: | = | $874,438 | |
| (–) Productivity Loss: | – | $0 | |
| | | -------------------------- | |
| (=) Subtotal: | = | $874,438 | |
| (+) Senior Appraised Value: | + | $0 | |
| (+) Non-Senior Appraised Value: | + | $874,438 | |
| | | -------------------------- | |
| (=) Total Appraised Value: | = | $874,438 | |
| (–) Senior Exemption Loss: | – | $0 | |
| (–) Exemption Loss: | – | $0 | |
| | | -------------------------- | |
| (=) Taxable Value: | = | $874,438 | |
Taxing Jurisdiction
| Owner: | ANDREASON, CHRISTINE L | | |
| % Ownership: | 100.0000000000% | | |
| Total Value: | $874,438 | | |
| Tax Area: | 510 - APPRAISER-Stan/Cam Schl Dist, improved & 1 acre or less |
| CF | Conservation Futures | 0.0313996660 | $874,438 | $874,438 | $27.46 | | |
| EMS1 | Fire & Rescue Dist #1 Camano GEN (EMS) | 0.4998471806 | $874,438 | $874,438 | $437.09 | | |
| FIRE1 | Fire & Rescue Dist #1 Camano GEN | 1.2496603404 | $874,438 | $874,438 | $1,092.75 | | |
| FIRE1BOND | Fire & Rescue Dist #1 Camano BOND | 0.1630371212 | $874,438 | $874,438 | $142.57 | | |
| CE | County Current Expense | 0.3674210519 | $874,438 | $874,438 | $321.29 | | |
| CR | County Roads | 0.4614296361 | $874,438 | $874,438 | $403.49 | | |
| LIB | Library Sno-Isle GEN | 0.3039084203 | $874,438 | $874,438 | $265.75 | | |
| SCH205_401 | School 205-401 Enrichment | 1.3697998934 | $874,438 | $874,438 | $1,197.81 | | |
| SCH205BOND | School 205-401 BOND | 0.9354199323 | $874,438 | $874,438 | $817.97 | | |
| ST | State School | 1.4761226122 | $874,438 | $874,438 | $1,290.78 | | |
| ST2 | State School Part 2 | 0.7953803475 | $874,438 | $874,438 | $695.51 | | |
| | Total Tax Rate: | 7.6534262019 | | | | | |
| | | | | Taxes w/Current Exemptions: | $6,692.47 | | |
| | | | | Taxes w/o Exemptions: | $6,692.47 | | |
Improvement / Building
| Improvement #1: | RESIDENTIAL | State Code: | Y | 2264.0 sqft | Value: | $544,438 |
| Bathrooms: | 2.5 | Bedrooms: | 4 | | Ceiling: | DRYWALL PAINTED | Cooling: | HEAT PUMP/CONV/V | | Exterior Wall/Cover: | CEMENT FIBER | Floor Covering: | CARPET/VINYL 20-80 | | Floor Structure: | WOOD W/SUBFLOOR | Foundation: | CONCRETE | | Interior Finish: | DRYWALL PAINT | Plumbing Fixture Cnt: | 15 | | Roof Slope: | 5" IN 12" | Roof Structure/Cover: | CJ ASPHALT |
|
| | Type | Description | Class CD | Sub Class CD | Year Built | Area |
| | BAS | BASE/MAIN FLOOR | 4 | 0 | 2019 | 2264.0 |
| | AGR | ATTACHED GARAGE | 4 | 0 | 2019 | 704.0 |
| | OWC | OPEN WOOD PORCH W/STEPS/ROOF/C | 4 | 0 | 2019 | 400.0 |
| | OWC | OPEN WOOD PORCH W/STEPS/ROOF/C | 4 | 0 | 2019 | 64.0 |
Sketch
Property Image
Land
| 1 | 32 | AC (03.01-09.99) | 4.8700 | 212137.20 | 0.00 | 0.00 | 1.00 | $330,000 | $0 |
Roll Value History
| 2026 | N/A | N/A | N/A | N/A | N/A |
| 2025 | $544,438 | $330,000 | $0 | $874,438 | $874,438 |
| 2024 | $548,829 | $300,000 | $0 | $848,829 | $848,829 |
| 2023 | $553,219 | $290,000 | $0 | $843,219 | $843,219 |
| 2022 | $504,906 | $290,000 | $0 | $794,906 | $794,906 |
| 2021 | $443,668 | $190,000 | $0 | $633,668 | $633,668 |
| 2020 | $434,375 | $160,000 | $0 | $594,375 | $594,375 |
| 2019 | $168,977 | $100,000 | $0 | $268,977 | $268,977 |
| 2018 | $0 | $80,000 | $0 | $80,000 | $80,000 |
| 2017 | $0 | $75,000 | $0 | $75,000 | $75,000 |
Deed and Sales History
| 1 | 06/10/2020 | WD | Warranty Deed | HEZEL HOMES, LLC | ANDREASON, CHRISTINE L | | | $640,000.00 | 43333 | 4488690 |
| 2 | 05/02/2019 | EZ | Easement | HEZEL HOMES, LLC | EGGER, BETTY S | | | $1,000.00 | 38331 | 4462539 |
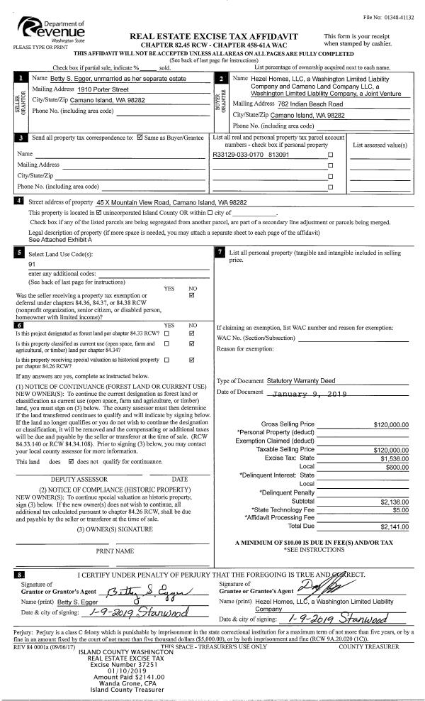
| 3 | 01/09/2019 | WD | Warranty Deed | EGGER, BETTY S | HEZEL HOMES, LLC | | | $120,000.00 | 37251 | 4457678 |
Payout Agreement
| No payout information available.. |