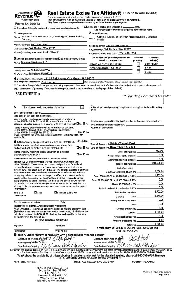
Property
Account |
| Property ID: | 813230 | Abbreviated Legal Description: | LOT 4 OH-SP 16.00001.7600-00-02002-3 AF#4436554 |
| Geographic ID: | S7600-00-02002-10 | Agent Code: | |
| Type: | Real | | |
| Tax Area: | 100 - APPRAISER-OH Schl Dist, in OH | Land Use Code | 11 |
| Open Space: | N | DFL | N |
| Historic Property: | N | Remodel Property: | N |
| Multi-Family Redevelopment: | N | | |
| Township: | | Section: | |
| Range: | |
Location |
| Address: | 531 SE 3RD CT OAK HARBOR, WA 98277 | Mapsco: | |
| Neighborhood: | Cycle 1 | Map ID: | 88 |
| Neighborhood CD: | 1 |
Owner |
| Name: | DRISCOLL, CALVIN E | Owner ID: | 302093 |
| Mailing Address: | MORGAN FREEBORN DRISCOLL 531 SE 3RD AVE OAK HARBOR, WA 98277 | % Ownership: | 100.0000000000% |
| | | Exemptions: | |
Taxes and Assessment Details
Values
| (+) Improvement Homesite Value: | + | N/A | |
| (+) Improvement Non-Homesite Value: | + | N/A | |
| (+) Land Homesite Value: | + | N/A | |
| (+) Land Non-Homesite Value: | + | N/A | Ag / Timber Use Value |
| (+) Curr Use (HS): | + | N/A | N/A |
| (+) Curr Use (NHS): | + | N/A | N/A |
| | | -------------------------- | |
| (=) Market Value: | = | N/A | |
| (–) Productivity Loss: | – | N/A | |
| | | -------------------------- | |
| (=) Subtotal: | = | N/A | |
| (+) Senior Appraised Value: | + | N/A | |
| (+) Non-Senior Appraised Value: | + | N/A | |
| | | -------------------------- | |
| (=) Total Appraised Value: | = | N/A | |
| (–) Senior Exemption Loss: | – | N/A | |
| (–) Exemption Loss: | – | N/A | |
| | | -------------------------- | |
| (=) Taxable Value: | = | N/A | |
Taxing Jurisdiction
| Owner: | DRISCOLL, CALVIN E | | |
| % Ownership: | 100.0000000000% | | |
| Total Value: | N/A | | |
| Tax Area: | 100 - APPRAISER-OH Schl Dist, in OH |
| CF | Conservation Futures | N/A | N/A | N/A | N/A | | |
| WCD | Whidbey Conservation District | N/A | N/A | N/A | N/A | | |
| CEM1 | Cemetery #1 | N/A | N/A | N/A | N/A | | |
| COH | City of Oak Harbor | N/A | N/A | N/A | N/A | | |
| HOBOND | Hospital BOND | N/A | N/A | N/A | N/A | | |
| HOGEN | Hospital GEN | N/A | N/A | N/A | N/A | | |
| CE | County Current Expense | N/A | N/A | N/A | N/A | | |
| ISLANDEMS | Hospital GEN (EMS) | N/A | N/A | N/A | N/A | | |
| LIB | Library Sno-Isle GEN | N/A | N/A | N/A | N/A | | |
| NWHIDPRMT | P & R N Whidbey GEN | N/A | N/A | N/A | N/A | | |
| SCH201MO | School 201 Enrichment | N/A | N/A | N/A | N/A | | |
| ST | State School | N/A | N/A | N/A | N/A | | |
| ST2 | State School Part 2 | N/A | N/A | N/A | N/A | | |
| | Total Tax Rate: | N/A | | | | | |
| | | | | Taxes w/Current Exemptions: | N/A | | |
| | | | | Taxes w/o Exemptions: | N/A | | |
Improvement / Building
| Improvement #1: | RESIDENTIAL | State Code: | Y | 2378.3 sqft | Value: | N/A |
| Bathrooms: | 2.5 | Bedrooms: | 3 | | Ceiling: | DRYWALL PAINTED | Cooling: | HEAT PUMP/CONV/V | | Exterior Wall/Cover: | CEMENT FIBER | Floor Covering: | CERAMIC TILE/CPT 40-60 | | Floor Structure: | WOOD W/SUBFLOOR | Foundation: | CONCRETE | | Interior Finish: | DRYWALL PAINT | Plumbing Fixture Cnt: | 12 | | Roof Slope: | 6" IN 12" | Roof Structure/Cover: | CJ ASPHALT |
|
| | Type | Description | Class CD | Sub Class CD | Year Built | Area |
| | BAS | BASE/MAIN FLOOR | 3 | 0 | 2021 | 1198.0 |
| | UPS | UPPER STORY | 3 | 0 | 2021 | 1180.3 |
| | BIG | BUILT IN GARAGE | 3 | 0 | 2021 | 420.0 |
| | OP4 | OPEN PORCH W/CEILING-ROOF | 3 | 0 | 2021 | 120.0 |
| | OP4 | OPEN PORCH W/CEILING-ROOF | 3 | 0 | 2021 | 198.0 |
Sketch
Property Image
Land
| 1 | 14 | SQ (08001-12000) | 0.2100 | 9147.60 | 0.00 | 0.00 | 1.00 | N/A | N/A |
Roll Value History
| 2026 | N/A | N/A | N/A | N/A | N/A |
| 2025 | $435,897 | $180,000 | $0 | $615,897 | $615,897 |
| 2024 | $439,357 | $170,000 | $0 | $609,357 | $609,357 |
| 2023 | $443,969 | $170,000 | $0 | $613,969 | $613,969 |
| 2022 | $409,348 | $160,000 | $0 | $569,348 | $569,348 |
| 2021 | $230,585 | $70,000 | $0 | $300,585 | $300,585 |
| 2020 | $0 | $7,000 | $0 | $7,000 | $7,000 |
| 2019 | $0 | $5,000 | $0 | $5,000 | $5,000 |
| 2018 | $0 | $5,000 | $0 | $5,000 | $5,000 |
| 2017 | $0 | $15,300 | $0 | $15,300 | $15,300 |
Deed and Sales History
| 1 | 11/17/2021 | WD | Warranty Deed | SULLIVAN HOME BUILDERS, LLC | DRISCOLL, CALVIN E | | | $594,000.00 | 51006 | 4534219 |
|   | |
| 2 | 01/05/2021 | WD | Warranty Deed | WYNN, ALAN G | SULLIVAN HOME BUILDERS, LLC | | | $150,000.00 | 46515 | 4507618 |
|   | |
Payout Agreement
| No payout information available.. |