Property
Account |
| Property ID: | 813240 | Abbreviated Legal Description: | LOT 1 SP 379-17.22904-508-3330 AF# 4452448 |
| Geographic ID: | R22904-501-2850 | Agent Code: | |
| Type: | Real | | |
| Tax Area: | 712 - APPRAISER-S Whid Schl Dist, outside Langley, improved, greater than 1 acre | Land Use Code | 11 |
| Open Space: | N | DFL | N |
| Historic Property: | N | Remodel Property: | N |
| Multi-Family Redevelopment: | N | | |
| Township: | 29 | Section: | 04 |
| Range: | R2 |
Location |
| Address: | 1017 FOXGLOVE HOLLOW LN FREELAND, WA 98249 | Mapsco: | |
| Neighborhood: | Cycle 3 | Map ID: | 294 |
| Neighborhood CD: | 3 |
Owner |
| Name: | VANDERWOOD, ZANE | Owner ID: | 296428 |
| Mailing Address: | EILEEN VANDERWOOD 1017 FOXGLOVE HOLLOW LN FREELAND, WA 98249 | % Ownership: | 100.0000000000% |
| | | Exemptions: | |
Taxes and Assessment Details
Values
| (+) Improvement Homesite Value: | + | $0 | |
| (+) Improvement Non-Homesite Value: | + | $181,372 | |
| (+) Land Homesite Value: | + | $0 | |
| (+) Land Non-Homesite Value: | + | $370,000 | |
| (+) Curr Use (HS): | + | $0 | $0 |
| (+) Curr Use (NHS): | + | $0 | $0 |
| | | -------------------------- | |
| (=) Market Value: | = | $551,372 | |
| (–) Productivity Loss: | – | $0 | |
| | | -------------------------- | |
| (=) Subtotal: | = | $551,372 | |
| (+) Senior Appraised Value: | + | $0 | |
| (+) Non-Senior Appraised Value: | + | $551,372 | |
| | | -------------------------- | |
| (=) Total Appraised Value: | = | $551,372 | |
| (–) Senior Exemption Loss: | – | $0 | |
| (–) Exemption Loss: | – | $0 | |
| | | -------------------------- | |
| (=) Taxable Value: | = | $551,372 | |
Taxing Jurisdiction
| Owner: | VANDERWOOD, ZANE | | |
| % Ownership: | 100.0000000000% | | |
| Total Value: | $551,372 | | |
| Tax Area: | 712 - APPRAISER-S Whid Schl Dist, outside Langley, improved, greater than 1 acre |
| CF | Conservation Futures | 0.0313996660 | $551,372 | $551,372 | $17.31 | | |
| FIRE3 | Fire & Rescue Dist #3 S Whidbey GEN | 1.2130821753 | $551,372 | $551,372 | $668.86 | | |
| HOBOND | Hospital BOND | 0.1893405597 | $551,372 | $551,372 | $104.40 | | |
| HOGEN | Hospital GEN | 0.3848777722 | $551,372 | $551,372 | $212.21 | | |
| CE | County Current Expense | 0.3674210519 | $551,372 | $551,372 | $202.59 | | |
| CR | County Roads | 0.4614296361 | $551,372 | $551,372 | $254.42 | | |
| ISLANDEMS | Hospital GEN (EMS) | 0.4952018576 | $551,372 | $551,372 | $273.04 | | |
| LIB | Library Sno-Isle GEN | 0.3039084203 | $551,372 | $551,372 | $167.57 | | |
| PORTWHID | Port of S Whidbey GEN | 0.1086004714 | $551,372 | $551,372 | $59.88 | | |
| SCH206BOND | School 206 BOND | 0.5960237832 | $551,372 | $551,372 | $328.63 | | |
| SCH206CAP | School 206 CP | 0.3066144020 | $551,372 | $551,372 | $169.06 | | |
| SCH206MO | School 206 Enrichment | 0.4808755445 | $551,372 | $551,372 | $265.14 | | |
| ST | State School | 1.4761226122 | $551,372 | $551,372 | $813.89 | | |
| ST2 | State School Part 2 | 0.7953803475 | $551,372 | $551,372 | $438.55 | | |
| SWHIDPRBD | P & R S Whidbey BOND | 0.0144185398 | $551,372 | $551,372 | $7.95 | | |
| SWHIDPRBD3 | P & R S Whidbey BOND3 | 0.1483535547 | $551,372 | $551,372 | $81.80 | | |
| SWHIDPRMT | P & R S Whidbey GEN | 0.4600000000 | $551,372 | $551,372 | $253.63 | | |
| | Total Tax Rate: | 7.8330503944 | | | | | |
| | | | | Taxes w/Current Exemptions: | $4,318.93 | | |
| | | | | Taxes w/o Exemptions: | $4,318.93 | | |
Improvement / Building
| Improvement #1: | RESIDENTIAL | State Code: | Y | 652.0 sqft | Value: | $181,372 |
| Bathrooms: | 1 | Bedrooms: | 1 | | Ceiling: | BEAM PAINTED | Exterior Wall/Cover: | SHINGLE | | Floor Covering: | HARDWOOD/CARP 80-20 | Floor Structure: | WOOD W/SUBFLOOR | | Foundation: | CONCRETE | Heating: | FHA ELECTRIC | | Interior Finish: | DRYWALL PAINT | Plumbing Fixture Cnt: | 6 | | Roof Slope: | 8" IN 12" | Roof Structure/Cover: | BEAM ASPHALT |
|
| | Type | Description | Class CD | Sub Class CD | Year Built | Area |
| | BAS | BASE/MAIN FLOOR | 3 | 0 | 1959 | 652.0 |
| | OWC | OPEN WOOD PORCH W/STEPS/ROOF/C | 3 | 0 | 1959 | 20.0 |
| | OWC | OPEN WOOD PORCH W/STEPS/ROOF/C | 3 | 0 | 1959 | 200.0 |
Sketch
Property Image
Land
| 1 | 32 | AC (03.01-09.99) | 0.0000 | 0.00 | 5.14 | 0.00 | 1.00 | $370,000 | $0 |
Roll Value History
| 2026 | N/A | N/A | N/A | N/A | N/A |
| 2025 | $181,372 | $370,000 | $0 | $551,372 | $551,372 |
| 2024 | $180,728 | $350,000 | $0 | $530,728 | $530,728 |
| 2023 | $0 | $180,000 | $0 | $180,000 | $180,000 |
| 2022 | $0 | $180,000 | $0 | $180,000 | $180,000 |
| 2021 | $0 | $135,000 | $0 | $135,000 | $135,000 |
| 2020 | $0 | $130,000 | $0 | $130,000 | $130,000 |
| 2019 | $0 | $135,000 | $0 | $135,000 | $135,000 |
| 2018 | $0 | $50,000 | $0 | $50,000 | $50,000 |
Deed and Sales History
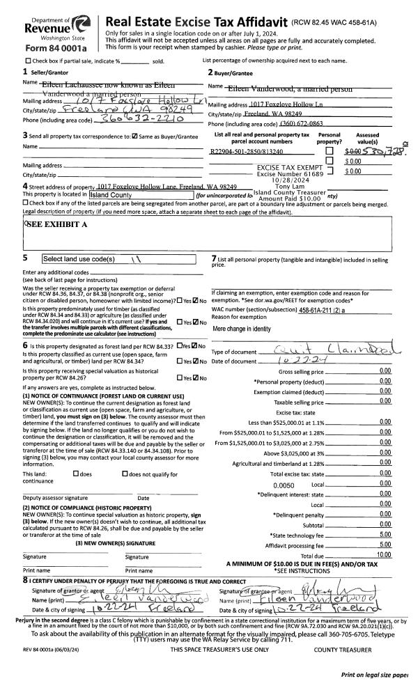
| 1 | 10/22/2024 | QCD | Quit Claim Deed | LACHAUSSEE, EILEEN | VANDERWOOD, EILEEN | | | $0.00 | 61689 | 4578722 |
| 2 | 10/01/2020 | WD | Warranty Deed | SOUND CONSTRUCTION | VANDERWOOD, ZANE | | | $125,000.00 | 45105 | 4498663 |
Payout Agreement
| No payout information available.. |