Property
Account |
| Property ID: | 813248 | Abbreviated Legal Description: | MORAN BEACH PLAT LOT 2 |
| Geographic ID: | S8564-00-00002-0 | Agent Code: | |
| Type: | Real | | |
| Tax Area: | 119 - APPRAISER-OH Schl Dist, outside OH, vacant & 50 acres or less | Land Use Code | 99 |
| Open Space: | N | DFL | N |
| Historic Property: | N | Remodel Property: | N |
| Multi-Family Redevelopment: | N | | |
| Township: | 33 | Section: | 2 |
| Range: | R1 |
Location |
| Address: | | Mapsco: | |
| Neighborhood: | Cycle 6 | Map ID: | 193 |
| Neighborhood CD: | 6 |
Owner |
| Name: | LAMORIA ET AL, MICHAEL L | Owner ID: | 311827 |
| Mailing Address: | 2045 102ND AVE SE BELLEVUE, WA 98004 | % Ownership: | 100.0000000000% |
| | | Exemptions: | |
Taxes and Assessment Details
Values
| (+) Improvement Homesite Value: | + | $0 | |
| (+) Improvement Non-Homesite Value: | + | $0 | |
| (+) Land Homesite Value: | + | $0 | |
| (+) Land Non-Homesite Value: | + | $300,000 | |
| (+) Curr Use (HS): | + | $0 | $0 |
| (+) Curr Use (NHS): | + | $0 | $0 |
| | | -------------------------- | |
| (=) Market Value: | = | $300,000 | |
| (–) Productivity Loss: | – | $0 | |
| | | -------------------------- | |
| (=) Subtotal: | = | $300,000 | |
| (+) Senior Appraised Value: | + | $0 | |
| (+) Non-Senior Appraised Value: | + | $300,000 | |
| | | -------------------------- | |
| (=) Total Appraised Value: | = | $300,000 | |
| (–) Senior Exemption Loss: | – | $0 | |
| (–) Exemption Loss: | – | $0 | |
| | | -------------------------- | |
| (=) Taxable Value: | = | $300,000 | |
Taxing Jurisdiction
| Owner: | LAMORIA ET AL, MICHAEL L | | |
| % Ownership: | 100.0000000000% | | |
| Total Value: | $300,000 | | |
| Tax Area: | 119 - APPRAISER-OH Schl Dist, outside OH, vacant & 50 acres or less |
| CF | Conservation Futures | 0.0313996660 | $300,000 | $300,000 | $9.42 | | |
| CEM1 | Cemetery #1 | 0.0040018856 | $300,000 | $300,000 | $1.20 | | |
| HOBOND | Hospital BOND | 0.1893405597 | $300,000 | $300,000 | $56.80 | | |
| HOGEN | Hospital GEN | 0.3848777722 | $300,000 | $300,000 | $115.46 | | |
| CE | County Current Expense | 0.3674210519 | $300,000 | $300,000 | $110.23 | | |
| CR | County Roads | 0.4614296361 | $300,000 | $300,000 | $138.43 | | |
| ISLANDEMS | Hospital GEN (EMS) | 0.4952018576 | $300,000 | $300,000 | $148.56 | | |
| LIB | Library Sno-Isle GEN | 0.3039084203 | $300,000 | $300,000 | $91.17 | | |
| NWHIDPRMT | P & R N Whidbey GEN | 0.1990272349 | $300,000 | $300,000 | $59.71 | | |
| SCH201MO | School 201 Enrichment | 2.3851112745 | $300,000 | $300,000 | $715.53 | | |
| ST | State School | 1.4761226122 | $300,000 | $300,000 | $442.84 | | |
| ST2 | State School Part 2 | 0.7953803475 | $300,000 | $300,000 | $238.61 | | |
| | Total Tax Rate: | 7.0932223185 | | | | | |
| | | | | Taxes w/Current Exemptions: | $2,127.96 | | |
| | | | | Taxes w/o Exemptions: | $2,127.96 | | |
Improvement / Building
Sketch
| No sketches available for this property. |
Property Image
Land
| 1 | 32 | AC (03.01-09.99) | 5.3800 | 234352.80 | 0.00 | 0.00 | 1.00 | $300,000 | $0 |
Roll Value History
| 2026 | N/A | N/A | N/A | N/A | N/A |
| 2025 | $0 | $300,000 | $0 | $300,000 | $300,000 |
| 2024 | $0 | $240,000 | $0 | $240,000 | $240,000 |
| 2023 | $0 | $240,000 | $0 | $240,000 | $240,000 |
| 2022 | $0 | $240,000 | $0 | $240,000 | $240,000 |
| 2021 | $0 | $160,000 | $0 | $160,000 | $160,000 |
| 2020 | $0 | $160,000 | $0 | $160,000 | $160,000 |
| 2019 | $0 | $150,000 | $0 | $150,000 | $150,000 |
Deed and Sales History
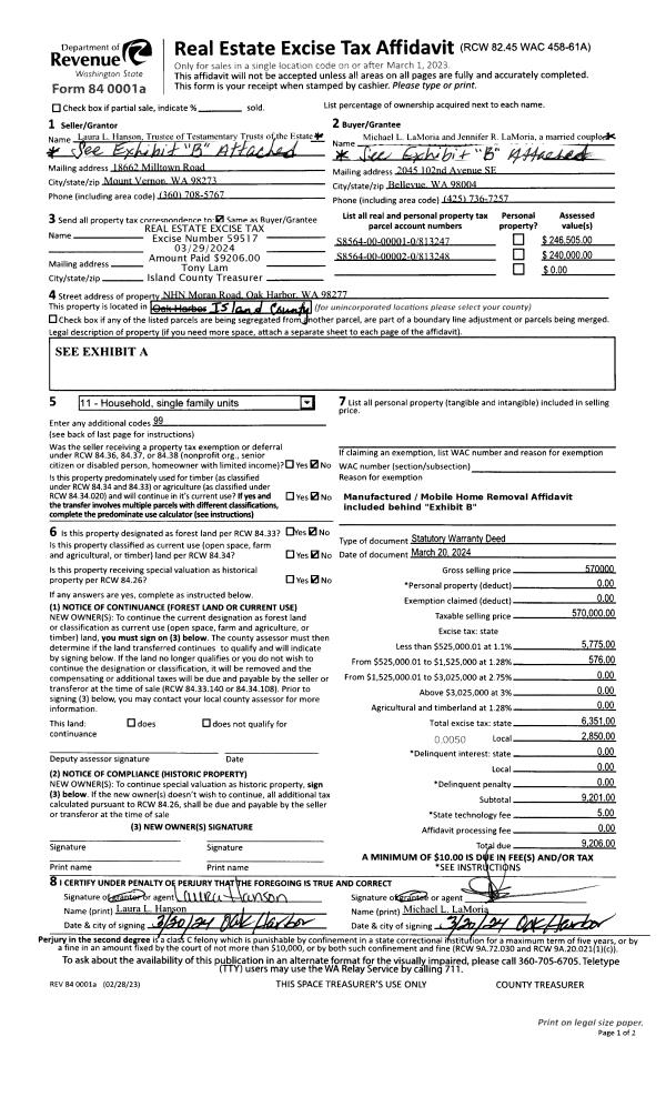
| 1 | 03/20/2024 | WD | Warranty Deed | HANSON TTEE, LAURA | LAMORIA ET AL, MICHAEL L | | | $570,000.00 | 59517 | 4570721 |
|   | |
| 2 | 03/08/2019 | QCD | Quit Claim Deed | ERROL HANSON FUNDING INC | HANSON TTEE, LAURA | | | $0.00 | 40310 | 4471575 |
Payout Agreement
| No payout information available.. |