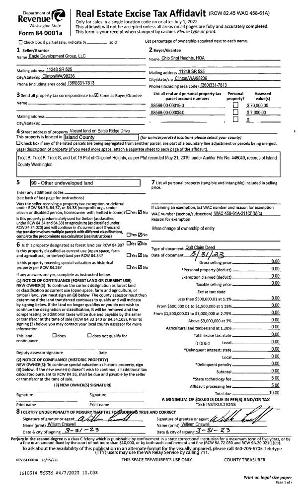
Property
Account |
| Property ID: | 813396 | Abbreviated Legal Description: | CHIPSHOT HEIGHTS,s Lot 19,s |
| Geographic ID: | S8566-00-00019-0 | Agent Code: | |
| Type: | Real | | |
| Tax Area: | 779 - APPRAISER-S Whid Schl Dist, Special District, vacant & 50 acres or less | Land Use Code | 99 |
| Open Space: | N | DFL | N |
| Historic Property: | N | Remodel Property: | N |
| Multi-Family Redevelopment: | N | | |
| Township: | 29 | Section: | 3 |
| Range: | R2 |
Location |
| Address: | 5016 EAGLE RIDGE DR FREELAND, WA 98249 | Mapsco: | |
| Neighborhood: | Cycle 3 | Map ID: | 289 |
| Neighborhood CD: | 3 |
Owner |
| Name: | CHIP SHOT HEIGHTS HOA | Owner ID: | 308284 |
| Mailing Address: | 11248 SR 525 CLINTON, WA 98236 | % Ownership: | 100.0000000000% |
| | | Exemptions: | |
Taxes and Assessment Details
Values
| (+) Improvement Homesite Value: | + | $0 | |
| (+) Improvement Non-Homesite Value: | + | $0 | |
| (+) Land Homesite Value: | + | $0 | |
| (+) Land Non-Homesite Value: | + | $80,000 | |
| (+) Curr Use (HS): | + | $0 | $0 |
| (+) Curr Use (NHS): | + | $0 | $0 |
| | | -------------------------- | |
| (=) Market Value: | = | $80,000 | |
| (–) Productivity Loss: | – | $0 | |
| | | -------------------------- | |
| (=) Subtotal: | = | $80,000 | |
| (+) Senior Appraised Value: | + | $0 | |
| (+) Non-Senior Appraised Value: | + | $80,000 | |
| | | -------------------------- | |
| (=) Total Appraised Value: | = | $80,000 | |
| (–) Senior Exemption Loss: | – | $0 | |
| (–) Exemption Loss: | – | $0 | |
| | | -------------------------- | |
| (=) Taxable Value: | = | $80,000 | |
Taxing Jurisdiction
| Owner: | CHIP SHOT HEIGHTS HOA | | |
| % Ownership: | 100.0000000000% | | |
| Total Value: | $80,000 | | |
| Tax Area: | 779 - APPRAISER-S Whid Schl Dist, Special District, vacant & 50 acres or less |
| CF | Conservation Futures | 0.0313996660 | $80,000 | $80,000 | $2.51 | | |
| HOBOND | Hospital BOND | 0.1893405597 | $80,000 | $80,000 | $15.15 | | |
| HOGEN | Hospital GEN | 0.3848777722 | $80,000 | $80,000 | $30.79 | | |
| CE | County Current Expense | 0.3674210519 | $80,000 | $80,000 | $29.39 | | |
| CR | County Roads | 0.4614296361 | $80,000 | $80,000 | $36.91 | | |
| ISLANDEMS | Hospital GEN (EMS) | 0.4952018576 | $80,000 | $80,000 | $39.62 | | |
| LIB | Library Sno-Isle GEN | 0.3039084203 | $80,000 | $80,000 | $24.31 | | |
| PORTWHID | Port of S Whidbey GEN | 0.1086004714 | $80,000 | $80,000 | $8.69 | | |
| SCH206BOND | School 206 BOND | 0.5960237832 | $80,000 | $80,000 | $47.68 | | |
| SCH206CAP | School 206 CP | 0.3066144020 | $80,000 | $80,000 | $24.53 | | |
| SCH206MO | School 206 Enrichment | 0.4808755445 | $80,000 | $80,000 | $38.47 | | |
| ST | State School | 1.4761226122 | $80,000 | $80,000 | $118.09 | | |
| ST2 | State School Part 2 | 0.7953803475 | $80,000 | $80,000 | $63.63 | | |
| SWHIDPRBD | P & R S Whidbey BOND | 0.0144185398 | $80,000 | $80,000 | $1.15 | | |
| SWHIDPRBD3 | P & R S Whidbey BOND3 | 0.1483535547 | $80,000 | $80,000 | $11.87 | | |
| SWHIDPRMT | P & R S Whidbey GEN | 0.4600000000 | $80,000 | $80,000 | $36.80 | | |
| | Total Tax Rate: | 6.6199682191 | | | | | |
| | | | | Taxes w/Current Exemptions: | $529.59 | | |
| | | | | Taxes w/o Exemptions: | $529.59 | | |
Improvement / Building
Sketch
| No sketches available for this property. |
Property Image
Land
| 1 | 13 | SQ (06001-08000) | 0.1700 | 7405.20 | 0.00 | 0.00 | 1.00 | $80,000 | $0 |
Roll Value History
| 2026 | N/A | N/A | N/A | N/A | N/A |
| 2025 | $0 | $80,000 | $0 | $80,000 | $80,000 |
| 2024 | $0 | $70,000 | $0 | $70,000 | $70,000 |
| 2023 | $0 | $70,000 | $0 | $70,000 | $70,000 |
| 2022 | $0 | $70,000 | $0 | $70,000 | $70,000 |
| 2021 | $0 | $40,000 | $0 | $40,000 | $40,000 |
| 2020 | $0 | $40,000 | $0 | $40,000 | $40,000 |
| 2019 | $0 | $40,000 | $0 | $40,000 | $40,000 |
Deed and Sales History
| 1 | 03/31/2023 | QCD | Quit Claim Deed | EAGLE DEVELOPMENT GROUP, LLC | CHIP SHOT HEIGHTS HOA | | | $0.00 | 56336 | 4558547 |
Payout Agreement
| No payout information available.. |