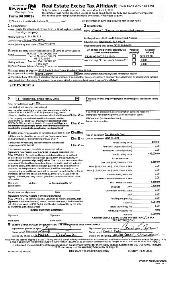
Property
Account |
| Property ID: | 813404 | Abbreviated Legal Description: | CHIPSHOT HEIGHTS,s Lot 27,s |
| Geographic ID: | S8566-00-00027-0 | Agent Code: | |
| Type: | Real | | |
| Tax Area: | 770 - APPRAISER-S Whid Schl Dist, Special District, improved & less than 1 acre | Land Use Code | 11 |
| Open Space: | N | DFL | N |
| Historic Property: | N | Remodel Property: | N |
| Multi-Family Redevelopment: | N | | |
| Township: | 29 | Section: | 3 |
| Range: | R2 |
Location |
| Address: | 5032 EAGLE RIDGE DR FREELAND, WA 98249 | Mapsco: | |
| Neighborhood: | Cycle 3 | Map ID: | 289 |
| Neighborhood CD: | 3 |
Owner |
| Name: | TAYLOR, CARRIE L | Owner ID: | 312923 |
| Mailing Address: | 5032 EAGLE RIDGE DR FREELAND, WA 98249 | % Ownership: | 100.0000000000% |
| | | Exemptions: | |
Taxes and Assessment Details
Values
| (+) Improvement Homesite Value: | + | $0 | |
| (+) Improvement Non-Homesite Value: | + | $197,973 | |
| (+) Land Homesite Value: | + | $0 | |
| (+) Land Non-Homesite Value: | + | $285,000 | |
| (+) Curr Use (HS): | + | $0 | $0 |
| (+) Curr Use (NHS): | + | $0 | $0 |
| | | -------------------------- | |
| (=) Market Value: | = | $482,973 | |
| (–) Productivity Loss: | – | $0 | |
| | | -------------------------- | |
| (=) Subtotal: | = | $482,973 | |
| (+) Senior Appraised Value: | + | $0 | |
| (+) Non-Senior Appraised Value: | + | $482,973 | |
| | | -------------------------- | |
| (=) Total Appraised Value: | = | $482,973 | |
| (–) Senior Exemption Loss: | – | $0 | |
| (–) Exemption Loss: | – | $0 | |
| | | -------------------------- | |
| (=) Taxable Value: | = | $482,973 | |
Taxing Jurisdiction
| Owner: | TAYLOR, CARRIE L | | |
| % Ownership: | 100.0000000000% | | |
| Total Value: | $482,973 | | |
| Tax Area: | 770 - APPRAISER-S Whid Schl Dist, Special District, improved & less than 1 acre |
| CF | Conservation Futures | 0.0313996660 | $482,973 | $482,973 | $15.17 | | |
| FIRE3 | Fire & Rescue Dist #3 S Whidbey GEN | 1.2130821753 | $482,973 | $482,973 | $585.89 | | |
| HOBOND | Hospital BOND | 0.1893405597 | $482,973 | $482,973 | $91.45 | | |
| HOGEN | Hospital GEN | 0.3848777722 | $482,973 | $482,973 | $185.89 | | |
| CE | County Current Expense | 0.3674210519 | $482,973 | $482,973 | $177.45 | | |
| CR | County Roads | 0.4614296361 | $482,973 | $482,973 | $222.86 | | |
| ISLANDEMS | Hospital GEN (EMS) | 0.4952018576 | $482,973 | $482,973 | $239.17 | | |
| LIB | Library Sno-Isle GEN | 0.3039084203 | $482,973 | $482,973 | $146.78 | | |
| PORTWHID | Port of S Whidbey GEN | 0.1086004714 | $482,973 | $482,973 | $52.45 | | |
| SCH206BOND | School 206 BOND | 0.5960237832 | $482,973 | $482,973 | $287.86 | | |
| SCH206CAP | School 206 CP | 0.3066144020 | $482,973 | $482,973 | $148.09 | | |
| SCH206MO | School 206 Enrichment | 0.4808755445 | $482,973 | $482,973 | $232.25 | | |
| ST | State School | 1.4761226122 | $482,973 | $482,973 | $712.93 | | |
| ST2 | State School Part 2 | 0.7953803475 | $482,973 | $482,973 | $384.15 | | |
| SWHIDPRBD | P & R S Whidbey BOND | 0.0144185398 | $482,973 | $482,973 | $6.96 | | |
| SWHIDPRBD3 | P & R S Whidbey BOND3 | 0.1483535547 | $482,973 | $482,973 | $71.65 | | |
| SWHIDPRMT | P & R S Whidbey GEN | 0.4600000000 | $482,973 | $482,973 | $222.17 | | |
| | Total Tax Rate: | 7.8330503944 | | | | | |
| | | | | Taxes w/Current Exemptions: | $3,783.17 | | |
| | | | | Taxes w/o Exemptions: | $3,783.17 | | |
Improvement / Building
| Improvement #1: | RESIDENTIAL | State Code: | Y | 948.7 sqft | Value: | $197,973 |
| Bathrooms: | 1 | Bedrooms: | 1 | | Ceiling: | DRYWALL PAINTED | Cooling: | HEAT PUMP/CONV/V | | Exterior Wall/Cover: | PLY/HARDBOARD T-111 | Floor Covering: | VINYL 100% | | Floor Structure: | WOOD W/SUBFLOOR | Foundation: | CONCRETE | | Interior Finish: | DRYWALL PAINT | Plumbing Fixture Cnt: | 6 | | Roof Slope: | 6" IN 12" | Roof Structure/Cover: | CJ ASPHALT |
|
| | Type | Description | Class CD | Sub Class CD | Year Built | Area |
| | BAS | BASE/MAIN FLOOR | 3 | 0 | 2023 | 948.7 |
| | UTY | STORAGE/UTILITY | 3 | | 2023 | 29.7 |
| | OWP | OPEN WOOD PORCH W/STEPS | 3 | 0 | 2023 | 139.0 |
Sketch
Property Image
Land
| 1 | 12 | SQ (00000-06000) | 0.0800 | 3484.80 | 0.00 | 0.00 | 1.00 | $285,000 | $0 |
Roll Value History
| 2026 | N/A | N/A | N/A | N/A | N/A |
| 2025 | $197,973 | $285,000 | $0 | $482,973 | $482,973 |
| 2024 | $201,572 | $260,000 | $0 | $461,572 | $461,572 |
| 2023 | $0 | $70,000 | $0 | $70,000 | $70,000 |
| 2022 | $0 | $70,000 | $0 | $70,000 | $70,000 |
| 2021 | $0 | $40,000 | $0 | $40,000 | $40,000 |
| 2020 | $0 | $40,000 | $0 | $40,000 | $40,000 |
| 2019 | $0 | $40,000 | $0 | $40,000 | $40,000 |
Deed and Sales History
| 1 | 02/02/2026 | WD | Warranty Deed | TAYLOR, CARRIE L | HAYES, DEBRA LYNN | | | $525,000.00 | 66122 | 4596509 |
| 2 | 06/26/2024 | WD | Warranty Deed | EAGLE DEVELOPMENT GROUP, LLC | TAYLOR, CARRIE L | | | $499,000.00 | 60459 | 4573938 |
Payout Agreement
| No payout information available.. |