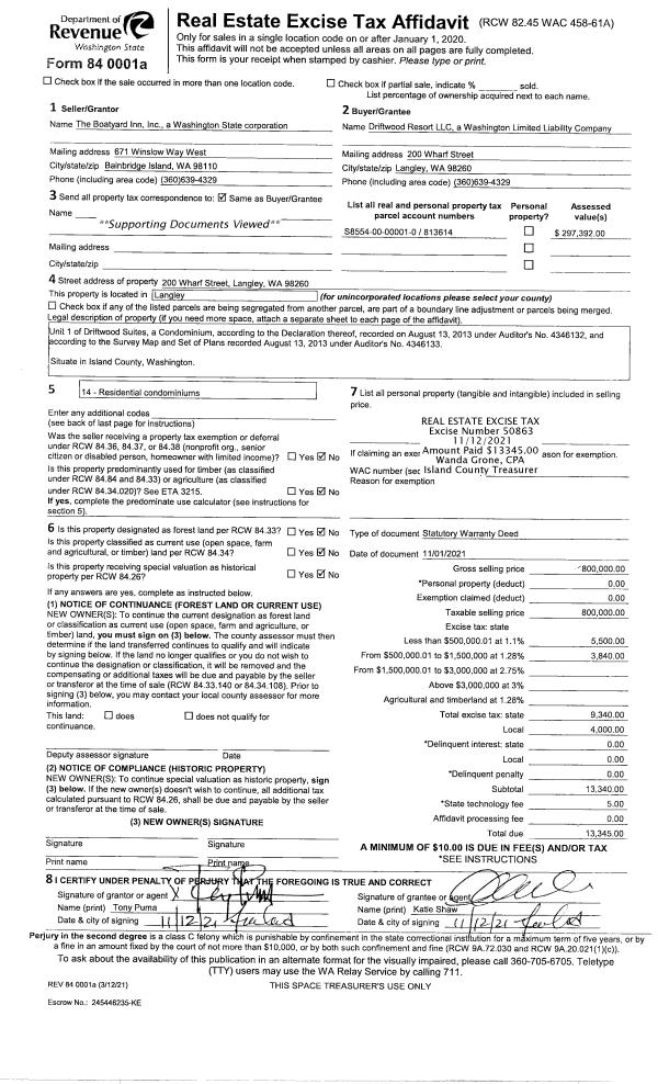
Property
Account |
| Property ID: | 813614 | Abbreviated Legal Description: | DRIFTWOOD SUITES CONDO UNIT 1 |
| Geographic ID: | S8554-00-00001-0 | Agent Code: | |
| Type: | Real | | |
| Tax Area: | 700 - APPRAISER-S Whid Schl Dist, in town of Langley | Land Use Code | 14 |
| Open Space: | N | DFL | N |
| Historic Property: | N | Remodel Property: | N |
| Multi-Family Redevelopment: | N | | |
| Township: | | Section: | 34 |
| Range: | |
Location |
| Address: | | Mapsco: | |
| Neighborhood: | 42cLG-east wharf | Map ID: | 913 |
| Neighborhood CD: | 42cLGeaswf |
Owner |
| Name: | DRIFTWOOD RESORT LLC | Owner ID: | 301942 |
| Mailing Address: | PO BOX 1159 KINGSTON, WA 98346-1159 | % Ownership: | 100.0000000000% |
| | | Exemptions: | |
Taxes and Assessment Details
Values
| (+) Improvement Homesite Value: | + | $0 | |
| (+) Improvement Non-Homesite Value: | + | $258,633 | |
| (+) Land Homesite Value: | + | $0 | |
| (+) Land Non-Homesite Value: | + | $550,000 | |
| (+) Curr Use (HS): | + | $0 | $0 |
| (+) Curr Use (NHS): | + | $0 | $0 |
| | | -------------------------- | |
| (=) Market Value: | = | $808,633 | |
| (–) Productivity Loss: | – | $0 | |
| | | -------------------------- | |
| (=) Subtotal: | = | $808,633 | |
| (+) Senior Appraised Value: | + | $0 | |
| (+) Non-Senior Appraised Value: | + | $808,633 | |
| | | -------------------------- | |
| (=) Total Appraised Value: | = | $808,633 | |
| (–) Senior Exemption Loss: | – | $0 | |
| (–) Exemption Loss: | – | $0 | |
| | | -------------------------- | |
| (=) Taxable Value: | = | $808,633 | |
Taxing Jurisdiction
| Owner: | DRIFTWOOD RESORT LLC | | |
| % Ownership: | 100.0000000000% | | |
| Total Value: | $808,633 | | |
| Tax Area: | 700 - APPRAISER-S Whid Schl Dist, in town of Langley |
| CF | Conservation Futures | 0.0313996660 | $808,633 | $808,633 | $25.39 | | |
| LANG | City of Langley | 1.0106798199 | $808,633 | $808,633 | $817.27 | | |
| LANGBOND | City of Langley BOND | 0.0000000000 | $808,633 | $808,633 | $0.00 | | |
| FIRE3 | Fire & Rescue Dist #3 S Whidbey GEN | 1.2130821753 | $808,633 | $808,633 | $980.94 | | |
| HOBOND | Hospital BOND | 0.1893405597 | $808,633 | $808,633 | $153.11 | | |
| HOGEN | Hospital GEN | 0.3848777722 | $808,633 | $808,633 | $311.22 | | |
| CE | County Current Expense | 0.3674210519 | $808,633 | $808,633 | $297.11 | | |
| ISLANDEMS | Hospital GEN (EMS) | 0.4952018576 | $808,633 | $808,633 | $400.44 | | |
| LIB | Library Sno-Isle GEN | 0.3039084203 | $808,633 | $808,633 | $245.75 | | |
| PORTWHID | Port of S Whidbey GEN | 0.1086004714 | $808,633 | $808,633 | $87.82 | | |
| SCH206BOND | School 206 BOND | 0.5960237832 | $808,633 | $808,633 | $481.96 | | |
| SCH206CAP | School 206 CP | 0.3066144020 | $808,633 | $808,633 | $247.94 | | |
| SCH206MO | School 206 Enrichment | 0.4808755445 | $808,633 | $808,633 | $388.85 | | |
| ST | State School | 1.4761226122 | $808,633 | $808,633 | $1,193.64 | | |
| ST2 | State School Part 2 | 0.7953803475 | $808,633 | $808,633 | $643.17 | | |
| SWHIDPRBD | P & R S Whidbey BOND | 0.0144185398 | $808,633 | $808,633 | $11.66 | | |
| SWHIDPRBD3 | P & R S Whidbey BOND3 | 0.1483535547 | $808,633 | $808,633 | $119.96 | | |
| SWHIDPRMT | P & R S Whidbey GEN | 0.4600000000 | $808,633 | $808,633 | $371.97 | | |
| | Total Tax Rate: | 8.3823005782 | | | | | |
| | | | | Taxes w/Current Exemptions: | $6,778.20 | | |
| | | | | Taxes w/o Exemptions: | $6,778.20 | | |
Improvement / Building
| Improvement #1: | RESIDENTIAL/COMMERCIAL | State Code: | Y | 617.0 sqft | Value: | $258,633 |
| Bathrooms: | 2 | Bedrooms: | 2 | | Ceiling: | DRYWALL PAINTED | Cooling: | HEAT PUMP/CONV/V | | Exterior Wall/Cover: | CEMENT FIBER | Floor Covering: | CERAMIC TILE/CPT 40-60 | | Floor Structure: | SLAB ABOVE GRADE | Foundation: | CONCRETE | | Interior Finish: | DRYWALL PAINT | Plumbing Fixture Cnt: | 9 | | Roof Slope: | 4" IN 12" | Roof Structure/Cover: | STEEL TERNE |
|
| | Type | Description | Class CD | Sub Class CD | Year Built | Area |
| | BAS | BASE/MAIN FLOOR | 4 | 0 | 2009 | 617.0 |
| | OP1 | OPEN PORCH SLAB | 4 | 0 | 2009 | 65.2 |
| | OWC | OPEN WOOD PORCH W/STEPS/ROOF/C | 4 | 0 | 2009 | 126.0 |
| | OP1 | OPEN PORCH SLAB | 4 | 0 | 2009 | 120.8 |
Sketch
Property Image
Land
| 1 | 61 | MULTIPLE RESIDENCES | 0.0700 | 3049.20 | 0.00 | 0.00 | 1.00 | $550,000 | $0 |
Roll Value History
| 2026 | N/A | N/A | N/A | N/A | N/A |
| 2025 | $258,633 | $550,000 | $0 | $808,633 | $808,633 |
| 2024 | $260,627 | $550,000 | $0 | $810,627 | $810,627 |
| 2023 | $262,765 | $550,000 | $0 | $812,765 | $812,765 |
| 2022 | $239,871 | $550,000 | $0 | $789,871 | $789,871 |
| 2021 | $142,392 | $155,000 | $0 | $297,392 | $297,392 |
| 2020 | $137,277 | $125,000 | $0 | $262,277 | $262,277 |
| 2019 | $85,329 | $125,000 | $0 | $210,329 | $210,329 |
Deed and Sales History
| 1 | 11/01/2021 | WD | Warranty Deed | THE BOATYARD INN, INC. | DRIFTWOOD RESORT LLC | | | $800,000.00 | 50863 | 4533679 |
| 2 | 12/31/2013 | QCD | Quit Claim Deed | LANGLEY MARINA , LLC | THE BOATYARD INN, INC. | | | | 14053 | 4354085 |
Payout Agreement
| No payout information available.. |