Property
Account |
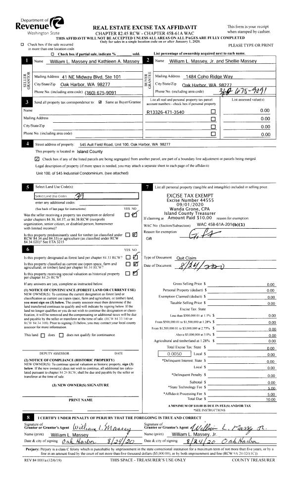
| Property ID: | 813726 | Abbreviated Legal Description: | 545 INDUSTRIAL CONDO UNIT 100 AF#4490632 |
| Geographic ID: | S8567-00-00100-0 | Agent Code: | |
| Type: | Real | | |
| Tax Area: | 100 - APPRAISER-OH Schl Dist, in OH | Land Use Code | 50 |
| Open Space: | N | DFL | N |
| Historic Property: | N | Remodel Property: | N |
| Multi-Family Redevelopment: | N | | |
| Township: | 33 | Section: | 26 |
| Range: | R1 |
Location |
| Address: | 545 AULT FIELD RD UNIT 100 OAK HARBOR, WA 98277 | Mapsco: | |
| Neighborhood: | 6AcOH-ault field | Map ID: | 233 |
| Neighborhood CD: | 6AcOHautfd |
Owner |
| Name: | MASSEY, WILLIAM JR | Owner ID: | 287273 |
| Mailing Address: | SHELLIE MASSEY 1484 COHO RIDGE OAK HARBOR, WA 98277 | % Ownership: | 100.0000000000% |
| | | Exemptions: | |
Taxes and Assessment Details
Values
| (+) Improvement Homesite Value: | + | $0 | |
| (+) Improvement Non-Homesite Value: | + | $154,058 | |
| (+) Land Homesite Value: | + | $0 | |
| (+) Land Non-Homesite Value: | + | $50,000 | |
| (+) Curr Use (HS): | + | $0 | $0 |
| (+) Curr Use (NHS): | + | $0 | $0 |
| | | -------------------------- | |
| (=) Market Value: | = | $204,058 | |
| (–) Productivity Loss: | – | $0 | |
| | | -------------------------- | |
| (=) Subtotal: | = | $204,058 | |
| (+) Senior Appraised Value: | + | $0 | |
| (+) Non-Senior Appraised Value: | + | $204,058 | |
| | | -------------------------- | |
| (=) Total Appraised Value: | = | $204,058 | |
| (–) Senior Exemption Loss: | – | $0 | |
| (–) Exemption Loss: | – | $0 | |
| | | -------------------------- | |
| (=) Taxable Value: | = | $204,058 | |
Taxing Jurisdiction
| Owner: | MASSEY, WILLIAM JR | | |
| % Ownership: | 100.0000000000% | | |
| Total Value: | $204,058 | | |
| Tax Area: | 100 - APPRAISER-OH Schl Dist, in OH |
| CF | Conservation Futures | 0.0313996660 | $204,058 | $204,058 | $6.41 | | |
| CEM1 | Cemetery #1 | 0.0040018856 | $204,058 | $204,058 | $0.82 | | |
| COH | City of Oak Harbor | 2.3090730572 | $204,058 | $204,058 | $471.18 | | |
| OAKBOND | City of Oak Harbor BOND | 0.1902260131 | $204,058 | $204,058 | $38.82 | | |
| HOBOND | Hospital BOND | 0.1893405597 | $204,058 | $204,058 | $38.64 | | |
| HOGEN | Hospital GEN | 0.3848777722 | $204,058 | $204,058 | $78.54 | | |
| CE | County Current Expense | 0.3674210519 | $204,058 | $204,058 | $74.98 | | |
| ISLANDEMS | Hospital GEN (EMS) | 0.4952018576 | $204,058 | $204,058 | $101.05 | | |
| LIB | Library Sno-Isle GEN | 0.3039084203 | $204,058 | $204,058 | $62.01 | | |
| NWHIDPRMT | P & R N Whidbey GEN | 0.1990272349 | $204,058 | $204,058 | $40.61 | | |
| SCH201MO | School 201 Enrichment | 2.3851112745 | $204,058 | $204,058 | $486.70 | | |
| ST | State School | 1.4761226122 | $204,058 | $204,058 | $301.21 | | |
| ST2 | State School Part 2 | 0.7953803475 | $204,058 | $204,058 | $162.30 | | |
| | Total Tax Rate: | 9.1310917527 | | | | | |
| | | | | Taxes w/Current Exemptions: | $1,863.27 | | |
| | | | | Taxes w/o Exemptions: | $1,863.27 | | |
Improvement / Building
| Improvement #1: | COMMERCIAL | State Code: | Y | 1500.0 sqft | Value: | $154,058 |
| Bathrooms: | 1 | Ceiling: | DRYWALL PAINTED | | Exterior Wall/Cover: | STL/ALM/WD OR ST STD | Floor Covering: | CONCRETE SEALER | | Floor Structure: | SLAB ON GRADE | Foundation: | CONCRETE | | Heating: | GAS HEATERS | Interior Finish: | DRYWALL PAINT | | Plumbing Fixture Cnt: | 1 | Roof Slope: | FLAT | | Roof Structure/Cover: | CJ ALUMINIUM HEAVY |   |   |
|
| | Type | Description | Class CD | Sub Class CD | Year Built | Area |
| | BAS | BASE/MAIN FLOOR | 3 | 0 | 2019 | 1500.0 |
| | oSIT | Site Improvements | 3 | 0 | 2019 | 0.0 |
| | oPV1 | PV/ASPH 2" | 3 | 0 | 2019 | 0.0 |
Sketch
Property Image
Land
| 1 | 71 | INDUSTRIAL MANUFACTURING | 0.0000 | 0.00 | 0.00 | 0.00 | 1.00 | $50,000 | $0 |
Roll Value History
| 2026 | N/A | N/A | N/A | N/A | N/A |
| 2025 | $154,058 | $50,000 | $0 | $204,058 | $204,058 |
| 2024 | $157,359 | $50,000 | $0 | $207,359 | $207,359 |
| 2023 | $159,010 | $50,000 | $0 | $209,010 | $209,010 |
| 2022 | $120,082 | $50,000 | $0 | $170,082 | $170,082 |
| 2021 | $120,082 | $45,000 | $0 | $165,082 | $165,082 |
| 2020 | $0 | $0 | $0 | $0 | $0 |
Deed and Sales History
| 1 | 08/24/2020 | QCD | Quit Claim Deed | MASSEY, W L | MASSEY, WILLIAM JR | | | $0.00 | 44555 | 4495463 |
Payout Agreement
| No payout information available.. |