Property
Account |
| Property ID: | 813767 | Abbreviated Legal Description: | Lot 2 SP 179/23 |
| Geographic ID: | R32923-312-0370 | Agent Code: | |
| Type: | Real | | |
| Tax Area: | 712 - APPRAISER-S Whid Schl Dist, outside Langley, improved, greater than 1 acre | Land Use Code | 11 |
| Open Space: | N | DFL | N |
| Historic Property: | N | Remodel Property: | N |
| Multi-Family Redevelopment: | N | | |
| Township: | 29 | Section: | 26 |
| Range: | R3 |
Location |
| Address: | 6557 CULTUS BAY RD CLINTON, WA 98236 | Mapsco: | |
| Neighborhood: | Cycle 4 | Map ID: | 818 |
| Neighborhood CD: | 4 |
Owner |
| Name: | HALLER, RANDALL PAUL | Owner ID: | 299523 |
| Mailing Address: | 6557 CULTUS BAY RD CLINTON, WA 98236 | % Ownership: | 100.0000000000% |
| | | Exemptions: | |
Taxes and Assessment Details
Values
| (+) Improvement Homesite Value: | + | $0 | |
| (+) Improvement Non-Homesite Value: | + | $41,445 | |
| (+) Land Homesite Value: | + | $0 | |
| (+) Land Non-Homesite Value: | + | $360,000 | |
| (+) Curr Use (HS): | + | $0 | $0 |
| (+) Curr Use (NHS): | + | $0 | $0 |
| | | -------------------------- | |
| (=) Market Value: | = | $401,445 | |
| (–) Productivity Loss: | – | $0 | |
| | | -------------------------- | |
| (=) Subtotal: | = | $401,445 | |
| (+) Senior Appraised Value: | + | $0 | |
| (+) Non-Senior Appraised Value: | + | $401,445 | |
| | | -------------------------- | |
| (=) Total Appraised Value: | = | $401,445 | |
| (–) Senior Exemption Loss: | – | $0 | |
| (–) Exemption Loss: | – | $0 | |
| | | -------------------------- | |
| (=) Taxable Value: | = | $401,445 | |
Taxing Jurisdiction
| Owner: | HALLER, RANDALL PAUL | | |
| % Ownership: | 100.0000000000% | | |
| Total Value: | $401,445 | | |
| Tax Area: | 712 - APPRAISER-S Whid Schl Dist, outside Langley, improved, greater than 1 acre |
| CF | Conservation Futures | 0.0313996660 | $401,445 | $401,445 | $12.61 | | |
| FIRE3 | Fire & Rescue Dist #3 S Whidbey GEN | 1.2130821753 | $401,445 | $401,445 | $486.99 | | |
| HOBOND | Hospital BOND | 0.1893405597 | $401,445 | $401,445 | $76.01 | | |
| HOGEN | Hospital GEN | 0.3848777722 | $401,445 | $401,445 | $154.51 | | |
| CE | County Current Expense | 0.3674210519 | $401,445 | $401,445 | $147.50 | | |
| CR | County Roads | 0.4614296361 | $401,445 | $401,445 | $185.24 | | |
| ISLANDEMS | Hospital GEN (EMS) | 0.4952018576 | $401,445 | $401,445 | $198.80 | | |
| LIB | Library Sno-Isle GEN | 0.3039084203 | $401,445 | $401,445 | $122.00 | | |
| PORTWHID | Port of S Whidbey GEN | 0.1086004714 | $401,445 | $401,445 | $43.60 | | |
| SCH206BOND | School 206 BOND | 0.5960237832 | $401,445 | $401,445 | $239.27 | | |
| SCH206CAP | School 206 CP | 0.3066144020 | $401,445 | $401,445 | $123.09 | | |
| SCH206MO | School 206 Enrichment | 0.4808755445 | $401,445 | $401,445 | $193.05 | | |
| ST | State School | 1.4761226122 | $401,445 | $401,445 | $592.58 | | |
| ST2 | State School Part 2 | 0.7953803475 | $401,445 | $401,445 | $319.30 | | |
| SWHIDPRBD | P & R S Whidbey BOND | 0.0144185398 | $401,445 | $401,445 | $5.79 | | |
| SWHIDPRBD3 | P & R S Whidbey BOND3 | 0.1483535547 | $401,445 | $401,445 | $59.56 | | |
| SWHIDPRMT | P & R S Whidbey GEN | 0.4600000000 | $401,445 | $401,445 | $184.66 | | |
| | Total Tax Rate: | 7.8330503944 | | | | | |
| | | | | Taxes w/Current Exemptions: | $3,144.56 | | |
| | | | | Taxes w/o Exemptions: | $3,144.56 | | |
Improvement / Building
| Improvement #1: | RESIDENTIAL | State Code: | Y | 400.0 sqft | Value: | $41,445 |
| Bathrooms: | 1 | Bedrooms: | 1 | | Ceiling: | DRYWALL PAINTED | Exterior Wall/Cover: | WOOD SIDING | | Floor Covering: | SOFTWOOD 100% | Floor Structure: | WOOD W/SUBFLOOR | | Foundation: | WOOD BLOCKS | Heating: | (NONE) | | Interior Finish: | DRYWALL PAINT | Plumbing Fixture Cnt: | 5 | | Roof Slope: | 8" IN 12" | Roof Structure/Cover: | CJ ASPHALT |
|
| | Type | Description | Class CD | Sub Class CD | Year Built | Area |
| | BAS | BASE/MAIN FLOOR | 2 | 0 | 1937 | 400.0 |
| | ATF | ATTIC FINISHED | 2 | 0 | 1937 | 140.0 |
Sketch
Property Image
Land
| 1 | 32 | AC (03.01-09.99) | 4.4500 | 193842.00 | 0.00 | 0.00 | 1.00 | $360,000 | $0 |
Roll Value History
| 2026 | N/A | N/A | N/A | N/A | N/A |
| 2025 | $41,445 | $360,000 | $0 | $401,445 | $401,445 |
| 2024 | $42,269 | $340,000 | $0 | $382,269 | $382,269 |
| 2023 | $43,094 | $115,000 | $0 | $158,094 | $158,094 |
| 2022 | $39,768 | $115,000 | $0 | $154,768 | $154,768 |
| 2021 | $35,231 | $115,000 | $0 | $150,231 | $150,231 |
| 2020 | $34,409 | $95,000 | $0 | $129,409 | $129,409 |
Deed and Sales History
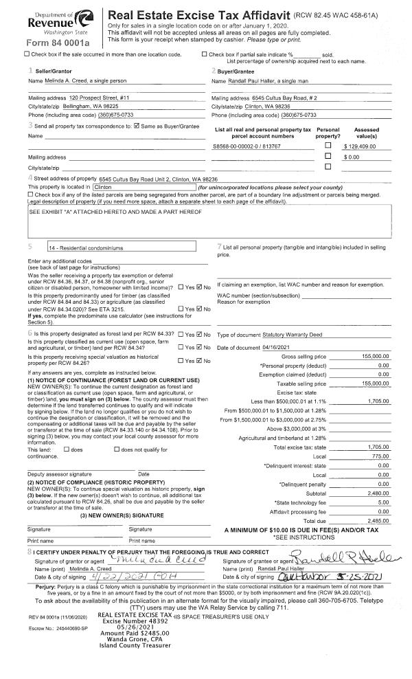
| 1 | 04/16/2021 | WD | Warranty Deed | CREED, MELINDA A | HALLER, RANDALL PAUL | | | $155,000.00 | 48392 | 4520184 |
Payout Agreement
| No payout information available.. |