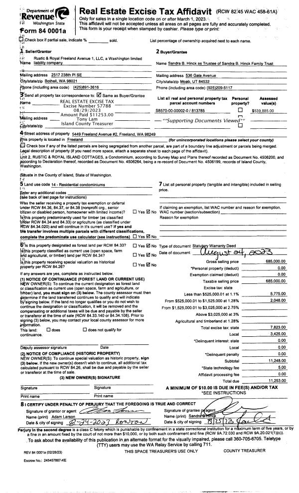
Property
Account |
| Property ID: | 813785 | Abbreviated Legal Description: | RUSTIC & ROYAL ISLAND COTTAGES CONDO UNIT 2 AF#4506200 |
| Geographic ID: | S8570-00-00002-0 | Agent Code: | |
| Type: | Real | | |
| Tax Area: | 760 - APPRAISER-S Whid Schl Dist, Special District, improved & less than 1 acre | Land Use Code | 14 |
| Open Space: | N | DFL | N |
| Historic Property: | N | Remodel Property: | N |
| Multi-Family Redevelopment: | N | | |
| Township: | | Section: | |
| Range: | |
Location |
| Address: | 5449 FREELAND AVE UNIT 2 FREELAND, WA 98249 | Mapsco: | |
| Neighborhood: | Cycle 3 | Map ID: | 310 |
| Neighborhood CD: | 3 |
Owner |
| Name: | HINCK TTEE, SANDRA B | Owner ID: | 309842 |
| Mailing Address: | 536 GALA AVE MOAB, UT 84532 | % Ownership: | 100.0000000000% |
| | | Exemptions: | |
Taxes and Assessment Details
Values
| (+) Improvement Homesite Value: | + | $0 | |
| (+) Improvement Non-Homesite Value: | + | $233,153 | |
| (+) Land Homesite Value: | + | $0 | |
| (+) Land Non-Homesite Value: | + | $400,000 | |
| (+) Curr Use (HS): | + | $0 | $0 |
| (+) Curr Use (NHS): | + | $0 | $0 |
| | | -------------------------- | |
| (=) Market Value: | = | $633,153 | |
| (–) Productivity Loss: | – | $0 | |
| | | -------------------------- | |
| (=) Subtotal: | = | $633,153 | |
| (+) Senior Appraised Value: | + | $0 | |
| (+) Non-Senior Appraised Value: | + | $633,153 | |
| | | -------------------------- | |
| (=) Total Appraised Value: | = | $633,153 | |
| (–) Senior Exemption Loss: | – | $0 | |
| (–) Exemption Loss: | – | $0 | |
| | | -------------------------- | |
| (=) Taxable Value: | = | $633,153 | |
Taxing Jurisdiction
| Owner: | HINCK TTEE, SANDRA B | | |
| % Ownership: | 100.0000000000% | | |
| Total Value: | $633,153 | | |
| Tax Area: | 760 - APPRAISER-S Whid Schl Dist, Special District, improved & less than 1 acre |
| CF | Conservation Futures | 0.0313996660 | $633,153 | $633,153 | $19.88 | | |
| FIRE3 | Fire & Rescue Dist #3 S Whidbey GEN | 1.2130821753 | $633,153 | $633,153 | $768.07 | | |
| HOBOND | Hospital BOND | 0.1893405597 | $633,153 | $633,153 | $119.88 | | |
| HOGEN | Hospital GEN | 0.3848777722 | $633,153 | $633,153 | $243.69 | | |
| CE | County Current Expense | 0.3674210519 | $633,153 | $633,153 | $232.63 | | |
| CR | County Roads | 0.4614296361 | $633,153 | $633,153 | $292.16 | | |
| ISLANDEMS | Hospital GEN (EMS) | 0.4952018576 | $633,153 | $633,153 | $313.54 | | |
| LIB | Library Sno-Isle GEN | 0.3039084203 | $633,153 | $633,153 | $192.42 | | |
| PORTWHID | Port of S Whidbey GEN | 0.1086004714 | $633,153 | $633,153 | $68.76 | | |
| SCH206BOND | School 206 BOND | 0.5960237832 | $633,153 | $633,153 | $377.37 | | |
| SCH206CAP | School 206 CP | 0.3066144020 | $633,153 | $633,153 | $194.13 | | |
| SCH206MO | School 206 Enrichment | 0.4808755445 | $633,153 | $633,153 | $304.47 | | |
| ST | State School | 1.4761226122 | $633,153 | $633,153 | $934.61 | | |
| ST2 | State School Part 2 | 0.7953803475 | $633,153 | $633,153 | $503.60 | | |
| SWHIDPRBD | P & R S Whidbey BOND | 0.0144185398 | $633,153 | $633,153 | $9.13 | | |
| SWHIDPRBD3 | P & R S Whidbey BOND3 | 0.1483535547 | $633,153 | $633,153 | $93.93 | | |
| SWHIDPRMT | P & R S Whidbey GEN | 0.4600000000 | $633,153 | $633,153 | $291.25 | | |
| | Total Tax Rate: | 7.8330503944 | | | | | |
| | | | | Taxes w/Current Exemptions: | $4,959.52 | | |
| | | | | Taxes w/o Exemptions: | $4,959.52 | | |
Improvement / Building
| Improvement #1: | RESIDENTIAL | State Code: | Y | 1021.2 sqft | Value: | $233,153 |
| Bathrooms: | 2 | Bedrooms: | 2 | | Ceiling: | DRYWALL PAINTED | Cooling: | HEAT PUMP/CONV/V | | Exterior Wall/Cover: | CEMENT FIBER | Floor Covering: | VINYL 100% | | Floor Structure: | WOOD W/SUBFLOOR | Foundation: | CONCRETE | | Interior Finish: | DRYWALL PAINT | Plumbing Fixture Cnt: | 9 | | Roof Slope: | 6" IN 12" | Roof Structure/Cover: | CJ ASPHALT |
|
| | Type | Description | Class CD | Sub Class CD | Year Built | Area |
| | BAS | BASE/MAIN FLOOR | 3 | 0 | 2022 | 793.2 |
| | LOF | LOFT | 3 | 0 | 2022 | 228.0 |
| | UTY | STORAGE/UTILITY | 3 | 0 | 2022 | 31.5 |
| | OWC | OPEN WOOD PORCH W/STEPS/ROOF/C | 3 | 0 | 2022 | 140.0 |
| | OWC | OPEN WOOD PORCH W/STEPS/ROOF/C | 3 | 0 | 2022 | 42.8 |
| | OCP | OPEN CARPORT | 3 | 0 | 2022 | 218.5 |
Sketch
Property Image
Land
| 1 | 61 | MULTIPLE RESIDENCES | 0.1500 | 6534.00 | 0.00 | 0.00 | 1.00 | $400,000 | $0 |
Roll Value History
| 2026 | N/A | N/A | N/A | N/A | N/A |
| 2025 | $233,153 | $400,000 | $0 | $633,153 | $633,153 |
| 2024 | $235,602 | $350,000 | $0 | $585,602 | $585,602 |
| 2023 | $239,885 | $300,000 | $0 | $539,885 | $539,885 |
| 2022 | $10,170 | $25,000 | $0 | $35,170 | $35,170 |
| 2021 | $0 | $22,500 | $0 | $22,500 | $22,500 |
| 2020 | $0 | $22,500 | $0 | $22,500 | $22,500 |
Deed and Sales History
| 1 | 08/24/2023 | WD | Warranty Deed | RUSTIC & ROYAL FREELAND AVE 1, LLC | HINCK TTEE, SANDRA B | | | $685,000.00 | 57788 | 4564051 |
Payout Agreement
| No payout information available.. |