Property
Account |
| Property ID: | 813791 | Abbreviated Legal Description: | CAMANO SUNRISE VIEW ESTATES #1 LOT 2 |
| Geographic ID: | S8556-00-00002-0 | Agent Code: | |
| Type: | Real | | |
| Tax Area: | 512 - APPRAISER-Stan/Cam Schl Dist, improved, greater than 1 acre | Land Use Code | 11 |
| Open Space: | N | DFL | N |
| Historic Property: | N | Remodel Property: | N |
| Multi-Family Redevelopment: | N | | |
| Township: | 31 | Section: | 19 |
| Range: | R3 |
Location |
| Address: | 1365 VILLAGE HEIGHTS PL CAMANO IS, WA 98282 | Mapsco: | |
| Neighborhood: | Cycle 5 | Map ID: | 931 |
| Neighborhood CD: | 5 |
Owner |
| Name: | HARD, SUNSHINE | Owner ID: | 310807 |
| Mailing Address: | ERNEST S HARD 1365 VILLAGE HEIGHTS PL CAMANO ISLAND, WA 98282 | % Ownership: | 100.0000000000% |
| | | Exemptions: | |
Taxes and Assessment Details
Values
| (+) Improvement Homesite Value: | + | $0 | |
| (+) Improvement Non-Homesite Value: | + | $647,923 | |
| (+) Land Homesite Value: | + | $0 | |
| (+) Land Non-Homesite Value: | + | $460,000 | |
| (+) Curr Use (HS): | + | $0 | $0 |
| (+) Curr Use (NHS): | + | $0 | $0 |
| | | -------------------------- | |
| (=) Market Value: | = | $1,107,923 | |
| (–) Productivity Loss: | – | $0 | |
| | | -------------------------- | |
| (=) Subtotal: | = | $1,107,923 | |
| (+) Senior Appraised Value: | + | $0 | |
| (+) Non-Senior Appraised Value: | + | $1,107,923 | |
| | | -------------------------- | |
| (=) Total Appraised Value: | = | $1,107,923 | |
| (–) Senior Exemption Loss: | – | $0 | |
| (–) Exemption Loss: | – | $0 | |
| | | -------------------------- | |
| (=) Taxable Value: | = | $1,107,923 | |
Taxing Jurisdiction
| Owner: | HARD, SUNSHINE | | |
| % Ownership: | 100.0000000000% | | |
| Total Value: | $1,107,923 | | |
| Tax Area: | 512 - APPRAISER-Stan/Cam Schl Dist, improved, greater than 1 acre |
| CF | Conservation Futures | 0.0313996660 | $1,107,923 | $1,107,923 | $34.79 | | |
| EMS1 | Fire & Rescue Dist #1 Camano GEN (EMS) | 0.4998471806 | $1,107,923 | $1,107,923 | $553.79 | | |
| FIRE1 | Fire & Rescue Dist #1 Camano GEN | 1.2496603404 | $1,107,923 | $1,107,923 | $1,384.53 | | |
| FIRE1BOND | Fire & Rescue Dist #1 Camano BOND | 0.1630371212 | $1,107,923 | $1,107,923 | $180.63 | | |
| CE | County Current Expense | 0.3674210519 | $1,107,923 | $1,107,923 | $407.07 | | |
| CR | County Roads | 0.4614296361 | $1,107,923 | $1,107,923 | $511.23 | | |
| LIB | Library Sno-Isle GEN | 0.3039084203 | $1,107,923 | $1,107,923 | $336.71 | | |
| SCH205_401 | School 205-401 Enrichment | 1.3697998934 | $1,107,923 | $1,107,923 | $1,517.63 | | |
| SCH205BOND | School 205-401 BOND | 0.9354199323 | $1,107,923 | $1,107,923 | $1,036.37 | | |
| ST | State School | 1.4761226122 | $1,107,923 | $1,107,923 | $1,635.43 | | |
| ST2 | State School Part 2 | 0.7953803475 | $1,107,923 | $1,107,923 | $881.22 | | |
| | Total Tax Rate: | 7.6534262019 | | | | | |
| | | | | Taxes w/Current Exemptions: | $8,479.40 | | |
| | | | | Taxes w/o Exemptions: | $8,479.40 | | |
Improvement / Building
| Improvement #1: | RESIDENTIAL | State Code: | Y | 2510.0 sqft | Value: | $647,923 |
| Bathrooms: | 3 | Bedrooms: | 3 | | Ceiling: | DRYWALL PAINTED | Cooling: | HEAT PUMP/CONV/V | | Exterior Wall/Cover: | CEMENT FIBER | Floor Covering: | CARPET/VINYL 20-80 | | Floor Structure: | WOOD W/SUBFLOOR | Foundation: | CONCRETE | | Interior Finish: | DRYWALL PAINT | Plumbing Fixture Cnt: | 15 | | Roof Slope: | 6" IN 12" | Roof Structure/Cover: | CJ ASPHALT |
|
| | Type | Description | Class CD | Sub Class CD | Year Built | Area |
| | BAS | BASE/MAIN FLOOR | 4 | 0 | 2021 | 2510.0 |
| | AGR | ATTACHED GARAGE | 4 | 0 | 2021 | 713.8 |
| | OWC | OPEN WOOD PORCH W/STEPS/ROOF/C | 4 | 0 | 2021 | 322.0 |
| | OWC | OPEN WOOD PORCH W/STEPS/ROOF/C | 4 | 0 | 2021 | 365.0 |
Sketch
Property Image
Land
| 1 | 18 | AC (02.01-03.00) | 2.4000 | 104544.00 | 0.00 | 0.00 | 1.00 | $460,000 | $0 |
Roll Value History
| 2026 | N/A | N/A | N/A | N/A | N/A |
| 2025 | $647,923 | $460,000 | $0 | $1,107,923 | $1,107,923 |
| 2024 | $659,703 | $460,000 | $0 | $1,119,703 | $1,119,703 |
| 2023 | $646,508 | $380,000 | $0 | $1,026,508 | $1,026,508 |
| 2022 | $596,052 | $320,000 | $0 | $916,052 | $916,052 |
| 2021 | $242,855 | $100,000 | $0 | $342,855 | $342,855 |
Deed and Sales History
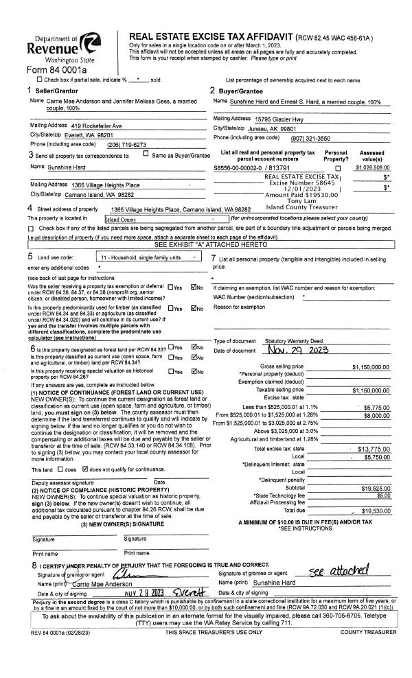
| 1 | 11/29/2023 | WD | Warranty Deed | ANDERSON, CARRIE MAE | HARD, SUNSHINE | | | $1,150,000.00 | 58645 | 4567186 |
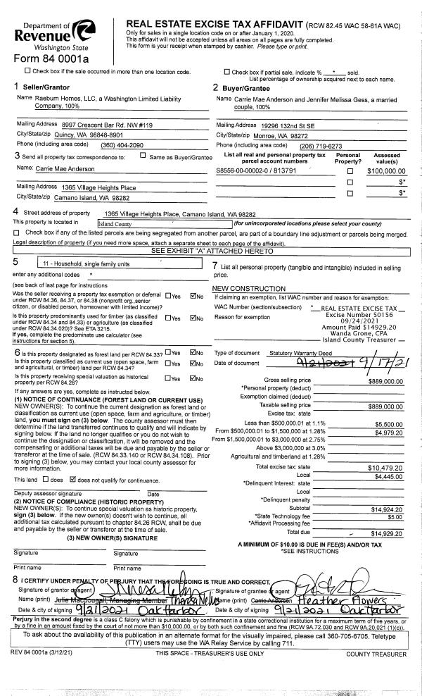
| 2 | 09/17/2021 | WD | Warranty Deed | RAEBURN HOMES, LLC | ANDERSON, CARRIE MAE | | | $889,000.00 | 50156 | 4529854 |
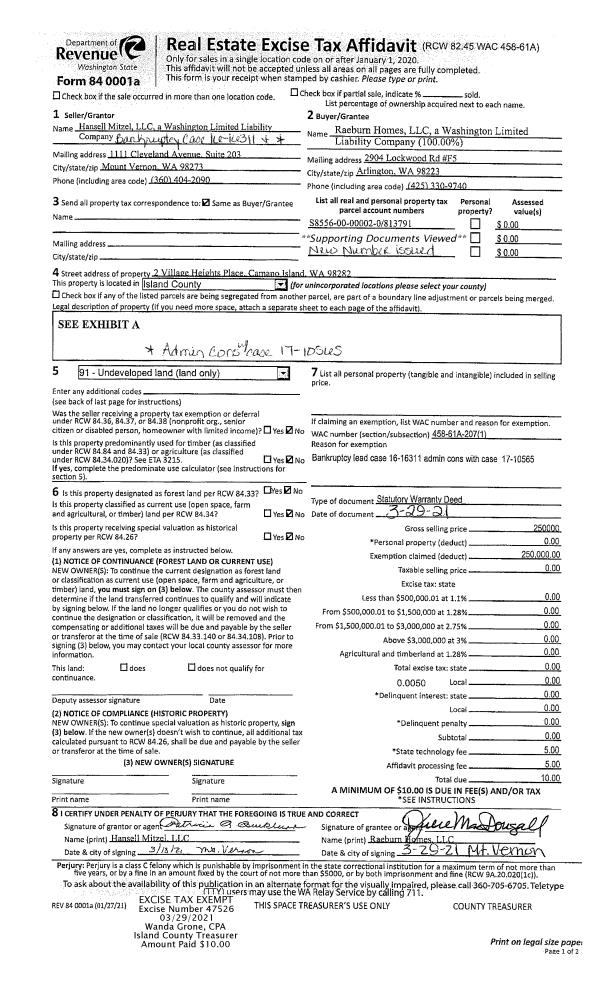
| 3 | 03/29/2021 | WD | Warranty Deed | HANSELL MITZEL LLC | RAEBURN HOMES, LLC | | | $0.00 | 47535 | 4514892 |
Payout Agreement
| No payout information available.. |