Property
Account |
| Property ID: | 813793 | Abbreviated Legal Description: | CAMANO SUNRISE VIEW ESTATES #1 LOT 4 |
| Geographic ID: | S8556-00-00004-0 | Agent Code: | |
| Type: | Real | | |
| Tax Area: | 512 - APPRAISER-Stan/Cam Schl Dist, improved, greater than 1 acre | Land Use Code | 11 |
| Open Space: | N | DFL | N |
| Historic Property: | N | Remodel Property: | N |
| Multi-Family Redevelopment: | N | | |
| Township: | 31 | Section: | 19 |
| Range: | R3 |
Location |
| Address: | 1383 VILLAGE HEIGHTS PLACE CAMANO IS, WA 98282 | Mapsco: | |
| Neighborhood: | Cycle 5 | Map ID: | 931 |
| Neighborhood CD: | 5 |
Owner |
| Name: | THOMSON, NEIL | Owner ID: | 303883 |
| Mailing Address: | GAIL THOMSON 1383 VILLAGE HEIGHTS PLACE CAMANO ISLAND, WA 98282 | % Ownership: | 100.0000000000% |
| | | Exemptions: | |
Taxes and Assessment Details
Values
| (+) Improvement Homesite Value: | + | $0 | |
| (+) Improvement Non-Homesite Value: | + | $753,677 | |
| (+) Land Homesite Value: | + | $0 | |
| (+) Land Non-Homesite Value: | + | $410,000 | |
| (+) Curr Use (HS): | + | $0 | $0 |
| (+) Curr Use (NHS): | + | $0 | $0 |
| | | -------------------------- | |
| (=) Market Value: | = | $1,163,677 | |
| (–) Productivity Loss: | – | $0 | |
| | | -------------------------- | |
| (=) Subtotal: | = | $1,163,677 | |
| (+) Senior Appraised Value: | + | $0 | |
| (+) Non-Senior Appraised Value: | + | $1,163,677 | |
| | | -------------------------- | |
| (=) Total Appraised Value: | = | $1,163,677 | |
| (–) Senior Exemption Loss: | – | $0 | |
| (–) Exemption Loss: | – | $0 | |
| | | -------------------------- | |
| (=) Taxable Value: | = | $1,163,677 | |
Taxing Jurisdiction
| Owner: | THOMSON, NEIL | | |
| % Ownership: | 100.0000000000% | | |
| Total Value: | $1,163,677 | | |
| Tax Area: | 512 - APPRAISER-Stan/Cam Schl Dist, improved, greater than 1 acre |
| CF | Conservation Futures | 0.0313996660 | $1,163,677 | $1,163,677 | $36.54 | | |
| EMS1 | Fire & Rescue Dist #1 Camano GEN (EMS) | 0.4998471806 | $1,163,677 | $1,163,677 | $581.66 | | |
| FIRE1 | Fire & Rescue Dist #1 Camano GEN | 1.2496603404 | $1,163,677 | $1,163,677 | $1,454.20 | | |
| FIRE1BOND | Fire & Rescue Dist #1 Camano BOND | 0.1630371212 | $1,163,677 | $1,163,677 | $189.72 | | |
| CE | County Current Expense | 0.3674210519 | $1,163,677 | $1,163,677 | $427.56 | | |
| CR | County Roads | 0.4614296361 | $1,163,677 | $1,163,677 | $536.96 | | |
| LIB | Library Sno-Isle GEN | 0.3039084203 | $1,163,677 | $1,163,677 | $353.65 | | |
| SCH205_401 | School 205-401 Enrichment | 1.3697998934 | $1,163,677 | $1,163,677 | $1,594.00 | | |
| SCH205BOND | School 205-401 BOND | 0.9354199323 | $1,163,677 | $1,163,677 | $1,088.53 | | |
| ST | State School | 1.4761226122 | $1,163,677 | $1,163,677 | $1,717.73 | | |
| ST2 | State School Part 2 | 0.7953803475 | $1,163,677 | $1,163,677 | $925.57 | | |
| | Total Tax Rate: | 7.6534262019 | | | | | |
| | | | | Taxes w/Current Exemptions: | $8,906.12 | | |
| | | | | Taxes w/o Exemptions: | $8,906.12 | | |
Improvement / Building
| Improvement #1: | RESIDENTIAL | State Code: | Y | 2468.5 sqft | Value: | $753,677 |
| Bathrooms: | 2 | Bedrooms: | 2 | | Ceiling: | TONGUE & GROOVE | Cooling: | HEAT PUMP/CONV/V | | Exterior Wall/Cover: | CEMENT FIBER | Floor Covering: | HARDWOOD/CARP 60-40 | | Floor Structure: | WOOD W/SUBFLOOR | Foundation: | CONCRETE | | Interior Finish: | DRYWALL PAINT | Plumbing Fixture Cnt: | 12 | | Roof Slope: | 6" IN 12" | Roof Structure/Cover: | BEAM ASPHALT |
|
| | Type | Description | Class CD | Sub Class CD | Year Built | Area |
| | BAS | BASE/MAIN FLOOR | 4 | 0 | 2021 | 2468.5 |
| | AGR | ATTACHED GARAGE | 4 | 0 | 2021 | 813.0 |
| | OWC | OPEN WOOD PORCH W/STEPS/ROOF/C | 4 | 0 | 2021 | 828.0 |
| | OP2 | OPEN PORCH W/STEPS | 4 | 0 | 2021 | 424.0 |
| | OP4 | OPEN PORCH W/CEILING-ROOF | 4 | 0 | 2021 | 315.3 |
| | ENP | ENCLOSED PORCH | 4 | 0 | 2021 | 360.0 |
| | OP2 | OPEN PORCH W/STEPS | 4 | 0 | 2021 | 208.0 |
Sketch
Property Image
Land
| 1 | 18 | AC (02.01-03.00) | 2.3500 | 102366.00 | 0.00 | 0.00 | 1.00 | $410,000 | $0 |
Roll Value History
| 2026 | N/A | N/A | N/A | N/A | N/A |
| 2025 | $753,677 | $410,000 | $0 | $1,163,677 | $1,163,677 |
| 2024 | $759,659 | $410,000 | $0 | $1,169,659 | $1,169,659 |
| 2023 | $767,634 | $320,000 | $0 | $1,087,634 | $1,087,634 |
| 2022 | $663,802 | $260,000 | $0 | $923,802 | $923,802 |
| 2021 | $55,784 | $100,000 | $0 | $155,784 | $155,784 |
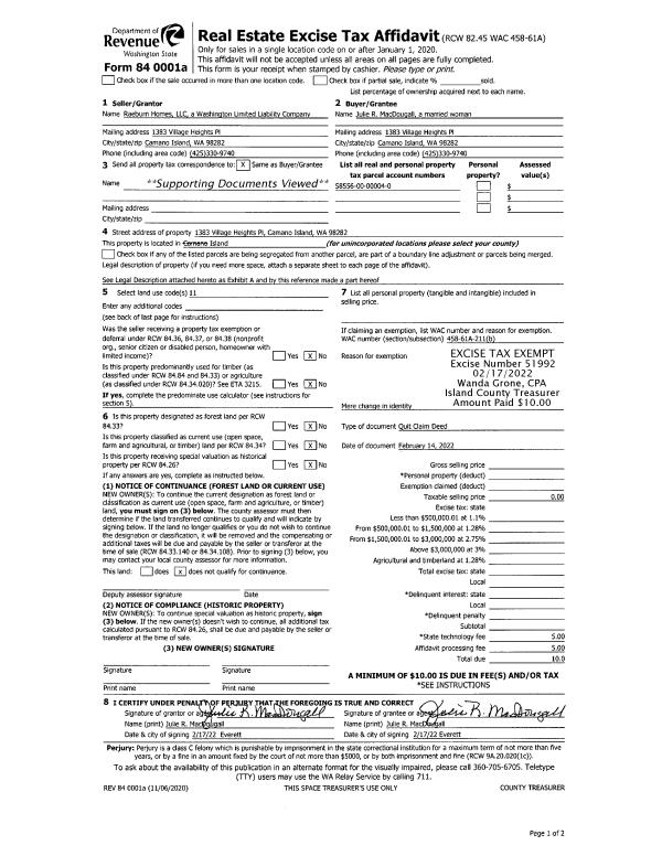
Deed and Sales History
| 1 | 04/22/2022 | WD | Warranty Deed | MACDOUGALL, JULIE R | THOMSON, NEIL | | | $1,520,000.00 | 52835 | 4543986 |
| 2 | 02/28/2022 | QCD | Quit Claim Deed | MACDOUGALL, JULIE R | MACDOUGALL, JULIE R | | | $0.00 | 52174 | 4540854 |
| 3 | 02/14/2022 | QCD | Quit Claim Deed | RAEBURN HOMES, LLC | MACDOUGALL, JULIE R | | | $0.00 | 51992 | 4539923 |
| 4 | 03/29/2021 | WD | Warranty Deed | HANSELL MITZEL LLC | RAEBURN HOMES, LLC | | | $0.00 | 47528 | 4514870 |
Payout Agreement
| No payout information available.. |