Property
Account |
| Property ID: | 813830 | Abbreviated Legal Description: | KETTLECOVE TOWNHOMES CONDO UNIT A-1 AF#4519639 |
| Geographic ID: | S8533-00-0000A-1 | Agent Code: | |
| Type: | Real | | |
| Tax Area: | 100 - APPRAISER-OH Schl Dist, in OH | Land Use Code | 14 |
| Open Space: | N | DFL | N |
| Historic Property: | N | Remodel Property: | N |
| Multi-Family Redevelopment: | N | | |
| Township: | | Section: | |
| Range: | |
Location |
| Address: | 563 NE KETTLE ST UNIT A1 OAK HARBOR, WA 98277 | Mapsco: | |
| Neighborhood: | 6AcOH-nekettle st | Map ID: | 257 |
| Neighborhood CD: | 6AcOHnektl |
Owner |
| Name: | VOGELER, PAUL R | Owner ID: | 300277 |
| Mailing Address: | 3747 OAK RIDGE LN LAUDERDALE, MS 39335-9424 | % Ownership: | 100.0000000000% |
| | | Exemptions: | |
Taxes and Assessment Details
Values
| (+) Improvement Homesite Value: | + | $0 | |
| (+) Improvement Non-Homesite Value: | + | $285,815 | |
| (+) Land Homesite Value: | + | $0 | |
| (+) Land Non-Homesite Value: | + | $110,000 | |
| (+) Curr Use (HS): | + | $0 | $0 |
| (+) Curr Use (NHS): | + | $0 | $0 |
| | | -------------------------- | |
| (=) Market Value: | = | $395,815 | |
| (–) Productivity Loss: | – | $0 | |
| | | -------------------------- | |
| (=) Subtotal: | = | $395,815 | |
| (+) Senior Appraised Value: | + | $0 | |
| (+) Non-Senior Appraised Value: | + | $395,815 | |
| | | -------------------------- | |
| (=) Total Appraised Value: | = | $395,815 | |
| (–) Senior Exemption Loss: | – | $0 | |
| (–) Exemption Loss: | – | $0 | |
| | | -------------------------- | |
| (=) Taxable Value: | = | $395,815 | |
Taxing Jurisdiction
| Owner: | VOGELER, PAUL R | | |
| % Ownership: | 100.0000000000% | | |
| Total Value: | $395,815 | | |
| Tax Area: | 100 - APPRAISER-OH Schl Dist, in OH |
| CF | Conservation Futures | 0.0313996660 | $395,815 | $395,815 | $12.43 | | |
| CEM1 | Cemetery #1 | 0.0040018856 | $395,815 | $395,815 | $1.58 | | |
| COH | City of Oak Harbor | 2.3090730572 | $395,815 | $395,815 | $913.97 | | |
| OAKBOND | City of Oak Harbor BOND | 0.1902260131 | $395,815 | $395,815 | $75.29 | | |
| HOBOND | Hospital BOND | 0.1893405597 | $395,815 | $395,815 | $74.94 | | |
| HOGEN | Hospital GEN | 0.3848777722 | $395,815 | $395,815 | $152.34 | | |
| CE | County Current Expense | 0.3674210519 | $395,815 | $395,815 | $145.43 | | |
| ISLANDEMS | Hospital GEN (EMS) | 0.4952018576 | $395,815 | $395,815 | $196.01 | | |
| LIB | Library Sno-Isle GEN | 0.3039084203 | $395,815 | $395,815 | $120.29 | | |
| NWHIDPRMT | P & R N Whidbey GEN | 0.1990272349 | $395,815 | $395,815 | $78.78 | | |
| SCH201MO | School 201 Enrichment | 2.3851112745 | $395,815 | $395,815 | $944.06 | | |
| ST | State School | 1.4761226122 | $395,815 | $395,815 | $584.27 | | |
| ST2 | State School Part 2 | 0.7953803475 | $395,815 | $395,815 | $314.82 | | |
| | Total Tax Rate: | 9.1310917527 | | | | | |
| | | | | Taxes w/Current Exemptions: | $3,614.21 | | |
| | | | | Taxes w/o Exemptions: | $3,614.21 | | |
Improvement / Building
| Improvement #1: | RESIDENTIAL | State Code: | A1 | 1270.0 sqft | Value: | $285,815 |
| Bathrooms: | 2.5 | Bedrooms: | 3 | | Ceiling: | DRYWALL PAINTED | Cooling: | HEAT PUMP/CONV/V | | Exterior Wall/Cover: | CEMENT FIBER | Floor Covering: | CARPET/VINYL 60-40 | | Floor Structure: | WOOD W/SUBFLOOR | Foundation: | CONCRETE | | Interior Finish: | DRYWALL PAINT | Plumbing Fixture Cnt: | 12 | | Roof Slope: | 6" IN 12" | Roof Structure/Cover: | CJ ASPHALT |
|
| | Type | Description | Class CD | Sub Class CD | Year Built | Area |
| | BAS | BASE/MAIN FLOOR | 3 | 0 | 2021 | 521.0 |
| | UPS | UPPER STORY | 3 | 0 | 2021 | 749.0 |
| | BIG | BUILT IN GARAGE | 3 | 0 | 2021 | 228.0 |
| | OP3 | OPEN PORCH W/ROOF | 3 | 0 | 2021 | 49.0 |
| | OWP | OPEN WOOD PORCH W/STEPS | 3 | 0 | 2021 | 48.0 |
| | oSIT | Site Improvements | 3 | 0 | 2021 | 0.0 |
Sketch
Property Image
Land
| 1 | 61 | MULTIPLE RESIDENCES | 0.0000 | 0.00 | 0.00 | 0.00 | 1.00 | $110,000 | $0 |
Roll Value History
| 2026 | N/A | N/A | N/A | N/A | N/A |
| 2025 | $285,815 | $110,000 | $0 | $395,815 | $395,815 |
| 2024 | $288,077 | $90,000 | $0 | $378,077 | $378,077 |
| 2023 | $291,095 | $90,000 | $0 | $381,095 | $381,095 |
| 2022 | $268,443 | $100,000 | $0 | $368,443 | $368,443 |
| 2021 | $238,277 | $65,000 | $0 | $303,277 | $303,277 |
Deed and Sales History
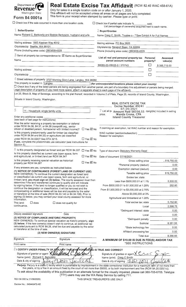
| 1 | 07/07/2021 | WD | Warranty Deed | HS NEW HOMES, LLC | VOGELER, PAUL R | | | $377,000.00 | 49242 | 4524862 |
| 2 | 06/23/2021 | QCD | Quit Claim Deed | HS NEW HOMES, LLC | HS NEW HOMES, LLC | | | $0.00 | 48886 | 4522934 |
Payout Agreement
| No payout information available.. |