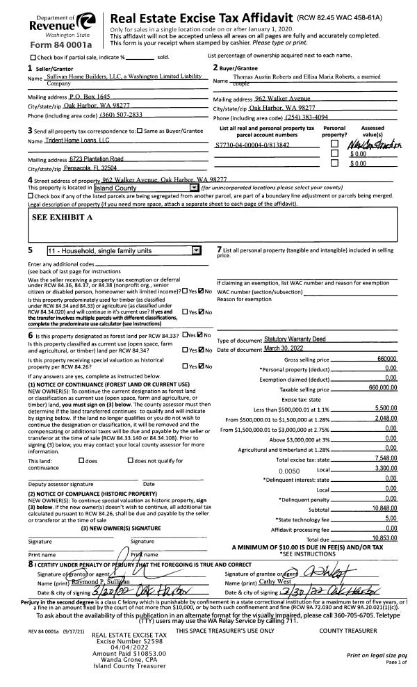
Property
Account |
| Property ID: | 813842 | Abbreviated Legal Description: | PENN COVE PARK #4 LOT 4 AF#4520271 |
| Geographic ID: | S7730-04-00004-0 | Agent Code: | |
| Type: | Real | | |
| Tax Area: | 120 - APPRAISER-OH Schl Dist, Special Dist, improved & 1 acre or less | Land Use Code | 11 |
| Open Space: | N | DFL | N |
| Historic Property: | N | Remodel Property: | N |
| Multi-Family Redevelopment: | N | | |
| Township: | 32 | Section: | 22 |
| Range: | R1 |
Location |
| Address: | 962 WALKER AVE OAK HARBOR, WA 98277 | Mapsco: | |
| Neighborhood: | Cycle 2 | Map ID: | 153 |
| Neighborhood CD: | 2 |
Owner |
| Name: | ROBERTS, THOMAS AUSTIN | Owner ID: | 303670 |
| Mailing Address: | ELLISA MARIA ROBERTS 962 WALKER AVE OAK HARBOR, WA 98277 | % Ownership: | 100.0000000000% |
| | | Exemptions: | |
Taxes and Assessment Details
Values
| (+) Improvement Homesite Value: | + | $0 | |
| (+) Improvement Non-Homesite Value: | + | $412,525 | |
| (+) Land Homesite Value: | + | $0 | |
| (+) Land Non-Homesite Value: | + | $210,000 | |
| (+) Curr Use (HS): | + | $0 | $0 |
| (+) Curr Use (NHS): | + | $0 | $0 |
| | | -------------------------- | |
| (=) Market Value: | = | $622,525 | |
| (–) Productivity Loss: | – | $0 | |
| | | -------------------------- | |
| (=) Subtotal: | = | $622,525 | |
| (+) Senior Appraised Value: | + | $0 | |
| (+) Non-Senior Appraised Value: | + | $622,525 | |
| | | -------------------------- | |
| (=) Total Appraised Value: | = | $622,525 | |
| (–) Senior Exemption Loss: | – | $0 | |
| (–) Exemption Loss: | – | $0 | |
| | | -------------------------- | |
| (=) Taxable Value: | = | $622,525 | |
Taxing Jurisdiction
| Owner: | ROBERTS, THOMAS AUSTIN | | |
| % Ownership: | 100.0000000000% | | |
| Total Value: | $622,525 | | |
| Tax Area: | 120 - APPRAISER-OH Schl Dist, Special Dist, improved & 1 acre or less |
| CF | Conservation Futures | 0.0313996660 | $622,525 | $622,525 | $19.55 | | |
| CEM1 | Cemetery #1 | 0.0040018856 | $622,525 | $622,525 | $2.49 | | |
| FIRE2 | Fire & Rescue Dist #2 N Whidbey GEN | 0.5381486274 | $622,525 | $622,525 | $335.01 | | |
| HOBOND | Hospital BOND | 0.1893405597 | $622,525 | $622,525 | $117.87 | | |
| HOGEN | Hospital GEN | 0.3848777722 | $622,525 | $622,525 | $239.60 | | |
| CE | County Current Expense | 0.3674210519 | $622,525 | $622,525 | $228.73 | | |
| CR | County Roads | 0.4614296361 | $622,525 | $622,525 | $287.25 | | |
| ISLANDEMS | Hospital GEN (EMS) | 0.4952018576 | $622,525 | $622,525 | $308.28 | | |
| LIB | Library Sno-Isle GEN | 0.3039084203 | $622,525 | $622,525 | $189.19 | | |
| NWHIDPRMT | P & R N Whidbey GEN | 0.1990272349 | $622,525 | $622,525 | $123.90 | | |
| SCH201MO | School 201 Enrichment | 2.3851112745 | $622,525 | $622,525 | $1,484.79 | | |
| ST | State School | 1.4761226122 | $622,525 | $622,525 | $918.92 | | |
| ST2 | State School Part 2 | 0.7953803475 | $622,525 | $622,525 | $495.14 | | |
| | Total Tax Rate: | 7.6313709459 | | | | | |
| | | | | Taxes w/Current Exemptions: | $4,750.72 | | |
| | | | | Taxes w/o Exemptions: | $4,750.72 | | |
Improvement / Building
| Improvement #1: | RESIDENTIAL | State Code: | Y | 2306.0 sqft | Value: | $412,525 |
| Bathrooms: | 2.5 | Bedrooms: | 3 | | Ceiling: | DRYWALL PAINTED | Cooling: | HEAT PUMP/CONV/V | | Exterior Wall/Cover: | CEMENT FIBER | Floor Covering: | CARPET/VINYL 60-40 | | Floor Structure: | WOOD W/SUBFLOOR | Foundation: | CONCRETE | | Interior Finish: | DRYWALL PAINT | Plumbing Fixture Cnt: | 12 | | Roof Slope: | 4" IN 12" | Roof Structure/Cover: | CJ ASPHALT |
|
| | Type | Description | Class CD | Sub Class CD | Year Built | Area |
| | BAS | BASE/MAIN FLOOR | 3 | 0 | 2022 | 924.0 |
| | UPS | UPPER STORY | 3 | 0 | 2022 | 1382.0 |
| | AGR | ATTACHED GARAGE | 3 | 0 | 2022 | 440.0 |
| | OP4 | OPEN PORCH W/CEILING-ROOF | 3 | 0 | 2022 | 144.0 |
| | OP4 | OPEN PORCH W/CEILING-ROOF | 3 | 0 | 2022 | 76.0 |
Sketch
Property Image
Land
| 1 | 15 | SQ (12001-21780) | 0.3000 | 13068.00 | 0.00 | 0.00 | 1.00 | $210,000 | $0 |
Roll Value History
| 2026 | N/A | N/A | N/A | N/A | N/A |
| 2025 | $412,525 | $210,000 | $0 | $622,525 | $622,525 |
| 2024 | $395,481 | $210,000 | $0 | $605,481 | $605,481 |
| 2023 | $402,671 | $220,000 | $0 | $622,671 | $622,671 |
| 2022 | $334,909 | $200,000 | $0 | $534,909 | $534,909 |
| 2021 | $0 | $70,000 | $0 | $70,000 | $70,000 |
Deed and Sales History
| 1 | 03/30/2022 | WD | Warranty Deed | SULLIVAN HOME BUILDERS, LLC | ROBERTS, THOMAS AUSTIN | | | $660,000.00 | 52598 | 4542793 |
| 2 | 07/14/2021 | WD | Warranty Deed | MLR DEVELOPMENT GROUP, LLC | SULLIVAN HOME BUILDERS, LLC | | | $460,000.00 | 49164 | 4524454 |
|   | |
Payout Agreement
| No payout information available.. |