Property
Account |
| Property ID: | 814106 | Abbreviated Legal Description: | Madrona Landing - Condos Unit/Suite 2s PLUS 0.2000000000 % INT IN COMMON AREAs |
| Geographic ID: | S8575-00-00002-0 | Agent Code: | |
| Type: | Real | | |
| Tax Area: | 720 - APPRAISER-S Whid Schl Dist, Special District, improved & less than 1 acre | Land Use Code | 14 |
| Open Space: | N | DFL | N |
| Historic Property: | N | Remodel Property: | N |
| Multi-Family Redevelopment: | N | | |
| Township: | 29 | Section: | 30 |
| Range: | R4 |
Location |
| Address: | | Mapsco: | |
| Neighborhood: | 44cCL-highway 525 | Map ID: | 1002 |
| Neighborhood CD: | 44cCLhw525 |
Owner |
| Name: | ANAMOSA, MARTHA | Owner ID: | 312582 |
| Mailing Address: | PO BOX 1070 LANGLEY, WA 98260 | % Ownership: | 100.0000000000% |
| | | Exemptions: | |
Taxes and Assessment Details
Property Tax Information as of
03/11/2026
Click on "Statement Details" to expand or collapse a tax statement.
* Please enter a valid date ** Please enter a valid date *
Statement Details |
| 2026 | 53831 | ST - State School | $560.71 | $560.70 | $0.00 | $0.00 | $560.71 | $560.70 |
| 2026 | 53831 | Island County - Island County General Fund | $90.70 | $90.69 | $0.00 | $0.00 | $90.70 | $90.69 |
| 2026 | 53831 | ISLANDCORD - Island County Roads | $113.90 | $113.90 | $0.00 | $0.00 | $113.90 | $113.90 |
| 2026 | 53831 | PRTSWHDBY - Port of South Whidbey | $26.81 | $26.80 | $0.00 | $0.00 | $26.81 | $26.80 |
| 2026 | 53831 | PRKRECSWHDBY - Park & Recreation South Whidbey | $153.73 | $153.73 | $0.00 | $0.00 | $153.73 | $153.73 |
| 2026 | 53831 | SCH206 - School 206 South Whidbey | $341.52 | $341.50 | $0.00 | $0.00 | $341.52 | $341.50 |
| 2026 | 53831 | FIRE3 - Fire & Rescue Dist #3 South Whidbey | $299.44 | $299.44 | $0.00 | $0.00 | $299.44 | $299.44 |
| 2026 | 53831 | LIB - Library Sno-Isle Regional | $75.02 | $75.02 | $0.00 | $0.00 | $75.02 | $75.02 |
| 2026 | 53831 | HOSPEMS - Whidbey Health EMS Island County | $122.24 | $122.23 | $0.00 | $0.00 | $122.24 | $122.23 |
| 2026 | 53831 | HOSP - Whidbey Health | $141.75 | $141.73 | $0.00 | $0.00 | $141.75 | $141.73 |
| 2026 | 53831 | CF - Island County Conservation Futures | $7.75 | $7.75 | $0.00 | $0.00 | $7.75 | $7.75 |
| 2026 | 53831 | CWU - Clean Water Utility | $19.57 | $19.56 | $0.00 | $0.00 | $19.57 | $19.56 |
| 2026 | 53831 | WDBYCNV - Whidbey Conservation District | $2.55 | $2.55 | $0.00 | $0.00 | $2.55 | $2.55 |
| 2026 | 53831 | TOTAL: | $1955.69 | $1955.60 | $0.00 | $0.00 | $1955.69 | $1955.60 |
|
| 2026 | 53831 | $1955.69 | $1955.60 | $0.00 | $0.00 | $1955.69 | $1955.60 |
Statement Details |
| 2025 | 53953 | ST - State School | $634.94 | $634.92 | $0.00 | $0.00 | $1269.86 | $0.00 |
| 2025 | 53953 | Island County - Island County General Fund | $111.04 | $111.04 | $0.00 | $0.00 | $222.08 | $0.00 |
| 2025 | 53953 | ISLANDCORD - Island County Roads | $137.28 | $137.28 | $0.00 | $0.00 | $274.56 | $0.00 |
| 2025 | 53953 | PRTSWHDBY - Port of South Whidbey | $32.78 | $32.77 | $0.00 | $0.00 | $65.55 | $0.00 |
| 2025 | 53953 | PRKRECSWHDBY - Park & Recreation South Whidbey | $109.93 | $109.91 | $0.00 | $0.00 | $219.84 | $0.00 |
| 2025 | 53953 | SCH206 - School 206 South Whidbey | $315.94 | $315.92 | $0.00 | $0.00 | $631.86 | $0.00 |
| 2025 | 53953 | FIRE3 - Fire & Rescue Dist #3 South Whidbey | $359.46 | $359.45 | $0.00 | $0.00 | $718.91 | $0.00 |
| 2025 | 53953 | LIB - Library Sno-Isle Regional | $94.42 | $94.42 | $0.00 | $0.00 | $188.84 | $0.00 |
| 2025 | 53953 | HOSPEMS - Whidbey Health EMS Island County | $149.71 | $149.71 | $0.00 | $0.00 | $299.42 | $0.00 |
| 2025 | 53953 | HOSP - Whidbey Health | $174.07 | $174.06 | $0.00 | $0.00 | $348.13 | $0.00 |
| 2025 | 53953 | CF - Island County Conservation Futures | $9.47 | $9.46 | $0.00 | $0.00 | $18.93 | $0.00 |
| 2025 | 53953 | WDBYCNV - Whidbey Conservation District | $2.55 | $2.55 | $0.00 | $0.00 | $5.10 | $0.00 |
| 2025 | 53953 | TOTAL: | $2131.59 | $2131.49 | $0.00 | $0.00 | $4263.08 | $0.00 |
|
| 2025 | 53953 | $2131.59 | $2131.49 | $0.00 | $0.00 | $4263.08 | $0.00 |
Statement Details |
| 2024 | 53738 | ST - State School | $707.03 | $707.02 | $0.00 | $0.00 | $1414.05 | $0.00 |
| 2024 | 53738 | Island County - Island County General Fund | $112.62 | $112.61 | $0.00 | $0.00 | $225.23 | $0.00 |
| 2024 | 53738 | ISLANDCORD - Island County Roads | $139.10 | $139.09 | $0.00 | $0.00 | $278.19 | $0.00 |
| 2024 | 53738 | PRTSWHDBY - Port of South Whidbey | $33.23 | $33.22 | $0.00 | $0.00 | $66.45 | $0.00 |
| 2024 | 53738 | PRKRECSWHDBY - Park & Recreation South Whidbey | $111.23 | $111.20 | $0.00 | $0.00 | $222.43 | $0.00 |
| 2024 | 53738 | SCH206 - School 206 South Whidbey | $223.14 | $223.13 | $0.00 | $0.00 | $446.27 | $0.00 |
| 2024 | 53738 | FIRE3 - Fire & Rescue Dist #3 South Whidbey | $246.11 | $246.11 | $0.00 | $0.00 | $492.22 | $0.00 |
| 2024 | 53738 | LIB - Library Sno-Isle Regional | $98.06 | $98.06 | $0.00 | $0.00 | $196.12 | $0.00 |
| 2024 | 53738 | HOSPEMS - Whidbey Health EMS Island County | $100.16 | $100.15 | $0.00 | $0.00 | $200.31 | $0.00 |
| 2024 | 53738 | HOSP - Whidbey Health | $175.81 | $175.80 | $0.00 | $0.00 | $351.61 | $0.00 |
| 2024 | 53738 | CF - Island County Conservation Futures | $9.68 | $9.68 | $0.00 | $0.00 | $19.36 | $0.00 |
| 2024 | 53738 | FP - Forest Protection | $8.50 | $8.50 | $0.00 | $0.00 | $17.00 | $0.00 |
| 2024 | 53738 | LCFFSA - Landowner Contingency Forest Fire Suppression | $3.00 | $3.00 | $0.00 | $0.00 | $6.00 | $0.00 |
| 2024 | 53738 | WDBYCNV - Whidbey Conservation District | $2.55 | $2.55 | $0.00 | $0.00 | $5.10 | $0.00 |
| 2024 | 53738 | FP ADMIN - Fire patrol | $0.25 | $0.25 | $0.00 | $0.00 | $0.50 | $0.00 |
| 2024 | 53738 | TOTAL: | $1970.47 | $1970.37 | $0.00 | $0.00 | $3940.84 | $0.00 |
|
| 2024 | 53738 | $1970.47 | $1970.37 | $0.00 | $0.00 | $3940.84 | $0.00 |
Statement Details |
| 2023 | 53898 | ST - State School | $136.93 | $136.92 | $0.00 | $0.00 | $273.85 | $0.00 |
| 2023 | 53898 | Island County - Island County General Fund | $22.65 | $22.65 | $0.00 | $0.00 | $45.30 | $0.00 |
| 2023 | 53898 | ISLANDCORD - Island County Roads | $28.22 | $28.22 | $0.00 | $0.00 | $56.44 | $0.00 |
| 2023 | 53898 | PRTSWHDBY - Port of South Whidbey | $6.61 | $6.61 | $0.00 | $0.00 | $13.22 | $0.00 |
| 2023 | 53898 | PRKRECSWHDBY - Park & Recreation South Whidbey | $13.33 | $13.32 | $0.00 | $0.00 | $26.65 | $0.00 |
| 2023 | 53898 | SCH206 - School 206 South Whidbey | $44.52 | $44.52 | $0.00 | $0.00 | $89.04 | $0.00 |
| 2023 | 53898 | FIRE3 - Fire & Rescue Dist #3 South Whidbey | $47.40 | $47.40 | $0.00 | $0.00 | $94.80 | $0.00 |
| 2023 | 53898 | LIB - Library Sno-Isle Regional | $17.53 | $17.53 | $0.00 | $0.00 | $35.06 | $0.00 |
| 2023 | 53898 | HOSPEMS - Whidbey Health EMS Island County | $20.09 | $20.09 | $0.00 | $0.00 | $40.18 | $0.00 |
| 2023 | 53898 | HOSP - Whidbey Health | $35.29 | $35.27 | $0.00 | $0.00 | $70.56 | $0.00 |
| 2023 | 53898 | CF - Island County Conservation Futures | $1.95 | $1.94 | $0.00 | $0.00 | $3.89 | $0.00 |
| 2023 | 53898 | TOTAL: | $374.52 | $374.47 | $0.00 | $0.00 | $748.99 | $0.00 |
|
| 2023 | 53898 | $374.52 | $374.47 | $0.00 | $0.00 | $748.99 | $0.00 |
Values
| (+) Improvement Homesite Value: | + | $0 | |
| (+) Improvement Non-Homesite Value: | + | $293,686 | |
| (+) Land Homesite Value: | + | $0 | |
| (+) Land Non-Homesite Value: | + | $200,000 | |
| (+) Curr Use (HS): | + | $0 | $0 |
| (+) Curr Use (NHS): | + | $0 | $0 |
| | | -------------------------- | |
| (=) Market Value: | = | $493,686 | |
| (–) Productivity Loss: | – | $0 | |
| | | -------------------------- | |
| (=) Subtotal: | = | $493,686 | |
| (+) Senior Appraised Value: | + | $0 | |
| (+) Non-Senior Appraised Value: | + | $493,686 | |
| | | -------------------------- | |
| (=) Total Appraised Value: | = | $493,686 | |
| (–) Senior Exemption Loss: | – | $0 | |
| (–) Exemption Loss: | – | $0 | |
| | | -------------------------- | |
| (=) Taxable Value: | = | $493,686 | |
Taxing Jurisdiction
| Owner: | ANAMOSA, MARTHA | | |
| % Ownership: | 100.0000000000% | | |
| Total Value: | $493,686 | | |
| Tax Area: | 720 - APPRAISER-S Whid Schl Dist, Special District, improved & less than 1 acre |
| CF | Conservation Futures | 0.0313996660 | $493,686 | $493,686 | $15.50 | | |
| FIRE3 | Fire & Rescue Dist #3 S Whidbey GEN | 1.2130821753 | $493,686 | $493,686 | $598.88 | | |
| HOBOND | Hospital BOND | 0.1893405597 | $493,686 | $493,686 | $93.47 | | |
| HOGEN | Hospital GEN | 0.3848777722 | $493,686 | $493,686 | $190.01 | | |
| CE | County Current Expense | 0.3674210519 | $493,686 | $493,686 | $181.39 | | |
| CR | County Roads | 0.4614296361 | $493,686 | $493,686 | $227.80 | | |
| ISLANDEMS | Hospital GEN (EMS) | 0.4952018576 | $493,686 | $493,686 | $244.47 | | |
| LIB | Library Sno-Isle GEN | 0.3039084203 | $493,686 | $493,686 | $150.04 | | |
| PORTWHID | Port of S Whidbey GEN | 0.1086004714 | $493,686 | $493,686 | $53.61 | | |
| SCH206BOND | School 206 BOND | 0.5960237832 | $493,686 | $493,686 | $294.25 | | |
| SCH206CAP | School 206 CP | 0.3066144020 | $493,686 | $493,686 | $151.37 | | |
| SCH206MO | School 206 Enrichment | 0.4808755445 | $493,686 | $493,686 | $237.40 | | |
| ST | State School | 1.4761226122 | $493,686 | $493,686 | $728.74 | | |
| ST2 | State School Part 2 | 0.7953803475 | $493,686 | $493,686 | $392.67 | | |
| SWHIDPRBD | P & R S Whidbey BOND | 0.0144185398 | $493,686 | $493,686 | $7.12 | | |
| SWHIDPRBD3 | P & R S Whidbey BOND3 | 0.1483535547 | $493,686 | $493,686 | $73.24 | | |
| SWHIDPRMT | P & R S Whidbey GEN | 0.4600000000 | $493,686 | $493,686 | $227.10 | | |
| | Total Tax Rate: | 7.8330503944 | | | | | |
| | | | | Taxes w/Current Exemptions: | $3,867.06 | | |
| | | | | Taxes w/o Exemptions: | $3,867.06 | | |
Improvement / Building
| Improvement #1: | RESIDENTIAL | State Code: | Y | 1024.0 sqft | Value: | $293,686 |
| Bathrooms: | 2 | Bedrooms: | 2 | | Ceiling: | DRYWALL PAINTED | Cooling: | HEAT PUMP/CONV/V | | Exterior Wall/Cover: | CEMENT FIBER | Floor Covering: | CARPET/VINYL 60-40 | | Floor Structure: | WOOD W/SUBFLOOR | Foundation: | CONCRETE | | Interior Finish: | DRYWALL PAINT | Plumbing Fixture Cnt: | 9 | | Roof Slope: | 4" IN 12" | Roof Structure/Cover: | CJ ASPHALT |
|
| | Type | Description | Class CD | Sub Class CD | Year Built | Area |
| | BAS | BASE/MAIN FLOOR | 4 | 0 | 2023 | 1024.0 |
| | OP3 | OPEN PORCH W/ROOF | 4 | 0 | 2023 | 120.0 |
| | COMA | Common Area Improvement | 4 | 0 | 2023 | 0.0 |
Sketch
Property Image
Land
| 1 | 61 | MULTIPLE RESIDENCES | 0.0000 | 0.00 | 0.00 | 0.00 | 1.00 | $200,000 | $0 |
Roll Value History
| 2026 | N/A | N/A | N/A | N/A | N/A |
| 2025 | $293,686 | $200,000 | $0 | $493,686 | $493,686 |
| 2024 | $298,846 | $300,000 | $0 | $598,846 | $598,846 |
| 2023 | $304,742 | $300,000 | $0 | $604,742 | $604,742 |
| 2022 | $75,158 | $37,635 | $0 | $112,793 | $112,793 |
Deed and Sales History
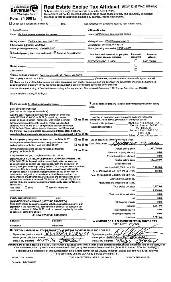
| 1 | 09/17/2025 | WD | Warranty Deed | ANAMOSA, MARTHA | PEDERSEN, ROLF | | | $540,000.00 | 64857 | 4591106 |
| 2 | 05/30/2024 | WD | Warranty Deed | KEYSTONE VENTURES, LLC | ANAMOSA, MARTHA | | | $510,000.00 | 60158 | 4572950 |
Payout Agreement
| No payout information available.. |